KE-2070_KE-2080_KE-2080R-Rev17 - 第74页
- 67 - 34. PWB CONVEYOR COMPONENTS (1) 基板搬送関係(1) 1 3 16 17 16 17 17 17 16 16 19 18 19 18 21 71 72 73 73 74 20 22 28 27 26 23 24 25 25 66 66 34 63 37 38 39 45 48 49 50 58 51 52 53 55 56 57 62 67 A A B C D B C D 35 36 37 3…

- 66 -
NOTE( 注記 ) #01....FOR 2080(RIGHT) 2080(右)用
#02....FOR 2080R(RIGHT) 2080 R(右)用
#03....FOR OFFSET PLACEMENT AFTER はんだ印刷認識搭載位置補正又は、
SOLDER SCREEN-PRINTING OR はんだ認識照明(オプション)用
LIGHTING UNIT FOR SOLDER
RECOGNITION (OPTION)
REF.NO NOTE PART NO D E S C R I P T I O N
品 名
Qty
1
#01
400-49195 OCC ASM (R)
OCC組(R)
1
2 400-50033 CAMERA ASM (R)
カメラ組(R)
(1)
3 EA-9500B01-00 CABLE BAND
束線バンド
(1)
4 401-57655 CAMERA-LENS ASM
カメラ−レンズ組
(1)
5 401-57618 CCD_BRACKET
CCDブラケット
(1)
6 SM-6020602-TN SCREW M2 L=6
六角穴ボルト M2 L=6
(4)
7 WS-0210002-KN SPRING WASHER M2
ばね座金 M2
(4)
8 HX-0029400-00 FIXED BASE
固定ベース
(1)
9 SM-4040601-SC SCREW M4X0.7 L=6
なべ小ねじ M4X0.7 L=6
(1)
10 400-21163 CAMERA BRACKET R
カメラブラケットR
(1)
11 SL-6041292-TN SCREW
座金付き六角穴ボルト
(2)
12 SM-3040652-TN SCREW M4 L=6
丸ねじ M4 L=6
(2)
13 SL-6052092-TN SCREW
座金付き六角穴ボルト
(4)
14 400-78050 CAMERA BRACKET
カメラブラケット
(1)
15 WP-0220301-SC WASHER M2
平座金みがき丸 M2
(4)
16 SM-1030501-SC SCREW M3 L=5
皿小ねじ M3 L=5
(1)
17 SL-6030892-TN SCREW M3 L=8
座金付き六角穴ボルト M3 L=8
(2)
18 L154E-821-0A0 CA LIGHT ASM
CA ライト組
(1)
19 E1038-871-000 PLATEN LOCK CAM SCREW
プラテン ロックカム スクリュウ
(2)
20 400-15847 OCC COLLAR
OCCカラー
(1)
21 SL-6030892-TN SCREW M3 L=8
座金付き六角穴ボルト M3 L=8
(1)
22 SM-1020301-SN SCREW
皿ねじ M2 L=3
(4)
23 400-43896 LENS FILTER
レンズフィルター
(1)
24 400-13948 GUIDE PLATE
ガイドプレート
(1)
25 400-13944 ROTARY BASE
ロータリーベース
(1)
26 SM-1030501-SC SCREW M3 L=5
皿小ねじ M3 L=5
(3)
27 400-01979 OCC C LIGHT P.C.B ASM
OCC 同軸照明基板組
(1)
28 SL-4030691-SC SCREW M3 L=6
座金付きなべ小ねじ M3 L=6
(2)
29 400-44028 MIRROR BOX
ミラーボックス
(1)
30 SL-6030692-TN SCREW M3 L=6
座金付き六角穴ボルト M3 L=6
(3)
31 118-04606 RUBBER PLUG
布台防振ゴム
(10)
32 400-43895 LIGHT DIFFUSER
ライトディフューザ
(1)
33 400-14037 BEAM SPRITTER
ビームスプリッタ
(1)
34 400-13943 PRISM COVER
プリズムカバー
(1)
35 SL-6030692-TN SCREW M3 L=6
座金付き六角穴ボルト M3 L=6
(3)
36 400-01225 HOLD RUBBER
ホールドラバー
(1)
37 400-14042 PRISM
プリズム
(1)
38 400-01982 OCC A LIGHT P.C.B ASM
OCC 同軸照明基板組
(1)
39 400-14043 PRISM BASE
プリズムベース
(1)
40 SL-6030892-TN SCREW M3 L=8
座金付き六角穴ボルト M3 L=8
(4)
41 E1143-721-000 WOOLEN CLOTH PAPER
搬送カバーラシャペーパ(CE)
(1)
42 400-15962 OCC LABEL
OCCラベル
(1)
43 L154E-821-000 LIGHT BRACKET
ライト ブラケット
(1)
44 SL-6044092-TN SCREW
座金付き六角穴ボルト
(2)
45 400-13949 LIGHT FILTER U SUPPORT
ライトフィルタUサポート
(1)
46
#02
400-81150 OCC ASM(80R)
OCC組(80R)
1
47 400-81153 CAMERA ASM(R_80R)
カメラ組(R_80R)
(1)
48 EA-9500B01-00 CABLE BAND
束線バンド
(1)
49 401-57655 CAMERA-LENS ASM
カメラ−レンズ組
(1)
50 401-57618 CCD_BRACKET
CCDブラケット
(1)
51 SM-6020602-TN SCREW M2 L=6
六角穴ボルト M2 L=6
(4)
52 WS-0210002-KN SPRING WASHER M2
ばね座金 M2
(4)
53 HX-0029400-00 FIXED BASE
固定ベース
(1)
54 SM-4040601-SC SCREW M4X0.7 L=6
なべ小ねじ M4X0.7 L=6
(1)
55 SL-6041292-TN SCREW
座金付き六角穴ボルト
(2)
56 SM-3040652-TN SCREW M4 L=6
丸ねじ M4 L=6
(2)
57 SL-6052092-TN SCREW
座金付き六角穴ボルト
(4)
58 400-45997 CAMERA BR
カメラBR
(1)
59 400-80372 CAMERA BRACKET R
カメラブラケットR
(1)
60 WP-0220301-SC WASHER M2
平座金みがき丸 M2
(4)
61 SM-1030501-SC SCREW M3 L=5
皿小ねじ M3 L=5
(1)
62 SL-6030892-TN SCREW M3 L=8
座金付き六角穴ボルト M3 L=8
(2)
63 L154E-821-0A0 CA LIGHT ASM
CA ライト組
(1)
64 E1038-871-000 PLATEN LOCK CAM SCREW
プラテン ロックカム スクリュウ
(2)
65 400-15847 OCC COLLAR
OCCカラー
(1)
66 SL-6030892-TN SCREW M3 L=8
座金付き六角穴ボルト M3 L=8
(1)
67 SM-1020301-SN SCREW
皿ねじ M2 L=3
(4)
68 400-43896 LENS FILTER
レンズフィルター
(1)
69 400-13948 GUIDE PLATE
ガイドプレート
(1)
70 400-13944 ROTARY BASE
ロータリーベース
(1)
71 SM-1030501-SC SCREW M3 L=5
皿小ねじ M3 L=5
(3)
72 400-01979 OCC C LIGHT P.C.B ASM
OCC 同軸照明基板組
(1)
73 SL-4030691-SC SCREW M3 L=6
座金付きなべ小ねじ M3 L=6
(2)
74 400-44028 MIRROR BOX
ミラーボックス
(1)
75 SL-6030692-TN SCREW M3 L=6
座金付き六角穴ボルト M3 L=6
(3)
76 118-04606 RUBBER PLUG
布台防振ゴム
(10)
77 400-43895 LIGHT DIFFUSER
ライトディフューザ
(1)
78 400-14037 BEAM SPRITTER
ビームスプリッタ
(1)
79 400-13943 PRISM COVER
プリズムカバー
(1)
80 SL-6030692-TN SCREW M3 L=6
座金付き六角穴ボルト M3 L=6
(3)
81 400-01225 HOLD RUBBER
ホールドラバー
(1)
82 400-14042 PRISM
プリズム
(1)
83 400-01982 OCC A LIGHT P.C.B ASM
OCC 同軸照明基板組
(1)
84 400-14043 PRISM BASE
プリズムベース
(1)
85 SL-6030892-TN SCREW M3 L=8
座金付き六角穴ボルト M3 L=8
(4)
86 E1143-721-000 WOOLEN CLOTH PAPER
搬送カバーラシャペーパ(CE)
(1)
87 400-15962 OCC LABEL
OCCラベル
(1)
88 L154E-821-000 LIGHT BRACKET
ライト ブラケット
(1)
89 SL-6044092-TN SCREW
座金付き六角穴ボルト
(2)
90 400-13949 LIGHT FILTER U SUPPORT
ライトフィルタUサポート
(1)
91
#03
400-32433 LOW HEAD SCREW M3_10
低頭六角穴付きボルト
4
92
#03
400-01982 OCC A LIGHT P.C.B ASM
OCC 同軸照明基板組
1
93
#03
HX-0035400-0D BASE PARTS
基板パーツ
4
94
#03
400-14043 PRISM BASE
プリズムベース
1
95
#03
HX-0033500-0G SPACER
スペーサ
4

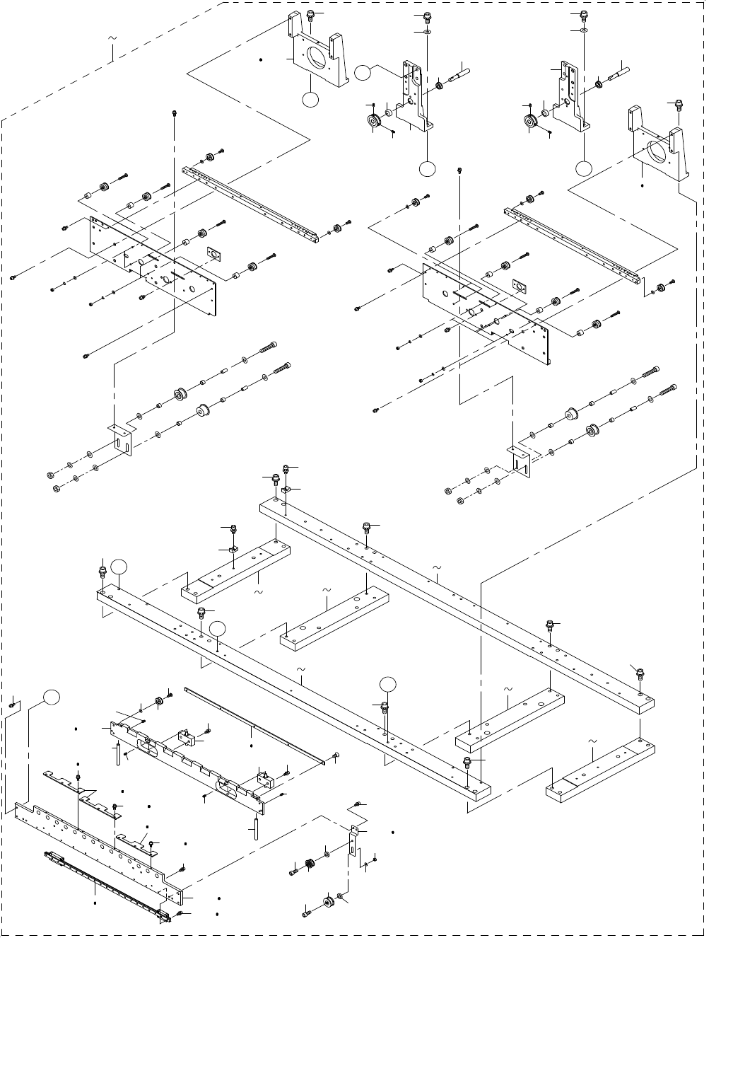
- 67 -
34. PWB CONVEYOR COMPONENTS (1)
基板搬送関係(1)
1 3
16
17
16
17
17
17
16
16
19
18
19
18
21
71
72
73
73
74
20
22
28
27
26
23
24
25
25
66
66
34
63
37
38
39
45
48
49
50
58
51
52
53
55
56
57
62
67
A
A
B
C
D
B
C
D
35
36
37
38
31
31
34
63
39
40
64
65
64
65
10
12
13
15
13
15
10
12
7
9
4
6
41
42
29
30
43
44
32
33
59
60
61
54
40
68
70
69
37
38
35
36
47
46

- 68 -
NOTE( 注記 ) #01....FOR 2070L,2080L,2080RL,2070CL 2070 L,2080 L,2080 RL,2070 CL 用
#02....FOR 2070E,2080E,2080RE 2070 E,2080 E,2080 RE 用
#03....FOR 2070L,2080L,2080RL,2070E, 2070 L,2080 L,2080 RL,2070 E,
2080E,2080RE,2070CL 2080 E,2080 RE,2070 CL 用
*INSTALLATION PSITION AND DIRECTION VARY IF THE PWB TRANSFER
REFERENCE IS DIFFERENT.
基板搬送基準が異なると取付位置、方向が変わります。
REF.NO NOTE PART NO D E S C R I P T I O N
品 名
Qty
1 400-50335 CONVEYOR RAIL F ASM
コンベアレールF組
1
2
#01
400-50342 CONVEYOR RAIL F ASM L
コンベアレールF組L
1
3
#02
400-61088 CONVEYOR RAIL F ASM(E)
コンベアレールF組(E)
1
4 400-00797 BASE BAR R
ベースバーR
(1)
5
#01
400-01038 BASE BAR R(L)
ベースバーR(L)
(1)
6
#02
400-01832 BASE BAR R(E)
ベースバーR(E)
(1)
7 400-00798 BASE BAR F
ベースバーF
(1)
8
#01
400-01039 BASE BAR F(L)
ベースバーF(L)
(1)
9
#02
400-01833 BASE BAR F(E)
ベースバーF(E)
(1)
10 400-39616 BASE BAR S
ベースバーS
(2)
11
#01
400-70087 BASE BAR S(L)
ベースバーS(L)
(2)
12
#02
400-70088 BASE BAR S(E)
ベースバーS(E)
(1)
13 400-00800 BASE BAR SS
ベースバーSS
(2)
14
#01
400-00996 BASE BAR SS(L)
ベースバーSS(L)
(2)
15
#02
400-01835 BASE BAR SS(E)
ベースバーSS(E)
(1)
16 SL-6084092-TN BOLT
座金付き六角穴ボルト
(8)
17 SL-6063592-TN SCREW
座金付き六角穴ボルト M6 L=35
(8)
18 HX-0029400-00 FIXED BASE
固定ベース
(15)
19 SM-4040801-SC SCREW M4X0.7 L=8
なべ小ねじ M4X0.7 L=8
(15)
20 E2414-700-000 PULLEY COLLAR
減速プーリーカラー (X)
(1)
21 400-00802 RAIL STAND CL
レールスタンドCL
(1)
22 SL-6052092-TN SCREW
座金付き六角穴ボルト
(2)
23
#03
400-00803 ADJUST PULLEY SHAFT
アジャストプーリシャフト
(1)
24 E4547-729-000 MOTOR PULLEY (30)
モータプーリ(30)
(1)
25 SM-8040602-TP SCREW M4X0.7 L=6
止めねじ
(2)
26 SB-1080007-00 BEARING
ころがり軸受
(2)
27 E2414-700-000 PULLEY COLLAR
減速プーリーカラー (X)
(1)
28 400-00805 RAIL STAND CR
レールスタンドCR
(1)
29
#03
400-01043 RAIL GUID F(L)
レールガイドF(L)
(1)
30 400-00807 RAIL GUIDE F
レールガイドF
(1)
31 SM-8030302-TP SCREW M3X0.5 L=3
止めねじ M3X0.5 L=3
(2)
32 400-00811 CONVEYOR RAIL FC
コンベアレールFC
(1)
33
#03
400-01044 CONVEYOR RAIL FC(L)
コンベアレールFC(L)
(1)
34 SL-6041092-TN SCREW
座金付き六角穴ボルト
(4)
35 E2123-721-000 PWB GUIDE PLATE F
PWBガイドプレートF
(3)
36
#03
E2123-721-000 PWB GUIDE PLATE F
PWBガイドプレートF
(4)
37 SL-6030892-TN SCREW M3 L=8
座金付き六角穴ボルト M3 L=8
(9)
38
#03
SL-6030892-TN SCREW M3 L=8
座金付き六角穴ボルト M3 L=8
(12)
39 400-00812 RAIL GUIDE SHAFT
レールガイドシャフト
(2)
40 SM-8040602-TP SCREW M4X0.7 L=6
止めねじ
(2)
41 400-00813 LINEAR WAY
リニアウェイ
(1)
42
#03
400-00998 LINEAR WAY(L)
リニアウェイ(L)
(1)
43 SM-6030802-TN BOLT
六角穴ボルト
(11)
44
#03
SM-6030802-TN BOLT
六角穴ボルト
(14)
45 SL-6030692-TN SCREW M3 L=6
座金付き六角穴ボルト M3 L=6
(1)
46 E2111-715-0A0 CONVEYOR PULLEY ASM.
搬送プーリ(組)
(4)
47 WP-0430800-SC WASHER M4
平座金小形丸 M4
(4)
48 SM-4040855-SC SCREW
なべ小ねじ M4 L=8
(4)
49 400-00821 IDLER PLATE
アイドラープレート
(1)
50
#03
400-01046 IDLER PLATE(L)
アイドラープレート(L)
(1)
51 400-14928 PULLEY SPACER
プーリスペーサ
(1)
52 SM-6041602-TN SCREW M4 X 16
六角穴ボルト M4X0.7 L=16
(1)
53 400-00824 IDLER ASM.
アイドラ組
(1)
54 SM-6041602-TN SCREW M4 X 16
六角穴ボルト M4X0.7 L=16
(1)
55 400-14928 PULLEY SPACER
プーリスペーサ
(1)
56 NM-6040001-SC NUT M4X0.7 TYPE1
六角ナット M4X0.7 1種
(1)
57 WP-0430801-SC WASHER 4.3X9X0.8
平座金 4.3X9X0.8
(1)
58 400-00822 GUIDE PULLEY ASM
ガイドプーリ組
(1)
59 E4265-729-000 CONVEYOR BELT GUIDE (L)
搬送ベルトガイド(L)
(1)
60
#03
E4365-729-000 CONVEYOR BELT GUIDE (E)
搬送ベルトガイド(E)
(1)
61 SM-1030601-SC SCREW M3 L=6
皿ねじ M3X0.5 L=6
(5)
62 SL-6041092-TN SCREW
座金付き六角穴ボルト
(4)
63 E4105-729-0A0 SHAFT SUPPORT B ASM.
シャフトサポート組
(2)
64 400-30408 RAIL STAND F
レールスタンドF
(2)
65
#01
400-46032 RAIL STAND F(L)
レールスタンドF(L)
(2)
66 SL-6052092-TN SCREW
座金付き六角穴ボルト
(4)
67 SL-6041292-TN SCREW
座金付き六角穴ボルト
(4)
68 WP-0501046-SC WASHER 5 X 14 X 1
平座金 1.5X14X1
(2)
69 WP-0501046-SC WASHER 5 X 14 X 1
平座金 1.5X14X1
(2)
70 SL-6052092-TN SCREW
座金付き六角穴ボルト
(2)
71 400-00803 ADJUST PULLEY SHAFT
アジャストプーリシャフト
(1)
72 E4547-729-000 MOTOR PULLEY (30)
モ−タプ−リ(30)
(1)
73 SM-8040602-TP SCREW M4X0.7 L=6
止めねじ
(2)
74 SB-1080007-00 BEARING
ころがり軸受
(2)