OM-1834-001w_SL.pdf - 第103页

1504-001 Fig.G7 最小弯曲半径 料带宽最小弯曲半径 Table G1 料带宽 (mm) 最小弯曲半径 (mm) 8 30 当料带弯曲到最小弯曲半径时,不损伤料带,元件仍被保持在料带内的位置 及方向,并且没有损坏元件等异常。 最小弯曲半径(R) 7.6 装料带及封口盖带的强度 7.6 装料带及封口盖带的强度 装料带 可承受在料带拉出方向施加 10N(1.02kgf) 的拉力。 封口盖带 可承受在料带上施加 10N(1.02k…

100%1 / 120
1504-001
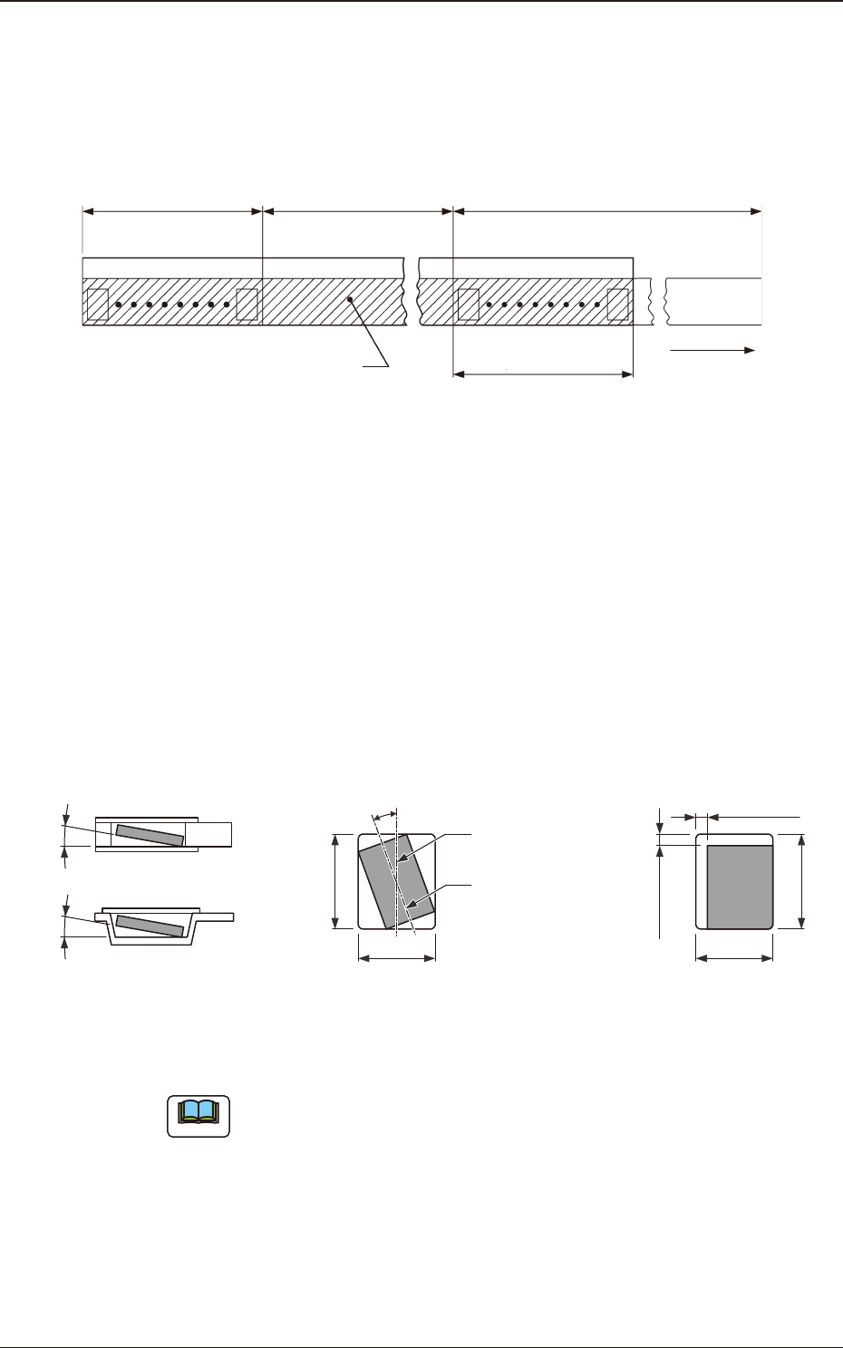
7.3 引导部 ( 料带顶端部 )
7.3 引导部 ( 料带顶端部 )
引导部的料带是长度在 400mm 以上的尚未贴装元件的压纹或者包括方孔的料
带。
这些压纹或方孔用 100mm 以上封口盖带密封着。
终端部(160mm以上)
(400mm以下)
表面实际贴装元件贴装部
引导部(400mm以上)
封口盖带
空压纹或者方孔部
拉出方向
空压纹或者方孔部
(100mm以上密封)
Fig.G3
7.4 终端部 ( 料带末端部 )
料带末端部分的长度,即没有封装元件的压纹带或纸带部分的长度应在
160mm 以上及 400mm 以下。空压纹或方孔用封口盖带密封着。
另外,装料带的最终端要与带盘心分离。
7.5 卷绕元件的位置
B
0
压纹或方孔
的中心线
元件的中心线
(Note)
20°以下(料带宽 8mm)
俯视图侧截面图或正截面图
元件的水平方向旋转元件的倾斜
10°以下10°以下
B 0
A 0
(Note)
0.5 mm以下
(Note)
0.5mm以下
俯视图
元件的横向偏离
A 0
Fig.G4
Note
在元件周围保证适当的余量,使穿孔部及压纹内的元件方向不改变,容易
从穿孔部及压纹内取出。
OM-1834
7-2
1504-001
Fig.G7 最小弯曲半径
料带宽最小弯曲半径
Table G1
料带宽
(mm)
最小弯曲半径
(mm)
8 30
当料带弯曲到最小弯曲半径时,不损伤料带,元件仍被保持在料带内的位置
及方向,并且没有损坏元件等异常。
最小弯曲半径(R)
7.6 装料带及封口盖带的强度
7.6 装料带及封口盖带的强度
装料带
可承受在料带拉出方向施加 10N(1.02kgf) 的拉力。
封口盖带
可承受在料带上施加 10N(1.02kgf) 的拉力。
7.7 封口盖带的剥离力
拉伸角度保持在 165
°
180
°
、以 300mm/ ±10mm/ 分的速度拽拉封口盖
带时,封口盖带的剥离力必须是 0.1 0.7N(10.2 71.4gf)。
方形穿孔装料编带 压纹装料编带
封口盖带
拽脱方向
方形穿孔装料带底面封口盖带
拉出方向
165°~180°
封口盖带
拽脱方向
拉出方向
压纹装料带
165°~180°
Fig.G5 剥离测试的角度 Fig.G6 剥离测试的角度
7.8 最小弯曲半径
OM-1834
7-3
1504-001
7.9 带盘的形状及尺寸
7.9 带盘的形状及尺寸
2.0
±
0.5
Fig.G8
Table G2
带盘的区分记号 适用料带宽 A N W
1
W
2
R08 8 178 ~ 180 60 以上 +2
8.4
0
14.4 以下
単位 : mm
Note
(a) 带盘区分记号中的□内,进入相对于 A 尺寸公称值的以下英文大写字
母。
A:178 B:180
(b) W
2
尺寸表示带盘的总厚度。
OM-1834
7-4