NPM-W - 第600页
120- B 延 長 コンベア(デュアル):NPM-W Extension C onveyor(Dual):NPM -W パーツレイアウト Ki t N o . キット 品番 Kit N am e キット名称 N610128919AA セクションNo. PARTS LAYOUT Section No. - - O407 ( KN610128919AA-07-2 )

Ref
No.
Remarks
R
1
Q'ty
120-A
延
長
コンベア(デュアル):NPM-W
Extension Conveyor(Dual):NPM-W
イラスト
No.
Part No.
品 名品番 数量
R
2
パーツリスト
Kit N
o
.
キット品
番
Kit Name
キット名称
N610128919AA
Part Name
備 考
セクションNo.
PARTS LIST
Section No.
R
3
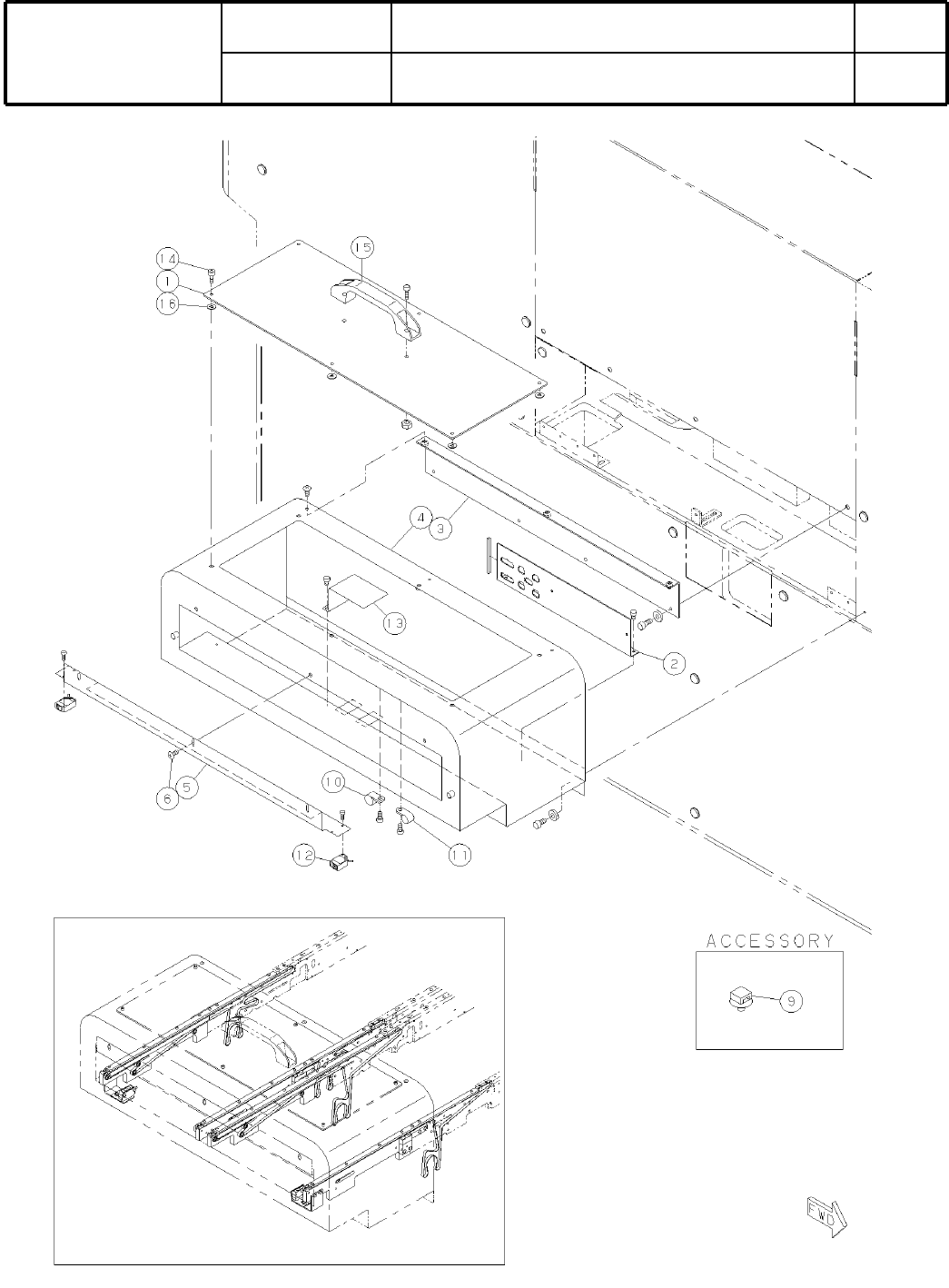
FRAME
2
1 N210151409AD
FRAME
2
2 N210151410AD
GUIDE
4
3 N210150893AB
PLATE
3
4 N210161310AA
BRACKET
2
5 N210162350AA
BRACKET
2
6 N210143083AA
PULLEY
16
7 N610127907AA
NUT
4
8 N510048038AA NSMT-04-4
BELT
4
9 N510061365AA
A
TA-4UEB M/D 5.5WX1547.5L
SENSOR(E3S-LS3N:900mm)
2
10 N610102197AA
PLATE
4
11 N210161311AA
PLATE
1
12 N210161625AA
O406
--
( KN610128919AA-07-1 )

120-B
延
長
コンベア(デュアル):NPM-W
Extension Conveyor(Dual):NPM-W
パーツレイアウト
Ki
t
N
o
.
キット
品番
Kit Name
キット名称
N610128919AA
セクションNo.
PARTS LAYOUT
Section No.
--
O407
( KN610128919AA-07-2 )

Ref
No.
Remarks
R
1
Q'ty
120-B
延
長
コンベア(デュアル):NPM-W
Extension Conveyor(Dual):NPM-W
イラスト
No.
Part No.
品 名品番 数量
R
2
パーツリスト
Kit N
o
.
キット品
番
Kit Name
キット名称
N610128919AA
Part Name
備 考
セクションNo.
PARTS LIST
Section No.
R
3
COVER
1
1 N210144729AB
BRACKET
1
2 N210150894AD
BRACKET
1
3 N210150896AB
COVER
1
4 N610126715AE
BRACKET
1
5 N610126716AB
SCREW
6
6 N510018257AA
Cross recessed Truss head machine screw M4X10-4.8 A2J (Trivalent)
CABLE-SUPPORT
19
9 N510048517AA FT4
CLIP
1
10 KXF0E3QJA00 NK-6N
CLIP
1
11 KXF07SQAA00 NK-5N
SENSOR
1
12 N510042549AA
S
E3ZS-T81A-2
COVER
1
13 N210153814AB
BOLT
6
14 N510028751AA SSC-M4X12
PULL
1
15 KXF0DX62A00 AP-829-2
WASHER
6
16 N510013724AA TM-147-2V
O408
--
( KN610128919AA-07-2 )