NPM-W - 第88页
17-C フィーダーテーブルカバー(交換台車対応)Front側:NPM-W Feeder Table Cover(Feeder Cart)Front:N PM-W パーツレイアウト Ki t N o . キット 品番 Kit N am e キット名称 N610124114AA セクションNo. PARTS LAYOUT Section No. - - S65 ( KN610124114AA-09-3 )

Ref
No.
Remarks
R
1
Q'ty
17-B
フィーダーテーブルカバー(交換台車対応)Front側:NPM-W
Feeder Table Cover(Feeder Cart)Front:NPM-W
イラスト
No.
Part No.
品 名品番 数量
R
2
パーツリスト
Kit N
o
.
キット品
番
Kit Name
キット名称
N610124114AA
Part Name
備 考
セクションNo.
PARTS LIST
Section No.
R
3
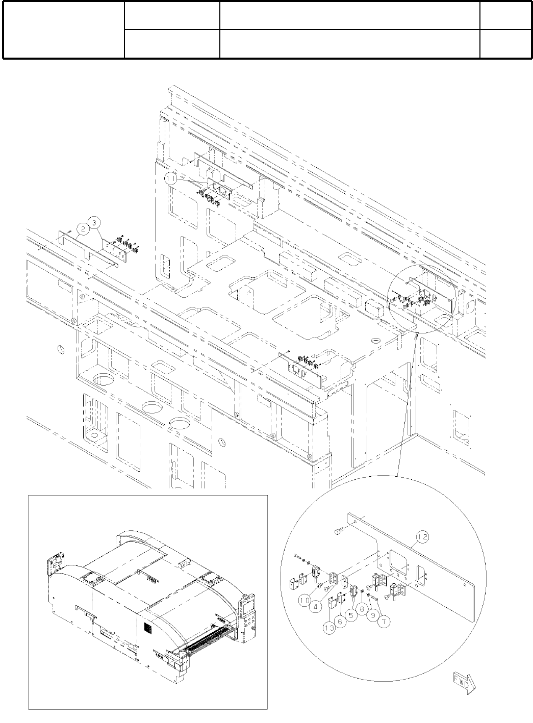
BRACKET
1
1 N210147100AE
BRACKET
1
2 N210147104AC
NUT-PLATE
2
3 N210143038AA
BRACKET
2
4 N210147105AA
COVER
1
5 N210147112AB
BRACKET
1
6 N210147106AB
COVER
1
7 N210147107AE
COVER
1
8 N210147834AA
COVER
1
9 N610124222AD
SWITCH
2
10 N510057874AA
S
HS5D-03RNP
JOINT
2
11 KXF06F4AA00 53015030-WM
SPACER
2
13 N510020146AA ASF-435E
CABLE-SUPPORT
2
14 N348TA1S8 TA1S8
BOLT
2
15 N510017536AA
SSS 003 Hexagon socket button head screw M4X8-10.9 A2J (Trivalent)
BRACKET
1
16 N210179792AA
S64
--
( KN610124114AA-09-2 )

17-C
フィーダーテーブルカバー(交換台車対応)Front側:NPM-W
Feeder Table Cover(Feeder Cart)Front:NPM-W
パーツレイアウト
Ki
t
N
o
.
キット
品番
Kit Name
キット名称
N610124114AA
セクションNo.
PARTS LAYOUT
Section No.
--
S65
( KN610124114AA-09-3 )

Ref
No.
Remarks
R
1
Q'ty
17-C
フィーダーテーブルカバー(交換台車対応)Front側:NPM-W
Feeder Table Cover(Feeder Cart)Front:NPM-W
イラスト
No.
Part No.
品 名品番 数量
R
2
パーツリスト
Kit N
o
.
キット品
番
Kit Name
キット名称
N610124114AA
Part Name
備 考
セクションNo.
PARTS LIST
Section No.
R
3
PLATE
2
2 N210147109AB
PLATE
1
3 N210147110AC
BLOCK
16
4 N210174185AA
SENSOR(350mm)
8
5 N610121533AB
FILTER
4
6 N510057978AA E39-E14
BOLT
32
7 XVE2B12FTC Hexagon socket head cap screw M2X12-12.9 SOB
WASHER
48
8 N510018477AA
Small round-plain washer 2 10H A2J (Trivalent)
WASHER
32
9 N510018324AA Spring lock washer No.2 2 S A2J (Trivalent)
SCREW
32
10 N510018253AA
Cross recessed Truss head machine screw M3X6-4.8 A2J (Trivalent)
PLATE
1
11 N210152124AB
PLATE
2
12 N210153729AA
SLIT
16
13 N210174144AA
S66
--
( KN610124114AA-09-3 )