RX-6_RX-6B_RX-6R-Rev10 - 第149页
- 144 - NOTE( 注記 ) # 01....FOR EN EN 用 #02....UNTIL M/C REV.A(TROLLEY BANK) マシン REV.A 以前 (トロリーバンク) #03....AFTER M/C REV.B(TROLLEY BANK) マシン REV.B 以降(ト ロリーバンク) #04....UNTIL M/C REV.A(TROLLEY BANK) マシン REV.A 以前 (トロリーバンク) U…

- 143 -
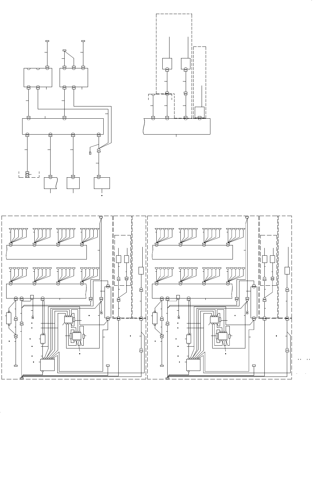
72.SYSTEM DIAGRAM(IFS-NX(CAN) & ISM/MES CO-OP)
SYSTEM DIAGRAM(IFS − NX(CAN)& ISM − MES CO − OP)
E B ANK CONNECT OR( F )
40133102_3- 4A ( CN1340)
I SM/ MES COOPERATI ON OPT I ON
I F S - NX( 2 D BA RCODE REA DER) OPT I ON
2D PROTECT MODULE
BARCODE READER( R)
BARCODE READER( F)
USB CH 4
USB CH 3
2- 3A
2/ 2
CPU B OARD
COVER
USB
USB CH 2
USB CH1
2- 4B
1/ 2
X5LAN4
COPL A CPU BOARD
DC I N R
X4
ETHERES- HUB
CN1451
CAN- BUS R
40133102_3- 3C ( CN1451)
DC I NPUT
CH4
CH3
CH1&CH2
ETHERNET
MPC- CAN( R)
DC I N F
FG
CN0008
RFI D PWR
CN8
EL ECTRI CAL UNI T
<TOP UNI T >
COVE R
IS
CN1351
CN1 0 9 7
CH4
CH3
CAN- BUS F
ETHERES- HUB
X2LAN
40133102_1- 1C ( I S)
40133102_3- 3A ( CN1351)
DC I NPUT
DC I NP UT
CH4
CH3
CH1&CH2
ETHERNET
MPC- CAN( F )
SWI T CHI NG HUB
X2
X1
X3
LAN1
CPU B OARD
NOTE 1 THESE P/N CHANGES WITH MACHINE REVISION (FIXED BANK ONLY).
"[MREV.C]"
RX- 6 MACHI NE REVI SI ON : BEFORE " C"
"[MREV.D]"
RX-6 MACHINE REVISION : "D"
NOTE 2
THESE P/ N CHANGES WI TH TROLL EY REVI SI ON ( TROL L EY BANK ONL Y) .
"[TREV.A]"
RX- 6 TROL LEY REVI SI ON : BEFORE " A"
"[TREV.B]"
RX- 6 TROLLEY REVI SI ON : " B"
CN1704
CN1710
CN4
CN10
NOTE2
FLUXER2_B
FLUXER2_A
FLUXER2
ROTA RY
FLUXER
OP T I ON
( SL I DE FL UXER FOR BANK)
OPT I ON
( ROTARY FL UXER)
FL UXER2
FLUX BANK
RT F L UX
FLUX RLY1
SWI TCH
MOT OR
SWI T CH
MOT OR
SLI DE FLUXER UNI T
BANK ID PCB(F)
CN1 75 7
BANK36 - 4 0
BANK3 1 - 3 5
BANK2 6 - 30
BANK21 - 25
BANK06 - 10
CP IN
CP OUT
3- 5 A
3- 5A
CN3 6 - 4 0
CN31- 35
CN2 6 - 3 0
CN21- 25
ELEC BANK 10 PCB( F)
CN3 5
CN3 4
CN3 3
CN3 2
CN3 1
CN4 0
CN3 9
CN3 8
CN3 7
CN3 6
CN2 5
CN2 4
CN2 3
CN2 2
CN2 1
CN3 0
CN2 9
CN2 8
CN2 7
CN2 6
NOT E2
CN16- 20
CN06- 10
CN11- 15
CN1 5
CN1 4
CN1 3
CN1 2
CN1 1
CN2 0
CN1 9
CN1 8
CN1 7
CN1 6
CN0 5
CN0 4
CN0 3
CN0 2
CN0 1
CN1 0
CN0 9
CN0 8
CN0 7
CN0 6
CN01- 05
RL 2
CN1758
PW01
CN17 59
OUT
IN
CP1 NOTE2
24VOUT
IN
NOTE 1 , 2
PS UNI T
IN
OUT
CP
CN4 3
CN1 7 4 3
CN4 1
CN1 74 1
CN4 2
BK44
CN1760
CN1 7 5 6
FG
NOTE2
NOTE2
BK42
RL Y
FG
FG
NOTE2
NOTE 2
ELEC BANK 10 PCB( F)
53 55 57 58
52 54 56
59
51
60
72
61
61
63 65
64
62 62
66
67 67 68
69 69
70 70
71
E BA NK T ROL L EY UNI T ( F )
IFS-NX(CAN) OPTION
( WI T H COVE R)
1 2
3
4
5
6
7
12
8 9
10
11
13 14
15 16
17
18
19 20
24
23
25
26
27 28
29
30
41 42
49
50
47 48
43
44
45
46
31
32 33 34 35
BANK0 1 - 0 5
BANK11 - 15
BANK16 - 20
36 37 38 39
E B ANK CONNECT OR( R)
40133102_3- 4C ( CN1440 )
39383736
BANK16 - 20
BANK11 - 15
BANK0 1 - 0 5
35343332
31
46
45
44
43
4847
50
49
41 42
30
29
27 28
26
25
23
24
19 20
17 18
15
16
13 14
10 11
8
9
12
7
6
5
4
3
1 2
( WI T H COVE R)
E BA NK T ROL L EY UNI T ( R)
IFS-NX(CAN) OPTION
ELEC BANK 10 PCB( R)
NOTE 2
NOTE2
FG
FG
RL Y
BK42
NOTE2
NOTE2
FG
CN1 7 5 6
CN1760
BK44
CN4 2
CN1 74 1
CN4 1
CN1 7 4 3
CN4 3
CP
OUT
IN
NOTE 1 , 2
PS UNI T
IN
24VOUT
CP1 NOTE2
IN
OUT
CN17 59
PW01
CN1758
RL 2
CN01- 05
CN0 6
CN0 7
CN0 8
CN0 9
CN1 0
CN0 1
CN0 2
CN0 3
CN0 4
CN0 5
CN1 6
CN1 7
CN1 8
CN1 9
CN2 0
CN1 1
CN1 2
CN1 3
CN1 4
CN1 5
CN11- 15
CN06- 10
CN16- 20
NOT E2
CN2 6
CN2 7
CN2 8
CN2 9
CN3 0
CN2 1
CN2 2
CN2 3
CN2 4
CN2 5
CN3 6
CN3 7
CN3 8
CN3 9
CN4 0
CN3 1
CN3 2
CN3 3
CN3 4
CN3 5
ELEC BANK 10 PCB( R)
CN21- 25
CN2 6 - 3 0
CN31- 35
CN3 6 - 4 0
3- 5B
3- 5 B
CP OUT
CP IN
BANK06 - 10
BANK21 - 25
BANK2 6 - 30
BANK3 1 - 3 5
BANK36 - 4 0
CN1 75 7
BANK ID PCB(R)
SLI DE FLUXER UNI T
MOT OR
SWI T CH
MOT OR
SWI TCH
FLUX RLY1
RT F L UX
FLUX BANK
FL UXER2
OPT I ON
( ROTARY FL UXER)
OP T I ON
( SL I DE FL UXER FOR BANK)
ROTA RY
FLUXER
FLUXER2
FLUXER2_A
FLUXER2_B
NOTE2
CN10
CN4
CN1710
CN1704
40 40
RL 1
21 22
RL 1
21 22

- 144 -
NOTE( 注記 ) #01....FOR EN EN 用
#02....UNTIL M/C REV.A(TROLLEY BANK) マシン REV.A 以前(トロリーバンク)
#03....AFTER M/C REV.B(TROLLEY BANK) マシン REV.B 以降(トロリーバンク)
#04....UNTIL M/C REV.A(TROLLEY BANK) マシン REV.A 以前(トロリーバンク)
UNTIL M/C REV.C(FIXED BANK) マシン REV.C 以前(固定バンク)
#05....AFTER M/C REV.B(TROLLEY BANK) マシン REV.B 以降(トロリーバンク)
AFTER M/C REV.D(FIXED BANK) マシン REV.D 以降(固定バンク)
REF.NO NOTE PART NO D E S C R I P T I O N
品 名
Qty
1 400-84841 EF ARRANGE CBL 1 BRACKET ASM
EFアレンジケーブル1ブラケット組
1
2
#01
400-84833 EF ARRANGE CBL 1 ASM
EFアレンジケーブル1組
1
3 HA-0052400-00 CIRCUIT PROTECTOR
サーキットプロテクタ
1
4 401-29279 EF CP OUTPUT CABLE ASM
EF CP出力ケーブル組
1
5 400-92656 EF CP INPUT CABLE ASM
電動フィーダーCP出力束線組
1
6 401-29249 E BANK SERIAL CABLE ASM
Eバンクシリアルケーブル組
1
7 401-74567 E BANK SERIAL RELAY CABLE ASM
Eバンクシリアル中継ケーブル組
1
8
#04
HX-0069200-00 POWER SUPPLY
電源
1
9
#05
HX-0071800-00 POWER SUPPLY
電源
1
10
#02
401-29250 E BANK PWR WIRE2 ASM
Eバンクパワーワイヤー2組
1
11
#03
401-58150 E BANK PWR WIRE2 ASM2
Eバンクパワー束線2組2
1
12 400-84840 ELEC BANK TOROLY FG WIRE ASM
ELECバンクトロリーFGワイヤー組
1
13
#02
HA-0052700-0A CIRCUIT PROTECTOR
サーキットプロテクタ
1
14
#03
HA-0052700-00 CIRCUIT PROTECTOR
サーキットプロテクタ
1
15
#02
401-29278 E BANK PWR WIRE ASM
Eバンク電源ケーブル組
1
16
#03
401-58151 E BANK PWR WIRE ASM2
Eバンクパワー束線組2
1
17
#02
401-29287 PS-RL2 WIRE2 ASM
PS−RL2ワイヤー2組
1
18
#03
401-58153 PS-RL2 WIRE2 ASM2
PS−RL2束線2組2
1
19
#02
401-29286 PS-RL2 WIRE1 ASM
PS−RL2ワイヤー1組
1
20
#03
401-58152 PS-RL2 WIRE1 ASM2
PS−RL2束線1組2
1
21 HB-0017900-00 TIMER
タイマー
1
22 HB-0012500-20 RELAY
リレーソケット
1
23 HB-0011000-00 RELAY
リレー
1
24 401-29288 RL1 WIRE-1 ASM
RL1 WIRE−1組
1
25 401-29289 RL1 WIRE-2 ASM
RL1 WIRE−2組
1
26 401-29290 RL1 WIRE-3 ASM
RL1 WIRE−3組
1
27
#02
401-29291 PS WIRE1 ASM
PS ワイヤー1組
1
28
#03
401-60151 PS WIRE1 ASM2
PSワイヤー1組2
1
29 401-74568 E BANK PWR WIRE3 ASM
Eバンクパワーワイヤー3組
1
30 401-69045 BANK ID PCB ASM
バンクID基板組
1
31 400-71185 ELEC BANK 10 PCB ASM
電動バンク10基板組
1
32 400-92647 EF IF CBL 1-5 ASM
電動フィーダーIF1−5組
1
33 400-92648 EF IF CBL 6-10 ASM
電動フィーダーIF6−10組
1
34 400-92649 EF IF CBL 11-15 ASM
電動フィーダーIF11−15組
1
35 400-92650 EF IF CBL 16-20 ASM
電動フィーダーIF16−20組
1
36 400-92651 EF IF CBL 21-25 ASM
電動フィーダーIF21−25組
1
37 400-92652 EF IF CBL 26-30 ASM
電動フィーダーIF26−30組
1
38 400-92653 EF IF CBL 31-35 ASM
電動フィーダーIF31−35組
1
39 400-92654 EF IF CBL 36-40 ASM
電動フィーダーIF36−40組
1
40 401-29292 PW01 WIRE ASM
PW01ワイヤー組
1
41
#02
401-51640 PS-24VRTN WIRE ASM
PS−24VRTNワイヤー組
1
42
#03
401-60150 PS-24VRTN WIRE ASM2
PSー24VRTN束線組2
1
43 401-33027 ROTARY FLUXER CABLE ASM
ロータリーフラクサケーブル組
1
44 401-22787 ROTARY FLUXER MOTOR CABLE ASM
ロータリーフラクサモーターケーブル組
1
45 401-22788 ROTARY FLUXER MOTOR ASM
ロータリーフラクサモーター組
1
46 401-22789 ROTARY FLUXER SWITCH ASM
ロータリーフラクサスイッチ組
1
47 401-07113 AC_MOTOR_D5N
ACモータ_D5N
1
48 HA-0005900-00 POWER SWITCH
電源スイッチ
1
49 401-33026 FLUXER BANK RELAY CABLE ASM
フラクサバンク中継ケーブル組
1
50 400-97610 FLUXER CYLINDER BANK UNIT ASM
フラクサシリンダバンクユニット組
1
51 HK-0651200-80 MODULAR KAPLA
モジュラーカプラ
1
52 HW-0018100-80 LAN CABLE
LANケーブル
1
53 401-23242 CPU BOARD
CPUボード
1
54 401-29282 RFID LAN CABLE (1.8M) ASM
RFID LANケーブル(1.8M)組
1
55 401-29242 EU P115 WIRE ASM(EN)
EU P115ワイヤー組(EN)
1
56 401-02830 LAN CABLE(CAT6)
LANケーブル(Cat6)
1
57 401-27537 PSU_UNIT_B(ST)
PSU_ユニット_B(ST)
1
58
#01
401-27563 PSU_UNIT_B(EN)
PSU_ユニット_B(EN)
1
59 401-74565 EU-HUB/MPC PWR RELAY CABLE ASM
EU−HUB/MPCパワー中継ケーブル組
1
60 400-73033 SWITCHING HUB
スイッチングハブ
1
61 401-67749 LAN CABLE ASM
LANケーブル組
1
62 401-69048 MPC-CAN
MPC−CAN
1
63 401-74563 MPC-CAN F SERIAL CABLE ASM
MPC−CAN Fシリアルケーブル組
1
64 401-29126 HUB-MTS SERIAL WIRE ASM(IS)
HUB−MTSシリアルワイヤー組(IS)
1
65 401-74564 MPC-CAN R SERIAL CABLE ASM
MPC−CAN Rシリアルケーブル組
1
66 401-23242 CPU BOARD
CPUボード
1
67 HW-0022600-40 SHIELDED CABLE
シールドケーブル
1
68 401-73481 USB REPEATER CABLE
USBリピーターケーブル
1
69 401-73482 USB BARCORD READER CABLE(4M)
USBバーコードリーダーケーブル(4M)
1
70 EZ-1458644-11 READER BAR CODE
バ−コ−ドリ−ダ(GD4430−BK)
1
71 401-29932 2D PROTECT MODULE(USB)
2Dプロテクトモジュール(USB)
1
72 401-74566 HUB/MPC POWER CABLE ASM
HUB/MPCパワーケーブル組
1

- 145 -
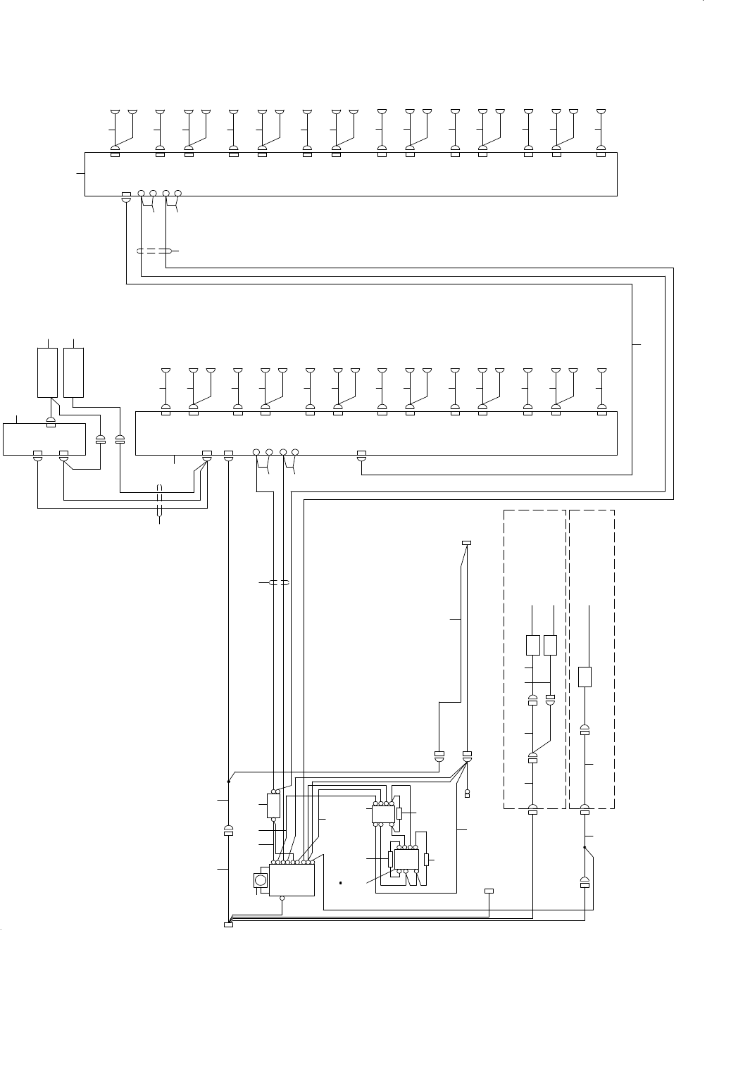
73.SYSTEM DIAGRAM(RF BANK)
SYSTEM DIAGRAM(RF BANK)
-V
-V
+V
CN1 6
CN39 FRONT 39 ( REAR 2)
CN38 FRONT 38 ( REAR 3)
CN1 5
CN37 FRONT 37 ( REAR 4)
CN1 4
CN33 FRONT 33 ( REAR 8)
CN32 FRONT 32 ( REAR 9)
CN1 3 CN3 1 F RONT 3 1 ( RE AR 1 0)
CN1 2
CN2 7 F RONT 2 7 ( REAR 1 4 )
CN2 6 F RONT 2 6 ( REAR 1 5 )
CN1 1
CN2 5 F RONT 2 5 ( REAR 1 6 )
CN1 0
CN2 1 F RONT 2 1 ( REAR 2 0 )
CN20 FRONT 20 ( REAR 21)
CN9
CN19 FRONT 19 ( REAR 22)
CN8
CN15 FRONT 15 ( REAR 26)
CN14 FRONT 14 ( REAR 27)
CN7
CN13 FRONT 13 ( REAR 28)
CN6
CN9 FRONT 9 ( REAR 32 )
CN8 FRONT 8 ( REAR 33 )
CN5
CN7 FRONT 7 ( REAR 34 )
CN4
CN3 FRONT 3 ( REAR 38 )
CN2 FRONT 2 ( REAR 39 )
CN3
CN1 F RONT 1 ( REAR 4 0 )
ELEC BANK
LOW SI DE
PCB ASM
CN1 6 CN4 0 FRONT 4 0 ( REAR 1 )
CN36 FRONT 35 ( REAR 5)
CN1 5
CN35 FRONT 35 ( REAR 6)
CN1 4
CN34 FRONT 34 ( REAR 7)
CN30 FRONT 30 (REAR 11)
CN1 3
CN29 FRONT 29 ( REAR 12)
CN1 2
CN28 FRONT 28 ( REAR 13)
CN24 FRONT 24 ( REAR 17)
CN1 0
CN23 FRONT 23 ( REAR 18)
CN9
CN22 FRONT 22 ( REAR 19)
CN1 8 F RONT 1 8 ( REA R 2 3 )
CN8
CN1 7 F RONT 1 7 ( REA R 2 4 )
CN7
CN1 6 F RONT 1 6 ( REA R 2 5 )
CN1 2 F RONT 1 2 ( REA R 2 9 )
CN6
CN11 FRONT 11 ( REAR 30)
CN5
CN1 0 F RONT 1 0 ( REA R 3 1 )
CN6 FRONT 6 ( REAR 35)
CN4
CN5 FRONT 5 ( REAR 36)
CN3
CN4 FRONT 4 ( REAR 37)
TB2
TB1
TB4
TB3
CN1
TB2
TB1
TB4
TB3
EMI T F
+24V
CN9
E BANK SENS E
E BANK SENS R
BANK I D
PCB ( RF)
ASM
EL EC BANK
UP SI DE
PCB ASM
CN1
CN2
CN11
CN1 7
CN1
FAN
FLUXER2_ B
FLUXER2 _A
FLUXER2
OPT I ON
( SLI DE FL UXER FOR BANK)
OP T I ON
(ROTARY FLUXER)
FL UXER2
FLUX BANK
RT F L UX
FLUX RLY1
SWI TCH
MOT OR
SWI TCH
MOT OR
SLI DE FL UXER UNI T
CN1 75 7
40133026
RL 2
CN1758
PW0 1
CN1759
OUT
IN
+V
IN
PS UNI T
CN1 7 6 0
CN1 7 5 6
FG
2
1
3
5
6
4
7
99
8 62
RL 1
10
12
11
13
14
15
21
16
19
17
1820 22
23
24
25
26
27 28
29
30 31
32 33 34 35 36 37 38 39 40 41 42 43 44
45
46
30 31
47
48
49 50 51 52 53 54
55 56 57 58 59 60 61