KE-3010A_KE-3020VA_KE-3020VRA-Rev15PDFA - 第147页
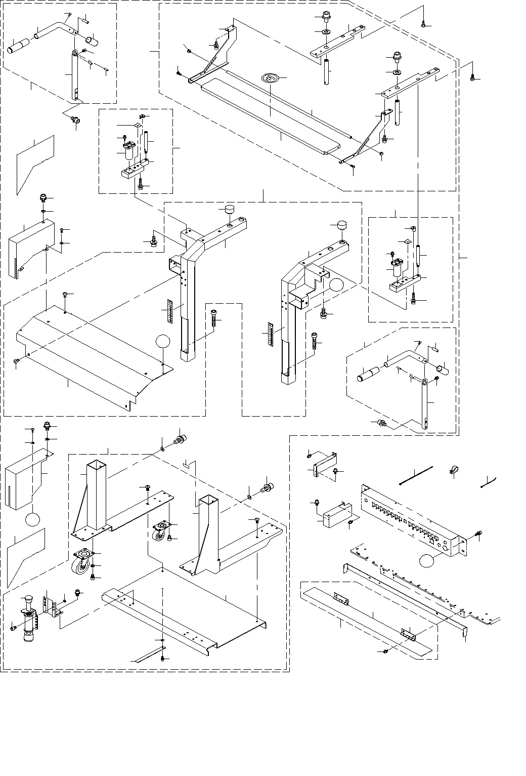
- 140 - NOTE( 注記 ) #01....FOR EN EN 用 REF.NO NOTE PART NO D E S C R I P T I O N 品 名 Qty 1 401-47461 CONNECTOR_BRACKET_ASM コネクタブラケット組 1 2 #01 401-47462 CONNECTOR_BRACKET_ASM_(EN) コネクタブラケット組(EN) 1 3 B4011-210-000 SPACER 基板…

- 139 -
70.M REPLACING OVERALL CHANGER TRUCK COMPONENTS(WITH CONNECTOR BRACKET)(2)
メカ一括交換台車関係(コネクタブラケット有り)(2)
21
20
19
22
1
2
8
9
8
15
14
13
12
11
10
9
7
6
5
3
4
17
23
16
18
24
26
27
25
28

- 140 -
NOTE( 注記 ) #01....FOR EN EN 用
REF.NO NOTE PART NO D E S C R I P T I O N
品 名
Qty
1 401-47461 CONNECTOR_BRACKET_ASM
コネクタブラケット組
1
2
#01
401-47462 CONNECTOR_BRACKET_ASM_(EN)
コネクタブラケット組(EN)
1
3 B4011-210-000 SPACER
基板スペーサ
(4)
4 NM-6030003-SC NUT M3X0.5 TYPE3
六角ナット M3X0.5 3種
(4)
5 SM-4020801-SC SCREW M2 X 8
なべ小ねじ M2 L=8
(4)
6 HX-0029400-00 FIXED BASE
固定ベース
(1)
7 SM-4030601-SC SCREW M3X0.5 L=6
なべ小ねじ M3X0.5 L=6
(1)
8 PJ-3010651-06 KNIFE UNION
メスユニオン
(2)
9 E2904-700-000 SOCKET
ソケット
(2)
10 PJ-2300061-00 UNION 06
隔壁用ユニオン 06
(1)
11 PJ-3050600-04 TEE
チーズ
(1)
12 PJ-0320090-05 NIPPLE
エアカプラニップル
(1)
13 E2642-721-000 CONNECTOR NO. LABEL
コネクタNO.ラベル
(1)
14 BT-0600400-EC URETHANE TUBE BLUE 6X4
ポリウレタン チューブ 青 6X4
(1.3)
15 EA-9500B01-00 CABLE BAND
束線バンド
(4)
16 E8615-715-0A0 FEEDER BANK CIRCUIT BOARD ASM.
フィーダバンク基板組
(2)
17 E8618-721-0A0 FEEDER I/F BOARD ASM.
フィーダI/F基板組
(1)
18 E2508-729-000 CONNECTOR BRACKET
コネクタブラケット
(1)
19
#01
HN-0017900-0B NOISE FILTER
ノイズフィルタ
(2)
20
#01
HN-0017900-0D FERRITE CLAMP
フェライトクランプ
(4)
21
#01
HK-0429900-8A CAP
キャップ
(1)
22
#01
HN-0014900-00 CLAMP FILTER(L)
クランプフィルタ(L)
(3)
23 SM-4860601-SC SCREW M2.6 L=6
なべ小ねじ M2.6 L=6
(16)
24 SM-4031201-SC SCREW M3 X 12
なべ小ねじ M3X0.5 L=12
(4)
25 HB-0015400-10 RELAY
リレーソケット
(1)
26 HB-0015400-00 RELAY
リレー
(1)
27 SM-6031402-TN SCREW M3X0.5 L=8
六角穴ボルト
(1)
28 401-46434 RFID BANK CABLE ASM
RFIDバンクケーブル組
(1)

- 141 -
71.M REPLACING OVERALL CHANGER TRUCK COMPONENTS(WITHOUT CONNECTOR BRACKET)
メカ一括交換台車関係(コネクタブラケット無し)
78
65
69
69
67
69
67
47
70
1
61
61
82
82
74
65
69
68
66
62
63
64
70
68
66
60
59
60
59
50
50
36
28
B
48
A
30
21
64
63
62
75
73
76
71
57
57
56
54
55
55
53
53
52
51
49
43
35
34
32
42
40
44
33
41
44
29
38
39
31
37
23
26
26
25
22
24
24
27
27
79
93
80
77
74
73
18
19
17
91
88
89
90
92
87
87
86
86
84
85
B
2
81
83
A
75
76
72
45
46
45
46
14
16
15
13
12
11
10
7
9
8
6
6
5
4
3
20
23
58