KE-3010A_KE-3020VA_KE-3020VRA-Rev15PDFA - 第69页
- 62 - NOTE( 注記 ) #01....TYPE M M 仕様 #02....TYPE L L 仕様 *INSTALLATION POSIT ION AND DIRECT ION VARY IF THE PWB T RANSFER REFERENCE IS DIFFE RENT. 基板搬送基準が異なると取付位置、方向が変わります。 REF.NO NOTE PART NO D E S C R I P T I O N 品 名 Qt…

- 61 -
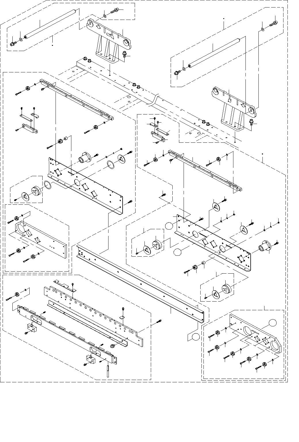
31.PWB CONVEYOR COMPONENTS(4)
基板搬送関係(4)
33
28
32
10
19
3
1
2
23
17
13
13
12
9
10
11
30
B
A
A
44
4
17
18
14
15
16
14
18
16
15
9
11
6
7
8
5
21
22
5
21
22
20
38
39
38
39
41
B
40
36
34
40
42
43
43
41
35
37
43
43
42
45
29
31
31
26
25
24
25
24
26
26
24
25
26
24
25
26
24
25

- 62 -
NOTE( 注記 ) #01....TYPE M M 仕様
#02....TYPE L L 仕様
*INSTALLATION POSITION AND DIRECTION VARY IF THE PWB TRANSFER
REFERENCE IS DIFFERENT.
基板搬送基準が異なると取付位置、方向が変わります。
REF.NO NOTE PART NO D E S C R I P T I O N
品 名
Qty
1
#02
401-14267 RAIL_PLATE_RR_ASM_L
レールプレートRR組L
1
2
#01
401-46978 RAIL_PLATE_RR_ASM
レールプレートRR組
1
3 400-00828 CONVEYOR RAIL
コンベアレール
(1)
4 SB-8160001-00 BEARING
ころがり軸受
(2)
5 SM-4040855-SC SCREW
なべ小ねじ M4 L=8
(2)
6 E2089-721-0A0 CONVEYOR PULLEY B ASM.
搬送プーリB組
(1)
7 E2055-721-000 PULLEY SPACER
プーリスペーサ
(1)
8 SM-4042501-SC SCREW M4X0.7 L=25
なべ小ねじ M4X0.7 L=25
(1)
9 WP-0430801-SC WASHER M4
平座金 M4
(2)
10 WS-0410002-KN SPRING WASHER M4
ばね座金 M4
(2)
11 NM-6040001-SC NUT M4X0.7 TYPE1
六角ナット M4X0.7 1種
(2)
12 SM-6041002-TN BOLT
六角穴ボルト
(8)
13 400-00839 DRIVE PULLEY R ASM
ドライブプーリ R組
(2)
14 400-00840 DRIVE PULLEY R
ドライブプーリ R
(1)
15 E2160-721-000 PULLEY FLANGE
プーリフランジ
(1)
16 SL-6030892-TN SCREW M3 L=8
座金付き六角穴ボルト M3 L=8
(3)
17 SL-6030892-TN SCREW M3 L=8
座金付き六角穴ボルト M3 L=8
(6)
18 E2160-721-000 PULLEY FLANGE
プーリフランジ
(2)
19 SL-6031492-TN SCREW M3 L=14
座金付き六角穴ボルト M3 L=14
(4)
20 SL-6041092-TN SCREW M4 L=10
座金付き六角穴ボルト M4 L=10
(2)
21 E2111-715-0A0 CONVEYOR PULLEY ASM.
搬送プーリ(組)
(2)
22 WP-0430800-SC WASHER M4
平座金小形丸 M4
(2)
23 400-01062 SUPPORT PLATE RR ASM(L)
サポートプレートRR組(L)
(1)
24 E2111-715-0A0 CONVEYOR PULLEY ASM.
搬送プーリ(組)
(7)
25 WP-0430800-SC WASHER M4
平座金小形丸 M4
(7)
26 SM-4040855-SC SCREW
なべ小ねじ M4 L=8
(7)
27 400-01069 SUPPORT PLATE RR(L)
サポートプレートRR(L)
(1)
28
#01
401-47008 PWB_GUIDE_M
PWBガイド_M
(1)
29 E2046-725-000 PWB INNER
PWBインナ
(1)
30 400-01061 RAIL PLATE RR(L)
レールプレートRR(L)
(1)
31
#01
SL-6030892-TN SCREW M3 L=8
座金付き六角穴ボルト M3 L=8
(4)
32
#01
401-47007 CONVEYOR_RAIL_M
コンベアレール_M
(1)
33
#01
SM-6040802-TN SCREW M4X0.7 L=8
六角穴ボルト M4X0.7 L=8
(1)
34 400-01066 RAIL STAND RR(L)
レールスタンドRR(L)
1
35 SL-6052092-TN SCREW M5 L=20
座金付き六角穴ボルト M5 L=20
2
36 400-01065 RAIL STAND RL(L)
レールスタンドRL(L)
1
37 SL-6052092-TN SCREW M5 L=20
座金付き六角穴ボルト M5 L=20
2
38
#02
400-01002 GUIDE SHAFT ASM(L)
ガイドシャフト 組(L)
4
39
#01
400-00845 GUIDE SHAFT ASM
ガイドシャフト組
4
40 E2209-725-000 GUIDE SHAFT
ガイドシャフト
(1)
41 SL-6051292-TN SCREW M5 L=12
座金付き六角穴ボルト M5 L=12
(1)
42 SL-6052042-TN SCREW
座金付き六角穴ボルト
(1)
43 WP-0501046-SC WASHER 5 X 14 X 1
平座金 5X14X1
(2)
44 SL-6042092-TN SCREW M4 L=20
座金付き六角穴ボルト
4
45 401-46998 CONVEYOR_SUPPORT_PLATE
コンベアサポートプレート
1

- 63 -
32.PWB CONVEYOR COMPONENTS(5)
基板搬送関係(5)
42 43
40
41
35
36
1
21
21
21
18
19
4
5
26
3
14
11
7
6
30
32
31
26
30
32
31
26
40
41
20
20
38
39
37
2
31
32
30
33
34
22
24
23
25
26
28
27
14
10
13
17
24
17
6
33
34
8
10
28
8
22
22
11
7
29
23
25
33
34
15
16
12
15
16
24
23
25
26
26
9
27
9
28
27
12