CP-642ME-06 - 第184页
36.カートリッジスタンド(WCY) 36.Cartridge stand(WCY) 番号 図番 & コード番号 個数 品名 規格 備考 材質 No. Drg.No. & Code No. QTY Description Rating Remarks Materials 1 AWCY5100 1 STAND スタンド OT 2 WCY0150 1 STAND スタンド FE 3 WCY0140 12 COVER 蓋…

CP-642ME PARTS LIST ver06
36 - 1
36.カートリッジスタンド(WCY)
36.Cartridge stand(WCY)
36.カートリッジスタンド(WCY)
36.Cartridge stand(WCY)
タテx173.205
Ref.31-1
Ref.31-1
Ref.31-1
Ref.33-7
Ref.19-4
208
176
165
175
161
175
161
175
161
183
162
176
167
175
161
13
13
B
A
139
26
A
x2
4
3
7
3
4
3
4
4
3
4
3
4
3
4
3
4
3
4
3
4
3
4
3
4
3
2
13
14
15
13
14
15
13
14
17
17
17
19
17
11
18
15
9
10
11
12
9
10
11
12
9
10
11
12
9
10
11
12
9
10
11
12
9
10
11
16
8
7
6
5
8
8
6
5
6
5
7
13
14
15
A
A
1

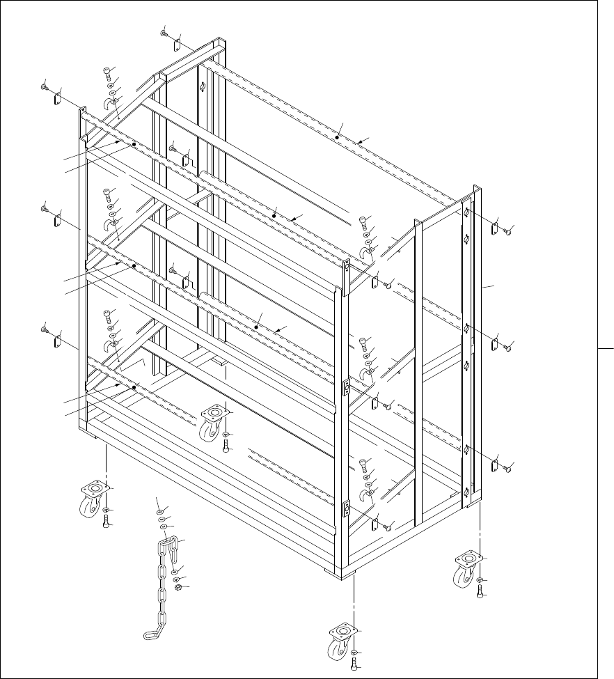
36.カートリッジスタンド(WCY)
36.Cartridge stand(WCY)
番号 図番 & コード番号 個数 品名 規格 備考 材質
No. Drg.No. & Code No. QTY Description Rating Remarks Materials
1 AWCY5100 1 STAND スタンド OT
2 WCY0150 1 STAND スタンド FE
3 WCY0140 12 COVER 蓋 FE
4 K51711 24 SCREW, TRUSS 小ネジ トラス FE
5 WCY0160 3 SHAFT シャフト FE
6 WCY0170 3 TUBE チューブ OT
7 WCY0180 3 SHAFT シャフト FE
8 WCY0190 3 TUBE チューブ OT
9 GPJ7231 6 BAND バンド FE
10 W1044A 6 WASHER, FLAT ワッシャ 平 4W-5 FE
11 W1023A WASHER, LOCK ワッシャ スプリング 5M/M FE
12 H5299A BOLT, HEX SOCKET ボルト 六角穴 M5X12L FE
13 K2024R 4 CASTER キャスタ No.105-N OT
14 W1024A WASHER, LOCK ワッシャ スプリング 6M/M FE
15 H5320A BOLT, HEX SOCKET ボルト 六角穴 M6X10L FE
16 H5304A
BOLT, HEX SOCKET
ボルト 六角穴
M05X025 FE
17 W1050A WASHER, FLAT ワッシャ 平 5M/MX1.0X10(1W-5) FE
18 N1082A
NUT, HEX
ナット 六角
M5 P=0.8 FE
19 T2043Y
CHAIN
チェーン TM-103SUS-11 L=350(C-18) OT
CP-642ME PARTS LIST ver06
36 - 2
36.カートリッジスタンド(WCY)
36.Cartridge stand(WCY)

CP-642ME PARTS LIST ver06
37 - 1
37.カートリッジラック(WCY)
37.Cartridge rack(WCY)
37.カートリッジラック(WCY)
37.Cartridge rack(WCY)
タテx173.205
Ref.31-1
Ref.31-1
Ref.31-1
Ref.33-7
Ref.19-4
208
176
165
175
161
175
161
175
161
183
162
176
167
175
161
13
13
B
A
139
26
A
x2
10
6
10
15
9
8
7
20
16
20
19
18
17
21
15
11
14
13
12
4
3
2
5
1
5
WCY0020 WCY0030 WCY0040
AWCY4700
Stores 14 W44mm
W44mm用 14本収納
AWCY4600
Stores 19 W32mmPaper
32mm紙用 16本収納
AWCY4300
Stores 19 W32mm
Stores 34 W8,12mm
32mm用 19本収納
AWCY4200
Stores 22 W24mm
24mm用 22本収納
AWCY4000
8,12mm共用 34本収納
16mm用 27本収納
Stores 27 W16mm
AWCY4100
26
22
28
26
25
24
27
23
32
32
31
33
33
33
33
29
30