CP-642ME-06 - 第197页
40.2.フェンス(オプション)(WAF) 40.2.Fence(Option)(WAF) 番号 図番 & コード番号 個数 品名 規格 備考 材質 No. Drg.No. & Code No. QTY Description Rating Remarks Materials 41 H5340A BOLT, HEX SOCKET ボルト 六角穴 M8X15L FE 42 K5215A SCREW, TRUSS 小ネシ…

CP-642ME PARTS LIST ver06
40 - 2 - 1
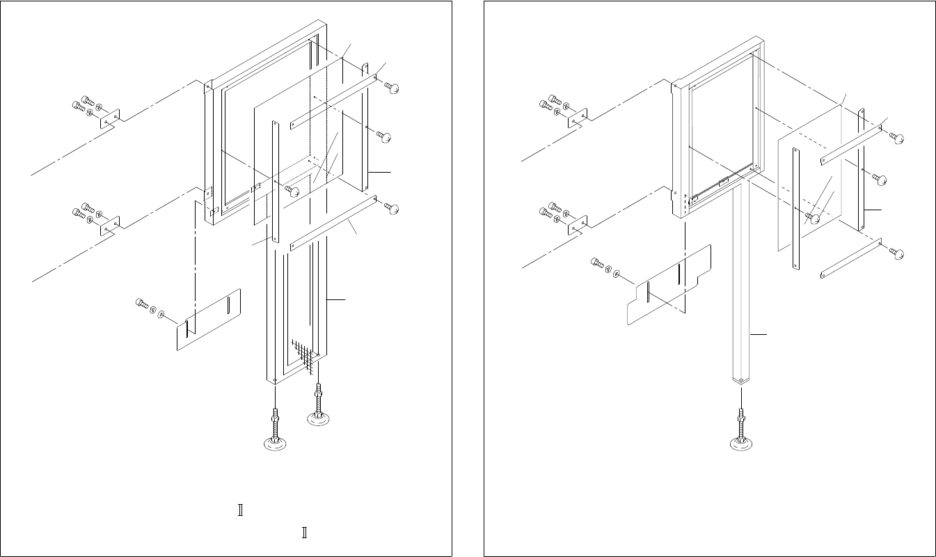
40.2.フェンス(オプション)(WAF)
40.2.Fence(Option)(WAF)
40.2.フェンス(オプション)(WAF)
40.2.Fence(Option)(WAF)
タテx173.205
Ref.31-1
Ref.31-1
Ref.31-1
Ref.33-7
Ref.19-4
208
176
165
175
161
175
161
175
161
183
162
176
167
175
161
13
13
B
A
139
26
A
x2
149
143
46
41
41
46
143
48
44
53
145
42
148
146
147
148
144
147
42
42
119
42
42
42
113
118
116
118
117
116
115
46
41
41
46
115
119
48
44
53
114
オプション(GL−541E用継ぎフェンス)
Option(Connecting fence for GL−541E)
オプション(GL− 用継ぎフェンス)
Option(Connecting fence for GL− )

40.2.フェンス(オプション)(WAF)
40.2.Fence(Option)(WAF)
番号 図番 & コード番号 個数 品名 規格 備考 材質
No. Drg.No. & Code No. QTY Description Rating Remarks Materials
41 H5340A BOLT, HEX SOCKET ボルト 六角穴 M8X15L FE
42 K5215A SCREW, TRUSS 小ネジ トラス M5X10L FE
44 W1023A WASHER, LOCK ワッシャ スプリング 5M/M FE
46 W1025A WASHER, LOCK ワッシャ スプリング 8M/M FE
48 W1044A WASHER, FLAT ワッシャ 平 4W-5 FE
53 H5298A BOLT, HEX SOCKET ボルト 六角穴 M5X10L FE
113 WAF0651 1 FENCE フェンス (Option)(L=430) FE
114 WAF0660 1 COVER カバー (Option)(H=900∼965) FE
115 WAF0620 2 JOINT ジョイント (Option) FE
116 GXZ2240 2 RETAINER, COVER 押え カバー AL
117 AGXZ8040 1 COVER カバー GXZ2300+WWM0210 OT
118 GXZ2310 2 RETAINER, COVER 押え カバー AL
119 H5145H 2 BOLT, LEVELING ボルト レベリング TM-257-No3 FE
143 WAF0620 2 JOINT ジョイント FE
144 WAF0670 1 FENCE フェンス FE
145 WAF0680 1 COVER カバー FE
146 AWAF8530 1 COVER カバー WAF0690+WWM0210 OT
147 WAF0700 2 RETAINER, COVER 押え カバー AL
148 GXZ3020 2 RETAINER, COVER 押え カバー AL
149 H5145H 1 BOLT, LEVELING ボルト レベリング ・ FE
CP-642ME PARTS LIST ver06
40 - 2 - 2
40.2.フェンス(オプション)(WAF)
40.2. Fence(Option)(WAF)

CP-642ME PARTS LIST ver06
41 - 1 - 1
41.1.英国向フェンス(オプション)(WAF)
41.1.UK fence(Option)(WAF)
41.1.英国向フェンス(オプション)(WAF)
41.1.UK fence(Option)(WAF)
タテx173.205
Ref.31-1
Ref.31-1
Ref.31-1
Ref.33-7
Ref.19-4
208
176
165
175
161
175
161
175
161
183
162
176
167
175
161
13
13
B
A
139
26
A
x2
K
L
48
67
48
53
44
44
53
87
43
47
66
24
68
23
73
52
43
47
54
43
D
P
43
53
C
O
N
M
54
43
52
44
53
24
20
73
36
21
47
43
43
44
37
48
48
44
23
73
86
66
67
43
52
68
48
72
47
87
47
87
65
88
89
91
72
22
53
44
48
43
24
23
54
43
47
26
45
50
25
50
45
B
A
T
18
19
101
18
19
18
19
19
18
17
101
17
19
143
142
G
J
R
S
H
E
125
141
42
42
13
42
42
64
42
58
13
42
42
55
55
56
64
59
125
42
13
42
42
64
64
124
61
42
122
42
121
42
126
121
64
42
57
42
62
56
61
42
70
61
57
124
123
42
64
Q
B
36
43
95
11
45
38
31
44
37
15
50
50
16
40
40
45
38
49
9
2
10
50
40
38
45
49
38
45
49
46
51
115
116
119
117
118
43
94
36
44
29
45
105
94
43
53
36
93
44
114
103
40
113
53
33
102
102
36
40
104
105
43
36
50
12
45
50
T
43
12 50
43
36
40
50
40
12
41
27
46
T
42
44
48
100
49
45
38
76
46
120
46
41
41
46
80
43
36
81
53
77
75
111
78
71
42
111
78
79
71
46
41
41
46
41
46
41
71
76
46
41
41
46
6
A
R
K
N
N
M
M
P
5
92
6
42
37
13
O
LL
42
45
11
60
44
36
31
95
43
38
E
44
13
37
71
98
41
46
76
46
46
46
43
99
41
42
36
38
42
78
111
49
45
111
41
42
78
100
48
44
53
76
46
41
46
41
82
41
74
77
71
71
79
41
46
41
46
80
1
T
27
46
41
115
119
118
116
117
S
C
S
D
G
M
N
P
N
K
M
L
O
H
J
T
13
5
6
42
13
42
42
6
92
43
36
29
44
53
97
97
43
36
43
36
60
120
Q
12
Option