D3Wiring Diagram__N7205A106B - 第24页
在线预览 D3Wiring Diagram__N7205A106B PDF 文档。

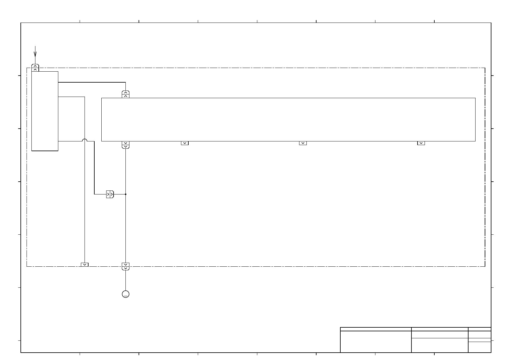
1.
CONTROL BOX DIAGRAM
コントロール BOX 配線図
1-1 CPU BOX
CPU BOX
EJM6DB-10-101-00

M
IN AC200V
CN1
ATX POWER
-T111
P2 CN4
CN4
-G103
FAN
-K304
BUS BOARD
NBC-7153-01
J1
J2
1
1
1
1 1
1
P1
P3 P3
Panasonic Factory Solutions Co.,Ltd. パナソニック ファクトリーソリューションズ株式会社
Name
Drawing No.
Loc. No.
F4K1020-05A
1
2 3 4 5 6 7 8
A
B
C
D
E
F
1 2 3 4 5 6 7 8
A
B
C
D
E
F
Page. No.
CPU_BOX
(BLOCK diagram)
N610067516+002AC
P002
2