D3Wiring Diagram__N7205A106B - 第286页
在线预览 D3Wiring Diagram__N7205A106B PDF 文档。

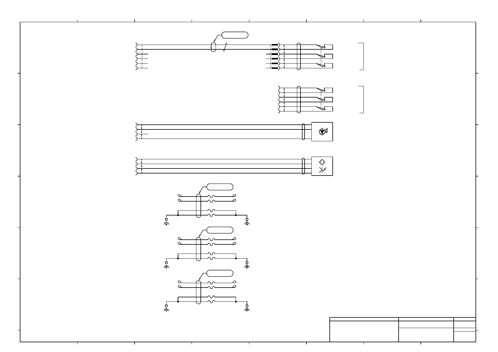
Transportation opening sensor (projection)
Transportation opening sensor
(Receive)
177900-1
B1020TR
4
3
2
1
177900-1
B1020R
4
3
2
1
-B1020T
BN
BK
BU
-B1020
BN
PK
BK
BU
Left (-Front) side
Left (-Rear) side
→ P003 - B1020P
→ P007 - B1020TP
-S311
BU
BU/WH
BN
BN/WH
OG
OG/WH
Front side
Conveyor Cover SW
177901-1
S311R
6
5
4
3
2
1
Opening
sensor
L1(1),L2(4)
(Dual mode)
L-(2),L-(3)
(Quad mode)
N610126546AC
→ P003 - 1S311P
177909-1
S311P
1
2
3
4
5
6
BK/WH
BK
2464C(BPF)VVP AWG#24×1P-B
1
2
3
1S311R
177901-1
4
5
6
177901-1
S312R
6
5
4
3
2
1
Rear side
Conveyor Cover SW
Opening
sensor
L1(1),L2(4)
(Dual mode)
L-(2),L-(3)
(Quad mode)
→ P003 - S312P
P24
G24
G24
P24
P24
L_OPEN
G24
WH
BK
RD
GN
R1.25-4 R1.25-4
L1FG L1FG
N610126547AA
WH
BK
RD
GN
R1.25-4 R1.25-4
L2FG L2FG
N610126548AA
WH
BK
RD
GN
R1.25-4 R1.25-4
L2FG L2FG
N610126548AA
CONNECTOR
BRACKET
L1(1)Left (-Rear) side
Moving rail
CONNECTOR
BRACKET
L2(4)Left (-Rear) side
Moving rail
CONNECTOR
BRACKET
L2(4)Left (-Front) side
Moving rail
-S312
BU
BU/WH
BN
BN/WH
OG
OG/WH
Panasonic Factory Solutions Co.,Ltd. パナソニック ファクトリーソリューションズ株式会社
Name
Drawing No.
Loc. No.
F4K1020-05A
1
2 3 4 5 6 7 8
A
B
C
D
E
F
1 2 3 4 5 6 7 8
A
B
C
D
E
F
Page. No.
Flex Conveyor ST L Control:NPM-D
(Opening sensor)
N610126533+008AC
P008
2
2464-1061/ⅡA(PF) LF 1P×24AWG
2

4.
LOAD WIRING DIAGRAM OPTION
負荷配線図 オプション
4-17 MULTIFUNCTIONAL TRANSFER UNIT
汎用型転写ユニット
EJM6DB-10-417-00