SIPLACE Machine de placement 80 S FG - 第352页
Notice d’exploitation SIPLACE 80 S/F/G 8 Distribution des composants Edition 07/97 Version du logiciel à partir d e SR010.xx 8.6 Changeur de plateaux alvéolés 8 - 27 Légende d e Fig. 8.6.5 Avec clé mâ le coud ée pour vis…

8 Distribution des composants Notice d’exploitation SIPLACE 80 S/F/G
8.6 Changeur de plateaux alvéolés Edition 07/97 Version du logiciel à partir de SR010.xx
8 - 26
8.6.9 Installation du changeur de plateaux alvéolés
●
Avant d'exploiter le CP dans la machine, retirez l'éclairage du module de vision des composants.
PRUDENCE
∆
!
Grâce à l'adjonction de roues, le CP peut être positionné et déplacé sur la machine. Les roues ne sont cepen-
dant pas conçues pour convoyer le CP sur des parcours plus longs. RISQUE DE CULBUTAGE ! Pour le trans-
port, utilisez le bon chariot élévateur (a partir de l‘article n° 00123141-01).
●
Positionnez avec prudence le CP à l'emplacement prévu de la machine.
Les chevilles d'ancrage du CP doivent impérativement se trouver au-dessus des rainures d'ancrage de la
SIPLACE.
●
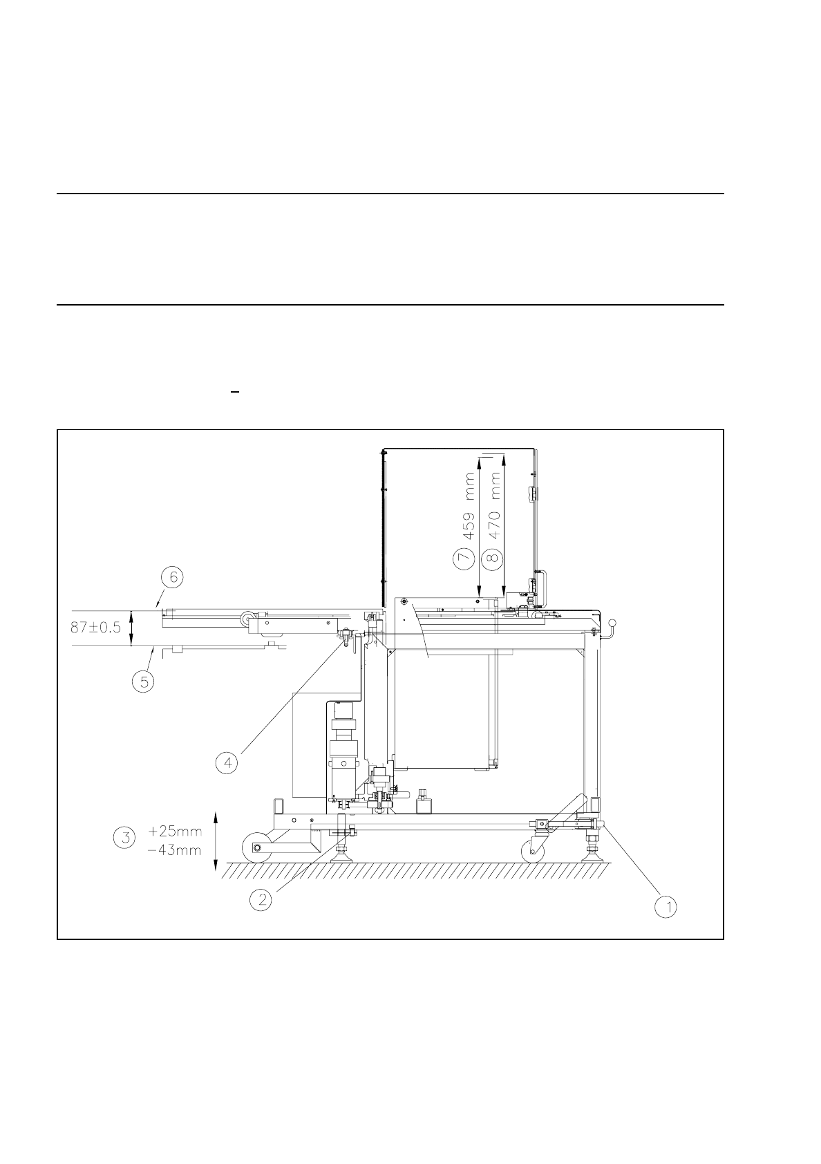
Vérifiez la dimension (87 + 0,5 mm), prise du bord inférieur du porteur de magasin au bord supérieur de la
table des composants (voir illustration 8.6.5)
Fig. 8.6.5 Installer le CP

Notice d’exploitation SIPLACE 80 S/F/G 8 Distribution des composants
Edition 07/97 Version du logiciel à partir de SR010.xx 8.6 Changeur de plateaux alvéolés
8 - 27
Légende de
Fig. 8.6.5
Avec clé mâle coudée pour vis à six pans creux
AUF (EN HAUT) /AB (EN BAS) Vis de serrage
Course Cheville d’ancrage
Bord supérieur de la barre magn. de la table des comp.
Bord inférieur du porteur de magasin
Course nominale (459 mm) Position de remplissage (470 mm)
●
Desserrez les vis de serrage des pieds (voir illustration 8.6.5) et tournez le CP vers le bas à l'aide d'une clé
coudée pour vis à six pans creux à bille de 10 mm jusqu'à ce que la cheville d'ancrage s'enclenche. A ce
sujet, le CP doit impérativement être aligné avec le niveau à bulle d'air de la machine monté sur le CP.
●
Bloquez les vis de serrage et vérifiez à nouveau le niveau à bulle d'air de la machine.
●
Branchez à nouveau l'éclairage sur le module de vision des composants.
8.6.10 Données techniques
Tab. 8.6.1
Changeur de plateaux alvéolés
Longueur environ 1475 mm
Largeur environ 620 mm
Hauteur environ 1355 mm
Poids environ 240 kg
Taille du magasin 238 mm x 338 mm
Course verticale 470 mm
Course horizontale 730 mm
Espacement 17 mm
Contenu du stockeur
28 porteurs de magasin pour logement
des magasin de plateau
Porteurs de magasin 260 mm x 360 mm
Poids maximal du stockeur 50 kg
Pression de contact < 25 N/cm
2
Temps de changement (magasin/magasin)
≤
3 sec.

8 Distribution des composants Notice d’exploitation SIPLACE 80 S/F/G
8.6 Changeur de plateaux alvéolés Edition 07/97 Version du logiciel à partir de SR010.xx
8 - 28