SIPLACE Machine de placement 80 S FG - 第397页
9 Maintenance Notice d’exploitati on SIPLA CE 80 S/F/G 9.4 Portiques Edition 07/97 Version du logiciel à partir de SR.010.xx 9 - 38 REMARQUE: Les surfac es de fri ction des blocs d e friction do ivent impérati vemen t de…

Notice d’exploitation SIPLACE 80 S/F/G 9 Maintenance
Edition 07/97 Version du logiciel à partir de SR.010.xx 9.4 Portiques
9 - 37
9.4 Portiques
NOTA
Exécutez tous les travaux d‘entretien sur les portiques des automates SIPLACE 80S et 80F de la même
manière. Par principe, n‘employez pas d‘huile en flacon pulvérisateur et ne déposez une pellicule d‘huile que
sur les emplacements désignés à cet effet (voir Fig. 9.4.1).
L‘automate SIPLACE 80F est une machine à portique unique. Son portique X / Y est appelé
portique 1. Le rail de guidage Y et l‘échelle Y sont disposés sur cet automate du côté sortie, le rail avec la sur-
face de friction et le bloc de friction avec le roulement à billes du côté entrée.
9.4.1 Surfaces de friction
DANGER
O
O
O
N‘exécutez aucun travail de nettoyage avec de l’alcool à l‘air libre ou à proximité immédiate du feu !
9.4.1.1 Nettoyer les rails de guidage des axes du portique Y, les surfaces de
friction et roulements à billes du bloc de friction
DANGER
O
O
O
Débranchez l‘automate par l‘interrupteur principal et coupez son alimentation par le réseau.
●
Ouvrez les capots de protection.
●
Nettoyez, sur l‘automate 80S, le rail de guidage Y des portiques 1 et 2 (voir Fig. 9.4.2) ou, sur l‘automate
80F, le rail de guidage Y du portique 1(rail du côté sortie) ainsi que le rail avec la surface de friction (rail du
côté entrée).
●
Frottez à fond la totalité de la longueur et l‘ensemble du pourtour des rails avec un chiffon imbibé d‘alcool.
●
A cet effet, déplacez le portique ou les portiques manuellement, de façon à atteindre tous les emplace-
ments du ou des rail(s) de guidage et du rail avec la surface de friction.
●
Nettoyez de la même manière l‘ensemble du pourtour du roulement à billes dans le bloc de friction.
●
Prenez un chiffon sec, non pelucheux sur lequel vous déposerez une goutte d‘huile pour montres de
poche. Essuyez les surfaces des rails avec ce chiffon.
●
Versez quelques gouttes d‘huile pour montres de poche sur un chiffon propre et déposez ainsi une fine
pellicule d‘huile sur les surfaces latérales du roulement à billes du rail de guidage Y (voir Fig. 9.4.1).
●
Par ailleurs, déposez une fine pellicule d‘huile sur les surfaces se trouvant à l‘extérieur de la zone de
déplacement du portique (voir Fig. 9.4.1).

9 Maintenance Notice d’exploitation SIPLACE 80 S/F/G
9.4 Portiques Edition 07/97 Version du logiciel à partir de SR.010.xx
9 - 38
REMARQUE:
Les surfaces de friction des blocs de friction doivent impérativement demeurer exemptes de graisse et d‘huile
car, sinon, on n‘obtiendra plus le comportement dynamique spécifié des axes.
Fig. 9.4.1 Graissage ou huilage du rail de guidage Y
●
Déplacez l‘axe X des portiques 1 et 2 plusieurs fois et essuyez le surplus d‘huile sur les rails de guidage Y.
REMARQUE
Les échelles Y, les surfaces de friction des blocs de friction et le pourtour des roulements à billes des
blocs de friction doivent impérativement être exempts de graisse.
●
Sur l‘automate SIPLACE 80S, écartez, pour finir, les portiques l‘un de l‘autre, de sorte qu‘aucun des axes
ne se trouve dans la zone de fonctionnement du barrage photoélectrique de l‘actionneur anti-crash.
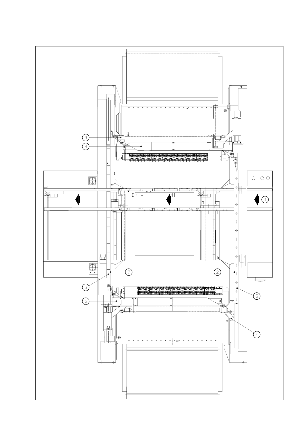
Légende de la
Fig. 9.4.2
(SIPLACE 80S)
1 Sens de convoyage CI 2 Echelle de mesure de l’axe Y, portique 2
3 Rail de guidage, axe Y, portique 2 4 Coulisseau avec roulement à billes
5 Axe X, portique 1 6 Rail de guidage, axe Y, portique 1
7 Echelle de mesure de l’axe Y, portique 1 8 Cellule photoélectrique (capteur anti-crash)
9 Axe X, portique 2
Huiler parcimonieu-
sement ces surfa-
ces du rail de
guidage Y
La surface de friction du rail de guidage Y
correspond à la zone de déplacement du
portique.
Elle doit impérativement être exempte
d‘huile et de graisse.
Déposez du lubrifiant
Staburags N12 sur les
glissoirs à billes
Huiler parcimonieuse-
ment ces surfaces du
rail de guidage Y

Notice d’exploitation SIPLACE 80 S/F/G 9 Maintenance
Edition 07/97 Version du logiciel à partir de SR.010.xx 9.4 Portiques
9 - 39
Fig. 9.4.2 Entretenir portiques 1 et 2 (vue de dessus automate SIPLACE 80S)