SIPLACE Machine de placement 80 S FG - 第43页
Notice d’exploitation SIPLACE 80S-15/F/G 1 Sécurité de fonctionnement Edition 07/97 Version du logiciel à partir d e SR.010.xx 1.2 Dispositifs de sécurité 1 - 7 1.2.2 Protection anti - intervention sur le convoyeur d‘ent…

1 Sécurité de fonctionnement Notice d’exploitation SIPLACE 80S-15/F/G
1.2 Dispositifs de sécurité Edition 07/97 Version du logiciel à partir de SR.010.xx
1 - 6
1.2.1.1 Généralités
La zone de déplacement des portiques est recouverte de deux capots de protection. Si vous voulez ouvrir les
capots de protection, vous devez impérativement soit actionner l‘interrupteur à clé, soit appuyer sur la touche
ARRET. Si les capots de protection ou le capot du convoyeur d‘entrée / du convoyeur de sortie sont ouverts
lorsque l‘interrupteur à clé est actionné, les portiques s‘immobilisent immédiatement. Les axes des portiques
sont mis en circuit sans tension. En cas d‘actionnement de la touche ARRET D‘URGENCE, le report s‘arrête.
La carte peut, alors, être abandonnée ; son report peut aussi être poursuivi.
Les panneaux de protection latéraux peuvent être ouverts lors de l‘arrêt de la machine dans un but de rem-
plissage avec des composants.
ATTENTION
O
O
Seul un personnel qualifié ayant la formation requise est autorisé à ouvrir les capots de protection lorsque le
commutateur à clé est déverrouillé!

Notice d’exploitation SIPLACE 80S-15/F/G 1 Sécurité de fonctionnement
Edition 07/97 Version du logiciel à partir de SR.010.xx 1.2 Dispositifs de sécurité
1 - 7
1.2.2 Protection anti - intervention sur le convoyeur d‘entrée / de sortie
DANGER
O
O
O
La protection anti - intervention doit être systématiquement installée sur le haut de la carte qui est traitée. A ce
sujet, il ne faut laisser qu‘un espace le plus faible possible entre la protection anti - intervention et la barre de
protection.
La protection anti - intervention est montée sur le convoyeur d‘entrée et de sortie du convoyeur de cartes.
Le haut de la protection anti - intervention doit être installé, par le biais des orifices longitudinaux, de telle
sorte que la carte traitée puisse être convoyée en traversant ces derniers.
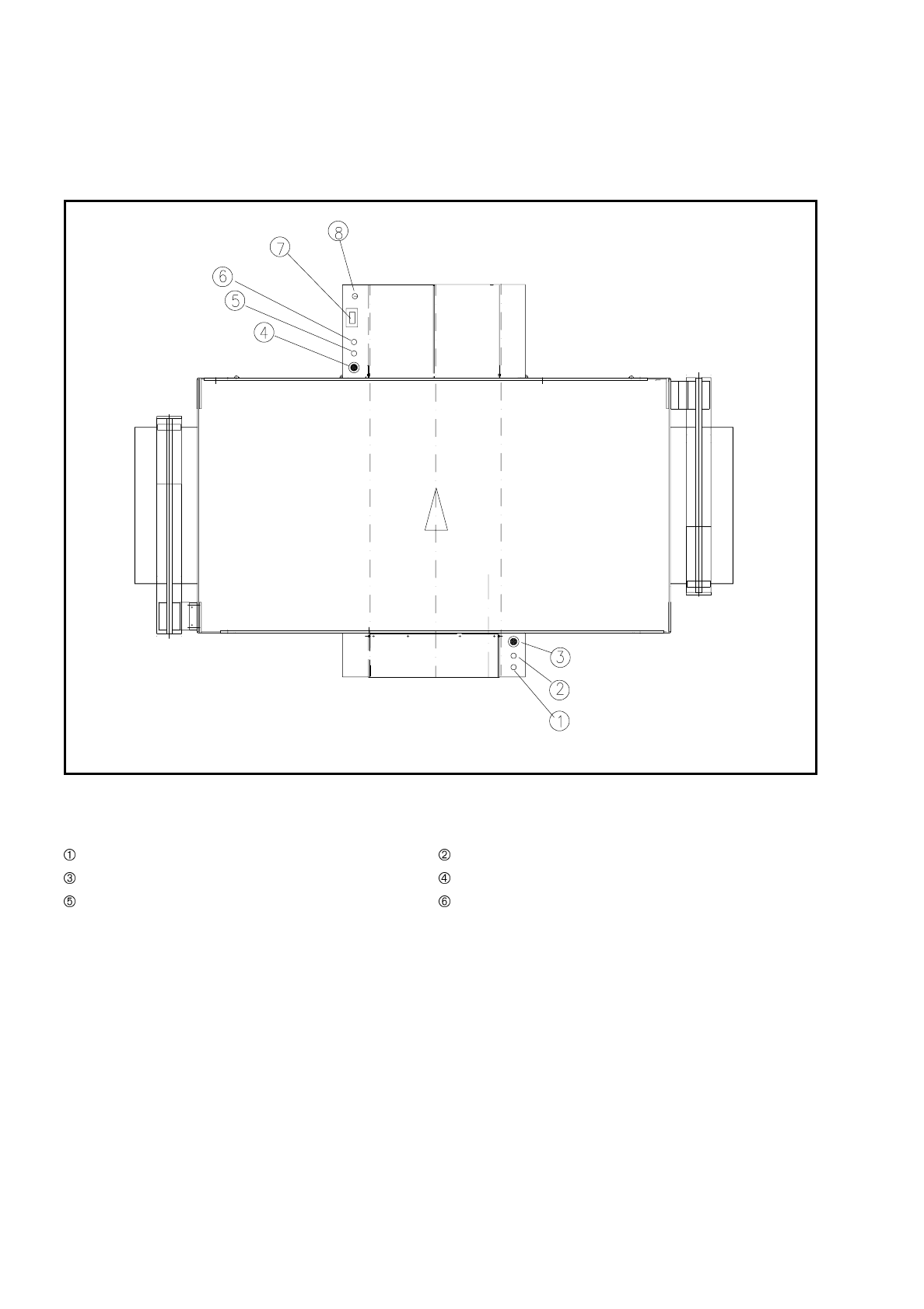
Fig. 1.2.2 Protection anti - intervention sur la SIPLACE 80 S/F/G
- Légende de la Fig. 1.2.2
➀
Barre de protection (montée fixe)
➁
Protection anti - intervention (réglable)
➂
Orifices longitudinaux pour le réglage en hauteur
➃
Capot

1 Sécurité de fonctionnement Notice d’exploitation SIPLACE 80S-15/F/G
1.2 Dispositifs de sécurité Edition 07/97 Version du logiciel à partir de SR.010.xx
1 - 8
1.2.3 Bouton d'arrêt d’urgence et commutateur à clé
Fig. 1.2.3 Emplacement des interrupteurs
- Légende de la Fig. 1.2.3
Touche HALT (Arrêt)
Touche START
Interrupteur NOT-AUS (Arrêt d’urgence)
Interrupteur NOT-AUS (Arrêt d’urgence)
Touche START Touche HALT
➆
Compteur de composants
➇
Interrupteur à clé