YG200L_khm_Eg - 第8页
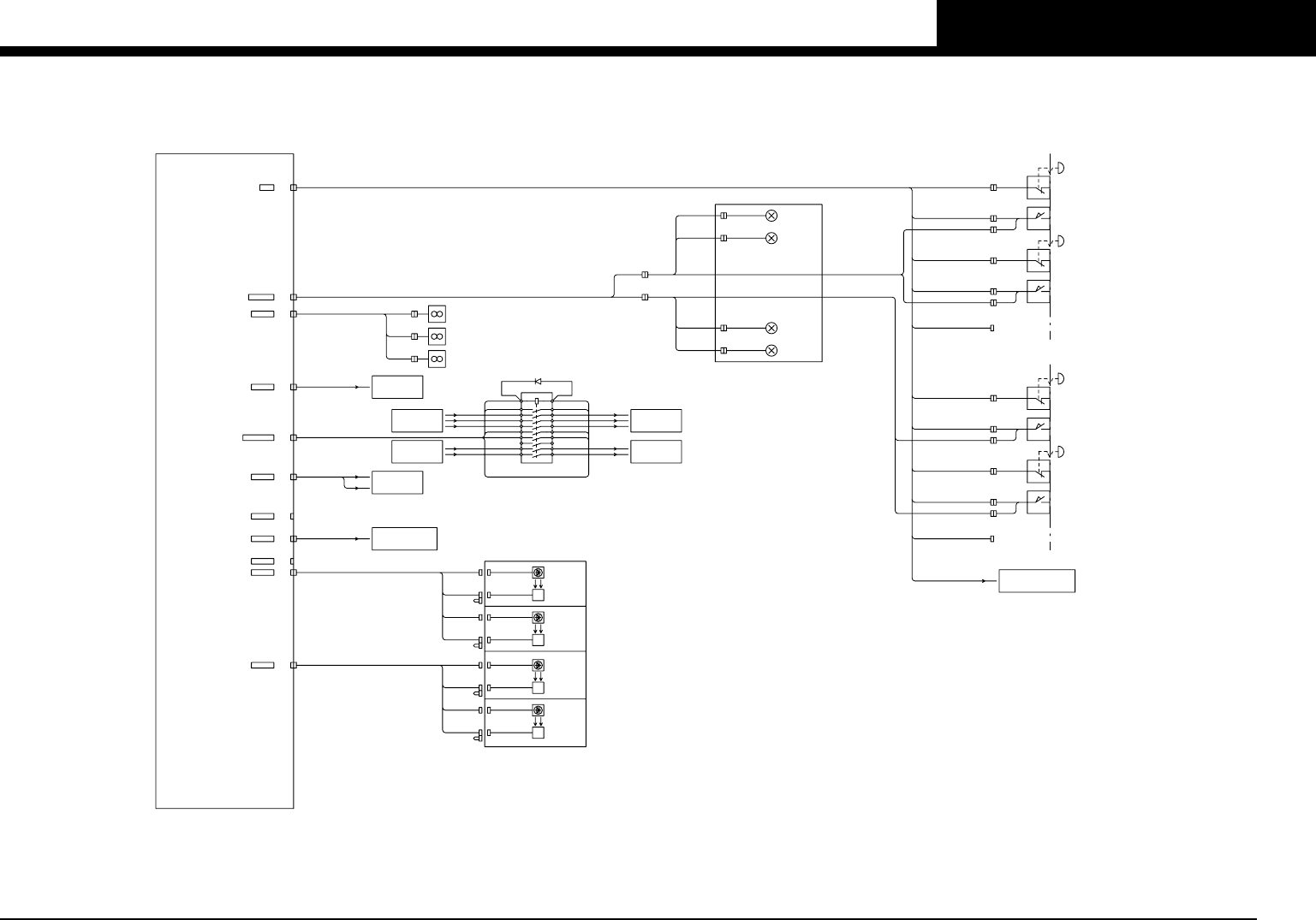
PA G E 5 YG200L (KHM) Con fi dential & Proprietary KHM-000-CCV0 I/O conveyor board -3- J272 S10 NF1 1 GS21 I/O HEAD A,B,C,D I/O HEAD POWER J282 CN41 CN48 CN52 A1 EMG21 13 +24V 23 +24V 53 EMG20 U52 V52 W52 +24V +24V Se…

PAG E
4
YG200L (KHM)
Confi dential & Proprietary
KHM-000-CCV0
I/O conveyor board -2-
J84
CN42
I/O CONVEYOR BOARD
DI0
YOT
P25
CN28
CN42
KGT-M4580-0xx
SQ2
SQ1
See Page 7
I/O HEAD FRONT B
CN28
W1ORG
W4ORG
N00607
N00604
See Page 6
ORG
J342
Y2 ORG,OT
Y1 ORG,OT
W4-AXIS
W1-AXIS
ORG
I/O HEAD FRONT A
UPPER
CONV.3
MAIN STOPPER A
N00635
N00660
UP
MID.1
MID.2
DOWN
J90
PUSH UP A
PUSH UP A
PUSH UP A
PUSH UP A
N00670
N00671
N00672
N00673
SQ6
SQ7
SQ12
SQ13
SQ14
SQ15
N00616 PUSH UP
PIN A
ORG
YT1-AXIS
YT1-AXIS
OT
J89
N00612
N00602
YTORG
YTOT
ORG N00602
WORG W3-AXIS
SQ3
SQ4
SQ5
CONV3B
CONV3A
N00635
N00616
YT1OT
W3ORG
YT1ORG
DUCT YT1
FLEXIBLE
N00664
ENT.& EXIT
CONV.2
N00661
MID.
SQ8
N00662
CONV.3N00663
RCV
SQ10
TUNING
CONV.SENSOR TUNING
See Page 3
CONV3
T00274
A-TABLE
DI2 CN29
CN29
J701
FLOAT
F+24V
FLOAT
FLOAT
F1 FEEDER
FLOAT
F+24V
FLOAT
FLOAT
FLOAT
F+24V
FLOAT
FLOAT
FLOAT
F+24V
FLOAT
FLOAT
F2 FEEDER
R1 FEEDER
R2 FEEDER
FEEDER FLOAT SENSOR (OPTION)
F1 FLOAT
F2 FLOAT
R1 FLOAT
R2 FLOAT
N00620
N00621
N00624
N00625
J261
J262
J263
J264
SQ39A
SQ39B
SQ40A
SQ40B
SQ41A
SQ41B
SQ42A
SQ42B
CN37
J93
F.NONSTOP
R.NONSTOP
DI12
CN35
CN36
CN37
CN36
CN35
N006C0
UPPER
CONV.2
MAIN STOPPER B
N00636
N00654
UP
MID.1
DOWN
J92
PUSH UP B
PUSH UP B
PUSH UP B
N00674
N00675
N00676
N00677
SQ19
SQ20
SQ25
SQ26
SQ28
N00617 PUSH UP
PIN B
ORG
OT
YT2-AXIS
YT2-AXIS
J91
N00603
N00613
YTOT
YTORG
ORG N00602
WORG W2-AXIS
SQ16
SQ17
SQ18
CONV2B
CONV2A
N00636
N00617
YT2OT
W2ORG
YT2ORG
DUCT YT2
FLEXIBLE
N00657
ENT.& EXIT
CONV.2
N00655
N00656
CONV.2
MID.
RCV
N006C0
SQ21
SQ23
TUNING
CONV.SENSOR TUNING
See Page 3
CONV2
J88
CN33
J87
CN32
DI6
DI7
DI8
CN32
CN33
CN34
DUMP STATION
FEEDER STRUCTURE
CN34
J271
CONV.SENSOR TUNING
CONV1
See Page 3
CONV.4
CONV.4
SLOW
N00666
N00667
RCV
SQ36
SQ37
SP11
N00684
SENSOR
AIR PRESSURE
P
ENT.
EXIT
CONV.1
CONV.1
CONV.1
J86
N00650
N00651
N00652
N00653
CN31
RCV
SQ31
SQ33
SQ34
DI5 CN31
TUNING
J85
ENT.
STOPPER UPPER
EXIT
STOPPER UPPER
N00634
N00637
CN30
SQ29
SQ30
DI3 CN30
See Page 11 - 13
FIX24 & FES24 & FES20
J817
or
J851
J818
or
J852
SAFETY CIRCUIT
CLAMP UNIT SENSOR
See Page 14 & 15
FIX24 & FES24 & FES20
T00274
CONV.4
ENT.
N00665
SQ35
CONV.SENSOR TUNING
See Page 3
TUNING
CONV4
T00274
T00274
B-TABLE
CART DETECT
SAFETY CIRCUIT
FES24 & FES20
See Page 14
CONV.4
N006C1
EXIT
SQ38
DI13 CN38
CN39
CN40
DI16
DI17
CN38
J340
+24V
F1 BLOW
+24V
F2 BLOW
+24V
R1 BLOW
+24V
R2 BLOW
SQ151A
SQ151B
SQ152A
SQ152B
SQ153A
SQ153B
SQ154A
SQ154B
F1 BLOW STATION
NOZZLE DETECT
F2 BLOW STATION
NOZZLE DETECT
R1 BLOW STATION
NOZZLE DETECT
R2 BLOW STATION
NOZZLE DETECT
N006D0
N006D1
N006D2
N006D3

PAG E
5
YG200L (KHM)
Confi dential & Proprietary
KHM-000-CCV0
I/O conveyor board -3-
J272
S10
NF11
GS21
I/O HEAD A,B,C,D
I/O HEAD POWER
J282
CN41
CN48
CN52
A1 EMG21
13 +24V
23 +24V
53 EMG20
U52
V52
W52
+24V
+24V
See Page 6 & 7
J275
EMG
KGT-M4580-0xx
CN44
DC24EA
CN47
CN46
DC24VN
DC24VD
CN50
CN52
CN45
CN49
CN48
CN41
P25
DC24VB
DC24VE
CONTACTOR
DC24VH
DC24VLM
EMG
I/O CONVEYOR BOARD
FAN3
FAN2
FAN1
F1
SB15
EMG SWITCH
J279
COVER
LAMP
J276
J279
COVER
LAMP
FRONT SIDE
EMG
F COVER
F2
EMG SWITCH
F2
F1
SQ152
SQ151
SB16
LIMIT SWITCH
LIMIT SWITCH
CN49
FAN
FAN
FAN
J28
CN45
J44
CN50
J51
J705
F2 LAMP
F1 LAMP
OPTION
Maintenance Fluorescent Light
F1 EMG
F2 EMG
J715
J714
R2 LIGHT
R1 LIGHT
F2 LIGHT
F1 LIGHT
R C+24V
F C+24V
W54
V54
U54
14 N00686
See Page 2
LED DRIVER
CONTROL BOX
C/V MOTOR DRIVER
CONTROL BOX
54 EMG21
24 +24E
A2 0V
CN43
CN43
J281
F1 A+24V
F1 AREA
R2 A+24V
R2 AREA
L AREA
CN53
J285
R AREA CN53
F2 A+24V
F2 AREA
R1 A+24V
R1 AREA
POWER CIRCUIT
See Page 22
POWER CIRCUIT
See Page 22
POWER CIRCUIT
See Page 22
POWER CIRCUIT
See Page 22
EL1
EL2
EL3
EL4
J905
CN46
INDICATOR BOARD POWER
FEEDER INDICATOR
See Page 19 & 20
SQ44B
SQ44A
SQ43B
SQ43A
AREA SENSOR
AREA SENSOR
F1
R2
AREA SENSOR
AREA SENSOR
SQ45A
SQ45B
SQ46A
SQ46B
F2
R1
AREA SENSOR (OPTION)
SERVICE KEY
FRONT
F KEY
J277
EMG
R1
SB17
EMG SWITCH
J278
J280
COVER
LAMP
REAR SIDE
EMG
R COVER
R2
SB18
EMG SWITCH
J279
COVER
LAMP
R2
R1
SQ154
SQ153
LIMIT SWITCH
LIMIT SWITCH
R2 LAMP
R1 LAMP
R1 EMG
R2 EMG
SERVICE KEY
R KEY
REAR
FES BOARD EMG
FES24 & 20 SAFETY CIRCUIT
See Page 14 & 15
13
1
3
5
23
14
2
4
6
24
A1 A2
53 54
73 74
83 84
KM10/KM10A
63 64
+24VC
+24VD

PAG E
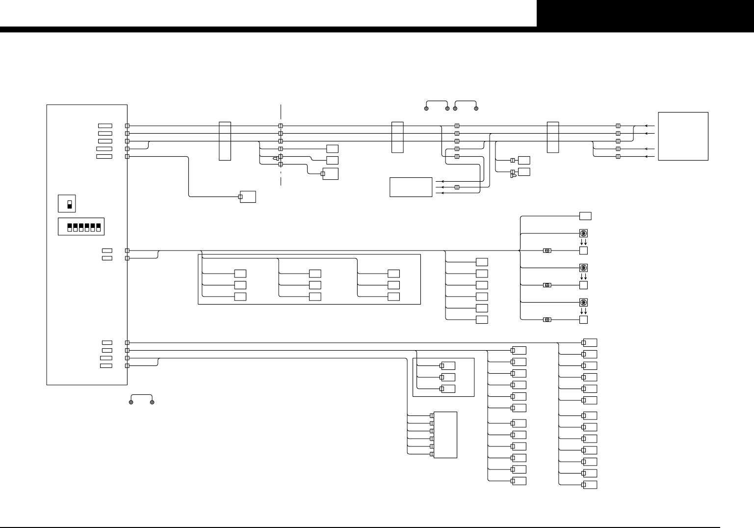
6
YG200L (KHM)
Confi dential & Proprietary
KHM-000-CCV0
I/O head front A (HEAD A)
CN2
DC24V
CN10
CUnet
CN9A
CN9B
SAFETY2
SAFETY1
N UP
NOZZLE DOWN
NOZZLE DOWN
NOZZLE UP
DC24V
DC24V
DC24V
DOWN
DOWN
DOWN
DOWN
DOWN
DOWN
HEAD1A
HEAD2A
HEAD3A
HEAD4A
HEAD5A
HEAD6A
P1-2 FNC POS1
FNC POS1
FNC POS1
P1-4
P1-6
HEAD2A
HEAD4A
HEAD6A
FNC POS2
FNC POS2
FNC POS2
P2-2
P2-4
P2-6
HEAD2A
HEAD4A
HEAD6A
CLUTCH
CLUTCH2
CLUTCH
CLUTCH
CLUTCH4
CLUTCH6
HEAD2A
HEAD4A
HEAD6A
CN5
CN6
VAC1
VAC2
ON
OFF
12 543
DIP SW(S2)
6
ON
OFF
1
DIP SW(S1)
CN2
CN10
CN9A
CN9B
CN5
CN6
X1-FRAME X1-FRAME
CN4
CN8
CN4
CN8
ORG/OT
LIGHT
CN7
MARKER
CN7
AMP1
AMP3
AMP2
J176
J54
J285
J401
DI0
DI1
DO0
DO1
J404
J405
J406
1
2
3
4
5
6
SLOW DOWN
SLOW DOWN
SLOW DOWN
SLOW DOWN
SLOW DOWN
SLOW DOWN
HEAD1A
HEAD2A
HEAD3A
HEAD4A
HEAD5A
HEAD6A
1
2
3
4
5
6
DOWN
DOWN
DOWN
DOWN
DOWN
DOWN
HEAD1A
HEAD2A
HEAD3A
HEAD4A
HEAD5A
HEAD6A
2
4
6
FNC
FNC
FNC
HEAD2A
HEAD4A
HEAD6A
FNC HEAD Version
T00024
T00025
T00026
T00030
T00031
T00032
T00033
T00034
T00035
T00040
T00041
T00042
T00043
T00044
T00045
J402
I/O HEAD UNIT ASSY FRONT A
P21
+24V
N00405
+24V
N00403
N00404
+24V
N00420
N00421
N00422
N00424
N00425
N00426
N00430
N00431
N00432
CN1A
CN1B
CN1A
CN1B
J156
SQ56A
SQ56B
SQ57A
SQ57B
SQ58A
SQ58B
SQ59
DOWN1
N00410
SQ60
DOWN2
N00411
SQ61
DOWN3
N00412
SQ62
DOWN4
N00413
SQ63
DOWN5
N00414
SQ64
DOWN6
N00415
SQ65
SQ66
SQ67
SQ68
SQ69
SQ70
SQ71
SQ72
SQ73
YV23
YV24
YV25
YV26
YV27
YV28
YV29
YV30
YV31
YV32
YV33
YV34
YV35
YV36
YV37
SAFETY2 HEAD A
SAFETY1 HEAD A
HEAD A FLYING
KGT-M4570-0xx
HEAD A
1
2
3
4
5
6
VAC.
SENSOR
x6
P41 - P46
J53
+24V
J52
H+24V
H+24V
H+24V
J51
See Page 3 - 5
CN28
J173
SQ55
SQ52
SQ51
SQ54
SQ53
J292
CN42
CN50
CN22
EMGA R
EMGA F
CUNET
CUNETR
MARKER
MARKER
LIGHT
N00402
N00610
N00600
N00401
N00400
EMG
See Page 9
J55
J177
I/O HEAD BOARD
REAR B
EMGA
LIGHT
XOT
XORG
CUNET
J425
CUNETA
J84
Y1OT
Y1ORG
I/O CONVEYOR BOARD
J342
J283
J174
J284
J175
J150 J151
OT
Y1-AXIS
Y1-AXIS
ORG
Y1ORG
Y1OT
DUCT Y1
X1-AXIS
ORG
X1-AXIS
OT
LIGHT
FIDUCIAL
LIGHT
R1-AXIS
ORG
R ORG
DUCT X1
FLEXIBLE
LEFT RIGHT
FLEXIBLE
DUCT Z1
FLEXIBLE
PLATE
FNC HEAD Version
1
2
3
4
5
6
VACUUM
VACUUM
VACUUM
VACUUM
VACUUM
VACUUM
1
2
3
4
5
6
BLOW
BLOW
BLOW
BLOW
BLOW
BLOW
HEAD1A
HEAD2A
HEAD3A
HEAD4A
HEAD5A
HEAD6A
HEAD1A
HEAD2A
HEAD3A
HEAD4A
HEAD5A
HEAD6A
T00001
T00002
T00003
T00004
T00005
T00010
T00011
T00012
T00013
T00014
T00015
T00000
YV14
YV15
YV16
YV17
YV18
YV19
YV20
YV21
YV22
YV12
YV13
YV11
T00023
SH BLOW
YV241
SHAFT
BLOW