SP18 Mechanical - 第63页
Ref No. Remark s R 1 Q'ty 5-B 基 板搬送部 (L) PCB Tran sport Unit( L) イラスト No. Part No. 品 名 品番 数量 R 2 パーツリスト Kit N o . キット品 番 Kit Name キット名称 N610012846AA Part Name 備 考 セクションNo. PARTS LIST Section No. R 3 FRAME 1 1 N21002…

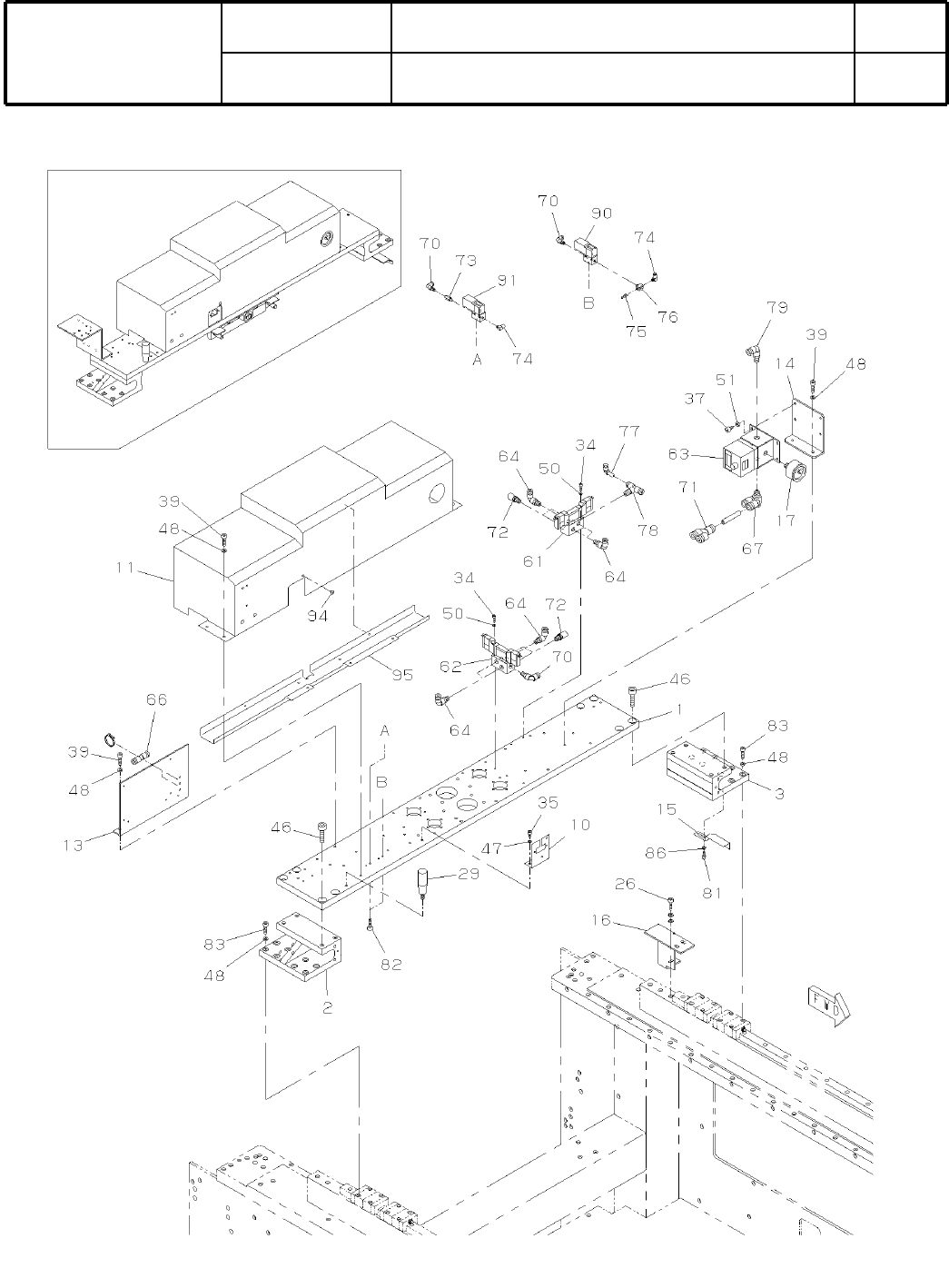
5-B
基
板搬送部
(L)
PCB Transport Unit(L)
パーツレイアウト
Ki
t
N
o
.
キット
品番
Kit Name
キット名称
N610012846AA
セクションNo.
PARTS LAYOUT
Section No.
--
M47
( KN610012846AA-18-2 )

Ref
No.
Remarks
R
1
Q'ty
5-B
基
板搬送部
(L)
PCB Transport Unit(L)
イラスト
No.
Part No.
品 名品番 数量
R
2
パーツリスト
Kit N
o
.
キット品
番
Kit Name
キット名称
N610012846AA
Part Name
備 考
セクションNo.
PARTS LIST
Section No.
R
3
FRAME
1
1 N210028135AC
GUIDE
1
3 KXFB01J3A00
GUIDE
1
4 KXFB01J2A00
GUIDE
2
5 N210025925AC
PLATE
2
6 N210025926AB
PLATE
2
7 N210025927AC
BRACKET
1
8 N210025928AA
PULLEY
1
9 KXFB02QLB00
BRACKET
1
14 N210053335AB
STRIPPER BOLT
4
15 N610023171AA
PULLEY
5
16 N610116865AA
A
BOLT
8
17 N510017535AA
SSS 003 Hexagon socket button head screw M4X8-10.9 A2S (Trivalent)
SPRING
4
18 N510029955AA 87UR10-30
BELT
1
20 N510022408AA
A
XVT-952 8.5*2290E
O-RING
1
21 KXF0CT8AA00 CO0616A
MOTOR
1
22 KXF0DZDRA00
S
103H7832-0312(DDA)
SCREW
1
23 N510018377AA
Hexagon socket set screw Cup point M5X10-45H A2S (Trivalent)
SCREW
4
24 N510018370AA
Hexagon socket set screw Cup point M4X4-45H A2J (Trivalent)
BOLT
2
26 N510017381AA
Hexagon socket head cap screw M4X8-10.9 A2J (Trivalent)
BOLT
2
27 N510017344AA
Hexagon socket head cap screw M4X10-10.9 A2J (Trivalent)
BOLT
12
28 N510017346AA
Hexagon socket head cap screw M4X12-10.9 A2J (Trivalent)
BOLT
4
29 N510017351AA
Hexagon socket head cap screw M4X16-10.9 A2J (Trivalent)
BOLT
4
30 N510017354AA
Hexagon socket head cap screw M4X20-10.9 A2J (Trivalent)
WASHER
4
32 N510018497AA
Round finish plain washer 4 10H A2J (Trivalent)
WASHER
12
33 N510018479AA
Small round-plain washer 4 10H A2J (Trivalent)
WASHER
8
34 N510020099AA Thick washer for M4
COLLAR
4
37 N210053425AA
JOINT
2
38 KXF029RAA00 KJU04-00
JOINT
2
39 KXF029GAA00 KJH04-00
BOLT
1
40 N510017321AA
Hexagon socket head cap screw M3X25-10.9 A2J (Trivalent)
WASHER
1
41 N510018478AA
Small round-plain washer 3 10H A2J (Trivalent)
WASHER
1
42 N510018327AA Spring lock washer No.2 3 S A2J (Trivalent)
BRACKET
1
43 N210088139AA
M48
--
( KN610012846AA-18-2 )

6-A
スキージヘッド
Squeegee Head
パーツレイアウト
Ki
t
N
o
.
キット
品番
Kit Name
キット名称
N610012848AA
セクションNo.
PARTS LAYOUT
Section No.
--
M49
( KN610012848AA-20-1 )