CP-743ME-04 - 第17页
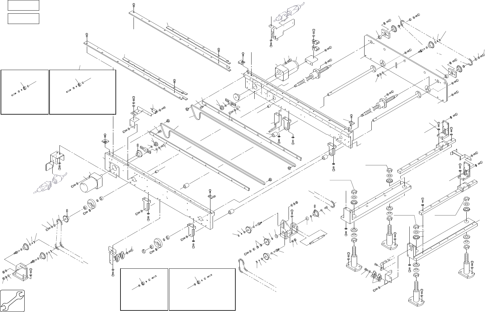
3.1.インコンベア(DGQC) 3.1.In conveyor(DGQC) 番号 図番 & コード番号 個数 品名 規格 備考 材質 No. Drg.No. & Code No. QTY Description Rating Remarks Materials 1 DGQC0130 1 BALL SCREW ボールネジ OT 2 DGQC0140 1 BALL SCREW ボールネジ OT 3 H42945…

PULLEY ASSY
MQC-1061
PULLEY ASSY
MQC-1290
薄厚基板対応(オプション)
標準
Standard
Support for PCBs
Thinner than 0.5mm(Option)
標準
Standard
薄厚基板対応(オプション)
Support for PCBs
Thinner than 0.5mm(Option)
I
H
G
G
E
E
A
B
H
I
F
C
D
B
A
X9
F
K
K
K
L
L
L
2.94N.m
LOCTITE7649
LOCTITE262
64.68N.m
64.68N.m
64.68N.m
64.68N.m
ThreeBond1373B
3 - 2
3.1.インコンベア(DGQC)
3.1.In conveyor(DGQC)
3.1.インコンベア(DGQC)
3.1.In conveyor(DGQC)
CP-743ME,CP-742ME PARTS LIST

3.1.インコンベア(DGQC)
3.1.In conveyor(DGQC)
番号 図番 & コード番号 個数 品名 規格 備考 材質
No. Drg.No. & Code No. QTY Description Rating Remarks Materials
1 DGQC0130 1 BALL SCREW ボールネジ OT
2 DGQC0140 1 BALL SCREW ボールネジ OT
3 H42945 2 BEARING, SLIDE ベアリング スライド SSR15XWY1UUC1+400LH-2 FE
4 DGQC0070 1 BRIDGE ブリッジ FE
5 DGQC0080 1 BRIDGE ブリッジ FE
6 DGQC0013 1 PLATE, SIDE プレート サイド AL
7 DGQC0025 1 PLATE, SIDE プレート サイド AL
8 DGQC0090 1 BKT BKT FE
9 DGQC0100 1 BKT BKT FE
10 DCQC0720 1 STOPPER ストッパ FE
11 DCQC0820 1 STOPPER ストッパ 薄厚基板対応(オプション) FE
12 DCQC0710 1 STOPPER ストッパ FE
13 DCQC0830 1 STOPPER ストッパ 薄厚基板対応(オプション) FE
14 DGQC0110 1 PLATE プレート FE
15 DGQC0120 1 PLATE プレート FE
16 DGQC0260 2 GUIDE, BELT ガイド ベルト AL
17 DGQC0290 2 BELT ベルト PL
18 DGQC0700 2 BELT ベルト 薄厚基板対応(オプション) PL
19 ADGQC8040 2 PULLEY, TENSION プーリ テンション 薄厚基板対応(オプション) OT
20 DGQC0690 2 PULLEY プーリ 薄厚基板対応(オプション) FE
22 DGQC0720 1 BKT BKT FE
23 DGQC0060 1 PLATE プレート FE
24 DGQC0320 2 BAR, GUIDE バー ガイド FE
26 DGQC0340 2 BKT BKT FE
27 DGQC0350 2 BKT BKT FE
28 DGQC0160 4 BOLT, STUD ボルト スタッド FE
32 DGQC0180 1 LEVER レバー FE
39 DGQC0420 1 SHAFT シャフト FE
48 DGQC0220 1 PLATE, GUIDE プレート ガイド FE
49 DGQC0230 1 PLATE, GUIDE プレート ガイド FE
55 DGQC0530 1 BKT BKT FE
59 H4444T 4
BEARING, MINIATURE
ベアリング ミニチュア LF-950ZZ FE
60 MQC1181 2 COLLAR カラー FE
61 DGQC0570 2 COLLAR, BEARING カラー ベアリング FE
62 DGQC0580 2 BKT BKT FE
63 DGQC0590 2 PULLEY プーリ FE
64 DGQC0600 2 BOLT ボルト FE
65 DGQC0250 1 BKT BKT FE
66 DCQC0710 1 BKT, WIRING BKT 配線 FE
71 DGQC0610 1 BKT BKT FE
72 Y3075A 2 UNION ユニオン KQ2U06-00 OT
73 DCQC0330 2 PULLEY, MOTOR プーリ モータ FE
74 DCQC0340 1 SHAFT シャフト FE
75 DCQC0100 1 BKT BKT FE
76 DCQC0350 1 BKT BKT FE
CP-743ME,CP-742ME PARTS LIST
3 - 3
3.1.インコンベア(DGQC)
3.1.In conveyor(DGQC)

3.1.インコンベア(DGQC)
3.1.In conveyor(DGQC)
番号 図番 & コード番号 個数 品名 規格 備考 材質
No. Drg.No. & Code No. QTY Description Rating Remarks Materials
81 DCQC0470 1 BKT BKT FE
82 DCQC0491 1 BKT, SENSOR BKT センサ FE
85 DCQC0550 1 BKT BKT FE
93 CSQC0570 4 STOPPER ストッパ PL
94 CSQC1210 8 WASHER, SPHERICAL ワッシャ 球面 FE
95 CSQC1220 8 WASHER, SPHERICAL ワッシャ 球面 FE
96 CSQC1230 8 NUT, HEX ナット 六角 FE
97 DCQC0750 3 RETAINER 押え FE
98 DCQC0740 1 SPROCKET スプロケット OT
100 MQC1061 2 TENSION PULLEY ASSY テンションプーリASSY OT
101 ADCQC8030 2 PULLEY, TENSION プーリ テンション 薄厚基板対応(オプション) OT
102 MQC1073 1 SEAL シール PL
103 MQC1292 4 PULLEY ASSY プーリASSY OT
104 MQC1300 1 SEAL シール OL
105 MQC3313 1 GUIDE, CONVEYOR ガイド コンベア FE
106 MQC3323 1 GUIDE, CONVEYOR ガイド コンベア FE
107 MQC4130 2 SHAFT シャフト FE
108 GVC2262 1 SPROCKET スプロケット FE
109 GVC0320 2 COLLAR カラー FE
110 GVC0350 5 COLLAR カラー FE
111 GVC2311 2 SHAFT シャフト FE
112 CLC9051 2 HOLDER ホルダ FE
113 IQC6041 2 RETAINING, BEARING 押え ベアリング FE
116 GVC0141 2 COLLAR カラー FE
118 MQC3451 2 HOLDER, CONVEYOR ホルダ コンベア UFL000 FE
119 H4440A 6
BEARING, MINIATURE
ベアリング ミニチュア L-1910ZZ FE
120 N1124A 1 NUT, LOCK ナット ロック MR10 FE
121 S3033A 1 SPROCKET スプロケット RS25-13T 1-Type FE
122 T2029L 1 CHAIN チェーン RS25NP 244リンク FE
123 K5335A 4
CONTROLLER, SPEED
コントローラ スピード JSU4 OT
124 S3034A 5 SPROCKET スプロケット RS25-13T 2-Type FE
126 H4445A 10
BEARING, MINIATURE
ベアリング ミニチュア LF-1050ZZ FE
128 S3141B 1 SW, PHOTOELECTRIC SW 光電 DL-S3R OT
129 M5017H 2 MOTOR, INDUCTION モータ インダクション 2IK6RGN-A-K1 OT
130 H4006A 2
HEAD, GEAR
ヘッド ギヤ 2GN-7.5K OT
131 S1022A 5
CIR-CLIP
サークリップ ST-EW-4 FE
142 R2074B 4 RING, LOCKING リング 締結 UR8X11 OT
143 H4451A 2 BEARING ベアリング LF-1680ZZ FE
144 W10022 1 WASHER ワッシャ TL-182(NO2) OT
150 T20242 1 CHAIN チェーン RS25NP166リンク FE
151 K4131R 1 FLEXIBLE TRACK ケーブルベア 07.10-018-22-610P OT
155 H5281A
BOLT, HEX SOCKET
ボルト 六角穴
M3X25L FE
158 H5287A
BOLT, HEX SOCKET
ボルト 六角穴
M4X8L FE
159 H5288A
BOLT, HEX SOCKET
ボルト 六角穴
M4X10L FE
160 H5289N
BOLT, HEX SOCKET
ボルト 六角穴
M4X12L FE
CP-743ME,CP-742ME PARTS LIST
3 - 4
3.1.インコンベア(DGQC)
3.1.In conveyor(DGQC)