CP-743ME-04 - 第25页
P U L L E Y A S S Y M Q C - 1 0 6 1 P U L L E Y A S S Y M Q C - 1 2 9 0 タ テ x 1 7 3 . 2 0 5 R e f . 3 1 - 1 R e f . 3 1 - 1 R e f . 3 1 - 1 R e f . 3 3 - 7 薄厚基板対応( オプション) S u p p o r t f o r P C B s T h i n n e r t h a n…

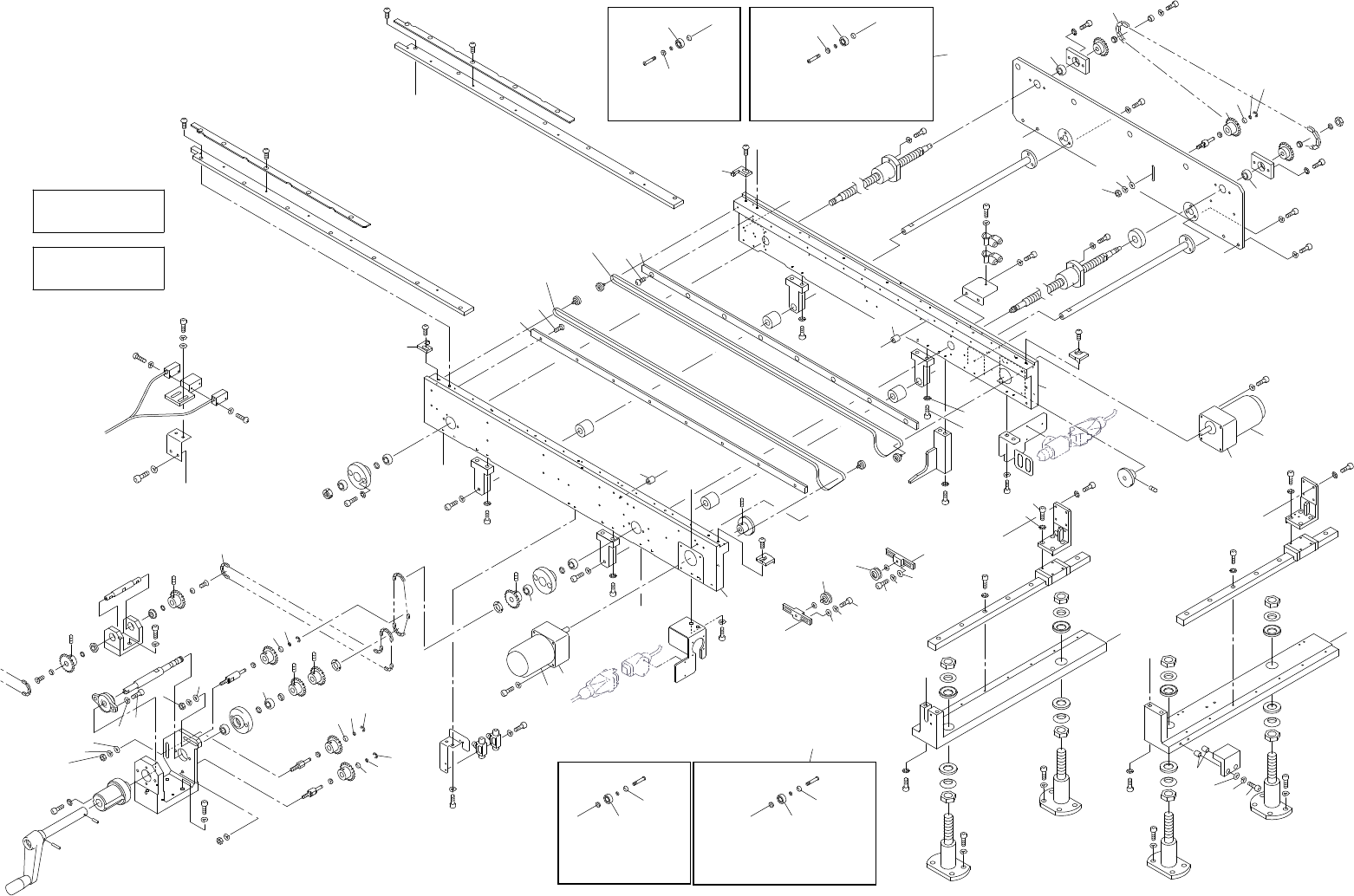
3.2.インコンベア(DGQC
3.2.In conveyor(DGQC)
番号 図番 & コード番号 個数 品名 規格 備考 材質
No. Drg.No. & Code No. QTY Description Rating Remarks Materials
195 K5200A
SCREW, TRUSS
小ネジ 十穴トラス M2X3L ユニックロメッキ FE
196 K51721
SCREW, TRUSS
小ネジ 十穴トラス M3X5L ユニックロメッキ FE
197 K5203A
SCREW, TRUSS
小ネジ トラス M3X6L FE
198 K5256A
SCREW, HEX SOCKET BUTTON
小ネジ六角穴ボタン M3X8L FE
199 K5256K
SCREW, HEX SOCKET BUTTON
小ネジ六角穴ボタン M3X15L FE
200 K5230A SCREW, C/R PAN 小ネジ 十穴鍋 M3X25L FE
202 K5260A
SCREW, HEX SOCKET BUTTON
小ネジ六角穴ボタン M5X8L FE
205 N1080A
NUT, HEX
ナット 六角
M4 P=0.7 FE
207 N1085A
NUT, HEX
ナット 六角
M6 P=1.0 FE
208 . SCREW, C/R PAN 小ネジ 十穴鍋 M3X15L ニッケルメッキ FE
209 N1080A NUT, HEX ナット 六角 M4 P=0.7 3シュ FE
211 K5255T
SCREW, HEX SOCKET BUTTON
小ネジ六角穴ボタン M3X6L FE
212 N1089A
NUT, HEX
ナット 六角
M8 P=1.25 FE
213 H5275A
BOLT, HEX SOCKET
ボルト 六角穴
M3X8L FE
215 ADGQC8010 1 BKT ASSY BKT ASSY OT
216 ADGQC8020 1 BKT ASSY BKT ASSY OT
217 H5291A
BOLT, HEX SOCKET
ボルト 六角穴
M4X18L FE
218 W1041A WASHER, FLAT ワッシャ 平 4M/MX0.8X9(1W-4) . FE
CP-743ME,CP-742ME PARTS LIST
3 - 10
3.2.インコンベア(DGQC)
3.2.In conveyor(DGQC)

PULLEY ASSY
MQC-1061
PULLEY ASSY
MQC-1290
タテx173.205
Ref.31-1
Ref.31-1
Ref.31-1
Ref.33-7
薄厚基板対応(オプション)
Support for PCBs
Thinner than 0.5mm(Option)
薄厚基板対応(オプション)
Support for PCBs
Thinner than 0.5mm(Option)
x9
211
210
211
210
198
189
211
211
202
197
221
188
198
198
191
206
183
198
222
202
197
221
98
100
99
107
108
80
105
43
41
105
80
108
107
97
81
95
96
95
95
81
97
96
95
46
45
97
81
95
96
95
44
101
85
85
40
84
79
102
102
31
103
117
118
51
83
30
205
176
174
205
I
C
174
205
205
174
205
176
205
176
199
193
198
239
190
199
193
199
193
199
193
28
2
132
132
10
11
68
66
67
67
207
238
207
238
66
68
68
66
67
67
66
68
68
66
67
67
66
68
68
66
67
67
66
68
17
167
17
167
6
7
74
76
J
D
B
A
115
116
116
115
197
182
174
196
233
235
235
232
236
186
207
186
207
197
181
202
197
221
181
197
189
198
218
197
226
179
196
196
237
196
237
217
219
J
H
207
207
180
196
211
198
187
207
192
153
133
24
164
164
163
39
86
160
H
90
89
72
141
141
78
75
75
135
72
138
138
96
97
81
95
95
146
166
33
131
124
230
230
234
234
102
102
16
9
I
E
E
B
A
G
196
標準
Standard
180
176
176
211
218
195
173
182
197
198
207
188
188
197
184
212
197
184
187
207
188
188
188
207
219
219
217
219
159
154
134
35
125
125
3
72
140
72
140
86
71
70
13
12
57
56
71
70
160
201
201
196
196
176
176
54
54
90
89
77
75
75
137
136
137
136
135
121
101
82
79
102
102
84
79
102
102
84
8
F
G
K
K
L
C
D
61
182
197
224
195
195
224
F
91
60
201
196
176
159
158
157
157
162
161
158
157
157
162
15
K
14
標準
Standard
L
158
157
157
161
162
L
158
157
157
15
162
14
4 - 1
4.1.アウトコンベア(DGQC)
4.1.Out conveyor(DGQC)
4.1.アウトコンベア(DGQC)
4.1.Out conveyor(DGQC)
CP-743ME,CP-742ME PARTS LIST

PULLEY ASSY
MQC-1061
PULLEY ASSY
MQC-1290
タテx173.205
Ref.31-1
Ref.31-1
Ref.31-1
Ref.33-7
207
238
標準
Standard
標準
Standard
x9
I
C
J
D
B
A
115
116
116
115
197
226
J
H
H
I
E
E
B
A
G
F
G
K
K
L
C
D
F
K
L
L
64.68N.m
64.68N.m
64.68N.m
64.68N.m
4 - 2
4.1.アウトコンベア(DGQC)
4.1.Out conveyor(DGQC)
4.1.アウトコンベア(DGQC)
4.1.Out conveyor(DGQC)
薄厚基板対応(オプション)
Support for PCBs
Thinner than 0.5mm(Option)
薄厚基板対応(オプション)
Support for PCBs
Thinner than 0.5mm(Option)
CP-743ME,CP-742ME PARTS LIST