CP-743ME-04 - 第27页
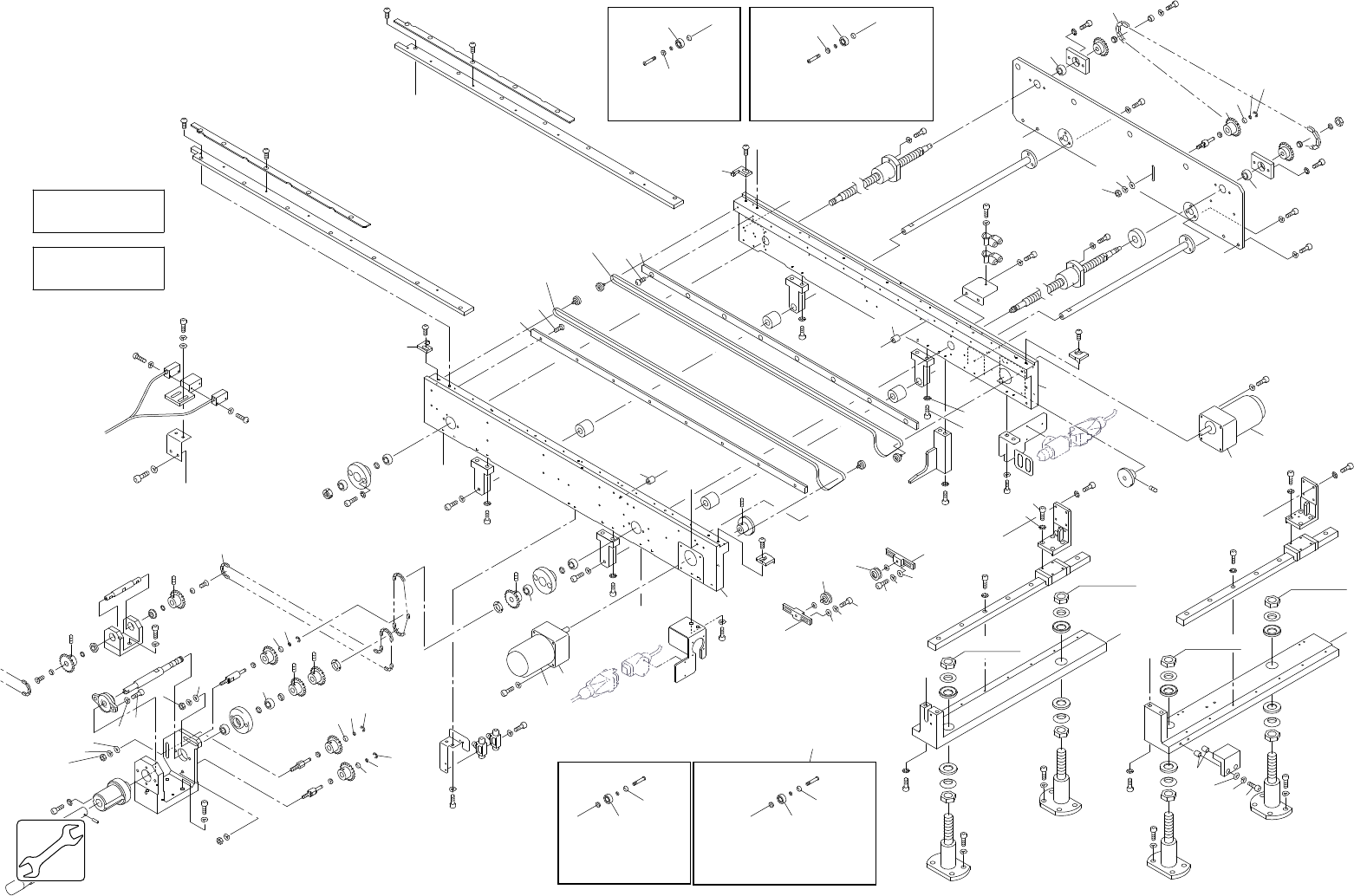
4.1.アウトコンベア(DGQC) 4.1.Out conveyor(DGQC) 番号 図番 & コード番号 個数 品名 規格 備考 材質 No. Drg.No. & Code No. QTY Description Rating Remarks Materials 2 DGQC3220 1 STOPPER ストッパ PL 3 DGQC3230 1 BKT, SENSOR BKT センサ FE 6 DGQC3090…

PULLEY ASSY
MQC-1061
PULLEY ASSY
MQC-1290
タテx173.205
Ref.31-1
Ref.31-1
Ref.31-1
Ref.33-7
207
238
標準
Standard
標準
Standard
x9
I
C
J
D
B
A
115
116
116
115
197
226
J
H
H
I
E
E
B
A
G
F
G
K
K
L
C
D
F
K
L
L
64.68N.m
64.68N.m
64.68N.m
64.68N.m
4 - 2
4.1.アウトコンベア(DGQC)
4.1.Out conveyor(DGQC)
4.1.アウトコンベア(DGQC)
4.1.Out conveyor(DGQC)
薄厚基板対応(オプション)
Support for PCBs
Thinner than 0.5mm(Option)
薄厚基板対応(オプション)
Support for PCBs
Thinner than 0.5mm(Option)
CP-743ME,CP-742ME PARTS LIST

4.1.アウトコンベア(DGQC)
4.1.Out conveyor(DGQC)
番号 図番 & コード番号 個数 品名 規格 備考 材質
No. Drg.No. & Code No. QTY Description Rating Remarks Materials
2 DGQC3220 1 STOPPER ストッパ PL
3 DGQC3230 1 BKT, SENSOR BKT センサ FE
6 DGQC3090 1 BRIDGE ブリッジ FE
7 DGQC3100 1 BRIDGE ブリッジ FE
8 DGQC3024 1 PLATE, SIDE プレート サイド OT
9 DGQC3035 1 PLATE, SIDE プレート サイド OT
10 DGQC3110 1 BKT BKT FE
11 DGQC3120 1 BKT BKT FE
12 DCQC0710 1 STOPPER ストッパ FE
13 DCQC0830 1 STOPPER ストッパ 薄厚基板対応(オプション) FE
14 ADGQC8040 2 PULLEY ASSY プーリ ASSY 薄厚基板対応(オプション) OT
15 DGQC0690 2 PULLEY プーリ 薄厚基板対応(オプション) FE
16 DGQC3060 1 PLATE プレート FE
17 DGQC3130 2 BOLT, STUD ボルト スタッド FE
24 DGQC3180 1 LEVER レバー FE
28 DGQC3290 2 COLLAR カラー FE
30 DGQC3350 1 BKT BKT FE
31 DGQC3360 1 SHAFT シャフト FE
33 DGQC3300 1 STOPPER ストッパ PL
35 DCQC3390 1 BKT, WIRING BKT 配線 FE
39 DGQC3200 1 BKT BKT FE
40 DCQC3270 1 COLLAR カラー FE
41 DCQC3290 1 BKT BKT FE
43 DCQC3320 1 SHAFT シャフト FE
44 DCQC3330 1 SHAFT シャフト FE
45 DCQC3340 1 SHAFT シャフト FE
46 DCQC3350 1 SHAFT シャフト FE
51 ADGQC8030 1 HANDLE ASSY ハンドル ASSY OT
54 DCQC0330 2 PULLEY, MOTOR プーリ モータ OT
56 DCQC0720 1 STOPPER ストッパ FE
57 DCQC0820 1 STOPPER ストッパ 薄厚基板対応(オプション) FE
60 DCQC3541 1 BKT, SENSOR BKT センサ FE
61 DCQC3531 1 BKT BKT FE
66 CSQC1210 8 WASHER, SPHERICAL ワッシャ 球面 FE
67 CSQC1220 8 WASHER, SPHERICAL ワッシャ 球面 FE
68 CSQC1230 8 NUT, HEX ナット 六角 FE
70 MQC1061 2 TENSION PULLEY ASSY テンションプーリ ASSY OT
71 ADCQC8030 2 PULLEY ASSY プーリ ASSY 薄厚基板対応(オプション) OT
72 CSQC0570 4 STOPPER ストッパ OT
74 MQC1073 1 SEAL シール PL
75 MQC1292 4 PULLEY ASSY プーリ ASSY OT
76 MQC1300 1 SEAL シール PL
77 MQC3313 1 GUIDE, CONVEYOR ガイド コンベア FE
78 MQC3323 1 GUIDE, CONVEYOR ガイド コンベア FE
79 GVC0141 3 COLLAR カラー FE
80 GVC0320 2 COLLAR カラー FE
81 GVC0350 4 COLLAR カラー FE
CP-743ME,CP-742ME PARTS LIST
4 - 3
4.1.アウトコンベア(DGQC)
4.1.Out conveyor(DGQC)

4.1.アウトコンベア(DGQC)
4.1.Out conveyor(DGQC)
番号 図番 & コード番号 個数 品名 規格 備考 材質
No. Drg.No. & Code No. QTY Description Rating Remarks Materials
82 GVC2262 1 SPROCKET スプロケット FE
83 DGQC3370 1 BKT BKT OT
84 CLC9051 3 HOLDER ホルダ FE
85 CLN8690 2 SPROCKET スプロケット FE
86 IQC6041 2 RETAINER, BEARING 押え ベアリング FE
89 M5063H 2 MOTOR, REVERSIBLE モータ リバーシブル RM-H6A6ZMR244 OT
90 H4001T 2
HEAD, GEAR
ヘッド ギヤ 6GHA7.5A-Y-1 OT
91 DCQC3550 1 SW, PHOTOELECTRIC SW 光電 DL-S3R OT
95 H4445A 8
BEARING, MINIATURE
ベアリング ミニチュア LF-1050ZZ FE
96 S3034A 4 SPROCKET スプロケット RS25-13T 2-Type OT
97 S1022A 4
CIR-CLIP
サークリップ ST-EW-4 FE
98 T21382 1 CHAIN チェーン RS25NP 430リンク OT
99 T2026Z 1 CHAIN チェーン RS25NP 202リンク ツギテリンクツキ OT
100 T2017A 1 CHAIN チェーン RS25NP 62リンク エンドレス OT
101 N1014A 2
NUT, FINE U
ナット ファインU AN00 FE
102 H4440A 8
BEARING, MINIATURE
ベアリング ミニチュア L-1910ZZ FE
103 H4123A 1 BEARING ベアリング UFL000 FE
105 H4451A 2
BEARING, MINIATURE
ベアリング ミニチュア LF-1680ZZ FE
107 W10022 2 WASHER ワッシャ TL182(NO2) FE
108 S3033A 2 SPROCKET スプロケット RS25-13 1-Type OT
117 H2056A 1 PIN, SPRING ピン スプリング ゚4X14 FE
118 H2059A 1 PIN, SPRING ピン スプリング ゚4X20 FE
121 N1124A 1 NUT, LOCK ナット ロック MR10 FE
124 T20242 1 CHAIN チェーン RS25NP166リンク OT
125 K5335A 2
CONTROLLER, SPEED
コントローラ スピード JSU4 OT
131 DGQC3080 1 BALL SCREW ボールネジ OT
132 H42945 2 BEARING, SLIDE ベアリング スライド SSR15XWY1UUC1+400LH-2 FE
133 DGQC0110 1 PLATE プレート FE
134 DGQC0120 1 PLATE プレート FE
135 DGQC0260 2 GUIDE, BELT ガイド ベルト AL
136 DGQC0290 2 BELT ベルト PL
137 DGQC0700 2 BELT ベルト 薄厚基板対応(オプション) PL
138 DGQC0320 2 BAR, GUIDE バー ガイド FE
140 DGQC0340 2 BKT BKT FE
141 DGQC0350 2 BKT BKT FE
146 DGQC0420 1 SHAFT シャフト FE
153 DGQC0220 1 PLATE, GUIDE プレート ガイド FE
154 DGQC0230 1 PLATE, GUIDE プレート ガイド FE
157 H4444T 4 BEARING MINIATURE ベアリング ミニチュア LF-950ZZ FE
158 MQC1181 2 COLLAR カラー FE
159 DGQC0570 2 COLLAR, BEARING カラー ベアリング FE
160 DGQC0580 2 BKT BKT FE
161 DGQC0590 2 PULLEY プーリ FE
162 DGQC0600 2 BOLT ボルト FE
163 DGQC0610 1 BKT BKT FE
164 Y3075A 2 UNION ユニオン KQ2U06-00 OT
166 DGQC0140 1 BALL SCREW ボールネジ OT
CP-743ME,CP-742ME PARTS LIST
4 - 4
4.1.アウトコンベア(DGQC)
4.1.Out conveyor(DGQC)