CP-743ME-04 - 第99页
X 6 C C A A B B L O C T I T E 2 6 2 2 . 9 4 N . m T h r e e B o n d 1 3 7 3 B L O C T I T E 2 6 2 L O C T I T E 2 2 2 L O C T I T E 2 2 2 L O C T I T E 2 2 2 L O C T I T E 2 2 2 L O C T I T E 2 6 2 4 . 9 0 N . m L O C T …

Ref.33-7
X6
45
42
27
45
32
35
41
34
35
42
44
26
41
44
36
28
31
34
43
29
37
38
30
35
32
39
39
39
39
33
40
34
41
C
2
25
C
4
17
3
5
18
13
19
15
15
10
14
1
6
12
12
21
16
20
15
22
22
15
11
24
8
9
A
A
7
B
B
208
176
165
175
161
175
161
175
161
183
162
176
167
175
161
13
13
B
A
139
26
0.5 1 2
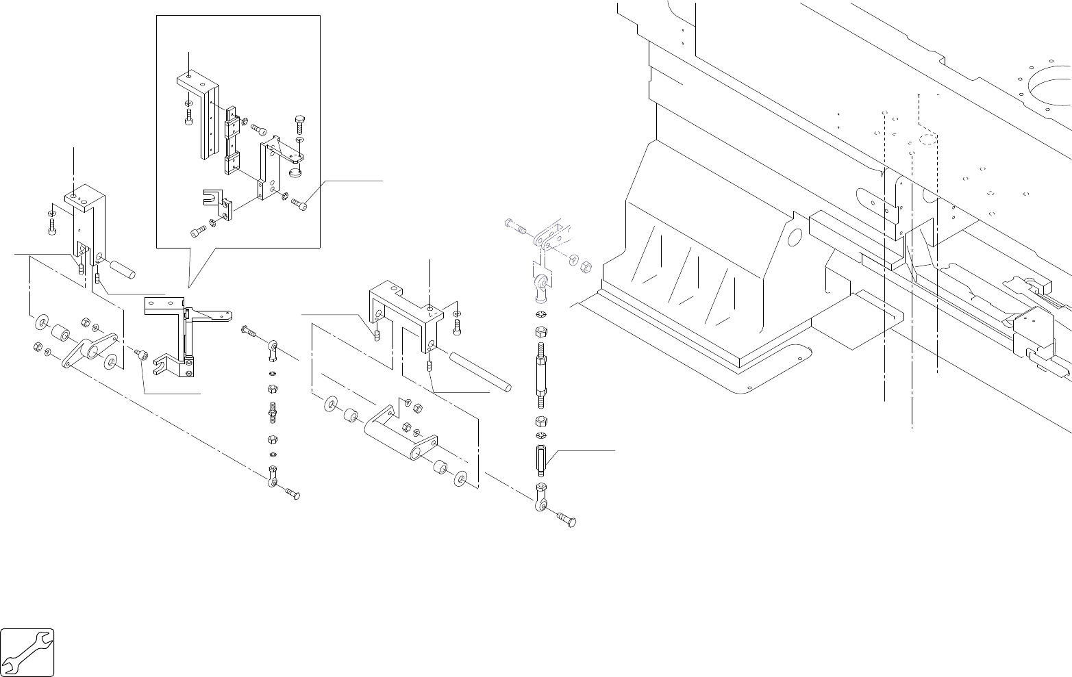
16.第3ステーション(位置決めクラッチ)(DGPP)
16.Station 3(Positioning clutch)(DGPP)
16.第3ステーション(位置決めクラッチ)(DGPP)
16.Station 3(Positioning clutch)(DGPP)
16 - 1
CP-743ME,CP-742ME PARTS LIST

X6
C
C
A
A
B
B
LOCTITE262
2.94N.m
ThreeBond1373B
LOCTITE262
LOCTITE222
LOCTITE222
LOCTITE222
LOCTITE222
LOCTITE262
4.90N.m
LOCTITE222
1.47N.m
16.第3ステーション(位置決めクラッチ)(DGPP)
16.Station 3(Positioning clutch)(DGPP)
16.第3ステーション(位置決めクラッチ)(DGPP)
16.Station 3(Positioning clutch)(DGPP)
16 - 2
CP-743ME,CP-742ME PARTS LIST

16.第3ステーション(位置決めクラッチ)(DGPP)
16.Station 3(Positioning clutch)(DGPP)
番号 図番 & コード番号 個数 品名 規格 備考 材質
No. Drg.No. & Code No. QTY Description Rating Remarks Materials
1 DCPP0010 1 JOINT ジョイント FE
2 DCPP0021 1 POSITIONING 位置決め FE
3 DCPP0030 1 BKT BKT FE
4 DCPP0040 1 BKT BKT FE
5 DCPP0050 1 BKT BKT FE
6 DCPP0060 1 LEVER レバー FE
7 DCPP0070 1 BKT BKT FE
8 DCPP0080 1 LEVER レバー FE
9 DCPP0090 1 BKT BKT FE
10 DCPP0100 1 BOLT ボルト FE
11 DCPP0110 1 SHAFT シャフト FE
12 DCPP0120 2 BOLT ボルト FE
13 DCPP0130 1 SHAFT シャフト FE
14 DCPP0140 1 SPACER スペーサ FE
15 WPP0100 4 COLLAR カラー CO
16 WPP0110 1 BOLT, JOINT ボルト ジョイント FE
17 WPP0151 1 GUIDE, RAIL ガイド レール OT
18 K1112A 1 CAM FOLLOWER カムフォロア CF05UU-A OT
19 H4388A 1
BEARING, NEEDLE
ベアリング ニードル TA1220Z FE
20 H3181T 1
PLATE, END
プレート エンド PBR6FN FE
21 H3181H 1
PLATE, END
プレート エンド PBRL6FN FE
22 H4409A 2
BEARING, NEEDLE
ベアリング ニードル TLA1212Z FE
24 H3181M 1
PLATE, END
プレート エンド PBRL8FN FE
25 DCPP0150 2 BOLT ボルト FE
26 N1088A
NUT, HEX
ナット 六角
M6-L FE
27 N1091A
NUT, HEX
ナット 六角
M8-L FE
28 H5274A
BOLT, HEX SOCKET
ボルト 六角穴
M3X6L FE
29 H5285A
BOLT, HEX SOCKET
ボルト 六角穴
M4X5L FE
30 H5298A
BOLT, HEX SOCKET
ボルト 六角穴
M5X10L FE
31 H5324A
BOLT, HEX SOCKET
ボルト 六角穴
M6X20L FE
32 H5342A
BOLT, HEX SOCKET
ボルト 六角穴
M8X25L FE
33 W1023A
WASHER, LOCK
ワッシャ スプリング 5M/M FE
34 W1024A
WASHER, LOCK
ワッシャ スプリング 6M/M FE
35 W1025A
WASHER, LOCK
ワッシャ スプリング 8M/M FE
36 W1010A WASHER, CONICAL ワッシャ 皿 M-3-L FE
37 W1011A
WASHER, CONICAL
ワッシャ 皿
M-4-L FE
38 W1012A
WASHER, CONICAL
ワッシャ 皿
M-5-L FE
39 N4037A
SCREW, HEX SOCKET SET
ネジ 六角穴止め
M5X8L FE
40 N1082A
NUT, HEX
ナット 六角
M5 P=0.8 FE
41 N1085A
NUT, HEX
ナット 六角
M6 P=1.0 FE
42 N1089A
NUT, HEX
ナット 六角
M8 P=1.25 FE
43 W1021A
WASHER, LOCK
ワッシャ スプリング 3M/M FE
44 W1013A
WASHER, CONICAL
ワッシャ 皿
M-6-H FE
45 W1014A
WASHER, CONICAL
ワッシャ 皿
M-8-H ・ FE
CP-743ME,CP-742ME PARTS LIST
16 - 3
16.第3ステーション(位置決めクラッチ)(DGPP)
16.Station 3(Positioning clutch)(DGPP)