KE-3010A_KE-3020VA_KE-3020VRA-Rev13 - 第145页
- 138 - NOTE( 注記 ) #01....FOR EN EN 用 REF.NO NOTE PART NO D E S C R I P T I O N 品 名 Qty 1 400-21958 FLOOR TROLLEY SUB UNIT フロアトロリーサブユニット 1 2 400-21959 TROLLEY BOTTOM ASS Y トロリーボトム組 (1) 3 400-21912 TROLLEY FRAME BL トロリーフレ…

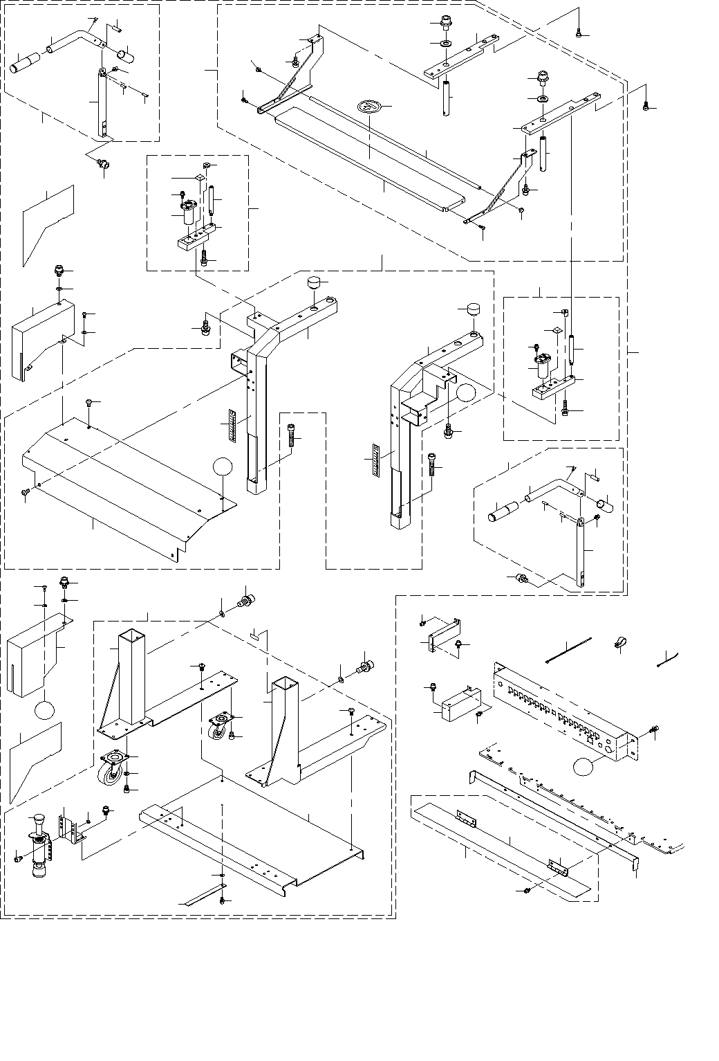
- 137 -
69.M REPLACING OVERALL CHANGER TRUCK COMPONENTS(WITH CONNECTOR BRACKET)(1)
メカ一括交換台車関係(コネクタブラケット有り)(1)
78
65
69
69
67
69
67
47
70
1
61
61
82
82
74
65
69
68
66
62
63
64
70
68
66
60
59
60
59
50
50
36
28
B
48
A
30
21
64
63
62
75
73
76
71
57
57
56
54
55
55
53
53
52
51
49
43
35
34
32
42
40
44
33
41
44
29
38
39
31
37
23
23
26
26
25
22
24
24
27
27
79
93
80
77
74
73
18
19
17
91
88
89
90
92
87
87
86
86
84
85
B
2
81
83
A
75
76
72
45
45
46
14
16
15
13
12
11
10
7
9
8
6
6
5
4
3
46
20
58

- 138 -
NOTE( 注記 ) #01....FOR EN EN 用
REF.NO NOTE PART NO D E S C R I P T I O N
品 名
Qty
1 400-21958 FLOOR TROLLEY SUB UNIT
フロアトロリーサブユニット
1
2 400-21959 TROLLEY BOTTOM ASSY
トロリーボトム組
(1)
3 400-21912 TROLLEY FRAME BL
トロリーフレームBL
(1)
4 400-21913 TROLLEY FRAME BR
トロリーフレームBR
(1)
5 400-21914 TROLLEY BASE PLATE
トロリーベースプレート
(1)
6 SM-3061252-TN SCREW M6 L=12
丸ねじ M6 L=12
(6)
7 400-21957 TROLLEY CASTER (75)
トロリーキャスタ(75)
(2)
8 WP-0612516-SD WASHER 6.1X15.2X2.5
平座金 6.1X15.2X2.5
(8)
9 SM-6060802-TN SCREW
六角穴ボルト
(8)
10 400-21956 TROLLEY CASTER (50)
トロリーキャスタ(50)
(2)
11 SM-6060802-TN SCREW
六角穴ボルト
(8)
12 E2711-721-000 TROLLEY STOPPER
トロリーストッパー
(2)
13 E2710-721-000 STOPPER ATTACHMENT
ストッパーアタッチメント
(2)
14 SM-6060802-TN SCREW
六角穴ボルト
(8)
15 SL-6061242-TN BOLT
座金付き六角穴ボルト
(4)
16 NM-6060003-SC NUT M6
六角ナット M6
(4)
17 WP-0430801-SC WASHER M4
平座金 M4
(2)
18 400-23476 FG GUM SHEET
FGゴムシート
(1)
19 SM-6040802-TN SCREW M4X0.7 L=8
六角穴ボルト M4X0.7 L=8
(1)
20 400-21960 TROLLEY UPPER ASSY
トロリーアッパー組
(1)
21 400-58933 TROLLEY FRAME L
トロリーフレームL
(1)
22 400-58934 TROLLEY FRAME R
トロリーフレームR
(1)
23 400-01731 TROLLEY RUBBER B
トロリーラバーB
(4)
24 400-01730 SCALE MARKS SEAL
メモリシール
(2)
25 400-58935 TROLLEY UPPER PLATE
トロリーアッパープレート
(1)
26 SM-3061252-TN SCREW M6 L=12
丸ねじ M6 L=12
(6)
27 SM-6125052-TR SCREW M12 L=150
六角穴ボルト M12 L=150
(2)
28 400-22464 STOPPER PLATE L ASSY
ストッパープレートL組
(1)
29 400-53180 TROLLEY STOPPER PLATE L
トロリーストッパプレートL
(1)
30 400-01748 TROLLEY SUB GUIDE
トロリーサブガイド
(1)
31 SL-6063092-TN SCREW M6 L=30
座金付き六角穴ボルト M6 L=30
(1)
32 E2703-721-000 TROLLEY SHAFT
トロリーシャフト
(1)
33 S1021-710-000 ST RUBBER FOOT
STゴム足
(1)
34 SB-8160005-C0 BEARING
ころがり軸受
(1)
35 SL-6041042-TN BOLT
座金付き六角穴ボルト
(4)
36 400-22465 STOPPER PLATE R ASSY
ストッパープレートR組
(1)
37 400-01735 TROLLEY STOPPER PLATE
トロリーストッパープレート
(1)
38 400-01748 TROLLEY SUB GUIDE
トロリーサブガイド
(1)
39 SL-6063092-TN SCREW M6 L=30
座金付き六角穴ボルト M6 L=30
(1)
40 E2703-721-000 TROLLEY SHAFT
トロリーシャフト
(1)
41 S1021-710-000 ST RUBBER FOOT
STゴム足
(1)
42 SB-8160005-C0 BEARING
ころがり軸受
(1)
43 SL-6041042-TN BOLT
座金付き六角穴ボルト
(4)
44 SL-6082092-TN SCREW M8 L=20
座金付き六角穴ボルト M8 L=20
(4)
45 WP-1052001-SC WASHER 10
平座金みがき丸 M10
(4)
46 SL-6102042-TN SCREW M10 L=20
座金付き六角穴ボルト M10 L=20
(4)
47 400-21961 TROLLEY SLIDE ASSY
トロリースライド組
(1)
48 400-21916 BANK PLATE L
バンクプレートL
(1)
49 400-21917 BANK PLATE R
バンクプレートR
(1)
50 400-23221 SUPPORT SHAFT
サポートシャフト
(2)
51 400-01736 FS BRACKET L
FSブラケットL
(1)
52 400-01737 FS BRACKET R
FSブラケットR
(1)
53 SL-6061692-TN SCREW M6 L=16
座金付き六角穴ボルト M6 L=16
(4)
54 400-01739 FS PLATE
FSプレート
(1)
55 SM-3040652-TN SCREW M4 L=6
丸ねじ M4 L=6
(4)
56 400-21918 TAPE GUIDE
テープガイド
(1)
57 400-68308 SET SCREW M4 L=8
化粧ねじ M4×8
(2)
58 E5721-729-000 LABEL
荷重禁止シール
(1)
59 SL-6102042-TN SCREW M10 L=20
座金付き六角穴ボルト M10 L=20
(2)
60 WP-1052001-SC WASHER 10
平座金みがき丸 M10
(2)
61 400-21962 TROLLEY HANDLE ASSY
トロリーハンドル組
(2)
62 400-21920 TROLLEY HANDLE
トロリーハンドル
(1)
63 E2641-729-000 HANDLE CLIP
ハンドルグリップ
(1)
64 E2635-729-000 HANDLE SLIDER
ハンドルスライダ
(1)
65 400-21919 HANDLE SHAFT
ハンドルシャフト
(1)
66 SL-6030642-TN SCREW M3 L=6
座金付き六角穴ボルト M3 L=6
(1)
67 SL-6040642-TN SCREW M4 L=6
座金付き六角穴ボルト M4 L=6
(1)
68 PS-0600182-KP SPRING PIN TYPE W 6X18
スプリングピン W形 6X18
(1)
69 PS-0400122-KP SPRING PIN TYPE W 4X12
スプリングピン W形 4X12
(2)
70 SL-6082092-TN SCREW M8 L=20
座金付き六角穴ボルト M8 L=20
(4)
71 400-58936 TROLLEY COVER AL
トロリーカバーAL
(1)
72 400-58937 TROLLEY COVER AR
トロリーカバーAR
(1)
73 SM-3040652-TN SCREW M4 L=6
丸ねじ M4 L=6
(4)
74 WP-0430801-SC WASHER M4
平座金 M4
(4)
75 WP-0841601-SC WASHER M8
平座金みがき丸 M8
(2)
76 SL-6081242-TN BOLT
座金付き六角穴ボルト
(2)
77 E4981-700-000 LABEL
EPR0M用ブランクラベル
(1)
78 400-58938 SIDE TAPE L
サイドテープL
(1)
79 400-58939 SIDE TAPE R
サイドテープR
(1)
80 HX-0006500-0B CABLE BAND
束線バンド
6
81 HX-0015000-0K CABLE CLIP
ケーブルクリップ
1
82 400-01734 SCREW
段ねじ
4
83 SL-6051492-TN BOLT
座金付き六角穴ボルト
4
84 E1173-725-000 PLATE STAND COVER L
プレートスタンドカバーL
1
85 E1174-725-000 PLATE STAND COVER R
プレートスタンドカバーR
1
86 SL-6040892-TN SCREW M4 L=8
座金付き六角穴ボルト M4 L=8
2
87 SL-6051092-TN SCREW M5 L=10
座金付き六角穴ボルト M5 L=10
2
88
#01
400-01749 BANK FLAP ASSY
バンクフラップ組
1
89 400-18388 BUTT HINGE
平型蝶番
(2)
90 400-18389 BANK FLAP
バンクフラップ
(1)
91
#01
400-01750 BANK COVER
バンクカバー
1
92
#01
SL-6040892-TN SCREW M4 L=8
座金付き六角穴ボルト M4 L=8
4
93 HX-0067400-00 CABLE BAND
ケーブルバンド
4

- 139 -
70.M REPLACING OVERALL CHANGER TRUCK COMPONENTS(WITH CONNECTOR BRACKET)(2)
メカ一括交換台車関係(コネクタブラケット有り)(2)
21
20
19
22
1
2
8
9
8
15
14
13
12
11
10
9
7
6
5
3
4
17
23
16
18
24
26
27
25
28