KE-2070_KE-2080_KE-2080R-Rev14PDFA - 第13页
- 6 - NO TE ( 注記 ) #01 .. ..FO R EN EN 用 # 0 2. .. . F O R S T S T 用 RE F.NO NO T E PA RT NO D E S C R I P T I O N 品 名 Q ty 1 400 - 004 81 AC INP U T UN IT AC 入力ユニット 1 2 HK -069 9501- 10 BLO C K T E RM INAL 端子台 (2 ) 3 HK…

- 5 -
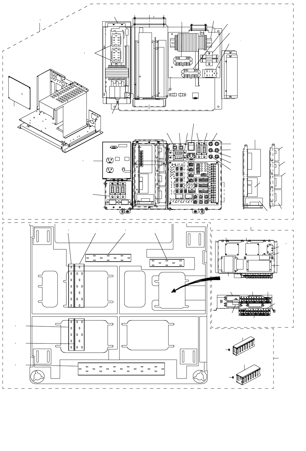
3. BASE FRAME ELECTRIC APPARATUS COMPONENTS (2)
ベースフレーム電装関係(2)
M4 * 8
60
58
59
61
41
42 43 44
56
5754 5552 5350 51
48
64 65
49
66
62 63
13 14
45
46
303940
31
31
36
15
16
17
18
28
19
29
26
27
33
47
88
5
3
12
6
7
10
9
2
2
4
11
1
37
21
22
23
24
32
34
25
38
20
35

- 6 -
NOTE( 注記 ) #01....FOR EN EN 用
#02....FOR ST ST 用
REF.NO NOTE PART NO D E S C R I P T I O N
品 名
Qty
1 400-00481 AC INPUT UNIT
AC 入力ユニット
1
2 HK-0699501-10 BLOCK TERMINAL
端子台
(2)
3 HK-0699900-20 BLOCK TERMINAL
ショートピース
(3)
4 HK-0699900-30 BLOCK TERMINAL
ショートピース
(4)
5 400-29567 AC TRANCE
AC トランス
(1)
6 HB-0010200-0A RELAY リレー (1)
7 HB-0011000-10 RELAY COVER
関連パーツ
(1)
8 HA-0053300-00 MAGNETIC CONTACTOR
コンタクタ
(2)
9 HN-0023700-00 NOISE FILTER
ノイズフィルタ
(1)
10 HC-0566030-P0 CAPACITOR
ブロックコンデンサ
(1)
11 HN-0023600-00 VARISTOR
サージプロテクタ
(1)
12 400-21645 RESISTOR ASM
温度ヒューズ付き抵抗組
(1)
13 400-49760 POWER UNIT ST
電源ユニット ST
1
14
#01
400-52396 POWER UNIT EN
パワーユニット EN
1
15 HX-0054300-0A POWER SUPPLY 24V
電源24 V
(1)
16 HX-0057700-00 POWER SUPPLY 5V
電源5 V
(1)
17 HX-0049400-0A POWER SOURCE 3.3V
電源3.3 V
(1)
18 KX-0000001-50 POWER SOURCE 6V
電源6 V
(1)
19 HX-0054200-00 POWER SOURCE 12V 電源12 V (1)
20 HM-0003300-0A FAN
ファン
(1)
21 400-01902 Z THETA POWER PCB ASM.
Zθ パワー基板組
(1)
22 HB-0012800-00 RELAY
リレー
(1)
23 HB-0005800-10 RELAY CLASP
リレー 止め金具
(1)
24 HB-0011000-0B RELAY
リレー
(1)
25
#02
HB-0012800-0C RELAY
リレー
(2)
26
#01
HA-0052400-00 CIRCUIT PROTECTOR 3A
サーキットプロテクター3 A
(1)
27 HA-0052900-00 SWITCH
スイッチ
(1)
28 HX-0054200-0B POWER SOURCE 24V
電源24 V
(1)
29 HX-0049400-0B POWER SUPPLY 12V
電源12 V
(1)
30 HA-0052400-0C CIRCUIT PROTECTOR 10A サーキットプロテクター10 A (1)
31 HA-0052400-0D CIRCUIT PROTECTOR 15A
サーキットプロテクター15 A
(2)
32 400-16764 TD HOLDER
TD ホルダ
(1)
33 400-95745 UPS
UPS
(1)
34 400-00479 UPS BRACKET
UPS ブラケット
(1)
35 SL-4040891-SC SCREW M4 L=8
座金付きなべ小ねじ M 4 L =8
(1)
36 400-01945 POWER PCB ASM.
パワー基板組
(1)
37
#02
HB-0011000-00 RELAY
リレー
(1)
38
#02
HB-0005800-10 RELAY CLASP
リレー 止め金具
(3)
39 HA-0052400-0C CIRCUIT PROTECTOR 10A
サーキットプロテクター10 A
(1)
40 HA-0052400-0D CIRCUIT PROTECTOR 15A
サーキットプロテクター15 A
(1)
41 HA-0052500-00 CIRCUIT PROTECTOR 30A
プロテクター30 A
(1)
42 HA-0052600-00 CIRCUIT PROTECTOR 50A
プロテクター50 A
(1)
43 HA-0052700-0A CIRCUIT PROTECTOR 40A プロテクター40 A (1)
44 HA-0052700-00 CIRCUIT PROTECTOR 30A
プロテクター30 A
(1)
45 HA-0052400-0A CIRCUIT PROTECTOR 5A
サーキットプロテクタ5 A
(1)
46 HA-0052400-0B CIRCUIT PROTECTOR 8A
サーキットプロテクタ8 A
(1)
47 400-11120 UPS BATTERY
UPS バッテリー
(1)
48 400-01563 DUCT ASSY
ダクト組
1
49 400-00522 DUCT BFR
ダクト BFR
(1)
50 400-00523 DUCT BRL
ダクト BRL
(1)
51 SL-4040891-SC SCREW M4 L=8
座金付きなべ小ねじ M 4 L =8
(2)
52 400-00524 DUCT BRR
ダクト BRR
(1)
53 SL-4040891-SC SCREW M4 L=8
座金付きなべ小ねじ M 4 L =8
(2)
54 400-00525 DUCT BRC
ダクト BRC
(1)
55 SL-4040891-SC SCREW M4 L=8
座金付きなべ小ねじ M 4 L =8
(2)
56 400-00526 DUCT BRC2 ダクト BRC 2 (1)
57 SL-4040891-SC SCREW M4 L=8
座金付きなべ小ねじ M 4 L =8
(2)
58 400-00527 DUCT UL
ダクト UL
(2)
59 SL-4040891-SC SCREW M4 L=8
座金付きなべ小ねじ M 4 L =8
(4)
60 400-00528 DUCT UR
ダクト UR
(2)
61 SL-4040891-SC SCREW M4 L=8
座金付きなべ小ねじ M 4 L =8
(4)
62 400-00520 DUCT BF
ダクト BF
(1)
63 SL-4040891-SC SCREW M4 L=8
座金付きなべ小ねじ M 4 L =8
(2)
64 400-00521 DUCT BFL
ダクト BFL
(1)
65 SL-4040891-SC SCREW M4 L=8
座金付きなべ小ねじ M 4 L =8
(2)
66 SL-4040891-SC SCREW M4 L=8
座金付きなべ小ねじ M 4 L =8
(2)

- 7 -
4. BASE FRAME ELECTRIC APPARATUS COMPONENTS (3)
ベースフレーム電装関係(3)
45
42
40 41
6
32
38
43
44
22
23
24 25
33
26
9
12
13
14
15
17
19
20
21
29
7
7
7
7
7
31
7
4
4
7
7
8
8
30
28
27
16
1
3
A
A
11
B
B
10
C
C
34 36
18
5
39
5 39
5 39
5
37
5
39
5
39
30