NPM Parts list(Mechanical 20090728) - 第230页
17-C 基 板 ホルダデュア ル対応:NPM Bo ard H old er For D ual :NP M パーツレイアウト Ki t N o . キット 品番 Kit N am e キット名称 N6 1009 341 2AA セクションNo. PARTS LAYOUT Section No. - - O123 ( KN610093412AA-04-3 )

Ref
No.
Remarks
R
1
Q'ty
17-B
基
板
ホルダデュアル対応:NPM
Board Holder For Dual:NPM
イラスト
No.
Part No.
品 名品番 数量
R
2
パーツリスト
Kit N
o
.
キット品
番
Kit Name
キット名称
N610093412AA
Part Name
備 考
セクションNo.
PARTS LIST
Section No.
R
3
PLATE
1
1 N210124259AB
PLATE
1
2 N210124261AB
PLATE
1
3 N210122002AC
CYL-NUT
1
4 N210113758AA
CYL-NUT
1
5 N210122004AA
PLATE
1
7 N210122003AC
PLATE
1
14 N210125619AA
DOG
1
15 N210125543AA
BRACKET
1
16 N210116006AB
GUIDE
1
21 N210122015AA
GUIDE
1
22 N210122016AA
CYLINDER
1
27 N510048152AA CM2F32-50
JOINT
2
28 KXF0DYW0A00 KQ2L06-01S
SPACER
2
29 N510038214AA ASF-630E
SCREW
2
30 XXE6D20FT
Hexagon socket set screw Cup point M6X20-45H SOB
LINEAR-BUSH
4
35 N510048236AA LMHC30LUU
WASHER
2
36 N510051843AA 87FWSSB-D46-V10.0-T5.0
JOINT
1
42 KXF0E1J6A00 KJL06-00
SENSOR
1
66 N510049698AA EE-SX910-C2J-R 0.2M
BOLT
1
67 N510017313AA
Hexagon socket head cap screw M3X16-10.9 A2J (Trivalent)
BOLT
2
68 N510017381AA
Hexagon socket head cap screw M4X8-10.9 A2J (Trivalent)
BOLT
10
69 N510017344AA
Hexagon socket head cap screw M4X10-10.9 A2J (Trivalent)
BOLT
10
70 N510017346AA
Hexagon socket head cap screw M4X12-10.9 A2J (Trivalent)
BOLT
20
71 N510017428AA
Hexagon socket head cap screw M6X12-10.9 A2J (Trivalent)
BOLT
2
72 N510017433AA
Hexagon socket head cap screw M6X16-10.9 A2J (Trivalent)
BOLT
4
73 N510017435AA
Hexagon socket head cap screw M6X20-10.9 A2J (Trivalent)
BOLT
2
74 N510017166AA
Hexagon socket head cap screw M10X25-10.9 A2J (Trivalent)
WASHER
2
75 N510018497AA
Round finish plain washer 4 10H A2J (Trivalent)
WASHER
2
76 N510018501AA
Round finish plain washer 6 10H A2J (Trivalent)
WASHER
3
77 N510018478AA
Small round-plain washer 3 10H A2J (Trivalent)
WASHER
4
78 N510020099AA Thick washer M4
WASHER
4
79 N510020101AA Thick washer M6
WASHER
3
80 N510018327AA Spring lock washer No.2 3 S A2J (Trivalent)
WASHER
8
86 N510018479AA
Small round-plain washer 4 10H A2J (Trivalent)
SPACER
2
96 N510020913AA ASF-455E
SHAFT
4
97 N510051414AA SF30163M10B
BOLT
2
102 N510017305AA
Hexagon socket head cap screw M3X10-10.9 A2J (Trivalent)
SCREW
2
105 XXE4D16FT
Hexagon socket set screw Cup point M3X25-45H SOB
O122
--
( KN610093412AA-04-2 )

17-C
基
板
ホルダデュアル対応:NPM
Board Holder For Dual:NPM
パーツレイアウト
Ki
t
N
o
.
キット
品番
Kit Name
キット名称
N610093412AA
セクションNo.
PARTS LAYOUT
Section No.
--
O123
( KN610093412AA-04-3 )

Ref
No.
Remarks
R
1
Q'ty
17-C
基
板
ホルダデュアル対応:NPM
Board Holder For Dual:NPM
イラスト
No.
Part No.
品 名品番 数量
R
2
パーツリスト
Kit N
o
.
キット品
番
Kit Name
キット名称
N610093412AA
Part Name
備 考
セクションNo.
PARTS LIST
Section No.
R
3
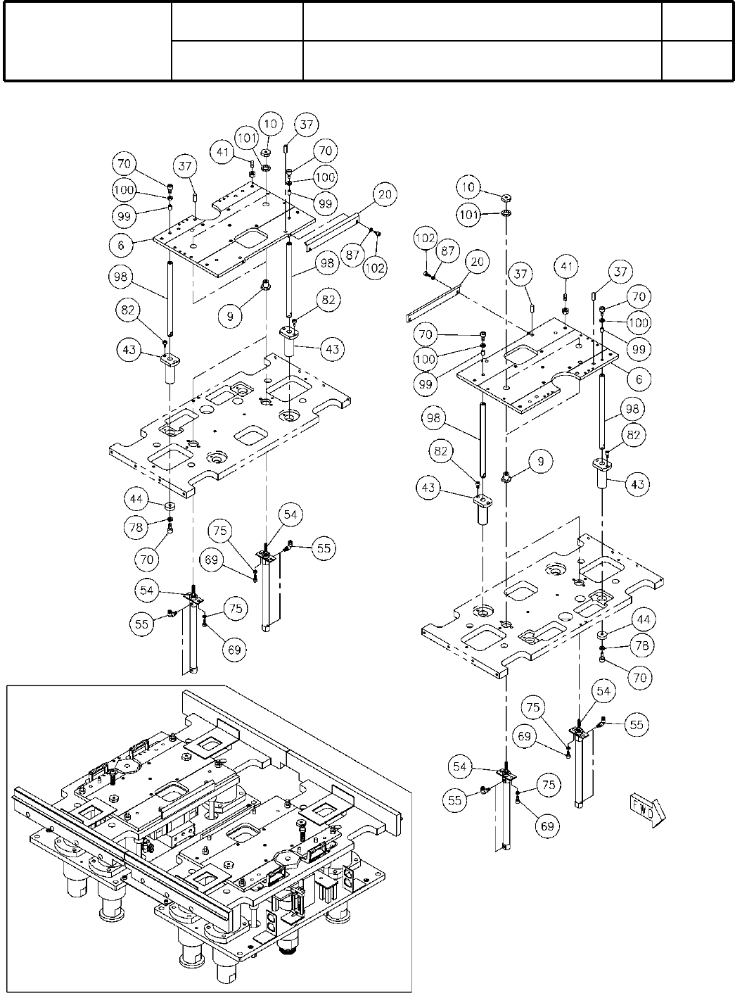
PLATE
2
6 N210124266AA
CYL-NUT
4
9 N210124185AA
CYL-NUT
4
10 N210122008AA
GUIDE
2
20 N210124181AA
PIN
8
37 N510020608AA MMS5-15
SCREW
8
41 N510034901AA 87ANBN6-15
LINEAR-BUSH
8
43 N510050719AA LMH8LUU
WASHER
4
44 N510039173AA RR6.5-16
CYLINDER
4
54 N510050739AA CJ2F10-100
JOINT
8
55 KXF0D2ZAA00 KQ2L04-M5
BOLT
8
69 N510017344AA
Hexagon socket head cap screw M4X10-10.9 A2J (Trivalent)
BOLT
12
70 N510017346AA
Hexagon socket head cap screw M4X12-10.9 A2J (Trivalent)
WASHER
8
75 N510018497AA
Round finish plain washer 4 10H A2J (Trivalent)
WASHER
4
78 N510020099AA Thick washer M4
BOLT
16
82 N510017341AA
Hexagon socket head cap screw M3X8-10.9 A2J (Trivalent)
WASHER
4
87 N510020098AA Thick washer M3
SHAFT
8
98 N510051415AA SF08146M04B
SPACER
8
99 N510051857AA CU-407PH
WASHER
8
100 N510032235AA 87URWM10-6-2
WASHER
4
101 N510051858AA 87URWM15-10-2
BOLT
4
102 N510017305AA
Hexagon socket head cap screw M3X10-10.9 A2J (Trivalent)
O124
--
( KN610093412AA-04-3 )