NPM Parts list(Mechanical 20090728) - 第311页
Kit Name Rank Q'ty 番号 Pa rt N o . キット名 品番 数量 ランク 頁 Pa ge No. U13 NPM:プロダ クション モジュラー NPM:Production Modular キットリスト Model No. 製品品番 Model Name 製品名称 NM-EJM9B KIT LIST 1 46 N610100486AA Dual Conveyor Station(Trannsport U…

U13
NPM:プロダクション モジュラー
NPM:Production Modular
キットレイアウト
Model No.
製品品番
Model Name
製品名称
NM-EJM9B
KIT LAYOUT
--
O203
( KEJM9BS-03-13 )

Kit Name
RankQ'ty
番号
Part No.
キット名
品番
数量 ランク
頁
PageNo.
U13
NPM:プロダクション モジュラー
NPM:Production Modular
キットリスト
Model No.
製品品番
Model Name
製品名称
NM-EJM9B
KIT LIST
1
46
N610100486AA
Dual Conveyor Station(Trannsport Unit):NPM
デュアルコンベアステーション(搬送部):NPM
O
231
1
47
N610080607AA PDA Support Unit:NPM
PDA対応ユニット:NPM
O
245
1
48
N610104465AA
Attachment(LNB/HUB Dual Conveyor):NPM
付属品(LNB/HUBデュアルコンベア):NPM
O
247
O204
--
( KEJM9BS-03-13 )

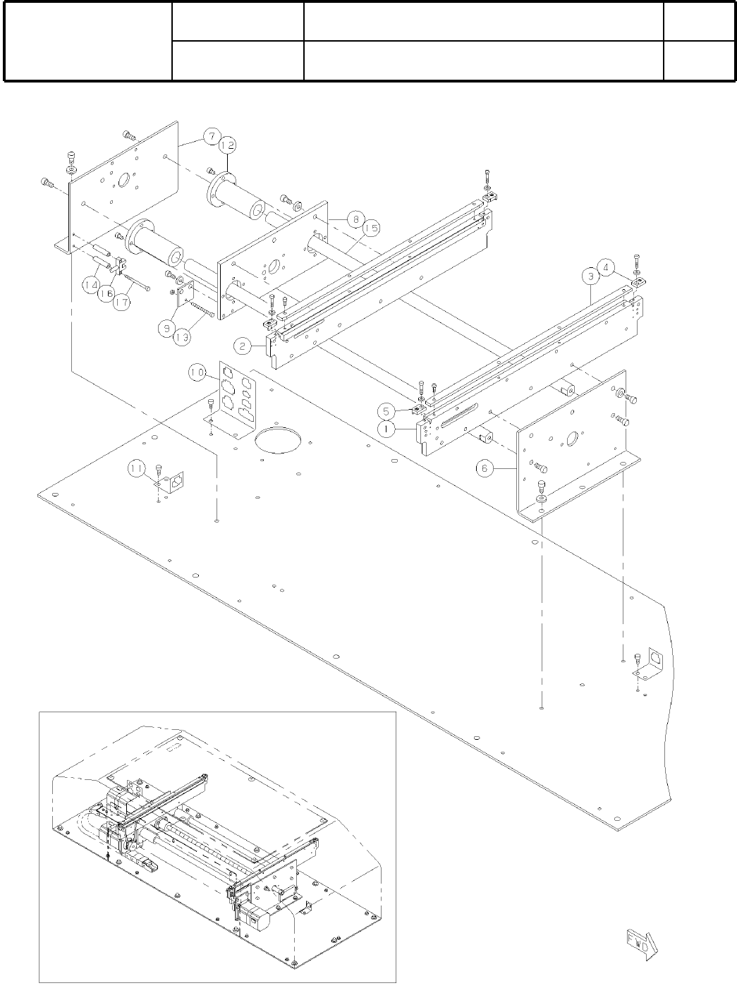
38-A
シングルコンベアステーション(
搬送部
):NPM
Single Conveyor Station(Trannsport Unit):NPM
パーツレイアウト
Ki
t
N
o
.
キット
品番
Kit Name
キット名称
N610076441AA
セクションNo.
PARTS LAYOUT
Section No.
--
O205
( KN610076441AA-09-1 )