NPM Parts list(Mechanical 20090728) - 第343页
Ref No. Remark s R 1 Q'ty 46-C デュアルコンベアステーション( 搬送部 ):NPM Dual Conveyor Station(Trannsport Unit):NPM イラスト No. Part No. 品 名 品番 数量 R 2 パーツリスト Kit N o . キット品 番 Kit Name キット名称 N610100486AA Part Name 備 考 セクションNo. PARTS LI…

46-C
デュアルコンベアステーション(
搬送部
):NPM
Dual Conveyor Station(Trannsport Unit):NPM
パーツレイアウト
Ki
t
N
o
.
キット
品番
Kit Name
キット名称
N610100486AA
セクションNo.
PARTS LAYOUT
Section No.
--
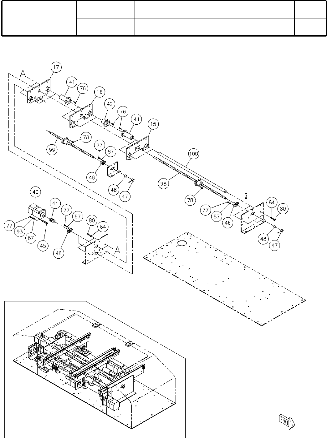
O235
( KN610100486AA-03-3 )

Ref
No.
Remarks
R
1
Q'ty
46-C
デュアルコンベアステーション(
搬送部
):NPM
Dual Conveyor Station(Trannsport Unit):NPM
イラスト
No.
Part No.
品 名品番 数量
R
2
パーツリスト
Kit N
o
.
キット品
番
Kit Name
キット名称
N610100486AA
Part Name
備 考
セクションNo.
PARTS LIST
Section No.
R
3
PLATE
1
15 N210123030AC
PLATE
1
16 N210123031AC
PLATE
1
17 N210123032AB
MOTOR
2
40 N510037232AA
S
DU13H713S-01
BUSH
4
41 N510016960AA LMF16LUU
LINEAR-BUSH
2
42 N510051435AA LMF16UU
COUPLING
2
44 N510034822AA MSF-20-D8XD8(2-M5)
SPACER
8
45 N510029496AA ASF-454E
BEARING
4
46 KXF03G0AA00 SFB38-10
COLLAR
2
47 N510020791AA 87SCCN10-10
COLLAR
2
48 N510047330AA 87FNCLB-V10.0-D13.0-L11.0
BOLT
24
76 N510017376AA
Hexagon socket head cap screw M4X6-10.9 A2J (Trivalent)
BOLT
16
77 N510017344AA
Hexagon socket head cap screw M4X10-10.9 A2J (Trivalent)
BOLT
8
78 N510017351AA
Hexagon socket head cap screw M4X16-10.9 A2J (Trivalent)
BOLT
4
80 N510017390AA
Hexagon socket head cap screw M5X12-10.9 A2J (Trivalent)
WASHER
4
84 N510018499AA
Round finish plain washer 5 10H A2J (Trivalent)
WASHER
16
87 N510018479AA
Small round-plain washer 4 10H A2J (Trivalent)
WASHER
8
93 N510018330AA Spring lock washer No.2 4 S A2J (Trivalent)
BALL-SCREW
1
98 N510051789AA XSTR01204C1DFC7-664-P0(PA100901)
BALL-SCREW
1
99 N510051791AA XSTR01204C1DFC7-404-P0(PA100900)
SHAFT
2
100 N510051792AA SF16614M05B
O236
--
( KN610100486AA-03-3 )

46-D
デュアルコンベアステーション(
搬送部
):NPM
Dual Conveyor Station(Trannsport Unit):NPM
パーツレイアウト
Ki
t
N
o
.
キット
品番
Kit Name
キット名称
N610100486AA
セクションNo.
PARTS LAYOUT
Section No.
--
O237
( KN610100486AA-03-4 )