NPM Parts list(Mechanical 20090728) - 第430页
68-A 交 換 台車駆 動部 (切替仕様):NPM Feeder Cart D riv e Unit(Changing Specification):NPM パーツレイアウト Ki t N o . キット 品番 Kit N am e キット名称 N6 1009 825 5AA セクションNo. PARTS LAYOUT Section No. - - O323 ( KN610098255AA-03-1 )

Kit Name
RankQ'ty
番号
Part No.
キット名
品番
数量 ランク
頁
PageNo.
U22
NPM:プロダクション モジュラー
NPM:Production Modular
キットリスト
Model No.
製品品番
Model Name
製品名称
NM-EJM9B
KIT LIST
1
68
N610098255AA
Feeder Cart Drive Unit(Changing Specification):NPM
交換台車駆動部(切替仕様):NPM
O
323
1
69
N610075309AA
Feeder cart support unit(rear side)H:NPM
交換台車対応U(後側)制御:NPM
O
329
1
70
N610084840AA
Label(Feeder Cart Changing Unit Drive Part):NPM
銘板・警告ラベル(交換台車切替ユニット駆動部):NPM
O
331
1
71
N610090796AA Coupler Extension Part:NPM
ドロアコネクタ延長部:NPM
O
333
1
72
N610101773AA Label(Coupler Extension Unit):NPM
銘板・警告ラベル(ドロアコネクタ延長ユニット):NPM
O
335
1
73
N610098516AA Change Support Cart:NPM
切替用台車:NPM
O
337
O322
--
( KEJM9BS-03-22 )

68-A
交
換
台車駆
動部
(切替仕様):NPM
Feeder Cart Drive Unit(Changing Specification):NPM
パーツレイアウト
Ki
t
N
o
.
キット
品番
Kit Name
キット名称
N610098255AA
セクションNo.
PARTS LAYOUT
Section No.
--
O323
( KN610098255AA-03-1 )

Ref
No.
Remarks
R
1
Q'ty
68-A
交
換
台車駆
動部
(切替仕様):NPM
Feeder Cart Drive Unit(Changing Specification):NPM
イラスト
No.
Part No.
品 名品番 数量
R
2
パーツリスト
Kit N
o
.
キット品
番
Kit Name
キット名称
N610098255AA
Part Name
備 考
セクションNo.
PARTS LIST
Section No.
R
3
BLOCK
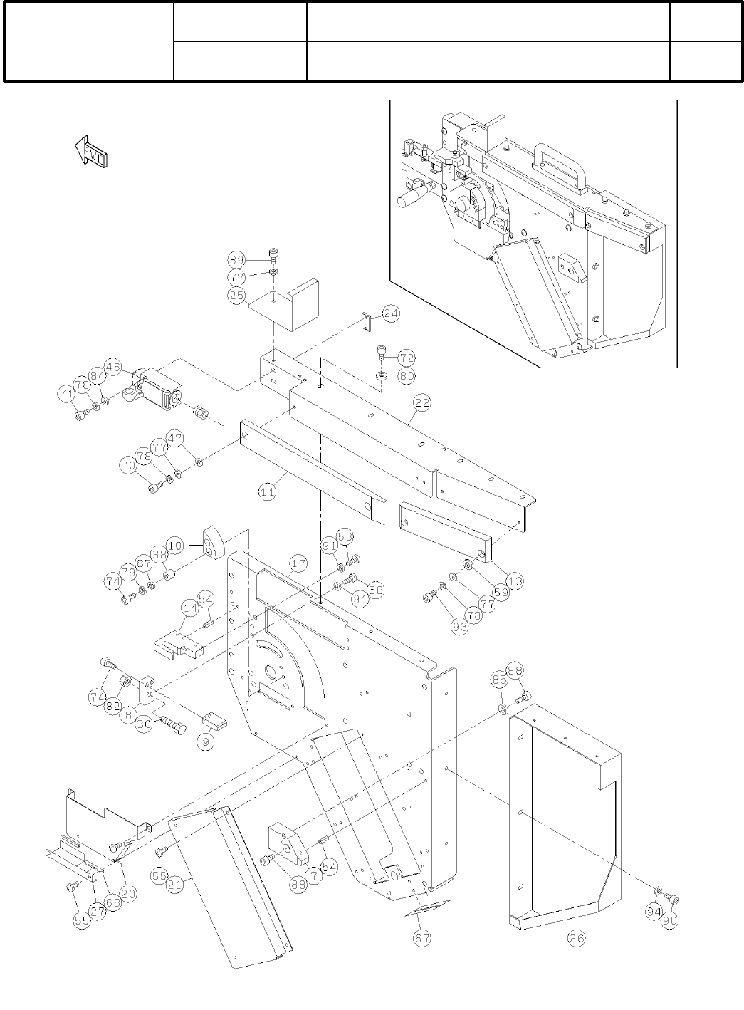
1
7 N210091111AC
PLATE
1
8 N210103084AB
PLATE
1
9 N210091113AA
GUIDE
1
10 N210093809AB
GUIDE
1
11 N210105774AC
GUIDE
1
13 N210103086AC
GUIDE
1
14 N210103087AC
PLATE
1
17 N210105332AE
COVER
1
20 N210103101AB
COVER
1
21 N210103092AB
BRACKET
1
22 N210112902AC
NUT-PLATE
1
24 N210091006AA
COVER
1
25 N210126107AA
COVER
1
26 N210117400AB
BRACKET
1
27 N210126108AA
STOPPER
1
30 N610078705AA
SPACER
2
38 N510038787AA 3382330-50120
SWITCH
1
46 N510040005AA
S
D4N-9122
SPACER
2
47 N510009576AA 3382330-40020
PIN
4
54 KXF0CXHAA00 1017003-40008
SCREW
8
55 N510018280AA
Cross recessed Truss head machine screw M4X6-4.8 A2S (Trivalent)
BOLT
4
58 N510017555AA
SSS 003 Hexagon socket button head screw M6X12-10.9 A2J (Trivalent)
SPACER
2
59 N510020086AA 3382330-40050
TAPE
2
67 N510012192AA #500AS20
TRIM
2
68 KXF0DUDAA00 CE-012
BOLT
2
70 N510017381AA
Hexagon socket head cap screw M4X8-10.9 A2J (Trivalent)
BOLT
2
71 N510017361AA
Hexagon socket head cap screw M4X30-10.9 A2J (Trivalent)
BOLT
4
72 N510017386AA
Hexagon socket head cap screw M5X10-10.9 A2J (Trivalent)
BOLT
4
74 N510017398AA
Hexagon socket head cap screw M5X20-10.9 A2J (Trivalent)
WASHER
6
77 N510018497AA
Round finish plain washer 4 10H A2J (Trivalent)
WASHER
6
78 N510018330AA Spring lock washer No.2 4 S A2J (Trivalent)
WASHER
2
79 N510018332AA Spring lock washer No.2 5 S A2J (Trivalent)
WASHER
4
80 N510020100AA Thick washer M5
NUT
1
82 N510017877AA
Hexagon nut Type-1 Best class M8-6H-4T A2J (Trivalent)
WASHER
2
84 N510018479AA
Small round-plain washer 4 10H A2J (Trivalent)
WASHER
2
85 N510018503AA
Round finish plain washer 8 10H A2J (Trivalent)
WASHER
2
87 N510018480AA
Small round-plain washer 5 10H A2J (Trivalent)
BOLT
2
88 N510017472AA
Hexagon socket head cap screw M8X20-10.9 A2J (Trivalent)
BOLT
2
89 N510017376AA
Hexagon socket head cap screw M4X6-10.9 A2J (Trivalent)
BOLT
3
90 N510017344AA
Hexagon socket head cap screw M4X10-10.9 A2J (Trivalent)
WASHER
4
91 N510018481AA
Small round-plain washer 6 10H A2J (Trivalent)
BOLT
2
93 N510017346AA
Hexagon socket head cap screw M4X12-10.9 A2J (Trivalent)
WASHER
3
94 N510020099AA Thick washer M4
O324
--
( KN610098255AA-03-1 )