circuit of HS60 - 第136页
5 - 4 00329073-010101ND3 +5VDC/+24VDC power supply , KSP- NTS50-24 SIEMENS AG Bauteilangabe n nur zur Information Weitergabe sowie Vervielfaeltigung dieser Unte rlage, Ver- wertung und Mitte ilung ihres Inh alts nicht ge…

5 - 3
00328492-010101ND3 ± 12 VDC power supply, KSP - NTS50 - 12
socket, red
Telephone
X4
R6
thermolube
using
Heat sink fitted
on converter
PH75S48-12
DC/DC converter
C11
470uF 25V +
V3
R3
C6
Not used
R4
X2
G2
C10
C12
+
C13
V6
Not used
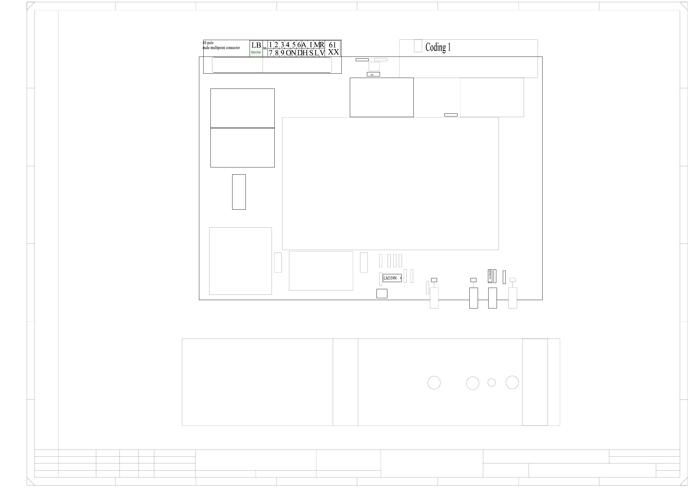
15-pole male multipoint connector
R7
C14
+
R8
470uF 25V +
470uF 25V +
AUT5 00328492-01
MADE IN GERMANY
SIEMENS
TZ
6AR1306-0DY00-0A00
KSP-NTS50-12
KS:01
LB-XXXXXXXX
male multipoint connector
Telephone
socket, red
Stand.Status Modified NameDate Orig. Replacement for Replaced by
Author
Date
Check.
Sheet
Sh.
=
SIEMENS AG
+
B
432
567
KSP - NTS50 - 12
1
8
F
D
234
B
A
8
1
C
E
5
C
D
E
F
76
A
Ruh
Ruh
1.
1.
1.
14.09.98
14.09.98
14.09.98
14.09.1998
Ruhland
Power supply ± 12 VDC
00328492-010101ND3
PL EA1 E2
1
1
Ruh
besondere fuer den Fall der Patenterteilung oder GM-Eintragung.
nicht ausdruecklich zugestanden. Alle Rechte vorbehalten, ins-
wertung und Mitteilung ihres Inhalts nicht gestattet, soweit
Weitergabe sowie Vervielfaeltigung dieser Unterlage, Ver-
Bauteilangaben nur zur Information Confiado como secrete industrial. Nos reservamos todos los derechos.
Proprietary data , company confidential . All rights reserved.
Confie a titre de secret d'entreprise. Tous droits reserves.
Comunicado como segredo empresarial. Reservados todos os direitos.
Function status
Product status
Doc. status
SMD Placement System SIPLACE HS60
+ 220uF 63V
X3
R2
V2
R1
V1
+ 220uF 63V
C2
L1
X1
on converter
using
C4
G1
thermolube
C3
C15
Heat sink fitted
PH75S48-12
DC/DC converter
C5
470uF 25V +
C7
48-pole
220uF 63V +
F1
F2
C16
+ 220uF 63V
L2
V5
R5
C9
V4

5 - 4
00329073-010101ND3 +5VDC/+24VDC power supply, KSP-NTS50-24
SIEMENS AG
Bauteilangaben nur zur Information
Weitergabe sowie Vervielfaeltigung dieser Unterlage, Ver-
wertung und Mitteilung ihres Inhalts nicht gestattet, soweit
nicht ausdruecklich zugestanden. Alle Rechte vorbehalten, ins-
besondere fuer den Fall der Patenterteilung oder GM-Eintragung.
1.
1.
1.
F
1
Doc. status
Product status
Function status
Ruh
Ruh
Ruh
14.09.98
14.09.98
14.09.98
E
D
23
14.09.1998
Ruhland
PL EA1 E2
4
Comunicado como segredo empresarial. Reservados todos os direitos.
Confie a titre de secret d'entreprise. Tous droits reserves.
Proprietary data , company confidential . All rights reserved.
Confiado como secrete industrial. Nos reservamos todos los derechos.
C
B
A
1234
SMD Placement System SIPLACE HS60
00329073-010101ND3
5
Power supply +5VDC/+24VDC
KSP-NTS50-24
678
1
+
=
1
F
E
D
567
C
B
8
A
+ 220uF 63V
220uF 63V +
C2
X3
V2
V1
R2
R1
C1
C4
L1
F2
F1
X1
C6
R7
R4
R3
R9
R8
G1
PH-100S-48-5
N.u.
V3
+ 220uF 63V
220uF 63V +
C9
C3
C8
C11
L2
V5
R5
C10
X4
R6
V4
R12
R11
R10
C5
C12
X2
C13
N.u.
V6
G2
PH-150S-48-24
LB-XXXXXXXX
AUT5 00329073-01
MADE IN GERMANY
SIEMENS
6AR1306-0RY00-0A00
TZ
KSP-NTS50-24
KS:01
DC/DC converter
on converter
Heat sink fitted
using
thermolube
thermolube
DC/DC converter
Heat sink fitted
on converter
using
15-pole male multipoint connector
male multipoint connector
48-pole
socket, red
Telephone
socket, red
Telephone
Stand.Status Modified NameDate Orig. Replacement for Replaced by
Check.
Author
Date
Sheet
Sh.

5 - 5
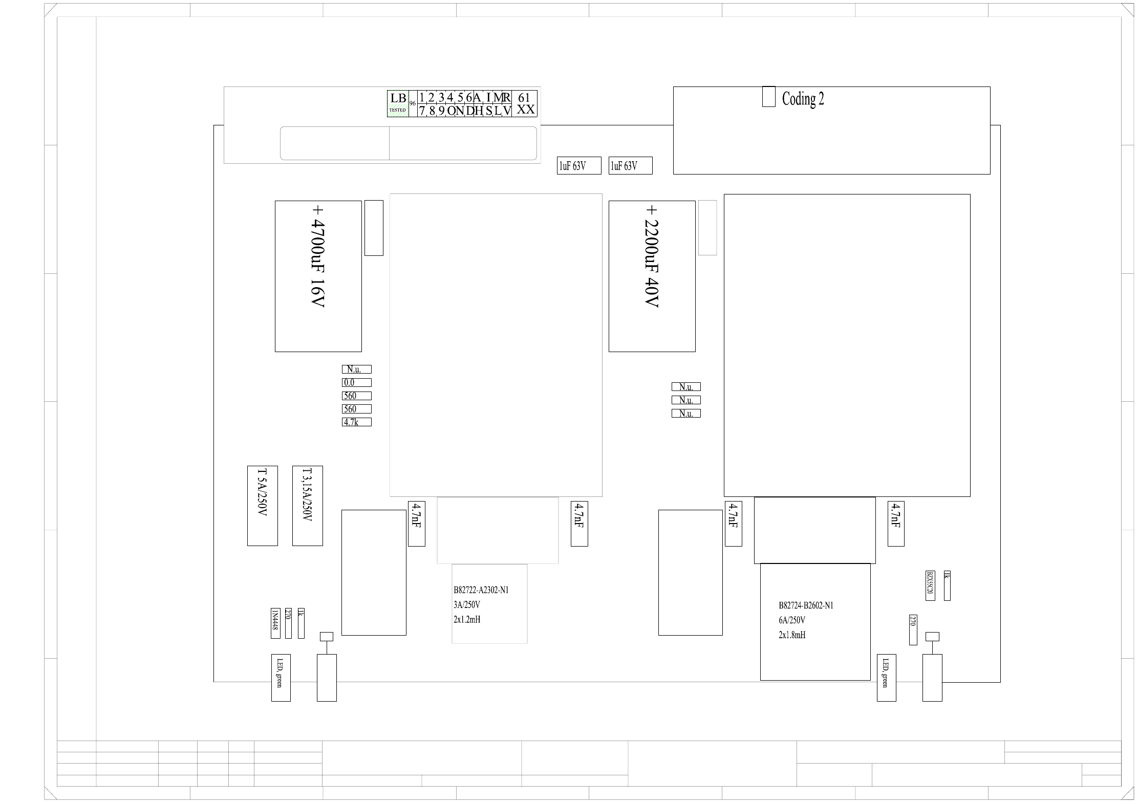
00329220-010101ND3 +5VDC power supply, KSP-NTS50-5
A
1234
SMD Placement System SIPLACE HS60
00329220-010101ND3
5
Power supply + 5 VDC
KSP-NTS50-5
678
1
+
=
1
F
E
D
567
C
B
8
A
10A/250V
B82725-A2103-N1
Front plate
fixed with cable ties!
*
C3
63V
+1000uF
C4
C2
G1
*
C15
63V
R5
1uF
R6
39k
R8
R9
39k
U1
R10
R13
R7
Telephone
socket, red
X5
R4
T 6,3A 250V
L1
63V
F1
*
C8
C1
X1
63V
+1000uF
*
+1000uF
MADE IN GERMANY
SIEMENS
X2
16V
4700uF+
Heat sink fitted to converter using thermolube
DC/DC converter PH-300F-48-5
V3
*
n.b.
R3
C6 C7
LB-XXXXXXXX
AUT5 00329220-01
6AR1306-0BY00-0A00
KSP-NTS50-5
TZ
KS:01
R11
100
15-pole male multipoint connector
63V
1uF
R12
C5
100
5V/60A
X4
100
socket, bk
Telephone
X3
socket, red
LED, green
V2
R1
V1
R2
Telephone
+4700uF
16V
*
Not used
Sheet
Sh.
Stand.Status Modified NameDate Orig. Replacement for Replaced by
Check.
Author
Date
2 x 1,8mH
4,7nF
4,7nF
2,2k
2,2k 2,2k
2,2k
2,2k
2,2k
4,7k
SIEMENS AG
Bauteilangaben nur zur Information
Weitergabe sowie Vervielfaeltigung dieser Unterlage, Ver-
wertung und Mitteilung ihres Inhalts nicht gestattet, soweit
nicht ausdruecklich zugestanden. Alle Rechte vorbehalten, ins-
besondere fuer den Fall der Patenterteilung oder GM-Eintragung.
1.
1.
1.
F
1
Doc. status
Product status
Function status
Ruh
Ruh
Ruh
19.08.98
19.08.98
19.08.98
E
D
23
19.08.1998
Ruhland
PL EA1 E2
4
Comunicado como segredo empresarial. Reservados todos os direitos.
Confie a titre de secret d'entreprise. Tous droits reserves.
Proprietary data , company confidential . All rights reserved.
Confiado como secrete industrial. Nos reservamos todos los derechos.
C
B