circuit of HS60 - 第53页
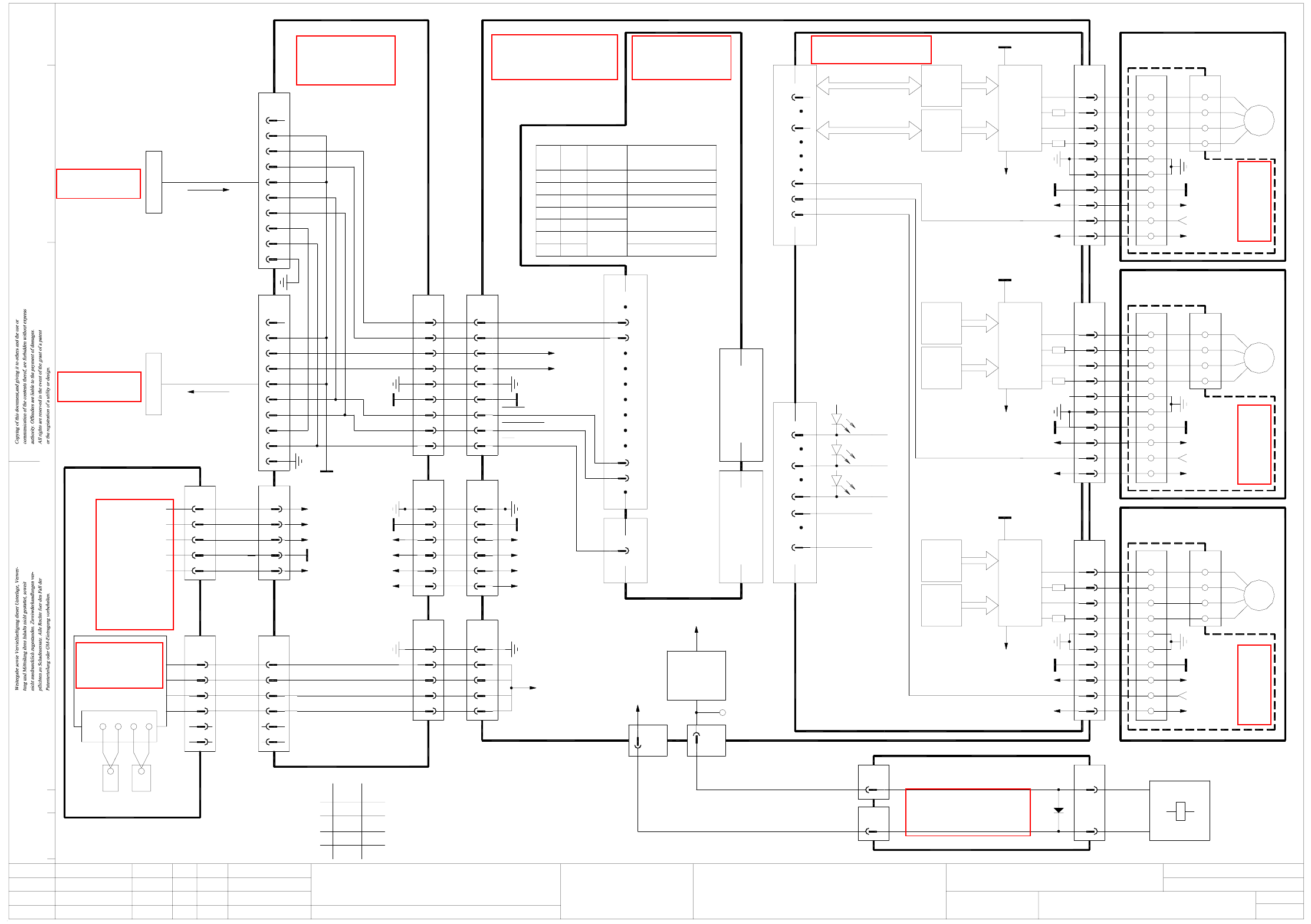
2 - 9 X02 X axis, gantry 2, SIPLA CE HS-6 0 6 5 key Tacho_P Tacho_N 1K N.C. X4vc 3 1 2 4 N.C. key X1vc 8/d 14/d 12/ z 12/d 4/d 4/z 10/d 16/d 30/d,b,z 6/d 6/z 32/d,b,z 26,2 8/d, b,z 22,2 4/d, b,z 18,2 0/d, b,z INOM_U INOM…

2 - 8
ZM01 Collect&Place head/adjustment drives, forced air,
gantry 1, SIPLACE HS-60
5
4
3
+5V
+15V
-15V
GNDGND
(W1)
X15aa
1
2
+24V
47100
bn
wh
DIN
X2aa X2ac
3
4
5
2
1
3
4
5
2
1
00335110-xx
(Cable)
VSM = +15V
Voltage for
step motors
6
4
1
2
3
X2dq
6
4
1
2
3
X10aa
5 5
Key
N.C.
Key
Power supply
step motors
00336179-xx
1*)
2*)
3*)
4*)
(Cable)
GND
X4ah
CAN bus
500 KBit/sec
CAN bus
500 KBit/sec
00335317-xx
X23ba
Gantry
INT
X6as
3
110
X1as
10
X2as
(as) 00330648-xx
SP6-12, digital
Intermediate distributor
D5
rd
bk
Micro relay valve
forced air
00321219-xx
10
X14ac
X13ac
10
+24V
00333491-xx
(Cable W1)
00333491-xx
(Cable W2)
distributor 2
X101/18a
X102/1
X101/3a
X101/15a
X101/12a
HS60 main
00336154-xx
distributor
(do)
2*)
wh
Belden
1*) bk
2*)5
1*)4
3rd
X2do
wh
bk1
2(W1)
Cable color coding
(W2)
(W1)
(W2)
22
25
16,28
13
10,19,31
1,34
Gantry distributor HS60
00335413-xx
X1aa
X23aa
9
10
8
7
6
5
2
4
3
1
10
X22aa
9
8
7
6
3
4
5
2
1
gantry 1
CAN_OUT_HI
32
33
29
30
X1ac
30
29
33
32
00335108-xx
(Cable)
CAN_OUT_LO
CAN_IN_LO
CAN_IN_HI
+24V
1,34
10,19,31
13
16,28
25
22
GND
+15V
-15V
+5V
-15V
+15V
+5V
GND
+24V
00335318-xx
Tape cutter 1
X3aa
00335109-xx
(Cable)
X3ac
27
25
26
27
25
26
RESET
POWERFAIL
forced air, gantry 1
(aa)
34
31
31
34
GNDGND
ZM01.DWG
Stromlaufplan/Circuit diagram
SD EA
Hi
SMD Placement System SIPLACE HS60
1
1
Collect&Place head / adjustment drives /
00335228-xx
(Cable)
00335250-xx
2
X1
413
37a X102
0 Volt
rail
4*)
gn
3*) rd
ye
gn
+34V
01.
01.
02.
Doc. status
Product status
Function status
Hi
Hi
Hi
ZM01-010102LD3
Sh.
Sh.
Orig./Repl.f/Replaced by
CAD file:
Mat. no.:
Date
Author
Check.
Stand.NameDateModifiedStatus
SIPLACE HS60
27.01.03
27.01.03
27.01.03
27.01.2003
DEMATIC
SIEMENS
MP6_10_1
J31
ULN2803
18
to port P5.0
1
AVENT_BL_SP
feed area
Output
9
Adjustment drivt
00367074-xx
9Lightbarrier for
OUT1B
OUT1A
OUT2A
OUT2B
dp-station adjustment drive
N2
Light barrier for
+15V
+5V
13, 31
+Vs
21
14
82C55A
82C55A
"Pickup placement station"
N1
errors
1, 18, 19, 35
PCx
PCx
N5
34
5
L6258
PGND
+15V
M
rd333
10
9
8
10
9
8
7
6
4
5
7
6
4
5
00350382-xx
+15V
Output
+5V
4ye
X2
2
1
X17ac
2
1
10 10
X3
00353545-xx
2
1
or
br
+15V
Dp axis adjustment drive
Adjustment drivt
OUT1B
OUT1A
OUT2A
OUT2B
OUT1A
OUT1B
OUT2A
OUT2B
PBx
L625882C55A
82C55A
Analyze
feed area
DP axis
errors
Fetch
errors
feed area
N2
N1
13, 31 21
+Vs
+5V
PBx
34
14
N4
5
+15V
1, 18, 19, 35
PGND
"reject station"
Light barrier for
+Vs
+5V
Step motor board, modular
82C55A
82C55A
N2
00344488-xx
N1
5
13, 31
PAx
21
34
14
1, 18, 19, 35
PGND
PAx
L6258
N3
66
M
X18ac
X2
7
8
Key
6
5
7
8
6
5
2
4
3
1
2
4
3
1
+5V
X3
2
4
3
1
or
rd
ye
br
8
10
9
Key
7
8
10
9
7
00368076-xx
"Pickup" adjustment drive
+15V
Output
+5V
00359364-xx
Adjustment drivt
M
X2
5
4
3
2
5
4
3
2
X19ac
11
4
3
2
ye
or
rd
X3
00368074-xx
"Reject" adjustment drive
1br
CAN ID1
EPROM_WE
resistor, 120 ohms
CAN terminating
Test_Mode
CAN_ERR_SWITCH
CAN ID0
Gantry head distribution board
00344487-xx (ac)
24
X7 X2
default
gantry 1
X6 X1
default
default
default
default
CAN_IN_LO
CAN_IN_HI
9
7
6
X9
X8
X4
X3
V8
X1X27
V9
V10
4
2
2
4
6
Processor board
00344485-xx
30
X28 X2
38
No.3
No.4
No.2
No.6
No.5
No.7
No.8
ON
ON
ON
ON
OFF
OFF
OFF
No.1
S1 switch
OFF
5
4
7
6
default
HS60, gantry 1
See page 5-7
See page 5-14
See page 5-34
See page 5-24
See page 5-14
See page 5-27
See page 5-26
See page 5-29
See page 5-40
See page 5-32
See page 5-10
See page 3-13

2 - 9
X02 X axis, gantry 2, SIPLACE HS-60
6
5
key
Tacho_P
Tacho_N
1K
N.C.
X4vc
3
1
2
4
N.C.
key
X1vc
8/d
14/d
12/z
12/d
4/d
4/z
10/d
16/d
30/d,b,z
6/d
6/z
32/d,b,z
26,28/d,b,z
22,24/d,b,z
18,20/d,b,z
INOM_U
INOM_W
Servo Enable
I²t
00333635-xx
(gantry 2)
AC 12,5
Servo
Ready
6/d,b,z
8/d,b,z
2/z
2/b
30/d,b,z
32/d,b,z
26,28/d,b,z
20/d,b,z
24/d,b,z
18/d,b,z
22/d,b,z
X2vc
N.C.
Brake_P
Brake_N
Phase_U
Phase_W
Phase_V
X1wc
Dynamic brake, A11 (wc), 00344206-xx
X8vc
1
4
2
3
X3vc
00335159-xx
(Cable)
X1tm
7
8
5
6
3
4
1
2
8
9
5
6
2
3
A5 (se)
Axis board 2
XC2sy
X7tm
X2se
X axis,
axis tracks
GND
X5vc
1
2
M
XW
5
3
2
incremental shaft encoder
X15bc
9
1
7
4
8
bk
rd
whgn
gy
bn
ye
pk
gn
+15V
+24V
(W1)
(W1)
(W2)
(W1)
(W2)
00336154-xx
+15V
6
wh
00343441-xx
+5V
+24V
00335169-xx
X17bc
5
1
3
bl
bn
bk
bl
bn
bk
-
+
A1
End pos. prox.
switch B2
23 23
(Cable)
00335143-xx
reference point
X axis
End pos. proximity switch B1
X axis limit switch
End pos. proximity switch B2
A3 (yc), 00344204-xx
N.C.
Crash
X1wz
X51
b1
a1
00335892-xx
Anti-crash board
1,27,34
2,3,4,5,6,7,8
X7ba X2bb
00335145-xx
(cable)
XV3
00335144-xx
2,3,4,5,6,7,8
X6ba
(cable)
1,9-27,34
X3bb
XU2
00335139-xx
(Cable)
8
9
27
26 Track N
Track N27
26
X2bc
00335141-xx
6
5
2
3
29
30
33
32
X2ba
(Cable)
Track B
Track B29
30
Track A
Track A
33
32
X24ba
10,11
12
13
GND
A
A
B
B
N
N
2525
+5V
+15V
1,341,34
31
GND
31
GND
X31ba
1
distributor
(do)
5
+5V
X3do
2
3
4
X15ba
1
-15V
00335413-xx (ba)
Gantry distribution board
Reference point
end position
X axis limit switch
Servo unit HS60
00334810-xx
X51
b17
X1wz
gantry 2/3
A31 (wz)
00335153-xx
(cable)
b183
(cable)
00335229-xx
2828
+5V
2424
X4ba
Motor_W
Motor_U
Motor_V
d22
d30
z16
d10
X53
X1vz
Ballast Card, A29 (vz)
00335147-xx (cable)
1
2
X7vc
Potential
X9 ym
X10 ym
X7 ym
X11 ym
GND
0/200V
1
2
X6vc
+15V
-15V
X52
8
22
X1vy
distributor
Power supply
A32 (vy)
card +/-15V
00302841-xx
3.5
00335224-xx (cable)
00335225-xx (cable)
1*)
2*)
Belden DIN
47100
1*)
2*)
bk wh
bnwh
1*)
3*)
2*)
47100
Belden
wh
2*)
1*) bk
DIN
bn
wh
3*)
gnrd
00344207-xx
Cable color coding
Cable color coding
1
3
2
4
5
8
7
6
10
9
X24bc
key
6x470 10key
GND
GNDGND
01.
01.
Doc. status
Product status
Function status
Hi
Hi
Hi
X02-010101LD3
Status Modified Date Name Stand.
Check.
Author
Date
CAD file:
Orig./Repl.f/Replaced by
Sh.
Sh.
Mat. no.:
-15V
00336145-xx
Power supply
P200V
N200V
or
bl
bk
wh
bk
wh
00343900-xx
00344487-xx (bc)
Gantry head distribution board HS60 gantry 2
V4
V2
V3
V5
01.
27.01.03
27.01.03
27.01.03
27.01.2003
SIEMENS
DEMATIC
XA6sy
X1se
Comb. backplane A39 (sy)
XA1sy
X1sa
4
bk
XW
XV
XU
X axis
3~
signal
1
2
3
4
5
15V
5V
+15V
proximity switch 1
1,4,7
1,4,7
X-axis
34
12
20
9
10
11
7
8
5
6
3
4
X3se
2
1
35
36
37
AGND
V NOM
I NOM
END SIGNAL
COUNT A
COUNT B
INDEX
TRIG
RxD
CAN_L
CAN_H
VREG
TxD
GND
VCC
+15V
HS60 main
X101/12b
X101/15b
X102/3b
X102/1
X101/18b
13 13
+24V
+24V
b23
a24
24
X4bc
24
bl5 bl -
X16bc
1
3
00335170-xx
bn
bk bk
bn
+
A1
End pos. prox.
switch B1
+24V
00335413-xx
HS60 gantry distributor
gantry 2
X18ba
1
(ba)
X8ba
00335146-xx
2
3
00335414-xx
X/Y distributor, HS60
(cable)
X1bb
(bb)
gantry 2
1
X5bb
2,3,4,5,6,7,8
1,27,34
Motor
or (U)
bk (V)
rd (W)
4 gnye
00333146-xx
(cable)
A35 (vc)
HS60 gantry 2
bk
rd
wh
X2tm
Machine controller M54 A1 (sa)
TBS 200 / 10X
X1yc
X-axis servo amplifier
4
00334808-xx
Control unit HS60
Cable 00335154-xx
nom. values
X axis
109
Axis rear panel, gantry 2 A32 (tm)
X axis
9
12
10
3
Crash
5
1
8
14
12
13
10
11
12
13
11
Servo unit
backplane
13
14
7
6
2
XC2sy
X2se
XB7sy
X4sa
X02.DWG
Stromlaufplan/Circuit diagram
SD EA
Hi
SMD Placement System SIPLACE HS60
1
1
X axis, gantry 2
SIPLACE HS60
See page 1-25
See page 1-25
See page 4-4
See page 3-13
See page 5-14
See page 5-27
See page 1-25
See page 1-26
See page 3-3
See page 5-14
>
See page 5-15
See page 5-13
See page 3-6
See page 3-2
See page 4-4
See page 3-2
See page 4-4

2 - 10
Y02 Y axis, gantry 2, SIPLACE HS-60
X4tm
Machine controller M54 A1 (sa)00334808-xx
Control unit HS60
Cable 00335155-xx
nom. values
Y axis
109
Axis rear panel, gantry 2 A32 (tm)
14
12
13
10
11
12
13
00335160-xx
(Cable)
X3tm
7
8
5
6
3
4
1
2
8
9
5
6
2
3
A5 (se)
Axis board 2
XC2sy
X7tm
X2se
Y axis,
axis tracks
GND
M
+24V
00335413-xx
HS60 gantry distributor
gantry 2
X19ba
(ba)
00335145-xx
3
4
00335414-xx
X/Y distributor HS60
(cable)
X2bb
(bb)
gantry 2
2
X4bb
21-26
15-20
00333148-xx
Linear motor
1gnye
gantry 2
+24V
6
wh
00343441-xx
+5V
+24V
00335137-xx
X8bb
5
1
3
bl
bn
bk
bl
bn
bk
-
+
A1
End pos. prox.
switch B2
29 29
reference point
Y axis
+15V
+15V
GNDGND
B1Y
B2Y
Dist., Y analogDist., Y analog
ENDY
B2Y
B1Y
B2Y
B1Y
ENDY
Prox. switch 2Y
Prox. switch 1Y
GND
GND
Y axis
X9bb
Dist., Y analog
GND
+24V
5
1
3
YV
YU
YW
YV
YU
21-26
15-20
9-14
1,27,34
X8ba
X7ba
2
1
3
2
3
4
1
X6ba X3bb
1,9-27,34 GND
(cable)
00335146-xx
(cable)
00335144-xx
11
Distance, Y digital 11
6
1,4,7
1,4,7
Y02-010101LD3
Sh.
Sh.
18
+15V
36
-15V
37
CAN_H
34
VCC
GND
35
TxD
VREG
20
23
CAN_L
INDEX
RxD
9
22
21
TRIG
19
X3se
V NOM
13
COUNT B
COUNT A
END SIGNAL
I NOM
17
16
15
14
AGND
1
D1
D2
D3
D4
6
1
2
3
4
5
7
8
9
X11bb
key
10
00336145-xx
Power supply
P200V
N200V
wh
bk
bl
or
bk
wh
01.
27.01.03
X1wg
32/d,b,z
2/b
2/z
24/d,b,z
26,28/d,b,z
30/d,b,z
X2vg
22/d,b,z
18/d,b,z
20/d,b,z
Motor_V
1
4
2
X8vg
00335149-xx (cable)
Potential
distributor
0/200V
00333635-xx
Motor_W
X4vg
key 6
GND
1
2
X7vg
-15V
+15V
X6vg
1
2
X9 ym
X8 ym
X11 ym
X7 ym
X1vy
22
8
X52
00344207-xx
Ballast Card, A29 (vz)
X1vz
z16
d22
d10
X53
d30
3.5
2*)
3*)
1*)
b6
a6
b5
a5
X51
Servo Enable
10
00334810-xx
Servo unit HS60
Ready
8/d
16/d
12/d
12/z
14/d
I²t
INOM_W
INOM_U
X1vg
Servo
4
X3vg
Y-axis
(gantry 2)
A39 (vg)
AC 12,5
backplane
Servo unit
12
3
5
N.C.
8
1
9
4
2
key
N.C.
1
3
1K7
14
13
11
Crash
6
2
3signal
Tacho_N
Tacho_P
N.C. 5
4
1
2
Crash
X5vg
00335414-xx (bb)
X/Y distributor, HS60 gantry 2
1,27,34
9-14
YV
X1bb
YU
GND
bk
YW
GND
primary part
3~
15V
5V
+15V
X2bbX7ba
X8ba X1bb
00335145-xx
(Cable)
00335146-xx
(Cable)
X7ba X2bb
00335145-xx
(Cable)
28 28
29
29
3131
30
31
30
31
3434
9
00335144-xx
(Cable)
GND
GND
27,34 27,34
3030
+24V
3131
GND GND
X31ba
5
00335413-xx (ba)
HS60 gantry distributor
Reference point
End pos. bero 1
Limit switch Enable
00335153-xx
(cable)
7
27,3427,34
X6ba
30
X3bb
30
bl5 bl -
X7bb
1
3
00335136-xx
bn
bk bk
bn
+
A1
End pos. prox.
switch B1
YW
5
3
2
Y-axis incremental shaft encoder
X10bb
9
1
7
4
8
bk
rd
whgn
gy
bn
ye
pk
gn
00335139-xx
(Cable)
8
9 33
32 Track N
Track N33
32
X3bb
00335144-xx
6
5
2
3
32
33
33
32
X6ba
(Cable)
Track B
Track B32
33
Track A
Track A
33
32
X32ba
10
12
13
GND
A
A
B
B
N
N
27.01.03
27.01.03
27.01.2003
SIEMENS
DEMATIC
XA6sy
X1se
Comb. backplane A39 (sy)
XA1sy
X1sa
XC2sy
X2se
XB7sy
X4sa
Y02.DWG
Stromlaufplan/Circuit diagram
SD EA
Hi
SMD Placement System SIPLACE HS60
1
1
Y axis, gantry 2
SIPLACE HS60
01.
01.
Status Modified
Doc. status
Product status
Function status
Date Name Stand.
Check.
Author
DateHi
Hi
Hi
CAD file:
Mat. no.:
Orig./Repl.f/Replaced by
X101/18b
X102/1
X101/3b
X101/15b
X101/12b
HS60 main
00336154-xx
distributor
2 (W1)wh 2
Cable color coding
47100
(W2)
(W1)
(W2)
(do)
2*)
wh
Belden
1*) bk
2*)5
1*)4
3rd
bn
wh
DIN
5
4
3
(W1)
00335228-xx
X3do
(cable)
bk1
X15ba
1
-15V
GNDGND
+5V
+15V
+24V
Anti-crash board
00335892-xx
b20
A31 (wz)
gantry 2/3
X1wz
X1wz
a19
b21
X51
b19
00335224-xx (cable)
00335225-xx (cable)
whbk1*)
3*)
2*) wh
rd
bn
gn
Cable color coding
Belden DIN
47100
00302841-xx
card +/-15V
A32 (vy)
Power supply
Dynamic brake, A15 (wg), 00344206-xx
Phase_V
Phase_W
Phase_U
6/d,b,z
Brake_P
6/d
8/d,b,z
N.C.
A7 (yg), 00344205-xx
Y-axis servo amplifier
TBS 200 / 15Y
26,28/d,b,z
32/d,b,z
6/z
30/d,b,z
Brake_N
18,20/d,b,z
22,24/d,b,z
10/d
4/z
4/d
X1yg
Motor_U
3
See page 1-25
See page 1-25
See page 4-4
See page 3-13
See page 5-14
See page 5-15
See page 1-25
See page 1-26
See page 3-3
See page 5-14
>
See page 5-15
See page 5-13
See page 3-6
See page 3-2
See page 4-4
See page 3-2
See page 4-4