N7205A110B00 - 第266页
To P006 F 基板検出センサ F PCB Stop sensor -B1114 4 AMP B1135/B1114R 177900-1 3 2 1 Right side Transportation opening sensor (projection) -B1021T BN BK BU Right side Transportation opening sensor (Receive) -B1021 BN PK BK BU BK…

MOLEX
CNEXR
54332-5001
A1
A2
A3
A4
A5
B10
A6
A7
A8
D4
C7
C2
C1
E3
D7
C3
C4
C5
C6
C8
D5
C9
B1
B2
B3
B4
B5
B6
B7
B8
B9
D10
C10
E8
E7
E6
E5
D8
D9
D1
D2
D6
E10
E1
E2
E9
E4
A9
D3
A10
D7
D6
D5
C7
B7
C6
C5
C4
C3
C2
C1
B9
B8
B6
B5
B4
B3
B2
B1
E6
E7
D2
C10
A10
E5
D3
A9
A8
B10
A7
A6
A5
A4
MOLEX
CNEXL
55836-5001
A3
A2
A1
E10
E1
E9
E8
E2
D4
E4
E3
D9
D8
D1
D10
C9
C8
MOLEX
CNEXL
51238-5011
A1
A2
A5
A6
B1
B2
B3
B4
B5
B6
C7
B8
D1
B7
D4
D6
A7
A8
B10
D2
D7
B9
C1
C2
C3
C4
A3
A4
D5
C8
C9
C5
C6
C10
E7
E6
E5
E8
E9
D8
D9
D10
E10
E1
E2
E3
E4
A9
D3
A10
YE/WH
YE
LB/WH
LB
PK/WH
PK
LG/WH
LG
VT/WH
VT
OG/WH
OG
GY/WH
GY
BU/WH
BU
BN/WH
BN
GN/WH
GN
BK/WH
BK
RD/WH
RD
U-TKVV 12P-AWG24
N610105617AA
To Left side Machine
From P003
N610104591AA Machine Connection Signals Harness
1
UL#24 80/300-0.2mm2 BU
UL#24 80/300-0.2mm2 BU
UL#24 80/300-0.2mm2 BU
UL#24 80/300-0.2mm2 BU
UL#24 80/300-0.2mm2 BU
N610133888AB
2
12
11
10
9
8
7
6
5
4
MOLEX
1B1020L
5557-12R-210
3
2
1
2464-1061/ⅡA(PF) LF 6P×24AWG
BK/WH
BK
RD/WH
RD
GN/WH
GN
YE/WH
YE
BN/WH
BN
BU/WH
BU
Panasonic Factory Solutions Co.,Ltd. パナソニック ファクトリーソリューションズ株式会社
Name
Drawing No.
Loc. No.
F4K1020-05A
1
2 3 4 5 6 7 8
A
B
C
D
E
F
1 2 3 4 5 6 7 8
A
B
C
D
E
F
Page. No.
NPM-W:Extension Conveyor
(Left Extension Conveyer I/F2)
N610117734+004AC
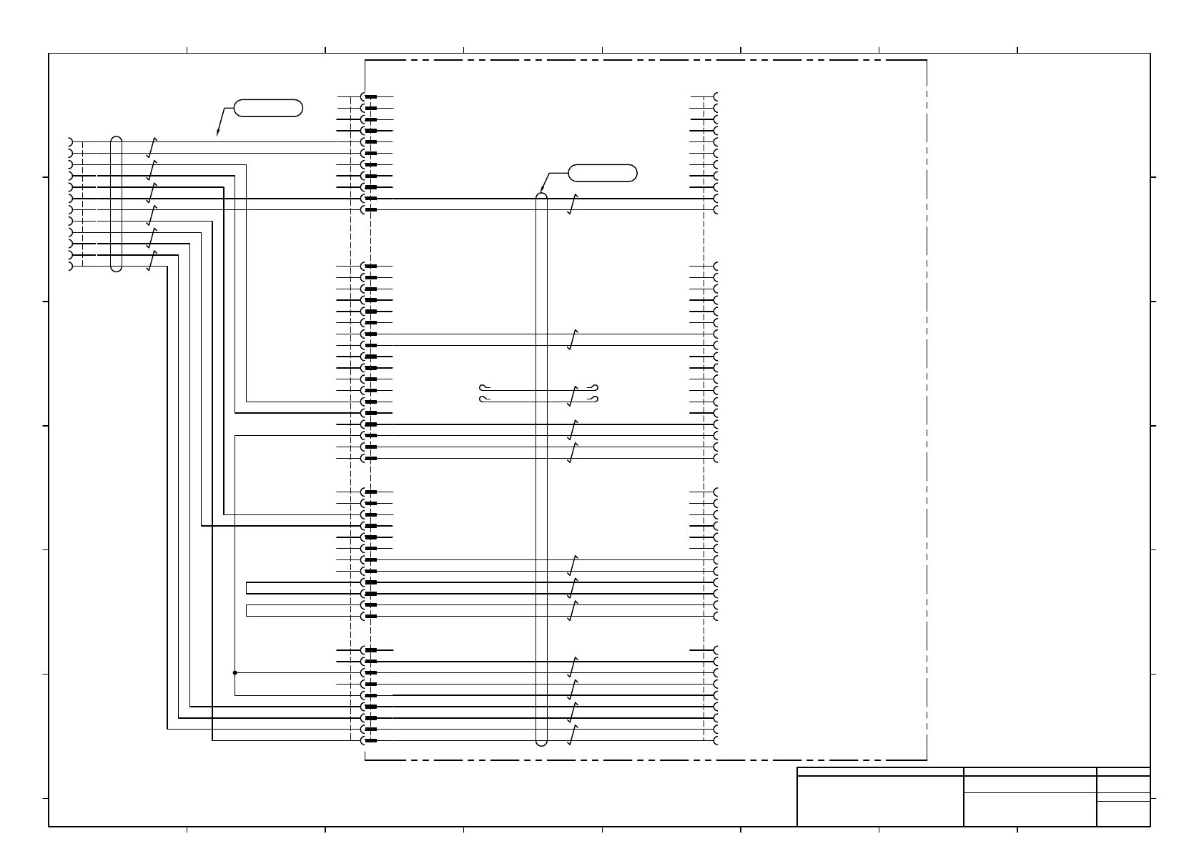
P004

To P006
F 基板検出センサ
F PCB Stop sensor
-B1114
4
AMP
B1135/B1114R
177900-1
3
2
1
Right side
Transportation opening
sensor (projection)
-B1021T
BN
BK
BU
Right side
Transportation opening
sensor (Receive)
-B1021
BN
PK
BK
BU
BK
BK/WH
RD
(OPTION)
-A03
1
2
3
4
5
6
P24
GND
D-
D+
RS485
RS232C Interface Box
RD/WH
1
2
3
AMP
B1020/B1021R
177900-1
4
1
2
3
AMP
B1020/B1021TR
177900-1
4
1
2
3
AMP
B1020/B1021TP
177908-1
4
1
2
3
AMP
L:B1135 R:1114
177908-1
4
1
2
3
AMP
B1020/B1021P
177908-1
4
1
2
3
MOLEX
RS485
5557-06R-210
4
5
6
1
2
3
MOLEX
1RS485R
5557-06R-210
4
5
6
1
2
3
MOLEX
1RS485P
5559-06P-210
4
5
6
2464-1061/ⅡA(PF) LF 2P×24AWG
UL#24 80/300-0.2mm2 BU
UL#24 80/300-0.2mm2 BU
BK/WH
BK
RD/WH
RD
UL#24 80/300-0.2mm2 BU
N610120400AA
N610133887AB
UL#24 80/300-0.2mm2 BU
UL#24 80/300-0.2mm2 BU
BU
UL#24 80/300-0.2mm2
GN/WH
GN
YE/WH
YE
1
2
3
AMP
L:B1137 R:B1116
177908-1
4
1
2
3
AMP
B1135/B1116R
177900-1
4
R 基板検出センサ
R PCB Stop sensor
-B1116
BU
UL#24 80/300-0.2mm2
UL#24 80/300-0.2mm2 BU
BN
UL#24 80/300-0.2mm2 BU
BU
UL#24 80/300-0.2mm2
5
4
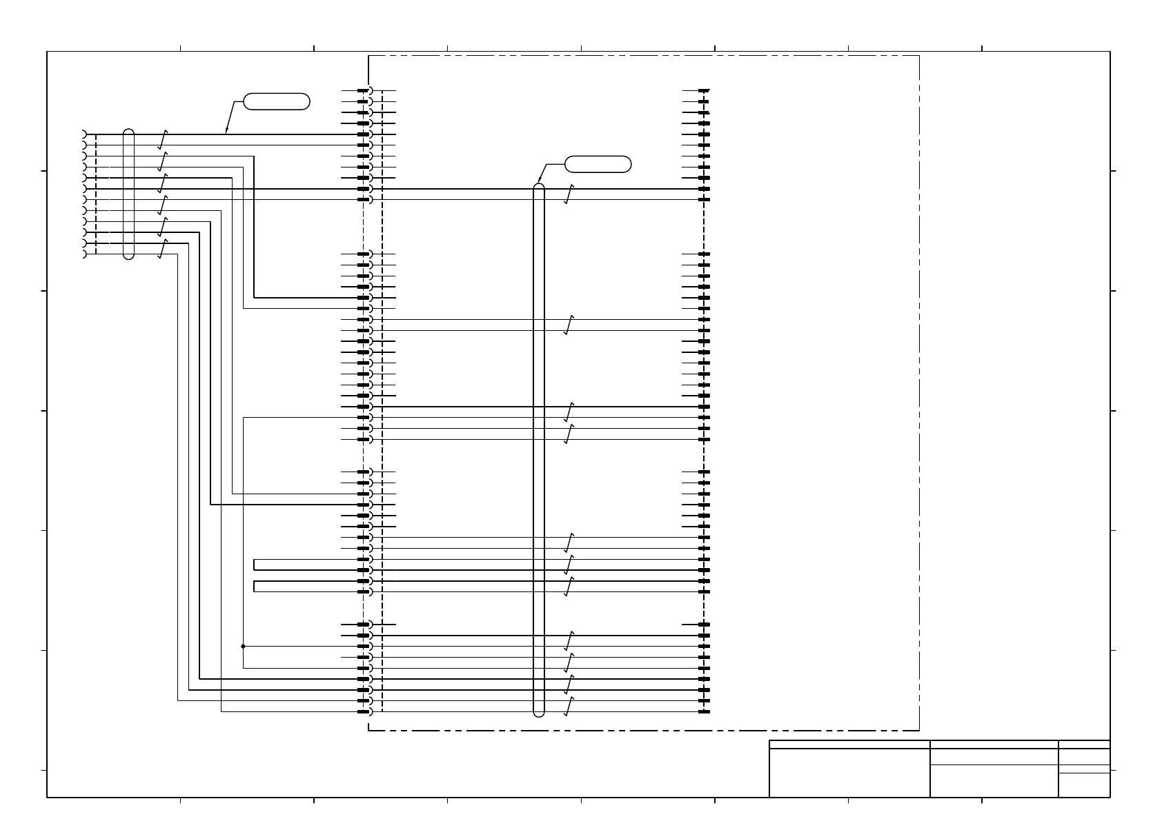
Extension Conveyor (Dual) : NPM-W
P24(M)
GND(M)
P24(C)
GND(C)
M-REV31
OT120
M-SPD31
EMG_OUT10
D+Main
D-Main
N.C.
V24(M)
OUT106
OUT140
OUT141
OUT142
OUT143
OUT113
N.C.
S-REV31
OUT121
S-SPD31
V24(M)
EMG20
V24(M)
N.C.
N.C.
E5
E6
E7
C9
C8
B9
B8
B7
C7
D7
D2
A8
A7
B6
B5
B4
B3
B2
B1
A6
MOLEX
CNEXR
51233-5011
A5
A2
A1
D6
D4
D1
C1
C2
C3
A3
A4
B10
C4
D5
C5
C6
D+SUB
D-SUB
IN242
IN243
IN043
G24
IN237
C10
E8
E9
D8
D9
D10
E10
A9
D3
A10
E1
E2
E3
E4
N.C.
P24XRR
G24XRR
OPENXR
N610117721AA:
P045
E5
E6
E7
A10
D3
A9
C9
C8
D5
A4
A3
C4
C3
C2
C1
B9
D7
D2
B10
A8
A7
D6
D4
B7
D1
B8
C7
B6
B5
B4
B3
B2
B1
A6
MOLEX
CNEXR
54332-5001
A5
A2
A1
E4
E3
E2
E1
E10
D10
D9
D8
E9
E8
C10
C6
C5
Main Body wiring
IN114
P24
G24
CNEXR01R-3
CNEXR01R-4
CNEXR01R-5
CNEXR01R-7
CNEXR01R-6
N.C.
PH116
UL#24 80/300-0.2mm2 BU
UL#24 80/300-0.2mm2 BU
4
E5
E6
E7
C9
C8
B9
B8
B7
C7
D7
D2
A8
A7
B6
B5
B4
B3
B2
B1
A6
MOLEX
CNEXL
55836-5001
A5
A2
A1
D6
D4
D1
C1
C2
C3
A3
A4
B10
C4
D5
C5
C6
C10
E8
E9
D8
D9
D10
E10
A9
D3
A10
E1
E2
E3
E4
E5
E6
E7
A10
D3
A9
C9
C8
D5
A4
A3
C4
C3
C2
C1
B9
D7
D2
B10
A8
A7
D6
D4
B7
D1
B8
C7
B6
B5
B4
B3
B2
B1
A6
MOLEX
CNEXL/
51238-5011
A5
A2
A1
E4
E3
E2
E1
E10
D10
D9
D8
E9
E8
C10
C6
C5
N610133888AB
N610133884AB
BK/WH
BK
RD/WH
RD
GN/WH
GN
YE/WH
YE
BU/WH
BU
LG/WH
2464-1061/ⅡA(PF) LF 12P×24AWG
LG
BN/WH
BN
From
GY/WH
GY
OG/WH
OG
VL
VL/WH
※For Right side Extension Conveyor
12
11
10
9
8
7
6
5
4
MOLEX
1B1020R/L
5559-12P-210
3
2
1
1
2
3
MOLEX
1B1020L
5557-12R-210
4
5
6
7
8
9
10
11
12
1
2
3
MOLEX
1B1020L/R
5559-12P-210
4
5
6
7
8
9
10
11
12
BN/WH
UL#24 80/300-0.2mm2
BU
BU
UL#24 80/300-0.2mm2
UL#24 80/300-0.2mm2
BU
2464-1061/ⅡA(PF) LF 6P×24AWG
BK/WH
BK
RD/WH
RD
GN/WH
GN
YE/WH
YE
BN/WH
BN
BU/WH
BU
PK/WH
PK
LB/WH
LB
2464-1061/ⅡA(PF) LF 5P×24AWG
B1114/B1135P
B1114/B1135R
6
6
B1135
6
B1114/B1135P
6
B1116/B1137P
6
B1137/B1114R
Extension Conveyor (Dual) : NPM-W
6
Panasonic Factory Solutions Co.,Ltd. パナソニック ファクトリーソリューションズ株式会社
Name
Drawing No.
Loc. No.
F4K1020-05A
1
2 3 4 5 6 7 8
A
B
C
D
E
F
1 2 3 4 5 6 7 8
A
B
C
D
E
F
Page. No.
NPM-W:Extension Conveyor
(Right Extension Conveyer I/F1)
N610117734+005AG
P005

E4
E3
E2
E1
C9
C8
C7
B7
C6
C5
C4
C3
C2
C1
B9
B8
B6
B5
B4
B3
B2
B1
D5
D4
D2
D1
D3
A9
A8
B10
A7
A6
A5
A4
MOLEX
CNEXR
54332-5001
A3
A2
A1
A10
E5
E6
E7
E9
E8
C10
D10
E10
D9
D8
D7
D6
MOLEX
CNEXR
51233-5011
A1
A2
A3
A4
A5
A6
A7
B10
A8
A9
D3
C8
C9
D6
E2
B1
B2
B3
B4
B5
B6
B8
B9
C1
C2
C3
C4
C5
C6
B7
C7
D1
D2
E5
E6
E7
E9
E8
C10
A10
E4
E3
E1
D9
D8
D7
E10
D10
D5
D4
VT/WH
VT
MOLEX
CNEXL
55836-5001
A1
A2
A3
A4
A5
B10
A6
A7
A8
E7
E6
C1
C2
C3
C4
C5
C6
C8
C9
B1
B2
B3
B4
B5
B6
C7
B7
B8
B9
E3
E4
E1
E2
C10
D10
D8
D9
E5
A10
D3
A9
E10
E9
E8
D7
D6
D5
D4
D2
D1
BK/WH
BK
RD/WH
RD
OG/WH
OG
PK/WH
PK
LG/WH
LG
LB/WH
LB
GY/WH
GY
BU/WH
BU
BN/WH
BN
GN/WH
GN
U-TKVV 12P-AWG24
N610105617AA
To Right side Machine
N610104591AA Machine Connection Signals Harness
1
From P005
UL#24 80/300-0.2mm2 BU
UL#24 80/300-0.2mm2 BU
UL#24 80/300-0.2mm2 BU
UL#24 80/300-0.2mm2 BU
UL#24 80/300-0.2mm2 BU
N610133885AB
2
12
11
10
9
8
7
6
5
4
MOLEX
1B1020R
5557-12R-210
3
2
1
2464-1061/ⅡA(PF) LF 6P×24AWG
BK/WH
BK
RD/WH
RD
GN/WH
GN
YE/WH
YE
BN/WH
BN
BU/WH
BU
Panasonic Factory Solutions Co.,Ltd. パナソニック ファクトリーソリューションズ株式会社
Name
Drawing No.
Loc. No.
F4K1020-05A
1
2 3 4 5 6 7 8
A
B
C
D
E
F
1 2 3 4 5 6 7 8
A
B
C
D
E
F
Page. No.
NPM-W:Extension Conveyor
(Right Extension Conveyer I/F2)
N610117734+006AC
P006