00197464-01_SM_CP20-A-M_DE - 第62页
5 Einstellarbeiten 5.6 Übertragen der kopfspezifischen Date n 5.6.2 Übertragen der k opfspezifischen Daten (ab SW701) 62 Serviceanleitung SIPLACE C&P20, C&P20A, C&P20M ► Wählen Sie die Z-A c hse/Stern-Achse (…

5 Einstellarbeiten
5.6.2 Übertragen der kopfspezifischen Daten (ab SW701) 5.6 Übertragen der kopfspezifischen Daten
Serviceanleitung SIPLACE C&P20, C&P20A, C&P20M 61
5.6.2
5.6.2 Übertragen der kopfspezifischen Daten (ab SW701)
Übertragen der kopfspezifischen Daten (ab SW701)
(hier am Beispiel C&P20)
► Aktivieren Sie die Einstellung Stern-Achse (1).
► Übertragen Sie die Maschinendaten über die
Schaltfläche (2) der rechten Liste nach links.
► Wählen Sie Beenden.
HINWEIS
Haben Sie fälschlicher Weise die Daten in die falsche Richtung übertragen, so gehen Sie wie
folgt vor:
► Ermitteln Sie die Nullpunktkorrektur des Kopfes (ggf. über den Aufkleber am Kopf) und tra
-
gen Sie diese im SITEST ein.
Beachten Sie dabei, dass Sie die Daten in der Einheit Digit eingeben.
► Überprüfen Sie die minimalen und maximalen Positionen und tragen Sie die Werte aus den
obigen Screenshots für den C&P20 ein.
Nach dem hardwaremäßigen Kopftausch müssen die
neuen Kopfdaten aus dem Kopf-EPROM der Software
bekannt gemacht werden.
► Schalten Sie die Maschine ein.
► Wählen Sie den Bedienerlevel Service (Kunde) (1).
► Wechseln Sie in das Menü Sensoren und Funktionen
überprüfen (2).
► Wählen Sie den Button Sensoren und Funktionen
von bestimmten Komponenten überprüfen (3).
► Wählen Sie den Button CP20-Kopf, Portal x des je
-
weiligen Portals (4).

5 Einstellarbeiten
5.6 Übertragen der kopfspezifischen Daten 5.6.2 Übertragen der kopfspezifischen Daten (ab SW701)
62 Serviceanleitung SIPLACE C&P20, C&P20A, C&P20M
► Wählen Sie die Z-Achse/Stern-Achse (1).
► Wählen Sie Nullpunktkorrektur-Daten (2).
Hier können die Achsdaten von Z- und Sternachse aus
dem Kopf-EPROM in die Maschinendaten geschrieben
werden. Genauso ist es auch anders herum möglich, die
Achsdaten von Z- und Stern-Achse aus den Maschinen
-
daten auf das Kopf-EPROM zu schreiben.
► In den Nullpunktkorrektur-Daten (1) wählen Sie die
Zeile Nullpunktkorrektur (2) aus.
► Verschieben Sie den Wert aus dem Kopf-EPROM in
die Maschinendaten (3).
► Wählen Sie Kopf- und Maschinendaten
schreiben (4).
► Mit dem Pfeil-Button (5) gelangen Sie eine
Menüebene zurück.

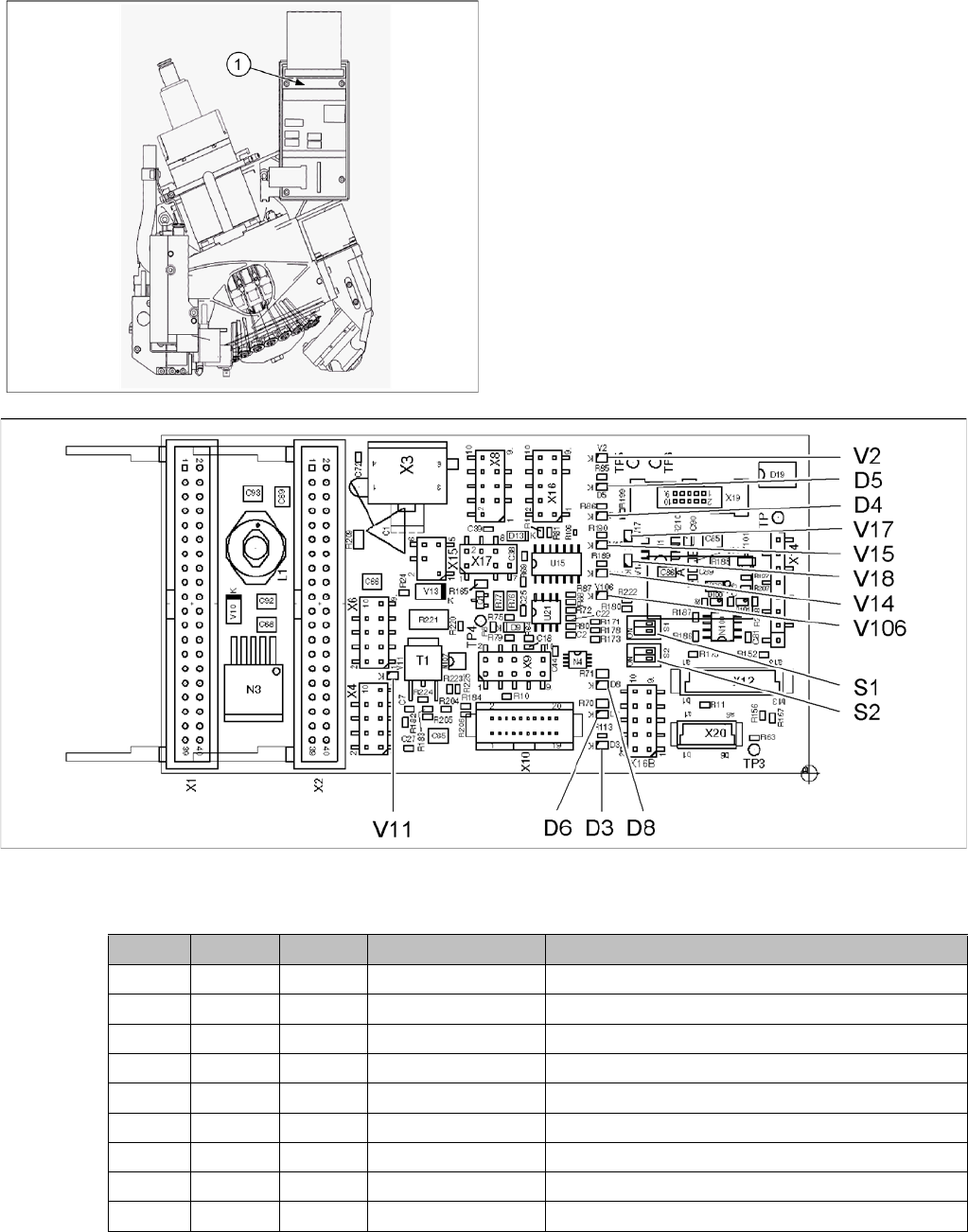
6 Platinenbeschreibung
6.1 Zwischenverteiler C&P20 [03002942-xx]
Serviceanleitung SIPLACE C&P20, C&P20A, C&P20M 63
6
6 Platinenbeschreibung
Platinenbeschreibung
6.1
6.1 Zwischenverteiler C&P20 [03002942-xx]
Zwischenverteiler C&P20 [03002942-xx]
03002942-09
LED [03002942-09]
1. Zwischenverteilerplatine am C&P20(A)-Kopf
LED Farbe Status Signalname Beschreibung
D3 GN ON 5V+ +5VDC Betriebsspannung
D4 YE ON Z_UNTEN Z-unten-Sensor aktiviert
D5 YE ON Z_OBEN Z-oben-Sensor aktiviert
D6 GN ON 15V+ +15VDC Betriebsspannung
D8 GN ON 15V- -5VDC Betriebsspannung
V2 GN ON V4_OUT Z-Ventil aktiviert
V11 YE ON EN_FESTO Rückholzylinder aktiviert
V14 GN ON 24V+_VHS +24VDC Betriebsspannung für VHS
V15 GN ON 24V+_DP +24VDC Betriebsspannung für DP