KE-2070_KE-2080_KE-2080R-Rev14 - 第57页
- - REF.NO N O TE PA RT NO D E S C R I P T I O N Qty 1 400-21 958 FLO OR T R OLL EY SUB UN IT 1 2 400-21 959 TROLLEY BOTTOM ASSY (1) 3 400-21 912 TROLLEY FRAME B L (1) 4 400-21 913 TROLLEY FRAME B R (1 ) 5 400-21 914 T…

- -
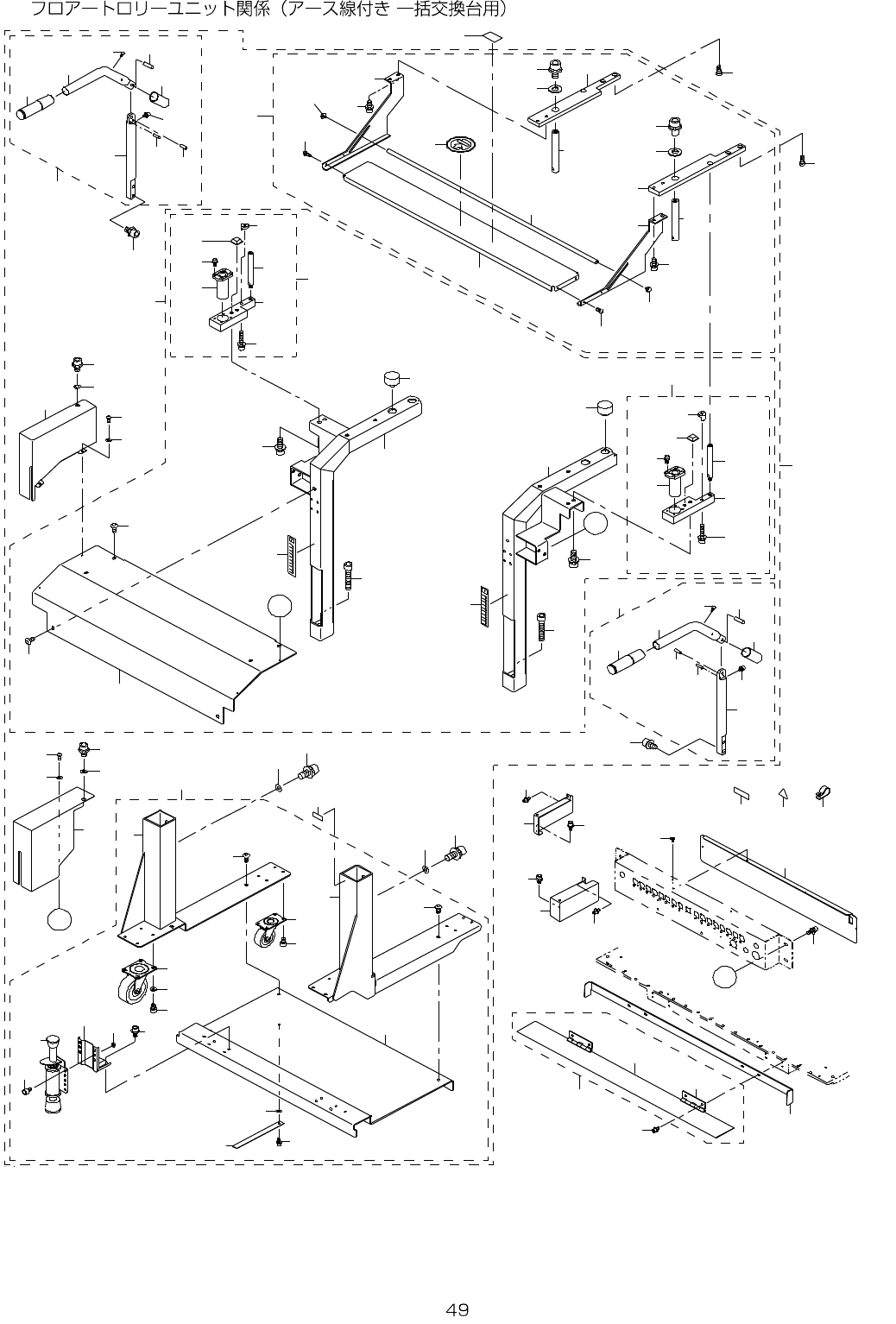
25. FLOOR TROLLEY UNIT COMPONENTS
(FOR REPLACING OVERALL CHANGER TABLE WITH EARTH WIRE)
3
4
5
6
6
8
9
7
1 0
1 1
1 2
1 3
1 5
1 6
1 4
2 3
2 3
2 4
2 4
2 2
2 5
2 6
2 6
2 7
2 7
3 7
3 1
3 9
3 8
2 9
4 4
4 1
3 3
4 4
4 0
4 2
3 2
3 4
3 5
4 3
4 6
4 5
4 6
4 5
4 9
5 1
5 2
5 3
5 3
5 5
5 5
5 4
5 6
5 7
5 7
7 1
7 2
7 6
7 3
7 5
7 6
7 5
6 2
6 3
6 4
2 1
3 0
A
A
4 8
8 3
8 1
8 0
7 9
7 8
2
B
B
8 5
8 4
8 6
8 6
8 7
8 7
9 2
9 0
8 9
8 8
9 1
1 7
1 9
1 8
2 8
3 6
5 0
5 0
5 9
6 0
5 9
6 0
6 6
6 8
7 0
6 4
6 3
6 2
6 6
6 8
6 9
6 5
7 4
7 3
7 4
7 7
8 2
8 2
6 1
2 0
6 1
1
7 0
4 7
6 7
6 9
6 7
6 9
6 96 5
9 3
9 4
5 8

- -
REF.NO NOTE PART NO D E S C R I P T I O N Qty
1 400-21958 FLOOR TROLLEY SUB UNIT 1
2 400-21959 TROLLEY BOTTOM ASSY (1)
3 400-21912 TROLLEY FRAME BL (1)
4 400-21913 TROLLEY FRAME BR (1)
5 400-21914 TROLLEY BASE PLATE (1)
6 SM-3061252-TN SCREW M6 L=12 (6)
7 400-21957 TROLLEY CASTER (75) (2)
8 WP-0612516-SD WASHER 6.1X15.2X2.5 (8)
9 SM-6060802-TN BOLT (8)
10 400-21956 TROLLEY CASTER (50) (2)
11 SM-6060802-TN BOLT (8)
12 E2711-721-000 TROLLEY STOPPER (2)
13 E2710-721-000 STOPPER ATTACHMENT (2)
14 SM-6060802-TN BOLT (8)
15 SL-6061242-TN BOLT (4)
16 NM-6060003-SC NUT M6 (4)
17 WP-0430801-SC WASHER 4.3X9X0.8 (2)
18 400-23476 FG GUM SHEET (1)
19 SM-6040802-TN SCREW (1)
20 400-21960 TROLLEY UPPER ASSY (1)
21 400-58933 TROLLEY FRAME L (1)
22 400-58934 TROLLEY FRAME R (1)
23 SM-6125052-TR SCREW (2)
24 400-01730 SCALE MARKS SEAL (2)
25 400-58935 TROLLEY UPPER PLATE (1)
26 SM-3061252-TN SCREW M6 L=12 (6)
27 400-01731 TROLLEY RUBBER B (4)
28 400-22464 STOPPER PLATE L ASSY (1)
29 400-53180 TROLLEY STOPPER PLATE L (1)
30 400-01748 TROLLEY SUB GUIDE (1)
31 SL-6063092-TN SCREW M6 L=30 (1)
32 E2703-721-000 TROLLEY SHAFT (1)
33 S1021-710-000 ST RUBBER FOOT (1)
34 SB-8160005-C0 BEARING (1)
35 SL-6041042-TN BOLT (4)
36 400-22465 STOPPER PLATE R ASSY (1)
37 400-01735 TROLLEY STOPPER PLATE (1)
38 400-01748 TROLLEY SUB GUIDE (1)
39 SL-6063092-TN SCREW M6 L=30 (1)
40 E2703-721-000 TROLLEY SHAFT (1)
41 S1021-710-000 ST RUBBER FOOT (1)
42 SB-8160005-C0 BEARING (1)
43 SL-6041042-TN BOLT (4)
44 SL-6082092-TN BOLT (4)
45 WP-1052001-SC WASHER 10 (4)
46 SL-6102042-TN SCREW (4)
47 400-21961 TROLLEY SLIDE ASSY (1)
48 400-21916 BANK PLATE L (1)
49 400-21917 BANK PLATE R (1)
50 400-23221 SUPPORT SHAFT (2)
51 400-01736 FS BRACKET L (1)
52 400-01737 FS BRACKET R (1)
53 SL-6061692-TN BOLT (4)
54 400-01739 FS PLATE (1)
55 SM-3040652-TN SCREW M4 L=6 (4)
56 400-21918 TAPE GUIDE (1)
57 400-68308 SET SCREW M4 L=8 (2)
58 E5721-729-000 LABEL (1)
59 SL-6102042-TN SCREW (2)
60 WP-1052001-SC WASHER 10 (2)
61 400-21962 TROLLEY HANDLE ASSY (2)
62 400-21920 TROLLEY HANDLE (1)
63 E2641-729-000 HANDLE CLIP (1)
64 E2635-729-000 HANDLE SLIDER (1)
65 400-21919 HANDLE SHAFT (1)
66 SL-6030642-TN SCREW M3 L=6 (1)
67 SL-6040642-TN BOLT (1)
68 PS-0600182-KP SPRING PIN (1)
69 PS-0400122-KP SPRING PIN (2)
70 SL-6082092-TN BOLT (4)
71 400-58936 TROLLEY COVER AL (1)
72 400-58937 TROLLEY COVER AR (1)
73 SM-3040652-TN SCREW M4 L=6 (4)
74 WP-0430801-SC WASHER 4.3X9X0.8 (4)
75 WP-0841601-SC WASHER 8.4X17.4X1.6 (2)
76 SL-6081242-TN BOLT (2)
77 E4981-700-000 LABEL (1)
78 E2737-721-000 BRACKET COVER 1
79 SM-4030601-SC SCREW M3 X 6 2
80 CM-3002000-03 ATTENTION LABEL 2
81 HX-0015000-0K CABLE CLIP 1
82 400-01734 SCREW 4
83 SL-6051492-TN BOLT 4
84 #01 E1173-725-000 PLATE STAND COVER L 1
85
#01
E1174-725-000 PLATE STAND COVER R 1
86 SL-6040892-TN BOLT 2
87 SL-6051092-TN BOLT 2
88
#01
400-01749 BANK FLAP ASSY 1
89 400-18388 BUTT HINGE (2)
90 400-18389 BANK FLAP (1)
91
#01
400-01750 BANK COVER 1
92
#01
SL-6040892-TN BOLT 4
93 401-05884 LOAD PROHIBITION LABEL 1
94 401-05880 CRUSH HAZARD LABEL (50) 2

- -
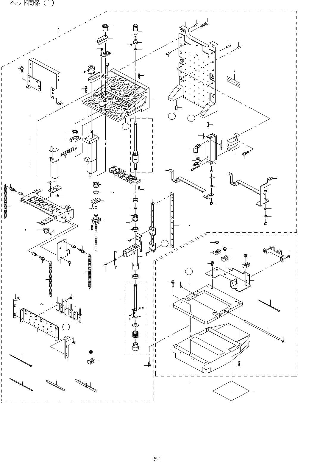
26. HEAD COMPONENTS (1)
7 8 8 1
4
1 3
A
A
B
B
5
3
8 2
8 3
8 3
8 3
1 5
1 6
1 6
1 7
3 6
2 2
2 4 2 5
2 6
2 6
2 7
2 8
2 9
3 2
3 3
3 4
3 7
3 8
3 8
3 9
4 0
4 1
4 2
4 3
4 4
4 5
4 6
4 7
4 8
4 9
5 0
5 1
5 2
5 3
5 4
5 5
5 6
5 7
5 8
5 9
6 0
6 1
6 2
6 3
6 3
6 3
6 4
6 4
6 4
6 4
6 5
7 27 3
9 2
9 4
9 3
9 5
9 6
9 8
9 9
9 9
1 0 0
1 0 2
1 0 3
1 7
C
C
6 6 7 1
3 1
9 5
9 3
9 3
9 5
1 8
9 1
8 3
8 3
8 3
7 4
7 7
7 5
7 5
7 7
9 7
1 0 4
1 4
3 5
2 0
7 6
7 6
8 4
8 5 8 6
8 7
9
8
7
1 2
8 8 8 9
3 0
1 0 1
1 0
1 2
1 1
9
8
7
9 0
7 5
7 7
7 6
1 9
2 1
2 3
6