KE-2070_KE-2080_KE-2080R-Rev14 - 第76页
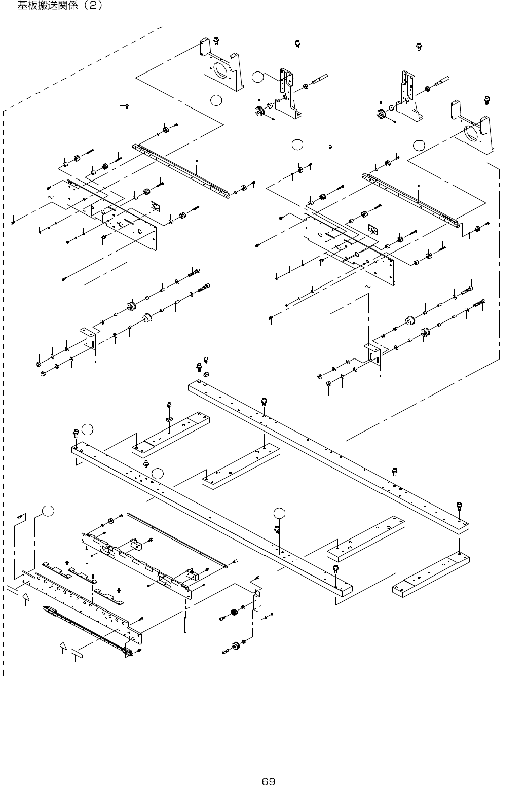
- - 35. PWB CONVEYOR COMP O NE N TS ( 2) 3 5 1 7 1 8 5 7 6 7 1 1 1 3 1 2 1 4 1 5 1 6 1 1 1 3 1 2 2 8 3 0 2 9 1 6 1 5 1 4 6 2 5 5 2 0 2 2 3 4 3 5 2 6 2 5 2 7 2 3 2 4 1 1 1 3 1 2 3 3 3 1 5 6 1 5 9 2 8 3 0 2 9 2 8 3 0 2 9…

- -
REF.NO NOTE PART NO D E S C R I P T I O N Qty
1 400-50335 CONVEYOR RAIL F ASM 1
2 #01 400-50342 CONVEYOR RAIL F ASM L 1
3
#02
400-61088 CONVEYOR RAIL F ASM(E) 1
4 400-00797 BASE BAR R (1)
5
#01
400-01038 BASE BAR R(L) (1)
6
#02
400-01832 BASE BAR R(E) (1)
7 400-00798 BASE BAR F (1)
8
#01
400-01039 BASE BAR F(L) (1)
9
#02
400-01833 BASE BAR F(E) (1)
10 400-39616 BASE BAR S (2)
11
#01
400-70087 BASE BAR S(L) (2)
12 #02 400-70088 BASE BAR S(E) (1)
13 400-00800 BASE BAR SS (2)
14
#01
400-00996 BASE BAR SS(L) (2)
15
#02
400-01835 BASE BAR SS(E) (1)
16 SL-6084092-TN BOLT (8)
17 SL-6063592-TN SCREW (8)
18 HX-0029400-00 FIXED BASE (15)
19 SM-4040801-SC SCREW M4X0.7 L=8 (15)
20 E2414-700-000 PULLEY COLLAR (1)
21 400-00802 RAIL STAND CL (1)
22 SL-6052092-TN SCREW (2)
23
#03
400-00803 ADJUST PULLEY SHAFT (1)
24 E4547-729-000 MOTOR PULLEY (30) (1)
25 SM-8040602-TP SCREW M4X0.7 L=6 (2)
26 SB-1080007-00 BEARING (2)
27 E2414-700-000 PULLEY COLLAR (1)
28 400-00805 RAIL STAND CR (1)
29
#03
400-01043 RAIL GUID F(L) (1)
30 400-00807 RAIL GUIDE F (1)
31 SM-8030302-TP SCREW M3X0.5 L=3 (2)
32 400-00811 CONVEYOR RAIL FC (1)
33
#03
400-01044 CONVEYOR RAIL FC(L) (1)
34 SL-6041092-TN SCREW (4)
35 E2123-721-000 PWB GUIDE PLATE F (3)
36
#03
E2123-721-000 PWB GUIDE PLATE F (4)
37 SL-6030892-TN SCREW M3 L=8 (9)
38 #03 SL-6030892-TN SCREW M3 L=8 (12)
39 400-00812 RAIL GUIDE SHAFT (2)
40 SM-8040602-TP SCREW M4X0.7 L=6 (2)
41 400-00813 LINEAR WAY (1)
42
#03
400-00998 LINEAR WAY(L) (1)
43 SM-6030802-TN BOLT (11)
44
#03
SM-6030802-TN BOLT (14)
45 SL-6030692-TN SCREW M3 L=6 (1)
46 E2111-715-0A0 CONVEYOR PULLEY ASM. (4)
47 WP-0430800-SC WASHER M4 (4)
48 SM-4040855-SC SCREW (4)
49 400-00821 IDLER PLATE (1)
50
#03
400-01046 IDLER PLATE(L) (1)
51 400-14928 PULLEY SPACER (1)
52 SM-6041602-TN SCREW M4 X 16 (1)
53 400-00824 IDLER ASM. (1)
54 SM-6041602-TN SCREW M4 X 16 (1)
55 400-14928 PULLEY SPACER (1)
56 NM-6040001-SC NUT M4X0.7 TYPE1 (1)
57 WP-0430801-SC WASHER 4.3X9X0.8 (1)
58 400-00822 GUIDE PULLEY ASM (1)
59 E4265-729-000 CONVEYOR BELT GUIDE (L) (1)
60
#03
E4365-729-000 CONVEYOR BELT GUIDE (E) (1)
61 SM-1030601-SC SCREW M3 L=6 (5)
62 SL-6041092-TN SCREW (4)
63 E4105-729-0A0 SHAFT SUPPORT B ASM. (2)
64 400-30408 RAIL STAND F (2)
65
#01
400-46032 RAIL STAND F(L) (2)
66 SL-6052092-TN SCREW (4)
67 SL-6041292-TN SCREW (4)
68 WP-0501046-SC WASHER 5 X 14 X 1 (2)
69 WP-0501046-SC WASHER 5 X 14 X 1 (2)
70 SL-6052092-TN SCREW (2)
71 400-00803 ADJUST PULLEY SHAFT (1)
72 E4547-729-000 MOTOR PULLEY (30) (1)
73 SM-8040602-TP SCREW M4X0.7 L=6 (2)
74 SB-1080007-00 BEARING (2)

- -
35. PWB CONVEYOR COMPONENTS (2)
3 5
1 7 1 8
5 7
6
7
1 1
1 3
1 2
1 4
1 5
1 6
1 1
1 3
1 2
2 8
3 0
2 9
1 6
1 5
1 4
6 2
5 5
2 0 2 2
3 4 3 5
2 6
2 5
2 7
2 3
2 4
1 1
1 3
1 2
3 3
3 1
5 6
1
5 9
2 8
3 0
2 9
2 8
3 0
2 9
2 8
3 0
2 9
3 3
3 1
4 1
4 0
4 3
4 0
3 8
3 8
4 2
4 1
4 4 4 5
4 0
3 6
4 0
3 8
4 9
5 0
5 1
4 9
5 0
5 1
3 9
5 2
5 2
5 3 5 4
4 9
3 8
4 2
4 0
4 0
4 9
4 9
4 7
4 8
4 7
6 1
4 6
4 7
3 7
4 8
4 7
4 9
4 3
5 8
5 8
A
C
1 1
1 3
1 2
D
B
C
D
A
2 6
2 5
2 7
6 0
9
9
8
1 0
3 9
B
3 2
3 2
6 4
6 4
6 3
6 3
8
1 0
1 9
2

- -
REF.NO NOTE PART NO D E S C R I P T I O N Qty
1 SL-6041492-TN SCREW 2
2 SM-4040855-SC SCREW 2
3 400-00827 RAIL PLATE FL 1
4
#01
400-01048 RAIL PLATE FL(L) 1
5
#02
400-01838 RAIL PLATE FL(E) 1
6 E2012-721-000 ADJUST PLATE 1
7 SL-6030692-TN SCREW M3 L=6 2
8 E2111-715-0A0 CONVEYOR PULLEY ASM. 2
9 WP-0430800-SC WASHER M4 2
10 SM-4040855-SC SCREW 2
11 E2089-721-0A0 CONVEYOR PULLEY B ASM. 4
12 E2055-721-000 PULLEY SPACER 4
13 SM-4042501-SC SCREW M4X0.7 L=25 4
14 WP-0430801-SC WASHER 4.3X9X0.8 4
15 WS-0410002-KN SPRING WASHER 4
16 NM-6040001-SC NUT M4X0.7 TYPE1 4
17 400-00828 CONVEYOR RAIL 1
18
#02
400-01839 CONVEYOR RAIL(E) 1
19 E2111-715-0A0 CONVEYOR PULLEY ASM. 2
20 400-00830 RAIL PLATE FR 1
21
#01
400-01051 RAIL PLATE FR(L) 1
22
#02
400-01841 RAIL PLATE FR(E) 1
23 E2012-721-000 ADJUST PLATE 1
24 SL-6030692-TN SCREW M3 L=6 2
25 E2111-715-0A0 CONVEYOR PULLEY ASM. 2
26 WP-0430800-SC WASHER M4 2
27 SM-4040855-SC SCREW 2
28 E2089-721-0A0 CONVEYOR PULLEY B ASM. 6
29 E2055-721-000 PULLEY SPACER 6
30 SM-4042501-SC SCREW M4X0.7 L=25 6
31 WP-0430801-SC WASHER 4.3X9X0.8 6
32 WS-0410002-KN SPRING WASHER 6
33 NM-6040001-SC NUT M4X0.7 TYPE1 6
34 400-00828 CONVEYOR RAIL 1
35
#02
400-01839 CONVEYOR RAIL(E) 1
36 E2157-721-000 PULLEY B 1
37 E2016-715-000 IDLER PULLEY 1
38 E2017-715-000 M LINER BUSH 4
39 E2018-715-000 PULLEY SLEEVE 2
40 WP-0531001-SC WASHER 6
41 WS-0510002-KN SPRING WASHER 2
42 NM-6050001-SC NUT M5X0.8 TYPE1 2
43 SM-6052502-TN HEXAGONAL-HOLE BOLT 2
44 400-00976 PULLEY BRAKET 1
45
#02
E4086-725-000 PULLEY BRACKET(E) 1
46 E2016-715-000 IDLER PULLEY 1
47 E2017-715-000 M LINER BUSH 4
48 E2018-715-000 PULLEY SLEEVE 2
49 WP-0531001-SC WASHER 6
50 WS-0510002-KN SPRING WASHER 2
51 NM-6050001-SC NUT M5X0.8 TYPE1 2
52 SM-6052502-TN HEXAGONAL-HOLE BOLT 2
53 400-00976 PULLEY BRAKET 1
54
#02
E4086-725-000 PULLEY BRACKET(E) 1
55 SL-6041492-TN SCREW 2
56 SL-6051092-TN BOLT 4
57 SL-6031492-TN SCREW M3 L=14 4
58 SL-6041092-TN SCREW 4
59 SL-6031492-TN SCREW M3 L=14 4
60 WP-0430800-SC WASHER M4 2
61 E2157-721-000 PULLEY B 1
62 SL-6051092-TN BOLT 4
63 CM-3002000-03 ATTENTION LABEL 2
64 401-05880 CRUSH HAZARD LABEL (50) 2