JX-350_保养维修手册.pdf - 第215页
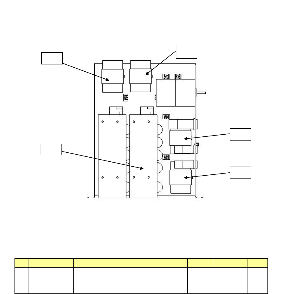
维修调整要领书 13-10 13-3 控制装置 13-3-1 控制装置的构成 控制装置的基板配置图如图 13-3-1-1 。 请参照这些图确认基板的安装。 图 13-3-1-1 基板配置图 CPU BOARD 40123242 ETHER MAIN BOARD 40149647 POSITION BOARD 40044540 IEEE1394 BOARD 40150021 IPX7 ASM 40071300 8-PORT COM BOR…

维修调整要领书
13-9
图 13-2-1-4-2 ETF 电源装置构成图 2
表 13-2-1-4-1. ETF 电源装置 <零件表>
NO.
JUKI 货号 零件名称 零件数量 位置 备注
1 HX006750000 POWER SUPPLY ADA600F-24 2 PS 2
2 HA00526000B CIRCUIT PROTECTOR CP52BS/7.5 1 CP1
3 HA005590000 CIRCUIT PROTECTOR CP51BM/20DC 2 CP2, 3
RL1
RL2
RL3
RL4
PS2

维修调整要领书
13-10
13-3 控制装置
13-3-1 控制装置的构成
控制装置的基板配置图如图 13-3-1-1。
请参照这些图确认基板的安装。
图 13-3-1-1 基板配置图
CPU BOARD 40123242
ETHER MAIN BOARD 40149647
POSITION BOARD 40044540
IEEE1394 BOARD 40150021
IPX7 ASM 40071300
8-PORT COM BORAD
40135433 (选购项)

维修调整要领书
13-11
13-3-2 CPU 基板(40123242)
【功能】
这是控制整个装置的基板。
其它基板经由 Compact PCI(以下简称 cPCI)
母线连接。并且,该基板上装有 SOLID STATE
DRIVE 8GB(以下称 SSD),该 SSD 是写入了
操作系统的启动盘。
因此,仅仅更换该基板时,请从现用的 CPU
BOARD 中拆下 SSD,装到新的 CPU BOARD
上。
注意: CPU 电路板 (40123242)的货号中,并不包含 SSD。
(各种规格的更换方法参照 12-2-1-2 更换方法)
【双列开关类的设定】
双列开关以出货状态使用。
【LED 的意义】
PWR:电源供给后亮灯。
HDD:如对 SSD 进行访问,则闪烁。
RESET:复位开关。请勿按此开关。
【电池的更换】
CPU 基板上装有用于保存 BIOS 设置的支持电池。
电池请以 5 年左右为标准进行更换。
更换后需要设置 BIOS。
【更换后的调整项目】
更换后需要设置 BIOS。
请参照“12-2-2 BIOS 的设置”进行设置。