JX-350_保养维修手册.pdf - 第212页
维修调整要领书 13-7 表 13-2-1-2-1 电源装置 No. JUKI 货号 零件名称 零件数量 位置 备注 1 HX006900000 POWER SUPPLY LGA100A-24-J1Y 1 PS3 2 HX007080000 POWER SUPPLY LFA300F-24-TY 1 PS2 3 HA005240000 CIRCUIT PROTECTOR W28XQ1A- 3 1 CP13 4 HA00524000B CI…

维修调整要领书
13-6
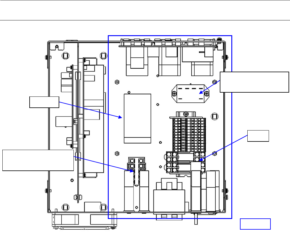
图 13-2-1-2-5 电源装置平面图 3
RL7
最下部
RL1
(仅适用于标准规格)
RL4
(仅适用于标准规格)
K1/TH

维修调整要领书
13-7
表 13-2-1-2-1 电源装置
No.
JUKI 货号 零件名称 零件数量 位置 备注
1 HX006900000 POWER SUPPLY LGA100A-24-J1Y
1
PS3
2 HX007080000 POWER SUPPLY LFA300F-24-TY
1
PS2
3 HA005240000 CIRCUIT PROTECTOR W28XQ1A- 3
1
CP13
4 HA00524000B CIRCUIT PROTECTOR W28XQ1A- 8
1
CP4
5 HA00524000D CIRCUIT PROTECTOR W28XQ1A- 15
2
CP2,3
6 HA00524000E CIRCUIT PROTECTOR W28XQ1A-12
2
CP5,8
7 HA00542000A CIRCUIT PROTECTOR NRW10- 5A
2
CP9,10
8 HA00542000C CIRCUIT PROTECTOR NRW10-10A
1
CP7
9 HA00650000A
CIRCUIT PROTECTOR
NRAN1100S-20AAD
1
CP6
10 HA006510000
CIRCUIT PROTECTOR
NRAN3100S-30AMA
1
CP1
11 HA00651000D
CIRCUIT PROTECTOR
NRAN3100FS-10AMA
1
CP12
12 HB001540000 RELAY G2R-2-SD (DC24V)
1
RL7
13 HB001540010 RELAY P2RF-08
1
RL7
14 HB00128000C RELAY G7J-4A-B (DC24V)
3 (0)
RL1,5,6
EN 机未使用
15 HB000580010 RELAY R99-04 FOR G5F
3 (0)
RL1,5,6
EN 机未使用
16 HB001100000 RELAY G7L-2A-BUBJ (DC24V)
1 (0)
RL4
EN 机未使用
17 HB001100010 RELAY P7LF-C
1 (0)
RL4
EN 机未使用
18 40109881 S-POWER PCB ASM
1
PCB
19 40149144 S-ZT POWER PCB ASM
1
PCB
20 HA006190000
MAGNETIC CONTACTOR
MSOD-Q11CX 3.6A
1
K1/TH

维修调整要领书
13-8
13-2-1-3 ETF DC 电源电压等级的调整方法(选购项)
DC 电源输出电压调整用电源装置的 MONI 来进行。(参照图 13-2-1-4-1)
以保证 No.1~2 的 DC 电源的输出电压是规格调整值,各 DC 电源的输出电压用可变电阻器调整。
表 13-2-1-3-1 ETF DC 电源电压等级的设定
NO.
电源规格 电源代号 电源装置测定端子 电压调整值
1 +24V PS2
MONI 4 脚(+24VE)和 3脚(+24VERTN)
+26V±0.1V
13-2-1-4 ETF 电源装置构成图(选购项)
图 13-2-1-4-1 ETF 电源装置构成图 1
注 1. 调整电位器时,要调整到电压值不超出规格调整值。
注 2. MONI 1-4 销,和有调整指示的电源以外的 GND 绝对不能共用(不能连接)。
注 3. 进行 PS2 的电压调整时,请卸下电动台架的连接器之后再进行(请在无负荷状态
下进行)。
注意
CP1
CP2
CP3
MONI