JX-350_保养维修手册.pdf - 第8页
维修调整要领书 1-1 第 1 章 XY 装置 1-1 伺服电动机的更换 1-1-1 X 电动机的更换 1 ) 请拆下 B_COVER_SCREW ,卸下 MOTOR_COVER_R 。 2 ) 请松开 COUPRING_X_ 螺丝(不拆下),卸下 SERVO MOTOR 750W 线束的连接器。 3 ) 请拆下 SL6062042TN ,更换 SERVO MOTOR 750W 。 4 ) 安装时按相反的步骤进行。 ※ COUPLING…

维修调整要领书
第 14 章 自动基板宽度调整(选购项) ..................................................... 14-1
14-1 AWC 托架的装配 .................................................................................................................... 14-1
14-2 向主体的安装 ......................................................................................................................... 14-2
14-2-1 AWC 支架的安装............................................................................................................. 14-2
14-3 原点传感器、止动卡具的安装 ................................................................................................ 14-3
14-4 支撑销检测传感器 .................................................................................................................. 14-4
14-4-1 支撑销检测传感器的安装 ............................................................................................... 14-4
14-4-2 支撑销检测传感器的安装(束线) ................................................................................. 14-5
14-5 传感器调整 ............................................................................................................................ 14-6
14-6 驱动器支架的安装 .................................................................................................................. 14-6
14-7 驱动器的设定 ......................................................................................................................... 14-7
14-8 BU-PIN 销传感器止动卡具的安装 ........................................................................................... 14-8
14-8-1 制动器托架用止动卡具 ................................................................................................... 14-8
14-8-2 制动器框架用止动卡具 ................................................................................................... 14-8
14-8-3 IN/OUT 缓冲同时安装时 ................................................................................................. 14-9
第 15 章 送料器位置指示器(FPI)(选购项) ........................................ 15-1
15-1 FPI(前)的拆卸 .................................................................................................................... 15-1
15-2 FPI(后)的拆卸 .................................................................................................................... 15-2
15-3 FPI 内部零件构成(前) ........................................................................................................ 15-3
15-4 FPI 内部零件构成(后) ........................................................................................................ 15-4
第 16 章 切带机(选购项) ....................................................................... 16-1
16-1 整体图 ................................................................................................................................... 16-1
16-2 切带机主体的更换 .................................................................................................................. 16-2
16-3 切带机刀刃的更换 .................................................................................................................. 16-4
附录 治具表 .............................................................................................. A-1

维修调整要领书
1-1
第1章 XY 装置
1-1 伺服电动机的更换
1-1-1 X 电动机的更换
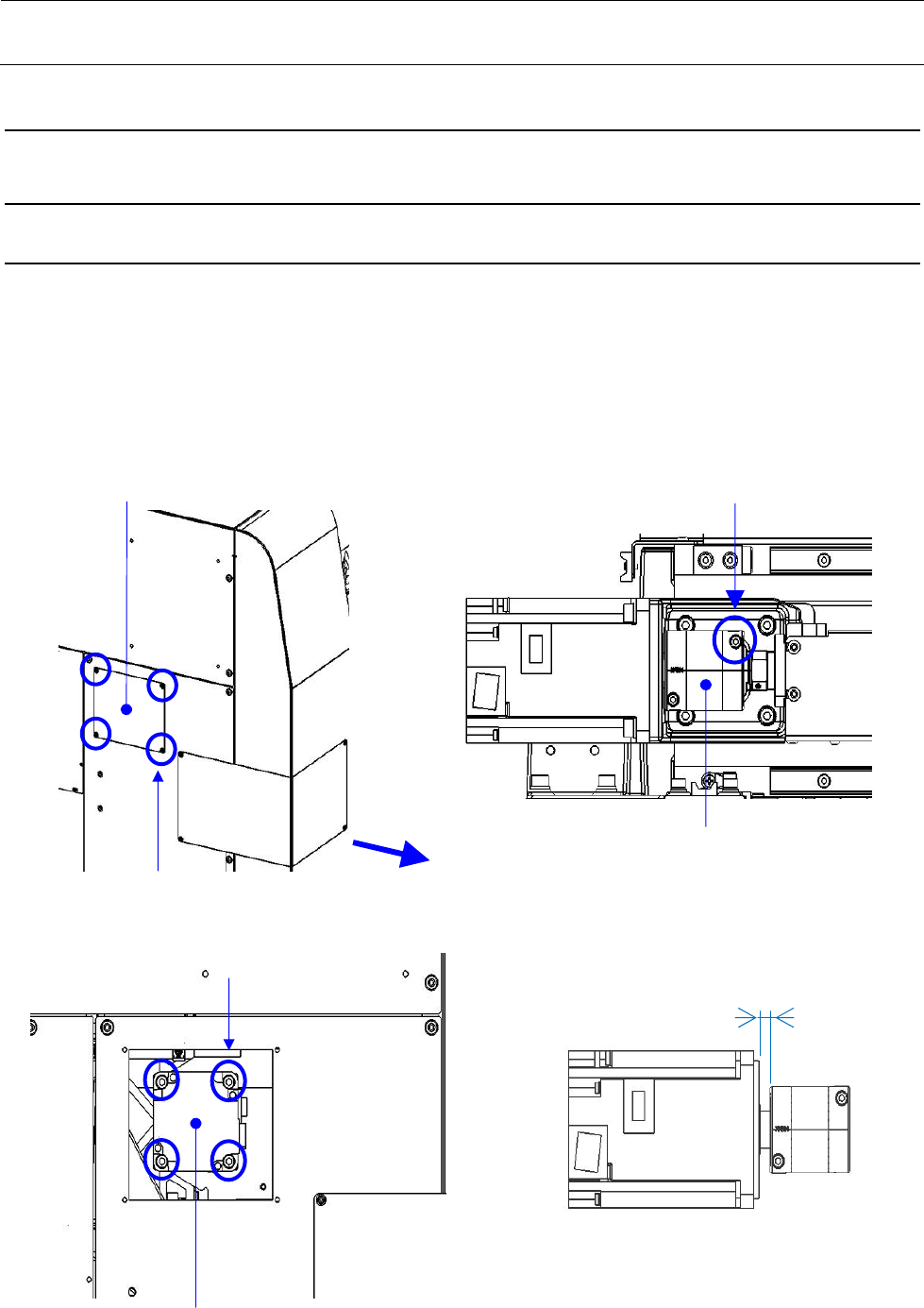
1) 请拆下 B_COVER_SCREW,卸下 MOTOR_COVER_R。
2) 请松开 COUPRING_X_螺丝(不拆下),卸下 SERVO MOTOR 750W 线束的连接器。
3) 请拆下 SL6062042TN,更换 SERVO MOTOR 750W。
4) 安装时按相反的步骤进行。
※ COUPLING 与电动机的空隙为 7mm,COUPRING_X_螺丝的安装扭矩为 2.5Nm(图 1-1-1-4)。
要注意电动机朝向。
FRONT
B_COVER_SCREW(×4)
MOTOR_COVER_R
SERVO MOTOR 750W
SL6062042TN(×4)
图 1-1-1-1
图 1-1-1-2
图 1-1-1-3
图 1-1-1-4
COUPLING_X_螺丝
COUPLING_X
7

维修调整要领书
1-2
1-1-2 YL 电动机的更换
1) 请拆下 B_COVER_SCREW,卸下 MOTOR_COVER_F。
2) 请松开 COUPRING_Y_螺丝(不拆下),卸下 SERVO MOTOR 1500W 线束的连接器。
3) 请拆下 SM6082002TN,更换 SERVO MOTOR 1500W。
4) 安装时按相反的步骤进行。
※ COUPLING 与电动机的空隙为 4mm,COUPLING_Y_螺丝的安装扭矩为 7 Nm。(图 1-1-2-4)
图 1-1-2-1
图 1-1-2-2
FRONT
B
_
COVER
_
SCREW(×4)
MOTOR_COVER_F
COUPLING_Y
COUPLING_Y_
螺丝
图 1-1-2-3
图 1-1-2-4
SM6082002TN(×4)
SERVO MOTOR 1500W
4