00194081-01 - 第175页
User Manual SIPLAC E CF 6 Component han dling Software Vers ion SR.408.xx 03/2006 US Ed ition 6.5 Waffle-pack c hanger 175 6.5.8 T echnical dat a 6 6 W affle-pack change r Length Approx. 1475 mm Width Approx. 620 mm Heig…

6 Component handling User Manual SIPLACE CF
6.5 Waffle-pack changer Software Version SR.408.xx 03/2006 US Edition
174
6
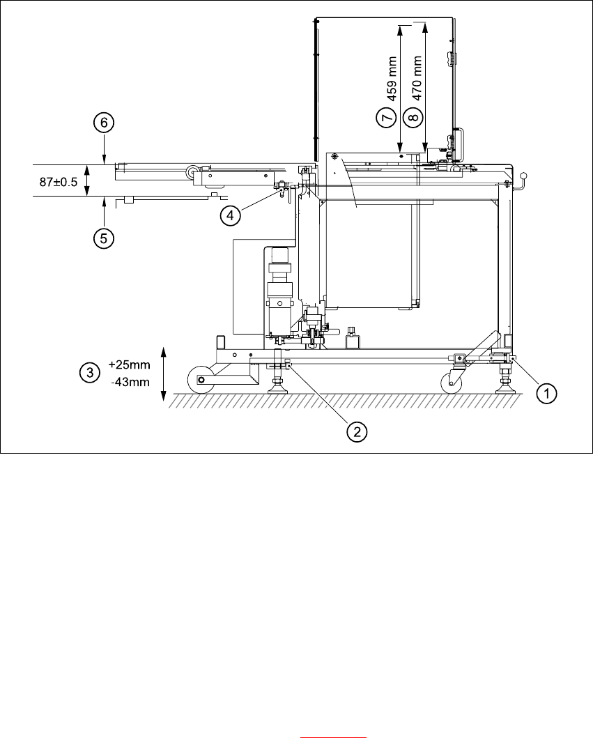
Fig. 6.5 - 6 Setting up the WPC
6
(1) Using UP/DOWN Allen key
(2) Clamping screw
(3) Stroke
(4) Docking pin
(5) Top edge of component feeder table magnetic rail
(6) Bottom edge of magazine carrier
(7) Nominal travel (459 mm)
(8) Refill position (470 mm)
6
Æ Loosen the clamping screws on the feet (see Fig. 6.5 - 6) and use a 10 mm ball-tip Allen key
to turn the WPC down until docking pin engages. At the same time, align the WPC using the
machine's integral spirit level.
Æ Tighten the clamping screws and check the machine spirit level again.
Æ Place the top part of the camera on the component vision module once more.

User Manual SIPLACE CF 6 Component handling
Software Version SR.408.xx 03/2006 US Edition 6.5 Waffle-pack changer
175
6.5.8 Technical data
6
6
Waffle-pack changer
Length Approx. 1475 mm
Width Approx. 620 mm
Height Approx. 1355 mm
Weight Approx. 240 kg
Vertical stroke 470 mm
Horizontal stroke 730 mm
Spacing 17 mm
Storage capacity 28 magazine carriers for holding waffle-pack trays
Magazine carriers 260 mm x 360 mm
Max. weight of the storage unit 50 kg
Floor loading < 25N/cm²
Max. magazine size 240 mm x 340 mm
Magazine height 15 mm, including component
Max. number of component types 200 per waffle-pack changer
Changeover time (magazine/magazine) ≤ 3 sec.
6 Component handling User Manual SIPLACE CF
6.5 Waffle-pack changer Software Version SR.408.xx 03/2006 US Edition
176