TR5DNR_TR5DNX-Rev04PDFA - 第21页
- 18 - REF. NO NOT E PART NO D E S C R I P T I O N 品 名 Qty 1 NM -6030 003-S C NUT M3 六角ナット M 3 1 2 WS -03100 02-K N SP R I NG W ASHE R M3 ばね座金 3.1 X 5.9 X 0. 7 1 3 E142 5 - 726-00 0 C H UCK OPEN /CLOSE BRA CKET チャック開閉 BR…

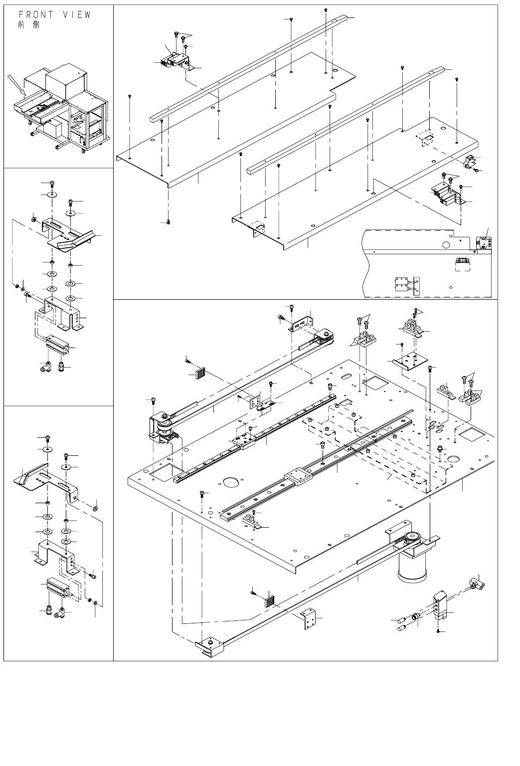
- 17 -
9. Y UNIT (2)
Y ユニット(2)
1
2
3
4
5
6
12
13
16
15
14
3
11
10
9
7
8
3
17
18
29
28
27
28
11
16
19
20
21
22
24
25
26
33
34
35
23
43
43
44
41
42
45
46
31
30
32
37
36
38
39
40

- 18 -
REF.NO NOTE PART NO D E S C R I P T I O N
品 名
Qty
1 NM-6030003-SC NUT M3
六角ナット M 3
1
2 WS-0310002-KN SPRING WASHER M3
ばね座金 3.1 X 5.9 X 0.7
1
3 E1425-726-000 CHUCK OPEN/CLOSE BRACKET
チャック開閉 BR
1
4 E1426-726-000 CHUCK OPEN/CLOSE STUD
チャック開閉 SD
1
5 SB-1030002-00 BEARING
ころがり軸受
1
6 RE-0200000-K0 E-RING
E 形止め輪 2
1
7 E1420-726-0A0 MARK ASM.
マーク組
1
8 E6137-723-000 Y HOLD BASE LA
Y ホールドベース LA
1
9 400-48807 Y HOLD ROLLER
Y ホールドローラー
1
10 E1401-726-000 TRAY CHUCK PIN
トレイチャックピン
1
11 RE-0300000-K0 E-RING 3
E 形止め輪 3
2
12 E1401-726-000 TRAY CHUCK PIN
トレイチャックピン
1
13 400-48807 Y HOLD ROLLER
Y ホールドローラー
1
14 E6138-723-000 Y HOLD BASE RA
Y ホールドベース RA
1
15 E1420-726-0A0 MARK ASM.
マーク組
1
16 RE-0300000-K0 E-RING 3
E 形止め輪 3
2
17 SB-1060007-00 BALL BEARING
ボウルベアリング B
1
18 400-49268 PIVOT SLEEVE
ピボットスリーブ
1
19 E1452-726-000 CHUCK BASE H
チャックベース H
1
20 400-48776 HOLDER GUIDE
ホルダーガイド
1
21 E1458-726-000 CHUCK SP A
チャック SP _ A
1
22 E1459-726-000 SP GUIDE SHAFT
SP ガイドシャフト
1
23 E1390-726-000 Y SENSOR DOG
Y センサドグ
1
24 400-49188 Y SLIDER GUIDE
Y スライダガイド
2
25 E1455-726-000 STOPPER BOLT
ストッパボルト
2
26 400-49269 Y SLIDE LINK
Y スライドリンク
1
27 400-49267 PIVOT COLLAR
ピボットカラー
1
28 SB-1060007-00 BALL BEARING
ボウルベアリング B
2
29 400-49266 PIVOT SLEEVE A
ピボットスリーブ A
1
30 SM-6030802-TN BOLT
六角穴ボルト
8
31 SM-6030602-TN HEX SCREW M3 X 6
六角穴ボルト M 3 X 0.5 L =6
1
32 SM-6030502-TN SCREW M3 L=5
六角穴ボルト M 3 L =5
4
33 400-48919 Y SLIDER BASE
Y スライダベース
1
34 PH-0400122-C0 PIN
平行ピン
2
35 SL-6030642-TN SCREW M3 L=6
座金付き六角穴ボルト
2
36 SL-6030642-TN SCREW M3 L=6
座金付き六角穴ボルト
2
37 SL-6030642-TN SCREW M3 L=6
座金付き六角穴ボルト
2
38 SL-6042592-TN SCREW
座金付き六角穴ボルト
1
39 NM-6040001-SC NUT M4
六角ナット M 4
1
40 400-49273 SCREW
スクリュー
1
41 400-49270 COVER PLATE L
カバープレート L
1
42 400-49271 COVER PLATE R
カバープレート R
1
43 400-49272 COLLAR
カラー
4
44 SM-1030601-SC SCREW M3 L=6
皿ねじ M 3 X 0.5 L =6
4
45 SM-6030802-TN BOLT
六角穴ボルト
6
46 SM-6030802-TN BOLT
六角穴ボルト
4

- 19 -
10. Y UNIT (3)
Y ユニット(3)
2
3
9
10
11
12
14
15
16
21
17
18
25
22
23
24
20
19
30
31
32
33
28
34
37
8
4
5
6
7
26
27
38
38
13
35
36
29
1
49
50
51
52
53
54
55
50
49
3
2
3
3
53
54
15
15
15
16
56
28
41
42
39
48
47
40
44
43
46
57
58
59
60
62
61
68
70
69
72
67
66
65
64
63
71
71
38
77
78
79
76
75
74
73
45
45
46