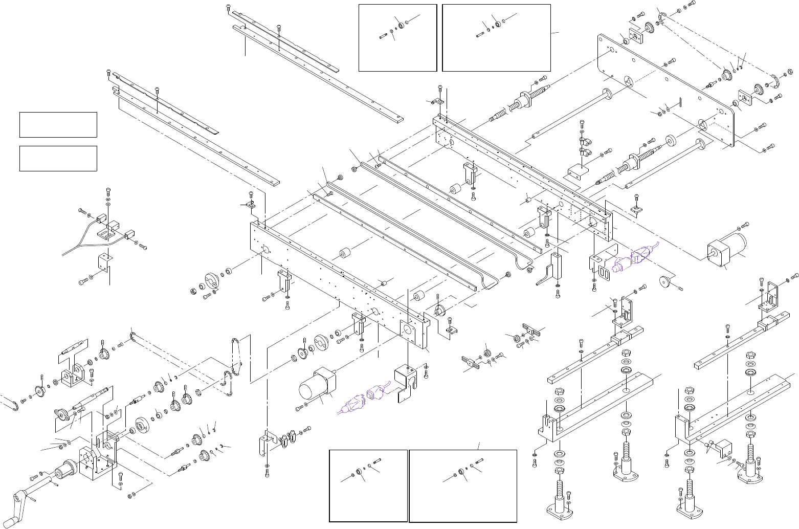
CP-743E-03 - 第26页
P U L L E Y A S S Y M Q C - 1 0 6 1 P U L L E Y A S S Y M Q C - 1 2 9 0 タ テ x 1 7 3 . 2 0 5 R e f . 3 1 - 1 R e f . 3 1 - 1 R e f . 3 1 - 1 R e f . 3 3 - 7 2 0 7 2 3 8 標準 S t a n d a r d 標準 S t a n d a r d x 9 I C J D …

PULLEY ASSY
MQC-1061
PULLEY ASSY
MQC-1290
タテx173.205
Ref.31-1
Ref.31-1
Ref.31-1
Ref.33-7
x9
211
210
211
210
198
189
211
211
202
197
221
188
198
198
191
206
183
198
222
202
197
221
98
100
99
107
108
80
105
43
41
105
80
108
107
97
81
95
96
95
95
81
97
96
95
46
45
97
81
95
96
95
44
101
85
85
40
84
79
102
102
31
103
117
118
51
83
30
205
176
174
205
I
C
174
205
205
174
205
176
205
176
199
193
198
239
190
199
193
199
193
199
193
28
2
132
132
10
11
68
66
67
67
207
238
207
238
66
68
68
66
67
67
66
68
68
66
67
67
66
68
68
66
67
67
66
68
17
167
17
167
6
7
74
76
J
D
B
A
115
116
116
115
197
182
174
196
233
235
235
232
236
186
207
186
207
197
181
202
197
221
181
197
189
198
218
197
226
179
196
196
237
196
237
217
219
J
H
207
207
180
196
211
198
187
207
192
153
133
24
164
164
163
39
86
160
H
90
89
72
141
141
78
75
75
135
72
138
138
96
97
81
95
95
146
166
33
131
124
230
230
234
234
102
102
16
9
I
E
E
B
A
G
196
標準
Standard
180
176
176
211
218
195
173
182
197
198
207
188
188
197
184
212
197
184
187
207
188
188
188
207
219
219
217
219
159
154
134
35
125
125
3
72
140
72
140
86
71
70
13
12
57
56
71
70
160
201
201
196
196
176
176
54
54
90
89
77
75
75
137
136
137
136
135
121
101
82
79
102
102
84
79
102
102
84
8
F
G
K
K
L
C
D
61
182
197
224
195
195
224
F
91
60
201
196
176
159
158
157
157
162
161
158
157
157
162
15
K
14
標準
Standard
L
158
157
157
161
162
L
158
157
157
15
162
14
4 - 1
4.1.アウトコンベア(DGQC)
4.1.Out conveyor(DGQC)
4.1.アウトコンベア(DGQC)
4.1.Out conveyor(DGQC)
薄厚基板対応(オプション)
Support for PCBs
Thinner than 0.5mm(Option)
薄厚基板対応(オプション)
Support for PCBs
Thinner than 0.5mm(Option)
CP-743E,CP-742E PARTS LIST

PULLEY ASSY
MQC-1061
PULLEY ASSY
MQC-1290
タテx173.205
Ref.31-1
Ref.31-1
Ref.31-1
Ref.33-7
207
238
標準
Standard
標準
Standard
x9
I
C
J
D
B
A
115
116
116
115
197
226
J
H
H
I
E
E
B
A
G
F
G
K
K
L
C
D
F
K
L
L
64.68N.m
64.68N.m
64.68N.m
64.68N.m
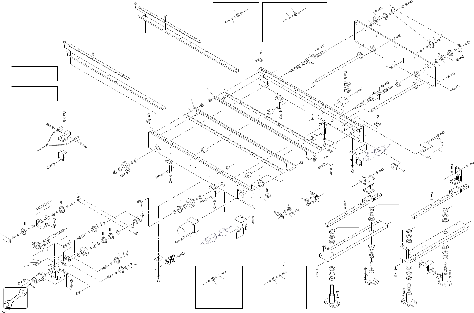
4 - 2
4.1.アウトコンベア(DGQC)
4.1.Out conveyor(DGQC)
4.1.アウトコンベア(DGQC)
4.1.Out conveyor(DGQC)
薄厚基板対応(オプション)
Support for PCBs
Thinner than 0.5mm(Option)
薄厚基板対応(オプション)
Support for PCBs
Thinner than 0.5mm(Option)
CP-743E,CP-742E PARTS LIST

4.1.アウトコンベア(DGQC)
4.1.Out conveyor(DGQC)
番号 図番 & コード番号 個数 品名 規格 備考 材質
No. Drg.No. & Code No. QTY Description Rating Remarks Materials
2 DGQC3220 1 STOPPER ストッパ PL
3 DGQC3230 1 BKT, SENSOR BKT センサ FE
6 DGQC3090 1 BRIDGE ブリッジ FE
7 DGQC3100 1 BRIDGE ブリッジ FE
8 DGQC3024 1 PLATE, SIDE プレート サイド OT
9 DGQC3035 1 PLATE, SIDE プレート サイド OT
10 DGQC3110 1 BKT BKT FE
11 DGQC3120 1 BKT BKT FE
12 DCQC0710 1 STOPPER ストッパ FE
13 DCQC0830 1 STOPPER ストッパ 薄厚基板対応(オプション) FE
14 ADGQC8040 2 PULLEY ASSY プーリ ASSY 薄厚基板対応(オプション) OT
15 DGQC0690 2 PULLEY プーリ 薄厚基板対応(オプション) FE
16 DGQC3060 1 PLATE プレート FE
17 DGQC3130 2 BOLT, STUD ボルト スタッド FE
24 DGQC3180 1 LEVER レバー FE
28 DGQC3290 2 COLLAR カラー FE
30 DGQC3350 1 BKT BKT FE
31 DGQC3360 1 SHAFT シャフト FE
33 DGQC3300 1 STOPPER ストッパ PL
35 DCQC3390 1 BKT, WIRING BKT 配線 FE
39 DGQC3200 1 BKT BKT FE
40 DCQC3270 1 COLLAR カラー FE
41 DCQC3290 1 BKT BKT FE
43 DCQC3320 1 SHAFT シャフト FE
44 DCQC3330 1 SHAFT シャフト FE
45 DCQC3340 1 SHAFT シャフト FE
46 DCQC3350 1 SHAFT シャフト FE
51 ADGQC8030 1 HANDLE ASSY ハンドル ASSY OT
54 DCQC0330 2 PULLEY, MOTOR プーリ モータ OT
56 DCQC0720 1 STOPPER ストッパ FE
57 DCQC0820 1 STOPPER ストッパ 薄厚基板対応(オプション) FE
60 DCQC3541 1 BKT, SENSOR BKT センサ FE
61 DCQC3531 1 BKT BKT FE
66 CSQC1210 8 WASHER, SPHERICAL ワッシャ 球面 FE
67 CSQC1220 8 WASHER, SPHERICAL ワッシャ 球面 FE
68 CSQC1230 8 NUT, HEX ナット 六角 FE
70 MQC1061 2 TENSION PULLEY ASSY テンションプーリ ASSY OT
71 ADCQC8030 2 PULLEY ASSY プーリ ASSY 薄厚基板対応(オプション) OT
72 CSQC0570 4 STOPPER ストッパ OT
74 MQC1073 1 SEAL シール PL
75 MQC1292 4 PULLEY ASSY プーリ ASSY OT
76 MQC1300 1 SEAL シール PL
77 MQC3313 1 GUIDE, CONVEYOR ガイド コンベア FE
78 MQC3323 1 GUIDE, CONVEYOR ガイド コンベア FE
79 GVC0141 3 COLLAR カラー FE
80 GVC0320 2 COLLAR カラー FE
81 GVC0350 4 COLLAR カラー FE
82 GVC2262 1 SPROCKET スプロケット FE
CP-743E,CP-742E PARTS LIST
4 - 3
4.1.アウトコンベア(DGQC)
4.1.Out conveyor(DGQC)