GL-541E-08 - 第19页
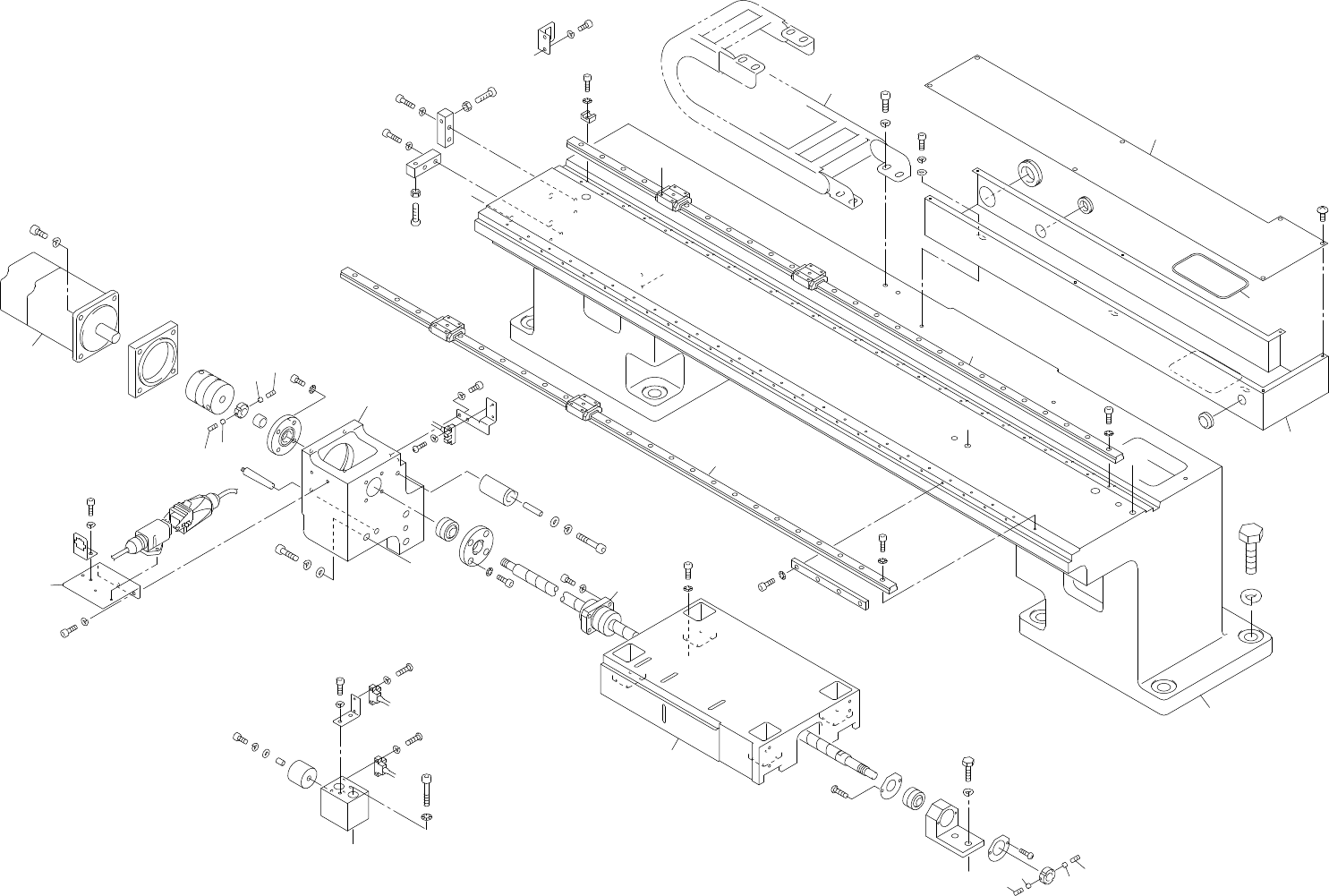
4.X軸スライド(BTPA) 4.X axis slide(BTPA) 番号 図番 & コード番号 個数 品名 規格 備考 No. Drg.No. & Code No. QTY Description Rating . 1 BTPT0026 1 BASE, SLIDE ベース スライド 2 BTPA0054 1 DUCT ダクト 3 BTPA0060 1 COVER カバー 4 K4146W 1 FLEXIBL…

GL-541E PARTS LIST ver08
4.X軸スライド(BTPA)
4.X axis slide(BTPA)
4 - 1
4.X軸スライド(BTPA)
4.X axis slide(BTPA)
x6.8
A
A
B
B
C
C
D
D
E
E
70
57
48
71
39
23
22
23
39
37
21
58
52
20
18
19
37
17
60
36
16
56
44
43
61
13
15
31
32
64
57
49
50
58
65
38
54
25
24
55
40
14
43
61
13
69
12
11
10
39
23
39
23
75
55
73
74
75
55
28
29
30
63
56
44
27
55
40
25
54
38
26
54
38
51
62
5
60
36
7
60
36
53
59
2
33
60
35
41
67
3
76
77
63
56
42
47
64
4
5
46
66
8
45
56
8
66
46
45
56
6
60
34
72
55
75
1

4.X軸スライド(BTPA)
4.X axis slide(BTPA)
番号 図番 & コード番号 個数 品名 規格 備考
No. Drg.No. & Code No. QTY Description Rating .
1 BTPT0026 1 BASE, SLIDE ベース スライド
2 BTPA0054 1 DUCT ダクト
3 BTPA0060 1 COVER カバー
4 K4146W 1 FLEXIBLE TRACK ケーブルベア 25.5-055-16-20A
5 BTPA1020 2 GUIDE ガイド
6 BTPA0120 26 RETAINER 押え
7 BTPA0131 6 RETAINER 押え
8 NPA0180 2 BLOCK ブロック
10 BTPA0260 1 COUPLING カップリング
11 IPB5160 1 NUT ナット
12 NPA0133 1 COLLAR カラー
13 NPA0123 2 RETAINER, BEARING 押え ベアリング
14 BTPA0113 1 BKT, MOTOR BKT モータ
15 H4210A 1 BEARING ベアリング 7001CDBC7P5
16 BTPA1010 1 BALL SCREW ボールネジ
17 BTRG0012 1 SLIDE, X-AXIS スライド X軸
18 NPT0160 1 COVER カバー
19 H4207A 1 BEARING ベアリング 7000CDBC7 P5
20 NPA0072 1 BKT BKT
21 NPA0170 1 COVER カバー
22 NPA0290 1 NUT ナット
23 IPA0661 4 BLOCK 駒
24 BTPA0030 1 BKT, SENSOR BKT センサ
25 S4040Y 2 SENSOR, PHOTO センサ フォト EE-SPX405-W2A
26 S4040W 1 SENSOR, PHOTO センサ フォト EE-SPX305-W2A
27 BTPA0090 1 BKT, SENSOR BKT センサ
28 BTPA0081 1 BLOCK ブロック
29 NPA0200 1 DAMPER ダンパ
30 NPA0190 1 COLLAR カラー
31 BTPA0170 1 STOPPER ストッパ
32 GPT0750 1 COLLAR カラー
33 H3084H 1 BUSHING, RUBBER ブッシュ ゴム NG-79G
34 H5274A BOLT, HEX SOCKET M3X6L
35 H5275A BOLT, HEX SOCKET ボルト 六角穴 M3X8L
36 H5276A BOLT, HEX SOCKET ボルト 六角穴 M3X10L
37 K5255H SCREW, C/R PAN 小ネジ 十穴鍋 M3X5L
38 K5178T SCREW, C/R PAN 小ネジ 十穴鍋 M3X12L
GL-541E PARTS LIST ver08
4 - 2
4.X軸スライド(BTPA)
4.X axis slide(BTPA)

4.X軸スライド(BTPA)
4.X axis slide(BTPA)
番号 図番 & コード番号 個数 品名 規格 備考
No. Drg.No. & Code No. QTY Description Rating .
39 N4012A SCREW, HEX SOCKET SET ネジ 六角穴止め M3X8L
40 H5287A BOLT, HEX SOCKET ボルト 六角穴 M4X8L
41 K5206A SCREW, TRUSS 小ネジ トラス M4X4L
42 H5296A BOLT, HEX SOCKET ボルト 六角穴 M5X6L
43 H5299A BOLT, HEX SOCKET ボルト 六角穴 M5X12L
44 H5302A BOLT, HEX SOCKET ボルト 六角穴 M5X20L
45 H5304A BOLT, HEX SOCKET ボルト 六角穴 M5X25L
46 H5305A BOLT, HEX ボルト 六角 M5X30L
47 H5320A BOLT, HEX SOCKET ボルト 六角穴 M6X10L
48 H5327A BOLT, HEX SOCKET ボルト 六角穴 M6X30L
49 H5330A BOLT, HEX SOCKET ボルト 六角穴 M6X40L
50 H5344A BOLT, HEX SOCKET ボルト 六角穴 M8X35L
51 H5346A BOLT, HEX SOCKET ボルト 六角穴 M8X45L
52 H5194A BOLT, HEX ボルト 六角 M8X20L
53 H5248A BOLT, HEX ボルト 六角 M16X50L
54 W1021A WASHER, LOCK ワッシャ スプリング 3M/M
55 W1022A WASHER, LOCK ワッシャ スプリング 4M/M
56 W1023A WASHER, LOCK ワッシャ スプリング 5M/M
57 W1024A WASHER, LOCK ワッシャ スプリング 6M/M
58 W1025A WASHER, LOCK ワッシャ スプリング 8M/M
59 W1029A WASHER, LOCK ワッシャ スプリング 16M/M
60 W1010A WASHER, CONICAL ワッシャ 皿 M-3-L
61 W1012A WASHER, CONICAL ワッシャ 皿 M-5-L
62 W1014A WASHER, CONICAL ワッシャ 皿 M-8-H
63 W1044A WASHER, FLAT ワッシャ 平 4W-5
64 W1045A WASHER, FLAT ワッシャ 平 4W-6
65 W1046A WASHER, FLAT ワッシャ 平 4W-8
66 N1082A NUT, HEX ナット 六角 M5P=0.8
67 H3064A 1 BUSHING ブッシュ KG-012
69 H2088A 2 PIN, TAPER ピン テーパ 1P M8X50
70 SAM6211 1 MOTOR, AC SERVO モータ ACサーボ
71 BTPA0160 1 FLANGE フランジ
72 BTPA2020 1 BKT BKT
73 BTPA2031 1 BKT BKT
74 BTPA2040 1 BKT BKT
75 H5285A BOLT, HEX SOCKET ボルト 六角穴 M4X5L
76 H3084L 1 BUSHING, RUBBER ブッシュ ゴム NG-79-L
GL-541E PARTS LIST ver08
4 - 3
4.X軸スライド(BTPA)
4.X axis slide(BTPA)