QEJM8A-E-MPA-25 - 第151页
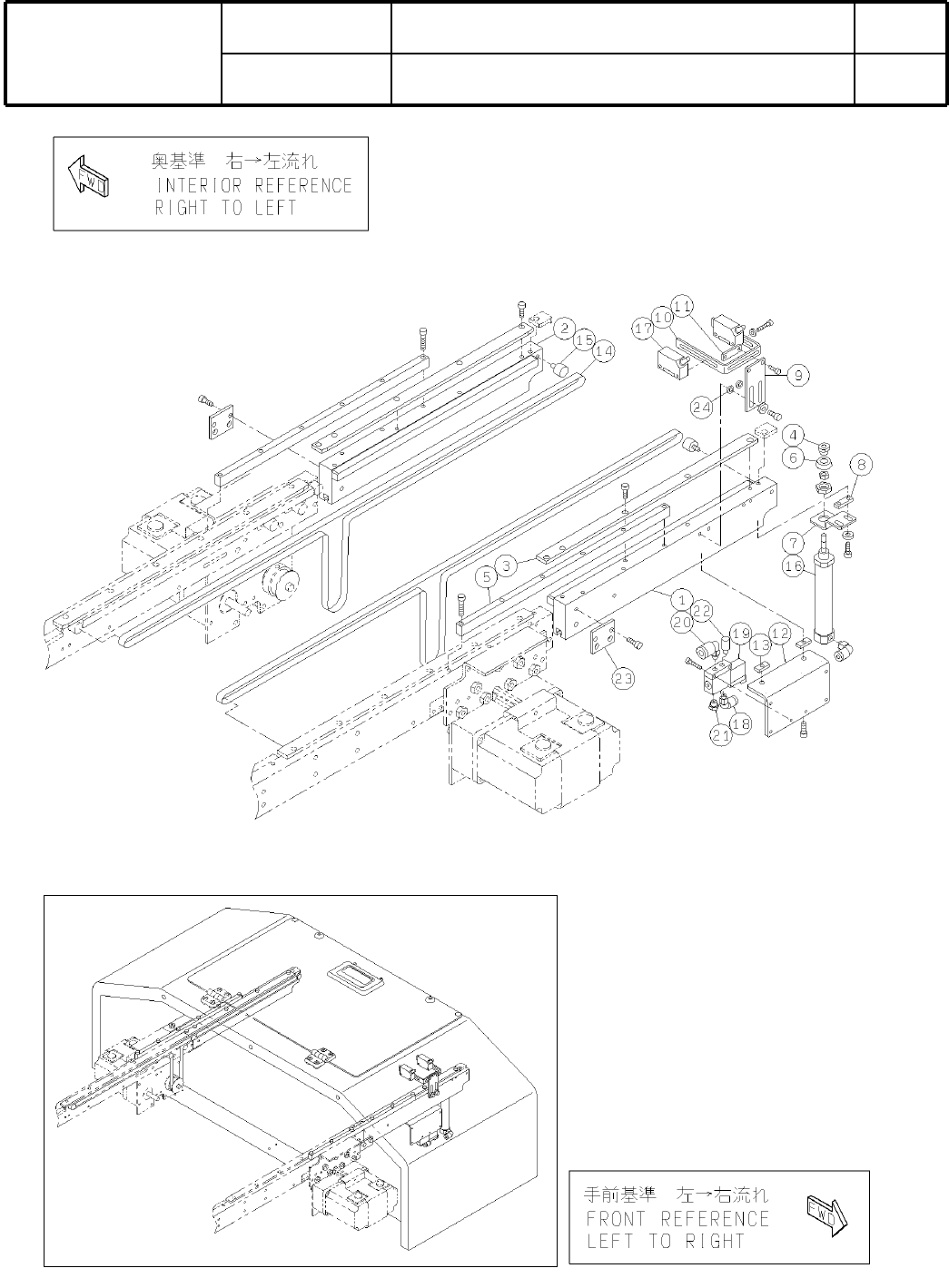
Ref No. Remarks R 1 Q't y 8 基 板 サイドク ラ ンプ Board Side Clamp イラスト No. Part No. 品 名 品番 数量 R 2 パーツリスト Kit No . キット品 番 Kit Name キット名称 KXFX036NA00 Part N ame 備 考 セクションNo. PARTS LIST Section No. R 3 CLAMPER 2 1 KXFB02N0A01…

8
基
板
サイドク
ラ
ンプ
Board Side Clamp
パーツレイアウト
Kit No.
キット品
番
Kit Name
キット名称
KXFX036NA00
セクションNo.
PARTS LAYOUT
Section No.
M127

Ref
No.
Remarks
R
1
Q't
y
8
基
板
サイドク
ラ
ンプ
Board Side Clamp
イラスト
No.
Part No.
品 名品番 数量
R
2
パーツリスト
Kit No.
キット品
番
Kit Name
キット名称
KXFX036NA00
Part Name
備 考
セクションNo.
PARTS LIST
Section No.
R
3
CLAMPER
2
1 KXFB02N0A01
PLATE
2
2 KXFB02N1A01
BAR
2
3 N210007694AA
PLATE
4
4 KXFB02N3A00
AIR-CYLINDER
4
5 KXF0DLFAA00 MXPJ6-5-X23
JOINT
8
6 KXF02STAA00 M-3AU-4
JOINT
4
7 KXF02SZAA00 M-5ALU-4
JOINT
2
8 KXF02TJAA00 M-5UL
JOINT
4
9 KXF02TLAA00 M-5UT
JOINT
8
10 KXF02T3AA00 M-5AU-4
BOLT
4
11 N510017709AA
Hexagon head bolt Best class M3X12-6g 4T A2J (Trivalent)
BOLT
16
12 N510026172AA SEH0305
M128

9-A
下流延長コンベア
Downstream Extension Conveyor
パーツレイアウト
Kit No.
キット品番
Kit Name
キット名称
N610003227AA
セクションNo.
PARTS LAYOUT
Section No.
-
-
M129
( KN610003227AA-02-1 )