OM-1668-001w_FX-G200.pdf - 第61页
39 OM-1668 1010-001 6.2 “ 运行方式 ” 菜单 6.2.2 测试运行指定 可对测试运行指定进行设定。 显示 “ 测试运行 ” 选项卡 (第2页) 。 “ 测试运行 ” 选项卡 (第 2 页) F37 测试运行线路板 设定测试运行方式的内容。 关于助焊剂涂敷单元的项目如下 : 涂助焊剂动作 使用 : 进行涂敷动作。 不使用 : 不进行涂敷动作。

38
OM-1668
1010-001
6.2
“
运行方式
”
菜单
6.2
“
运行方式
”
菜单
6.2.1 运行方式指定
进行助焊剂涂敷单元的运行设定。
在
“
指定运行方式
”
选项卡 (第3 页),按下[助溶剂(助焊剂)涂敷]
按钮,便显示以下界面。
“
指定运行方式
”
选项卡 (第3 页) F36
助熔剂 ( 助焊剂 ) 涂敷运行设定
旋转盘控制
设定是否控制旋转盘多余的旋转下助焊剂剩余量的减少。
停止中
设定是否在装置停止时进行旋转盘的旋转控制。
运行中
设定是否在装置运行时进行旋转盘的旋转控制。
界面展开

39
OM-1668
1010-001
6.2
“
运行方式
”
菜单
6.2.2 测试运行指定
可对测试运行指定进行设定。
显示
“
测试运行
”
选项卡 (第2页)。
“
测试运行
”
选项卡 (第2 页) F37
测试运行线路板
设定测试运行方式的内容。
关于助焊剂涂敷单元的项目如下 :
涂助焊剂动作
使用 : 进行涂敷动作。
不使用 : 不进行涂敷动作。

40
OM-1668
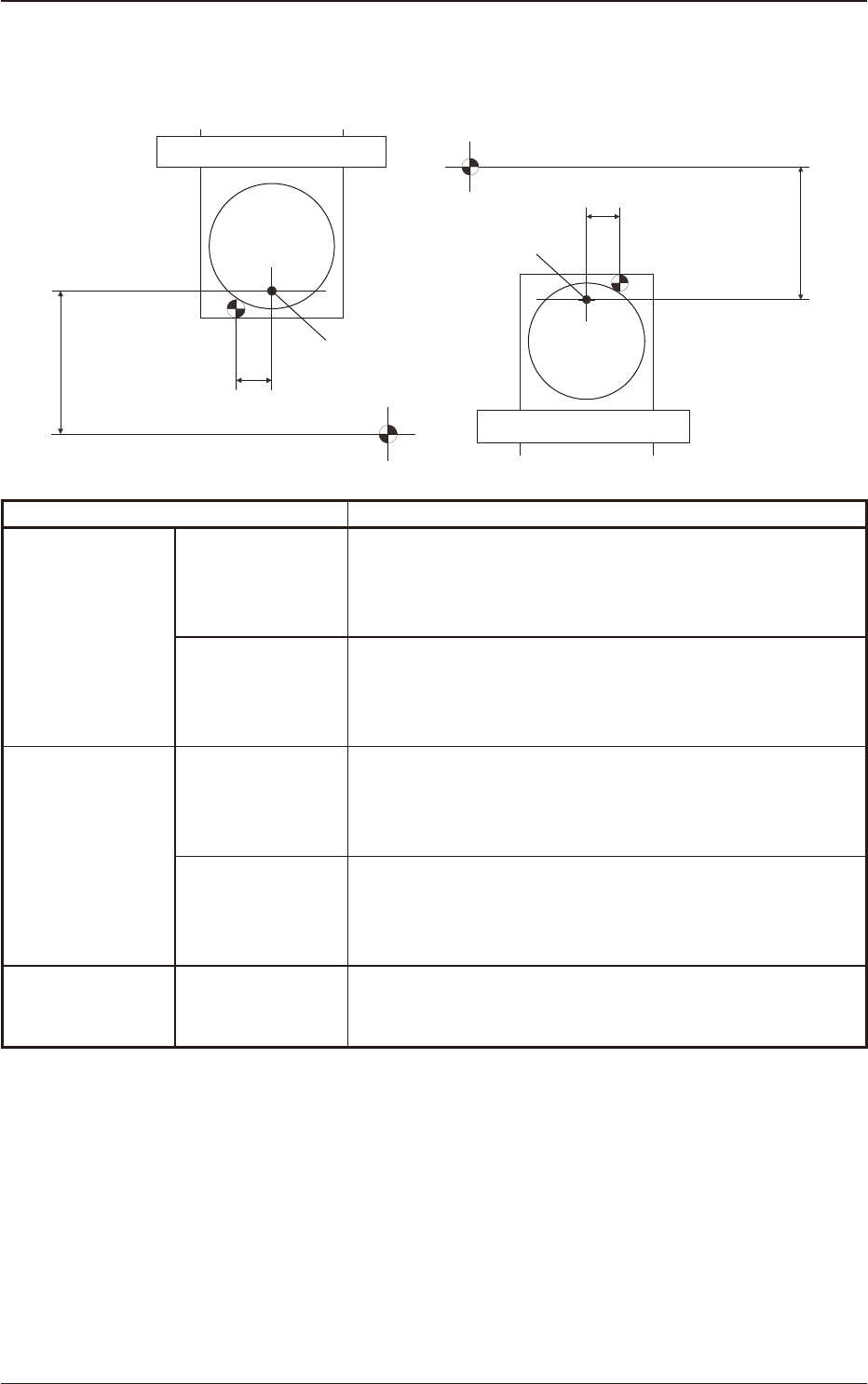
7. 补正值
助焊剂涂敷单元的补正值如下 :
旋转盘
连接器1
槽中央X坐标
模块中央基准
涂敷位置
后模块 (F1xx)
523.0
21.0
模块中央基准
连接器1
槽中央X坐标
涂敷位置
前模块 (F2xx)
523.0
21.0
旋转盘
F38
名 称 详 细
涂敷位置 X 模块 1 设定位置的槽计算值 X+21.0mm
+ 送料器补正值(A)X
+ 助焊剂涂敷单元内补正值 X
+ 元件识别补正 X
模块 2 设定位置的槽计算值 X–21.0mm
+ 送料器补正值(A)X
+ 助焊剂涂敷单元内补正值 X
+ 元件识别补正 X
涂敷位置 Y 模块 1 +523.0mm
+ 送料器补正值(A)Y
+ 助焊剂涂敷单元内补正值 Y
+ 元件识别补正 Y
模块 2 -523.0mm
+ 送料器补正值(A)Y
+ 助焊剂涂敷单元内补正值 Y
+ 元件识别补正 Y
涂敷位置 Z 模块 1,2 贴装角度
+ 元件识别补正 Z
T4
7. 补正值
1010-001