RS-1_维修调整要领书 - 第201页
维修调整要领书 12 - 12 ・ DC 电源输出电压 调 整 ,要通过 电 气装置 单元的 CN 2 和 PS 4,5 进行。 (测量位置 参见 图 12 -2-2-2-1 ) ・ DC 电源输出电压 调整为规定调 整 值 ,需要拆下开 关 电源 盖子, 调整各 DC 电源 的输出 电压可调电阻。 注 1 . 调整可调电阻 时,电 压值不要调整 到规定调整值以外。 注 2 . 切勿与有调整 指示的电源以外的 GND(**RTN) 接通…

维修调整要领书
12-11
12-2-2-2 DC
电源电压级别的调整方法
表
12-2-2-2-1
.
DC
电源电压级别设定
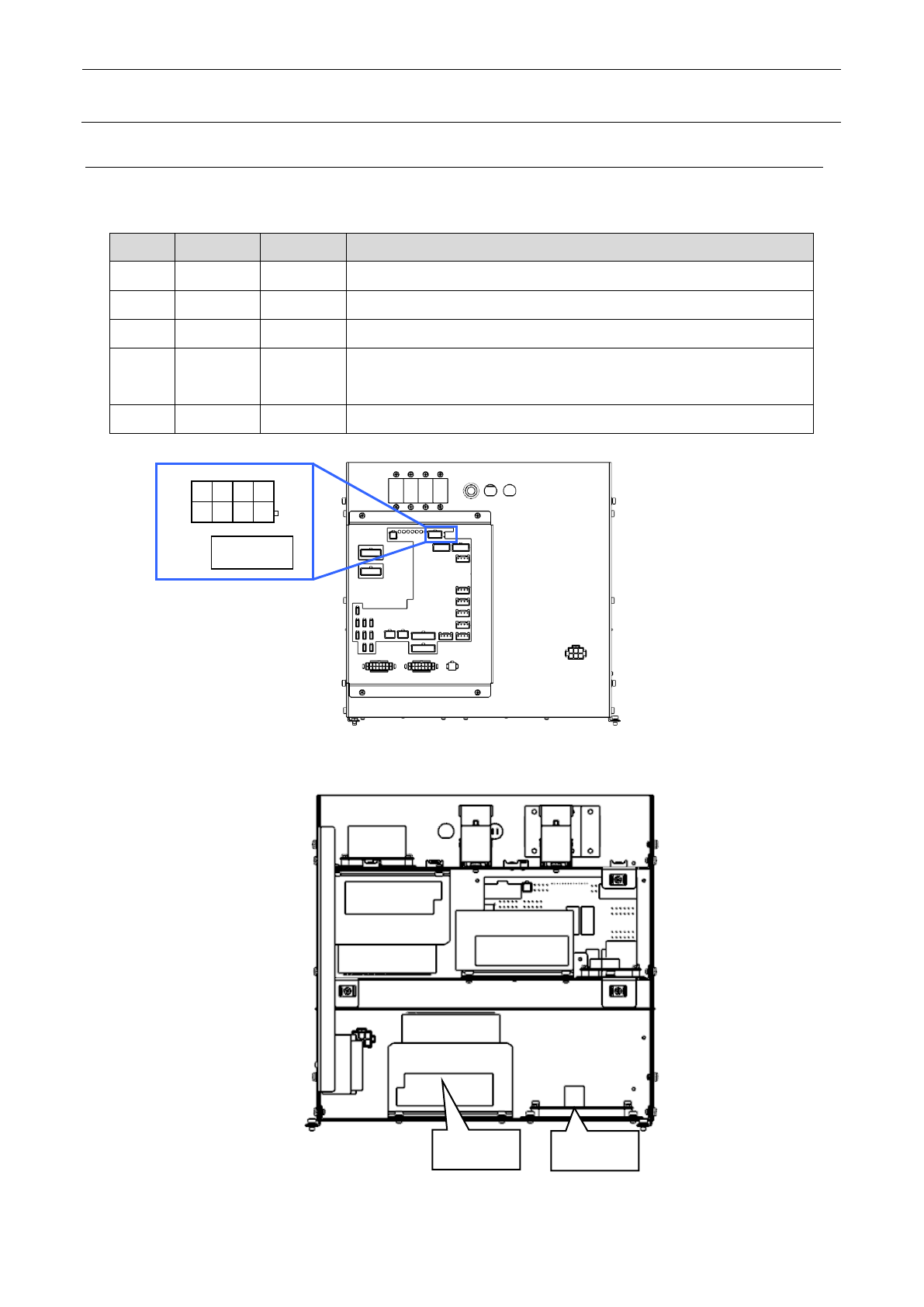
No.
电源规格 电源标记 电源单元测量端子
1 +48V PS3
CN2 4 针(+48V)及 8 针(+48VRTN)
2 +24V PS1
CN2 1 针(+24V)及 5 针(+24VRTN)
3 +24V PS2
CN2 2 针(+24VZ)及 6 针(+24VZRTN)
4 +24V PS4
PS4 电压输出端子
+V(+24V FR BANK)和-V(+24VRTN FR BANK)
5 +24V PS5
CN2 3 针(+24VS)及 7 针(+24VSRTN)
图
12-2-2-2-1
监视器接口
CN2
的配置及针脚定义
图
12-2-2-2-2 PS4
和
PS5
的配置
CN2
8 7 6 5
4 3 2 1
PS4
PS5

维修调整要领书
12-12
・ DC 电源输出电压调整,要通过电气装置单元的 CN2 和 PS4,5 进行。(测量位置参见图 12-2-2-2-1)
・ DC 电源输出电压调整为规定调整值,需要拆下开关电源盖子,
调整各 DC 电源的输出电压可调电阻。
注 1.
调整可调电阻时,电压值不要调整到规定调整值以外。
注 2.
切勿与有调整指示的电源以外的 GND(**RTN)接通。(不要连接)
注意

维修调整要领书
12-13
12-3
控制单元
控制单元的基板配置图如图 12-3-1 所示。
图
12-3-1
基板配置图
POSITION BOARD 40129648
IO CONTROL PCB ASM 40128871
CPU BOARD 40123242
IPX-11 ASM 40133294
(BLANK)