RS-1_维修调整要领书 - 第232页
维修调整要领书 12 - 43 表 12 -8-6-2-2 .支撑台 轴伺服 驱动 器 警告代码列表 警告代码 名称 内容 发生的 状况 主要原因 11 Over Current 供电驱动部 异常、过电流 仅在电源接通时发生 驱动器不良 伺服 ON 时发生 马达线路的短路 马达线圈短路 驱动器故障 加速减速时发生 驱动器调整不良 驱动器故障 21 Over Load 过负荷警告 当伺服 ON 时、或运转中,马达震 动 调整不良 加减速时…

维修调整要领书
12-42
12-8-6-2
支撑台轴驱动器
(
伺服马达驱动器
)
的设定
支撑台轴的驱动器,参数均已写入完成,无须设定。
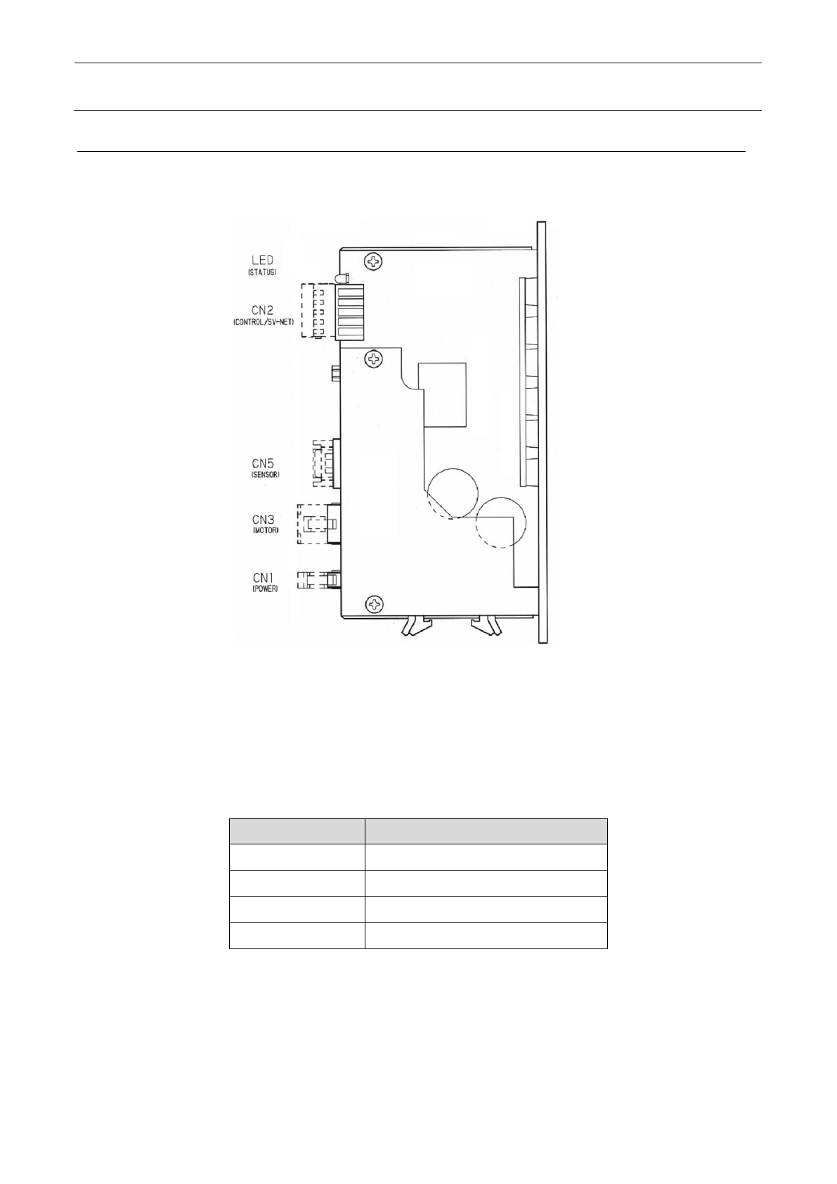
图 12-8-6-2-1 为支撑台轴伺服驱动器的外观图。
图
12-8-6-2-1
.支撑台轴伺服驱动器
伺服驱动器安装有 1 个显示状态的 LED 灯。
该 LED 用绿/橙/红色的亮灯及闪烁显示的状态如下。:
表
12-8-6-2-1
LED
的状态
发光颜色 状态
绿色亮灯 伺服 OFF
绿色闪烁 伺服 ON
橙色亮灯 警告 驱动电源 OFF 状态
以红+绿色闪烁 检测出警告
警告的状态,也 可用同一 LED 进行确认,但 LED(红和绿)的闪烁次数显示不同的意思。红色的 LED
闪烁次数代表警告代码的 1O 位,绿色的闪烁次数代表警告代码的 1 位。
警告代码,请见表 12-8-6-2-2。

维修调整要领书
12-43
表
12-8-6-2-2
.支撑台轴伺服驱动器警告代码列表
警告代码 名称 内容 发生的状况 主要原因
11
Over
Current
供电驱动部
异常、过电流
仅在电源接通时发生 驱动器不良
伺服 ON 时发生
马达线路的短路
马达线圈短路
驱动器故障
加速减速时发生
驱动器调整不良
驱动器故障
21
Over
Load
过负荷警告
当伺服 ON 时、或运转中,马达震动 调整不良
加减速时发生
加减速度大
以一定速度旋转中发生 负荷扭矩大
伺服
ON
时发生
马达线路
31 Over Speed 速度警告 在动作过程中发生 速度的过冲
41
Counter
Overflow
多旋转异常 在旋转过程中发生
驱动器内部的位置计数器
超过了规定值
42 位置偏差过大
偏差计数器的值超过了
设定值。
脉冲指令输入时发生 未伺服 ON
,脉冲就已输入。
加减速时发生
加减速度大
51 Over Heat
电源驱动部检测出
异常温度
在动作过程中发生
在频繁过负荷状态下使用
周围温度高
61
Sensor Error 传感器异常 电源接通时
解析器信号的振幅过小时,
会检测出此信号。有断线等
的可能性
62
当解析器信号的振幅过大
时,会检测出此信号
71 Over Voltage 驱动电压过大
在动作过程中发生 恢复能力不足
电源接通时发生
电源接通时检测出此信号
时,电压规格错误
驱动器故障
72 Voltage Down 驱动电压低
动作中
电源功率不足
驱动电源线断线
电源接通时
驱动电源线断线
91
Flash Memory
Error
非易失存储器读取异常 电源接通时
集成电路内的非易失存储
器或 CPU 故障
92
非易失存储器写入异常
参数保存时
98 HaRDware Error CPU 异常
在动作过程中发生 因噪声干扰导致的误动作
电源接通时
驱动器不良
99
Parameters
Error
参数异常 参数保存时
向非易失存储器写入的值
异常

维修调整要领书
12-44
12-9 SAFETY PCB ASM (40128872)
【功能】
SAFETY 基板的功能是,进行装置内的安全监视用各种传感器及操作用开关、信号塔等连接、各种
传感器及开关的状态监视及信号塔亮灯控制、护罩锁定等的电磁线圈控制。以及因 XY 轴的紧急停
止控制,向 XY 伺服放大器及 POSITION BOARD 接收发送紧急停止信息及限位信息。
① X、YL、YR 限位传感器的监视
② 护罩打开传感器的监视
③ 操作开关(START/STOP/CONSOLE/KEY)的监视
④ 台架下降传感器的监视
⑤ 护罩锁定电磁线圈的控制
⑥ 信号塔的亮灯熄灭控制
⑦ 微型信号塔(选购项)的亮灯熄灭控制
⑧ 机器人电缆断线的监视
【短路针(跨接线)的设定】
请确认 W1、W2 的设定应为如下所示。
W1 W2
51
2 6
51
2 6
W4 的设定装置规格,ST 与 EN 不同。
ST 机设定为
W4
71 4 10
93 6 12