SM482_TRM(Ver6.9_CS17.04) - 第117页
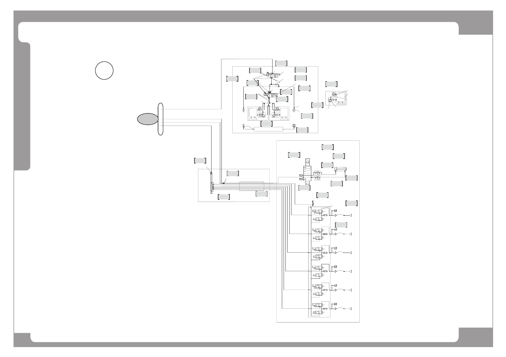
Page HANWHA TECHWIN 11 3 SM482(L) AIR Ass’y(5/5) NO. P ART NO. P ART NAME Q'TY Old No. Supply Supply L T Reference 1 FC14- 900724 PLUG [PT 1/8] 3 2 HP14-900026 SOLENOID V AL VE [K180-4E1-21-DC2 4V] 2 3 HP14-900092 C…

Page
HANWHA TECHWIN
112
SM482(L)
AIR Ass’y(5/5)
6
7
D
A-D
Feeder Base (DC)
4-H
P06-900018
KQ2U06-00
REAR
DOCKING CART ASS'Y (OPTION)
FRONT도 DC OPTION 일 때, 동일 구조
2-H
P03-900011
AIR CYLINDER(SMC)
HP03-900011
AIR CYLINDER(SMC)
U2-4-6*4, YELLOW
U2-4-6*4, BLACK
4-HP06-900027
KQ2L04-M5
U2-4-4*2.5
2-HP06-900300
KS-4-M5-SA34698KR
U2-4-4*2.5
U2-4-4*2.5
5-HP06-900014
KQ2L06-01
U2-4-4*2.5
2-H
P06-900299
KD-M5-SA34697KR
2-HP06-900047
KQ2L04-M5
HP14-900026
K180-4E1-21-DC24V
HP14-900026
K180-4E1-21-DC24V
HP14-900092
AKH06-00
2-HP09-900162
AN101-01
HP06-900018
KQ2U06-00
HP06-900050
SQU04-06-W
3-FC14-900724
PT 1/8
U2-4-6*4
MGPM63-35
-CJJP1685
ASP330F-01-06S
AS2201F-01-06S
KQ2L06-M5
2-PT18-EF
U2-4-6*4
1
5
2
2
3
10
11
4
8
9
12
13
9
HEAD Air Module
HP09-000148
KM11-04-08-6
Y C
ABLE DUCT ASSY
P(BLOW)
HP06-900245
M-5HL-4
HP06-900263
M-5H-4
HP03-900016
BDAS6X15-CS11TA2
HP13-900089
MULTI TUBE
UML-408 BK8-3.5M
8
1
2-H
P06-900089
KQ2H04-06
HP06-000457
QSY12-8
U2-4-8*5, BLACK
HP14-900064
SOLENOID VALVE
SY3120-5LZ-M5-F2
2-HP09-900165
AN120-M5
HP06-900183
KJL04-M5
2-H
P06-000074
KQ2S04-M5N
2-H
P14-900097
AS1001F-04
HEAD 1HEAD 2HEAD 3HEAD 4HEAD 5HEAD 6
10-HP04-900036
FILTER VYF44-M
-50M
AM03-015252A
AIR MODULE (SOL)
VQ110-06-CJSZ0993
6-H
P14-000163
34B-L00-G
DFA-1KT
BLOW
ĭ4 0.1MPa
ĭ4 0.5MPa
U2-4-12*8, BLACK
14
15
16
17
19
18
20
21
22
23
24
25
26
27

Page
HANWHA TECHWIN
113
SM482(L)
AIR Ass’y(5/5)
NO. PART NO. PART NAME Q'TY Old No. Supply Supply LT Reference
1 FC14-900724 PLUG [PT 1/8] 3
2 HP14-900026 SOLENOID VALVE [K180-4E1-21-DC24V] 2
3 HP14-900092 CHECK VALVE[AKH06-00] 1
4 HP06-900050 UNION Y FITTING 1
5 HP06-900014 FITTING [KQ2L06-01/PL6-01] 5
6 HP06-900018 FITTING [KQ2U06-00/PY6M] 1
7 HP09-900162 SILENCER AN101-01 2
8 HP06-900018 FITTING [KQ2U06-00/PY6M] 4
9 HP03-900011 AIR CYLINDER 3
10 HP06-900047 ELBOW FITTING 2
11 HP06-900299 COUPLER[KD-M5-SA34697KR] 2
12 HP06-900300 PLUG[KS-4-M5-SA34698KR] 2
13 HP06-900027 FITTING [KQ2L04-M5/PL4-M5M/SQL04-M5] 4
14 HP06-000457 FITTING-QSY_12_8;Y_FITTING,12-8,12-8 1
15 HP06-900089 STRAIGHT_FITTING KQ2H04-06 2
16 HP09-000148 MANIFOLD-AIR_KM11;PC 1
17 HP13-900089 MULTI TUBE[UML-408 BK8-3.5M 1
18 HP09-900165 SILENCER[TAN120-M5] 2
19 HP14-900064 SOL VALVE[SY3120-5LZ-M5-F2] SY3120-5LZ-M 1
20 HP06-900183 FITTING_ELBOW KJL04-M5 1
21 HP03-900016 AIR CYLINDER BDAS 6X15-CS11TA2 1
22 HP06-900245 FITTING M-5HL-4 1
23 HP14-900097 SPEEDCONTROL AS1001F-04 2
24 HP06-000074 FITTING-STRAIGHT FITTING;KQ2S04-M5N,ONET 2
25 AM03-015252A ASSY,AIR-SM482_AIR_MODULE_SMC 1
26 HP14-000163 VALVE,SOLENOID-MAC_solenoid valve 6
27 HP04-900036 SUCTION_FILTER VYF44-M-50M 10

Page
HANWHA TECHWIN
114
SM482(L)
Electric Control Part