FX-3R-Rev05 - 第64页
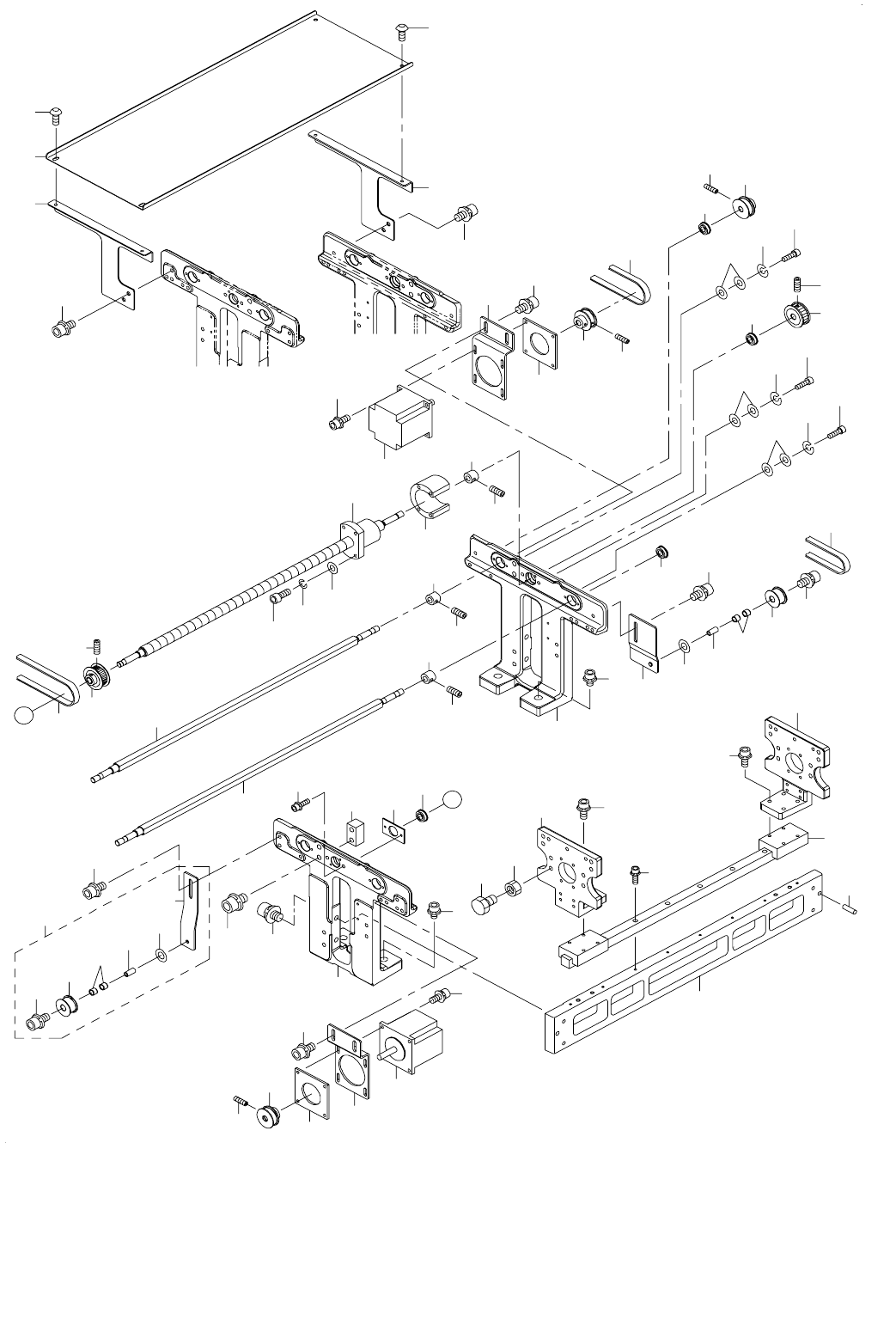
- 57 - 29.PWB CONVEY OR COMPONENT S (3) 基板搬送 関係(3) 4 5 9 10 8 19 12 13 15 17 16 11 2 20 18 66 67 68 24 25 26 27 28 7 30 29 34 31 32 33 35 36 37 42 40 39 38 41 43 49 46 47 50 51 1 52 53 54 55 63 57 60 58 61 64 65 65 64 66…

- 56 -
NOTE( 注記 ) #01....TYPE XL XL 仕様
*INSTALLATION POSITION AND DIRECTION VARY IF THE PWB TRANSFER
REFERENCE IS DIFFERENT.
基板搬送基準が異なると取付位置、方向が変わります。
REF.NO NOTE PART NO D E S C R I P T I O N
品 名
Qty
1 400-46858 CONVEYOR_RAIL_J_ASM
コンベアレール J 組
2
2
#01
400-94138 CONVEYOR_RAIL_J_ASM_XL
コンベアレール J 組_ XL
2
3 400-46917 RAIL_PLATE_J-A
レールプレート J − A
(1)
4
#01
400-92021 RAIL_PLATE_J-A_XL
レールプレート J − A _ XL
(1)
5 400-46918 RAIL_PLATE_J-B
レールプレート J − B
(1)
6
#01
400-92022 RAIL_PLATE_J-B_XL
レールプレート J − B _ XL
(1)
7 400-46919 CONVEYOR_RAIL_J-A
コンベアレール J − A
(1)
8
#01
400-92008 CONVEYOR_RAIL_J-A_XL
コンベヤレール J − A _ XL
(1)
9 400-46920 CONVEYOR_RAIL_J-B
コンベアレール J − B
(1)
10
#01
400-92009 CONVEYOR_RAIL_J-B_XL
コンベヤレール J − B _ XL
(1)
11 400-46922 RAIL_SUPPORT_J
レールサポート J
(2)
12
#01
400-92024 RAIL_SUPPORT_J_XL
レールサポート J _ XL
(2)
13 SM-4040855-SC SCREW
なべ小ねじ M 4 L =8
(4)
14 E2089-721-0A0 CONVEYOR PULLEY B ASM.
搬送プ−リ B 組
(8)
15 400-46933 PULLEY_SPACER_A
プーリスペーサ A
(8)
16 SM-4042001-SC SCREW M4 X 20
なべ小ねじ M 4 X 0.7 L =20
(6)
17 SM-4042501-SC SCREW M4X0.7 L=25
なべ小ねじ M 4 X 0.7 L =25
(2)
18 WP-0430801-SC WASHER 4.3X9X0.8
平座金 4.3 X 9 X 0.8
(2)
19 WS-0410002-KN SPRING WASHER
ばね座金 M 4
(2)
20 NM-6040001-SC NUT M4
六角ナット M 4
(2)
21 400-46868 DRIVE_PULLEY_ASM
ドライブプーリ組
(2)
22 400-46942 DRIVE_PULLEY
ドライブプーリ
(1)
23 E2160-721-000 PULLEY FLANGE
プーリフランジ
(1)
24 SL-6030892-TN SCREW
座金付き六角穴ボルト
(3)
25 E3931-750-000 PULLEY WASHER
プーリ スラスト ワッシャ
(4)
26 E2160-721-000 PULLEY FLANGE
プーリフランジ
(2)
27 SL-6030892-TN SCREW
座金付き六角穴ボルト
(6)
28 SL-6031692-TN SCREW
座金付き六角穴ボルト
(4)
29 SM-6052002-TN BOLT
六角穴ボルト
(4)
30 WP-0531001-SC WASHER
平座金みがき丸 M 5
(4)
31 SL-6052092-TN SCREW
座金付き六角穴ボルト
(4)
32 E2111-715-0A0 CONVEYOR PULLEY ASM.
搬送プ−リ(組)
(4)
33 WP-0430800-SC WASHER M4
平座金小形丸 M 4
(4)
34 400-46859 CONVEYOR_RAIL_IN-OUT_ASM
コンベアレール IN − OUT 組
2
35
#01
400-94139 CONVEYOR_RAIL_IN-OUT_ASM_XL
コンベアレール IN − OUT 組_ XL
2
36 400-46927 RAIL_PLATE_IN-OUT_A
レールプレート IN − OUT _ A
(1)
37
#01
400-92025 RAIL_PLATE_IN-OUT_A_XL
レールプレート IN − OUT _ A _ XL
(1)
38 400-46928 RAIL_PLATE_IN-OUT_B
レールプレート IN − OUT _ B
(1)
39
#01
400-92026 RAIL_PLATE_IN-OUT_B_XL
レールプレート IN − OUT _ B _ XL
(1)
40 SL-6031692-TN SCREW
座金付き六角穴ボルト
(6)
41 400-46929 CONVEYOR_RAIL_IN-OUT_A
コンベアレール IN − OUT _ A
(1)
42
#01
400-92011 CONVEYOR_RAIL_IN-OUT_A_XL
コンベヤレール IN − OUT _ A _ XL
(1)
43 400-46930 CONVEYOR_RAIL_IN-OUT_B
コンベアレール IN − OUT _ B
(1)
44
#01
400-92012 CONVEYOR_RAIL_IN-OUT_B_XL
コンベヤレール IN − OUT _ B _ XL
(1)
45 SM-6052002-TN BOLT
六角穴ボルト
(6)
46
#01
SM-6052002-TN BOLT
六角穴ボルト
(8)
47 WP-0531001-SC WASHER
平座金みがき丸 M 5
(6)
48
#01
WP-0531001-SC WASHER
平座金みがき丸 M 5
(8)
49 400-46932 RAIL_SUPPORT_IN-OUT
レールサポート IN − OUT
(2)
50
#01
400-92028 RAIL_SUPPORT_IN-OUT_XL
レールサポート IN − OUT _ XL
(2)
51 SL-6052092-TN SCREW
座金付き六角穴ボルト
(6)
52 E3931-750-000 PULLEY WASHER
プーリ スラスト ワッシャ
(4)
53 E2160-721-000 PULLEY FLANGE
プーリフランジ
(2)
54 SL-6030892-TN SCREW
座金付き六角穴ボルト
(6)
55 E2111-715-0A0 CONVEYOR PULLEY ASM.
搬送プ−リ(組)
(4)
56 WP-0430800-SC WASHER M4
平座金小形丸 M 4
(4)
57 SM-4040855-SC SCREW
なべ小ねじ M 4 L =8
(4)
58 E2089-721-0A0 CONVEYOR PULLEY B ASM.
搬送プーリ B 組
(8)
59 400-46933 PULLEY_SPACER_A
プーリスペーサ A
(8)
60 SM-4042001-SC SCREW M4 X 20
なべ小ねじ M 4 X 0.7 L =20
(6)
61 SM-4042501-SC SCREW M4X0.7 L=25
なべ小ねじ M 4 X 0.7 L =25
(2)
62 WP-0430801-SC WASHER 4.3X9X0.8
平座金 4.3 X 9 X 0.8
(2)
63 WS-0410002-KN SPRING WASHER
ばね座金 M 4
(2)
64 NM-6040001-SC NUT M4
六角ナット M 4
(2)
65 400-46868 DRIVE_PULLEY_ASM
ドライブプーリ組
(2)
66 400-46942 DRIVE_PULLEY
ドライブプーリ
(1)
67 E2160-721-000 PULLEY FLANGE
プーリフランジ
(1)
68 SL-6030892-TN SCREW
座金付き六角穴ボルト
(3)

- 57 -
29.PWB CONVEYOR COMPONENTS (3)
基板搬送関係(3)
4
5
9
10
8
19
12
13
15
17
16
11
2
20
18
66
67
68
24
25
26
27
28
7
30
29
34
31
32
33
35
36
37
42
40
39
38
41
43
49
46
47
50
51
1
52
53
54
55
63
57
60
58
61
64
65
65
64
66
67
68
44
21
22
23
69
70
69
70
18
5
4
A
A
3
3
71
72
73
74
76
76
75
56
75
56
59
45
14
48
62
6

- 58 -
NOTE( 注記 ) *INSTALLATION POSITION AND DIRECTION VARY IF THE PWB TRANSFER
REFERENCE IS DIFFERENT.
基板搬送基準が異なると取付位置、方向が変わります。
REF.NO NOTE PART NO D E S C R I P T I O N
品 名
Qty
1 400-46898 RAIL_STAND_A
レールスタンド A
4
2 400-46899 RAIL_STAND_B
レールスタンド B
4
3 SL-6083092-TN SCREW
座金付き六角穴ボルト
16
4 400-46900 MOVABLE_RAIL_STAND
可動レールスタンド
8
5 SL-6041692-TN SCREW
座金付き六角穴ボルト M 4 L =16
32
6 401-22960 GUIDE_BAR
ガイドバー
4
7 SL-6063592-TN SCREW
座金付き六角穴ボルト M 6 L =35
16
8 PH-0600202-S0 PIN 6X20
平行ピン 6 X 20
8
9 400-46902 LINEAR_WAY-B
リニアウェイ− B
4
10 SM-6031602-TN SCREW M3 L=16
六角穴ボルト
32
11 400-46905 RAIL_STAND_SPACER
レールスタンドスペーサ
4
12 SL-6063592-TN SCREW
座金付き六角穴ボルト M 6 L =35
8
13 400-46944 SCREW_SHAFT
スクリュウシャフト
4
14 400-93516 SCREW_NUT_SPACER
スクリューナットスペーサ
4
15 SM-6045052-TN SCREW M4 L=50
六角穴ボルト M 4 L =50
16
16 WP-0430801-SC WASHER 4.3X9X0.8
平座金 4.3 X 9 X 0.8
16
17 WS-0410002-KN SPRING WASHER
ばね座金 M 4
16
18 SB-1080002-00 SIDE BEARING
サイドベアリング
8
19 E2012-721-000 ADJUST PLATE
アジャストプレート
4
20 SL-6031492-TN SCREW
座金付き六角穴ボルト
8
21 WP-0320500-SF WASHER 3.2X7X0.5
平座金小形丸 M 3
16
22 WP-0330516-SC WASHER 3.3X8X0.5
平座金 3.3 X 8 X 0.5
8
23 SM-6030602-TN HEX SCREW M3 X 6
六角穴ボルト M 3 X 0.5 L =6
4
24 E2141-721-000 STOPPER COLLAR
ストッパカラー
4
25 SM-8040302-TP SETSCREW
止めねじ
8
26 E4561-729-000 TIMING PULLEY A (30)
幅調タイミングプーリ A(30)
4
27 SM-8040602-TP SCREW M4X0.7 L=6
止めねじ
8
28 E4734-729-000 TIMING BELT S (30E)
幅調タイミングベルト S(30 E)
2
29 400-46877 IDLER_BRACKET_ASM
アイドラブラケット組
4
30 400-46955 IDLER_BRACKET
アイドラブラケット
(1)
31 E4563-729-000 WIDTH ADJUST IDLER PULLEY (30)
幅調アイドラプ−リ(30)
(1)
32 E2017-715-000 M LINER BUSH
M ライナブッシュ
(2)
33 E2018-715-000 PULLEY SLEEVE
プーリ スリーブ
(1)
34 SL-6052592-TN BOLT
座金付き六角穴ボルト
(1)
35 WP-0531001-SC WASHER
平座金みがき丸 M 5
(1)
36 SL-6051292-TN BOLT
座金付き六角穴ボルト
8
37 400-46997 IDLER_PLATE
アイドラプレート
1
38 E4563-729-000 WIDTH ADJUST IDLER PULLEY (30)
幅調アイドラプーリ(30)
1
39 E2017-715-000 M LINER BUSH
M ライナブッシュ
2
40 E2018-715-000 PULLEY SLEEVE
プーリ スリーブ
1
41 SL-6052592-TN BOLT
座金付き六角穴ボルト
1
42 WP-0531001-SC WASHER
平座金みがき丸 M 5
1
43 SL-6051292-TN BOLT
座金付き六角穴ボルト
4
44 E4561-729-000 TIMING PULLEY A (30)
幅調タイミングプーリ A(30)
4
45 SM-8040602-TP SCREW M4X0.7 L=6
止めねじ
4
46 400-00870 MOTOR PULLEY C
モータプーリ C
5
47 SM-8030602-TP SCREW M3X0.5 L=6
止めねじ M 3 X 0.5 L =6
10
48 E2051-721-000 DRIVE BELT
ドライブベルト
5
49 400-46956 CONVEYOR_MOTOR_BRACKET
コンベアモータブラケット
4
50 400-00869 MOTOR ADJUST PLATE
モータアジャストプレート
4
51 SL-6051292-TN BOLT
座金付き六角穴ボルト
8
52 400-48074 CENTER MOTOR ASM
センタモータ組
4
53 SL-6041242-TN BOLT
座金付き六角穴ボルト
16
54 400-00870 MOTOR PULLEY C
モータプーリ C
4
55 SM-8030602-TP SCREW M3X0.5 L=6
止めねじ M 3 X 0.5 L =6
12
56 SL-6051292-TN BOLT
座金付き六角穴ボルト
2
57 400-46956 CONVEYOR_MOTOR_BRACKET
コンベアモータブラケット
1
58 400-00869 MOTOR ADJUST PLATE
モータアジャストプレート
1
59 SL-6051292-TN BOLT
座金付き六角穴ボルト
2
60 400-48075 JOINT MOTOR ASM
ジョイントモータ組
1
61 SL-6041242-TN BOLT
座金付き六角穴ボルト
4
62 400-00870 MOTOR PULLEY C
モータプーリ C
1
63 SM-8030602-TP SCREW M3X0.5 L=6
止めねじ M 3 X 0.5 L =6
3
64 400-46941 DRIVE_SHAFT
ドライブシャフト
6
65 SB-1080002-00 SIDE BEARING
サイドベアリング
12
66 WP-0320500-SF WASHER 3.2X7X0.5
平座金小形丸 M 3
24
67 WP-0330516-SC WASHER 3.3X8X0.5
平座金 3.3 X 8 X 0.5
12
68 SM-6030602-TN HEX SCREW M3 X 6
六角穴ボルト M 3 X 0.5 L =6
12
69 E2141-721-000 STOPPER COLLAR
ストッパカラー
6
70 SM-8040302-TP SETSCREW
止めねじ
12
71 400-46924 JOINT_PULLEY_BELT
ジョイントプーリベルト
1
72 SM-9061613-SC SCREW M6 L=16
六角ボルト M 6 L =16
4
73 NM-6060001-SC NUT M6
六角ナット M 6 1種
4
74 400-76695 JOINT_GUARD
ジョイントガード
1
75 SM-3040652-TN SCREW M4 L=6
丸ねじ M 4 L =6
4
76 400-76696 JOINT_GUARD_SUPPORT
ジョイントガードサポート
2