FX-3R-Rev05 - 第69页
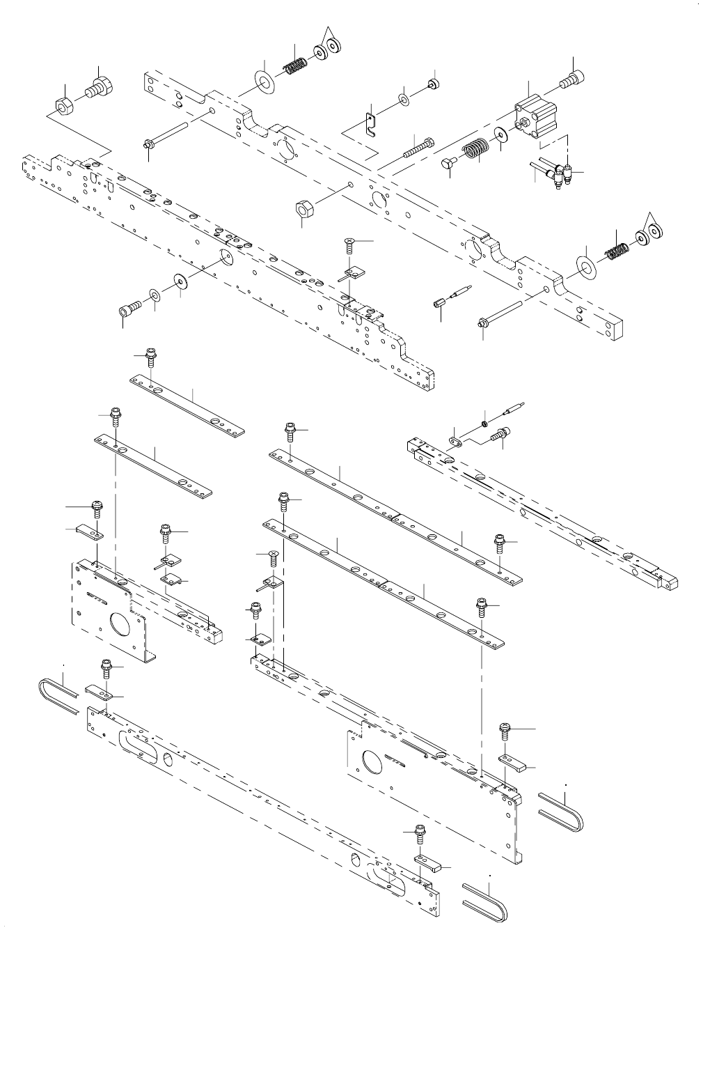
- 62 - NOTE ( 注記 ) #01....F OR TYPE XL XL 仕様 *IN STALLAT I O N PO SIT ION A ND DIRE CTION VARY IF T HE PWB T RA NSFE R REF ERE NCE I S DIFFE RENT . 基板搬送基 準が異な ると取付位置、方 向が変わ ります。 REF. NO NOT E PART NO D E S C R I P T I O …

- 61 -
31.PWB CONVEYOR COMPONENTS (5)
基板搬送関係(5)
3
2
3
4
4
4
5
5
6
6
5
7
8
9
10
17
15
16
18
19
20
21
26
24
25
30
27
31
28
28
29
32
35
29
35
32
33
34
38
34
39
1
22
23
12
43
11
14
13
44
5
7
30
37
36
40
41
41
42
42
42

- 62 -
NOTE( 注記 ) #01....FOR TYPE XL XL 仕様
*INSTALLATION POSITION AND DIRECTION VARY IF THE PWB TRANSFER
REFERENCE IS DIFFERENT.
基板搬送基準が異なると取付位置、方向が変わります。
REF.NO NOTE PART NO D E S C R I P T I O N
品 名
Qty
1 400-46994 STROKE_SPACER_A
ストロークスペーサ A
4
2 400-46921 PWB_GUIDE_J
PWB ガイド J
4
3 400-46931 PWB_GUIDE_IN-OUT
PWBガイドIN−OUT
8
4 SL-6031092-TN SCREW
座金付き六角穴ボルト
24
5 E2046-725-000 PWB INNER
PWB インナ
16
6 SL-4031091-SC SCREW M3 X 10
なべ小ねじセムス
16
7 SL-6031092-TN SCREW
座金付き六角穴ボルト
16
8 400-46925 PWB_INNER_A
PWB インナ A
4
9 400-46926 PWB_INNER_B
PWB インナ B
4
10 SL-6030892-TN SCREW M3 L=8
座金付き六角穴ボルト M 3 L =8
12
11
#01
400-92060 CONVEYOR_BELT_IN_OUT_XL
コンベヤベルト IN − OUT _ XL
4
12 400-46935 CONVEYOR_BELT_S
コンベアベルト S
4
13 400-46936 CONVEYOR_BELT_J
コンベアベルト J
4
14 400-46937 CONVEYOR_BELT_IN-OUT
コンベアベルト IN − OUT
4
15 400-46939 FIBER_BRACKET
ファイバブラケット
4
16 SL-6030892-TN SCREW
座金付き六角穴ボルト
4
17
#01
SM-1031001-SC SCREW M3X0.5 L=10
皿小ねじ M3X0.5 L=10
4
18 400-46992 FIBER_NUT
ファイバナット
2
19 SM-1030601-SC SCREW M3 L=6
皿小ねじ M3X0.5 L=6
4
20 SM-1031001-SC SCREW M3X0.5 L=10
皿小ねじ M3X0.5 L=10
4
21 NM-6040003-SC NUT M4
六角ナット M 4
4
22 E2076-721-000 BU HAND KNOB
BU ハンドノブ
4
23 WP-0430801-SC WASHER 4.3X9X0.8
平座金 4.3X9X0.8
4
24 PA-2501001-00 CYLINDER
シリンダ
2
25 SM-6053502-TN HEXAGONAL-HOLE BOLT M5 L=35
六角穴ボルト M 5 L =35
8
26 PC-0105080-00 SPEED CONTROLLER
スピードコントローラ
4
27 400-46945 SPRING_SHAFT_A
スプリングシャフト A
2
28 400-46946 SPRING_SHAFT_B
スプリングシャフト B
4
29 400-46947 ADJUST_NUT_A
アジャストナット A
8
30 400-46948 ADJUST_WASHER
アジャストワッシャ
4
31 400-46950 SPRING_A
スプリング A
2
32 400-46951 SPRING_B
スプリング B
4
33 SM-9062003-SC SCREW M6 L=20
六角ボルト M 6 L =20
4
34 NM-6060001-SC NUT M6
六角ナット M 6 1種
8
35 WP-0841601-SC WASHER 8.4X17.4X1.6
平座金みがき丸 M 8
4
36 SM-6040502-TN BOLT
六角穴ボルト
2
37 WP-0430801-SC WASHER 4.3X9X0.8
平座金 4.3X9X0.8
2
38 BT-0400251-EA TUBE HOSE, BLUE
ウレタンホース 青
4.6
39 SM-9064003-SB BOLT
六角ボルト M 6 L =40
4
40
#01
400-92023 PWB_GUIDE_J_XL
PWBガイドJ_XL
4
41
#01
400-92027 PWB_GUIDE_IN-OUT_XL
PWBガイドIN−OUT_XL
8
42
#01
SL-6031092-TN SCREW
座金付き六角穴ボルト
32
43
#01
400-92069 CONVEYOR_BELT_CENTOR_XL
コンベヤベルトセンタ_ XL
4
44
#01
400-92061 CONVEYOR_BELT_JOINT_XL
コンベヤベルトジョイント_ XL
4

- 63 -
32.PWB CONVEYOR COMPONENTS (6)
基板搬送関係(6)
52
48
44
28
30
19
22
26
25
20
27
31
18
21
29
49
23
24
24
7
8
9
9
4
41
36
15
16
14
12
5
13
3
6
56
1
54
55
53
47
45
2
A
A
35
58
34
26
11
10
11
37
39
46
43
40
50
51
42
17
32
33
57
38
64
61
63
59
65
65
62
60