00191912-01 - 第450页
10 BE-Handling Betriebsanleitung SIPLACE 80S- 20/F4 10.7 Waffle-Pack-Wechsler (80F4) Softwareversion SR.406.xx Ausgabe 02/2000 DE 448 10.7.9 Einbau de s W affle-Pa ck-Wec hslers Å Be vor Sie den WPW in die M aschine fahr…

Betriebsanleitung SIPLACE 80S-20/F4 10 BE-Handling
Softwareversion SR.406.xx Ausgabe 02/2000 DE 10.7 Waffle-Pack-Wechsler (80F4)
447
10.7.7 Nachfüllen des Wafflepackwechslers
HINWEIS
Die Magazinträger mit der Artikel-Nr. 00132110-04 (alt) und der Artikel-Nr. 00116431-xx (neu)
können beide eingesetzt werden. Diese Magazine können jedoch nicht im Mischbetrieb gerüstet
werden, d.h. es können immer nur Magazine des gleichen Typs gerüstet werden. 10
– Der Wafflepackwechsler kann ohne Maschinenstop nachgefüllt werden.
– Das Anfahren und Beenden der Nachfüllposition des Wafflepackwechslers ist während des
Bestückens möglich. Siehe dazu auch den Abschnitt 4.3.5 dieser Betriebsanleitung.
– Im Menü "Bauteilfördersysteme" sind im Untermenü „Wafflepackwechsler“ die Funktionen, die
Sie mit dem Wafflepackwechsler durchführen können, beschrieben.
– Ist ein Wafflepackwechsler physikalisch vorhanden und mit dem entsprechenden Stellplatz
verkabelt, ist das Anfahren und Beenden in den Einzelfunktionen auch ohne zugehörige Rüs-
tung möglich. Die Füllstandseingabe ist nicht möglich.
– Wird während des Bestückens mit unterschiedlicher Rüstung nachgefüllt, dann müssen die
Füllstände nachträglich (nach Senden der zugehörigen Rüstung) der Station bekannt gegeben
werden.
– Die Überprüfung der Magazinträger -Belegung bei Beenden der Nachfüllposition wird mit der
aktuellen, auf der Station vorhandenen Rüstung durchgeführt. Wird bereits für eine folgende
Rüstung nachgefüllt, kann die ausgegebene Anforderung an die Magazinträger Belegung mit
der zukünftigen Rüstung nicht übereinstimmen.
10.7.8 Systemverhalten in Fehlersituationen
– Wird während eines Abhol- oder Magazinträger -Wechselvorganges die Nachfüllposition an-
gewählt, so wird die Anforderung mit der Meldung "WPW gerade in Bearbeitung" negativ quit-
tiert. Nach Beendigung des Abholvorganges muss erneut der Menüpunkt "Nachfüllposition
anfahren" angewählt werden.
– Erfolgt vom Bestückkopf ein Zugriff auf den Wafflepackwechsler während dieser in der Nach-
füllposition ist, wartet der Bestückablauf nach Ausgabe der Zustandsmeldung "Warten auf Be-
enden der Nachfüllposition des WPW`s" auf die Beendigung des Nachfüllens des
Wafflepackwechslers durch den Bediener.
– Wählt der Bediener eine WPW-Funktion außer "Nachfüllpos. beenden" an, obwohl sich dieser
in der Nachfüllposition befindet, wird die Anforderung mit der Meldung "WPW in Nachfüllposi-
tion" abgelehnt. Analog dazu bei "Nachfüllpos. beenden", obwohl er nicht in Nachfüllposition
ist.
– Wird eine WPW-Funktion bei einem Stellplatz angewählt, auf dem kein WPW steht, wird dies
nach einem Timeout von 10s mit der Meldung "Kein WPW auf diesem Stellplatz" abgelehnt.

10 BE-Handling Betriebsanleitung SIPLACE 80S-20/F4
10.7 Waffle-Pack-Wechsler (80F4) Softwareversion SR.406.xx Ausgabe 02/2000 DE
448
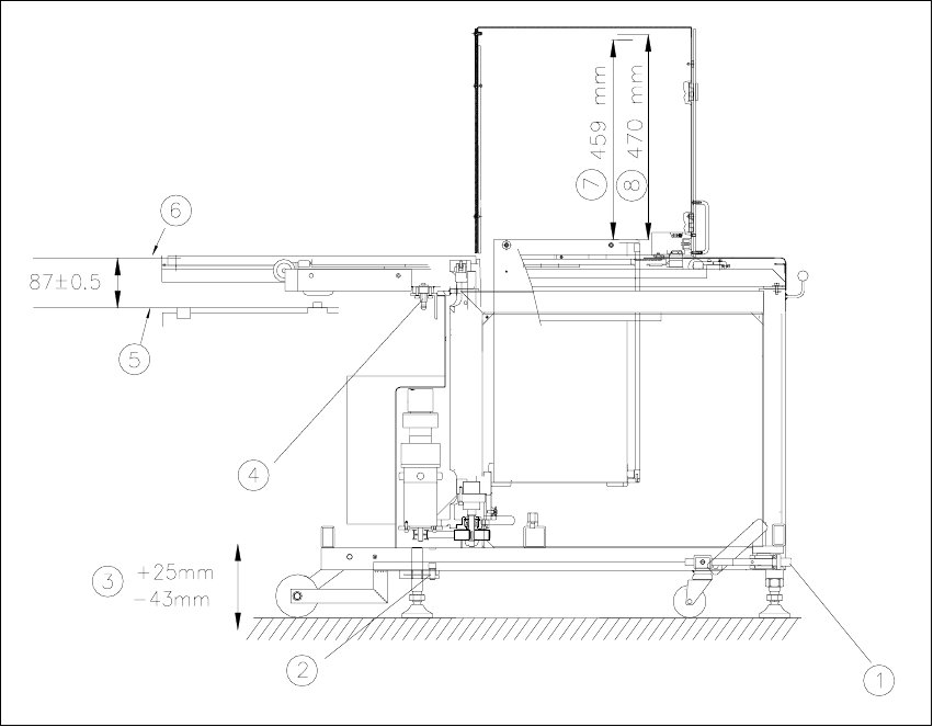
10.7.9 Einbau des Waffle-Pack-Wechslers
Å Bevor Sie den WPW in die Maschine fahren, ziehen Sie das Kameraoberteil des BE-Vision
Moduls ab.
VORSICHT
Mit den angebauten Rädern kann der WPW an der Maschine ein und ausgefahren werden. Die
Räder eignen sich jedoch nicht den WPW über längere Strecken zu transportieren. KIPPGE-
FAHR!
Verwenden Sie zum Transportieren den geeigneten Hubwagen (ab Artikel-Nr. 00123141-01). 10
Å Fahren Sie den WPW vorsichtig in den vorgesehenen Stellplatz der Maschine ein. Die Andock-
stifte des WPW müssen über die Andocknuten der SIPLACE stehen.
Å Kontrollieren Sie das Maß (87 +/- 0,5mm), Unterkante Magazinträger zu Oberkante BE-Tisch
(siehe Abb. 10.7 - 5)

Betriebsanleitung SIPLACE 80S-20/F4 10 BE-Handling
Softwareversion SR.406.xx Ausgabe 02/2000 DE 10.7 Waffle-Pack-Wechsler (80F4)
449
10
Abb. 10.7 - 5 WPW einrichten
(1) Mit Innensechskantschlüssel AUF/AB
(2) Klemmschraube
(3) Hub
(4) Andockstift
(5) Oberkante BE-Tisch-Magnetleiste
(6) Unterkante Magazinträger
(7) Nennhub (459mm)
(8) Nachfüllposition (470mm)
Å Lösen Sie die Klemmschrauben an den Füßen (siehe Abb. 10.7 - 5) und drehen Sie mit einem
10mm Kugelinnensechskantschlüssel den WPW nach unten, bis der Andockstift einrastet. Der
WPW muss dabei mit der am WPW eingebauten Maschinenwasserwaage ausgerichtet wer-
den.
Å Ziehen Sie die Klemmschrauben fest und kontrollieren Sie nochmals die Maschinenwasser-
waage.
Å Stecken Sie das Kameraoberteil wieder auf das BE-Vision Modul auf.