N7202A029B - 第275页
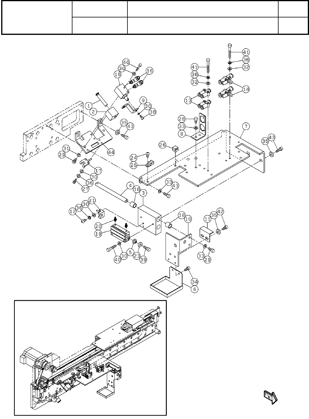
Ref No. Remarks R 1 Q'ty 15 真空ポンプ制御:SPG Vacuum Pump(H):SPG イラスト No. Part No. 品 名 品 番 数量 R 2 パーツリスト Kit No. キット品番 Kit Name キット名称 N610142526AA Part Nam e 備 考 セク ショ ンNo . PARTS LIST Section No. R 3 MAGNE T-SW ITCH 1 1 …

15
真空ポンプ制御:SPG
Vacuum Pump(H):SPG
パーツレイアウト
Kit No.
キット品番
Kit Name
キット名称
N610142526AA
セクションNo.
PARTS LAYOUT
Section No.
--
O35
( KN610142526AA-00 )

Ref
No.
Remarks R
1
Q'ty
15
真空ポンプ制御:SPG
Vacuum Pump(H):SPG
イラスト
No.
Part No.
品 名品 番 数量
R
2
パーツリスト
Kit No.
キット品番
Kit Name
キット名称
N610142526AA
Part Name
備 考
セクションNo.
PARTS LIST
Section No.
R
3
MAGNET-SWITCH
1
1 N510045873AA
S
MSOD-Q11CX(KP) 3.6A 200V DC24V
SURGE-KILLER
1
2 KXFP6GG0A00
S
UN-SA33
BOLT
2
3 N510017341AA
Hexagon socket head cap screw M3X8-10.9 A2J (Trivalent)
BOLT
2
4 N510017344AA
Hexagon socket head cap screw M4X10-10.9 A2J (Trivalent)
WASHER
4
5 N510018479AA
Small round-plain washer 4 10H A2J (Trivalent)
WASHER
2
6 N510018494AA
Round finish plain washer 3 10H A2J (Trivalent)
BOLT
2
7 N510017346AA
Hexagon socket head cap screw M4X12-10.9 A2J (Trivalent)
TERMINAL-BLOCK
1
8 KXFP5HSAA00
S
BTBH30C4
O36
--
( KN610142526AA-00 )

16-A
ヘッドX駆動部:SPG
Head X Drive:SPG
パーツレイアウト
Kit No.
キット品番
Kit Name
キット名称
N610140146AA
セクションNo.
PARTS LAYOUT
Section No.
--
O37
( KN610140146AA-03-1 )