00197013-04_UM_X-Serie-S_ET - 第251页
Kasutusjuhend SIPLACE X-Seeria 4 Ülesseadmine ja käikuvõtmine Alates tarkvaraversioonist 706.1 SP1 Versioon 10/2014 4.3 Masina ülesseadmine 251 4 4 Vabastage ettevaatlikult mõlemad kuukant-pesapeapoldid M24x90 ( osa 2 …

4 Ülesseadmine ja käikuvõtmine Kasutusjuhend SIPLACE X-Seeria
4.3 Masina ülesseadmine Alates tarkvaraversioonist 706.1 SP1 Versioon 10/2014
250
4.3.6.2 Masina välimiste jalgade kõrguse eelseadistamine
4
Jn 4.3 - 7 Masina välimiste jalgade kõrguse eelseadistamine
(1) Seadekruvi M24x2x120 kõrguse reguleerimiseks
(2) Masina välimine jalg
(3) Kinnitusosa
(4) Kuuskant-pesapeapolt M24x90
4
ETTEVAATUST!
Vigastusoht lindijäätmerenni juures.
Kui keerate seadekruvi M24x2x120 kõrguse reguleerimiseks (osa 1 joonisel 4.3 - 7
lk
250
), lindijäätmerenni teravad servad võivad põhjustada sisselõikeid.
Kandke alati pakse kaitsekindaid.
(4)
(2)
(1)
(3)

Kasutusjuhend SIPLACE X-Seeria 4 Ülesseadmine ja käikuvõtmine
Alates tarkvaraversioonist 706.1 SP1 Versioon 10/2014 4.3 Masina ülesseadmine
251
4
4
Vabastage ettevaatlikult mõlemad kuukant-pesapeapoldid M24x90 (osa 2 joonisel 4.3 - 7 lk
250
) kruvikeeraja otsakuga (mõõt 19 mm) ning laske välimine masina jalg (osa 1 joonisel 4.3
- 7 lk 250) libistage aeglaselt allapoole, kuni jõuab piirikuni.
Paigaldage vajalikule trükkplaadikonveieri kõrgusele vastav masina jalg.
– Masina välimised jalad trükkplaadikonveieri kõrguste 900, 930 ja 950 mm jaoks, pikkus
439 mm, toote nr 03000890-02 (osa 1 joonisel 4.3 - 4
, lk 247 )
Seadistage selliselt kõik masina välimised jalad.
Vahemaa masina jalgade alapinna ning masina raam alumise serva vahel peab olema järg-
mine:
Reguleerige seadekruvi M24x2x120 (osa 3 joonisel 4.3 - 7 lk 250) harkvõtmega SW 36, kuni
saavutate konveierile vastavad vahemaa väärtused, mis on määratletud eelnevas tabelis.
Langetage masin ettevaatlikult, kuni masina jalad puudutavad ühtlaselt põrandat. Paigaldus-
kohas peab alati viibima teine töötaja, kelle ülesandeks on jälgida, et masin jääks allalaskmi-
sel stabiilseks. Masina välimiste jalgade fiksaator tuleb vajadusel veidi vabastada.
Jätkake masina langetamist ettevaatlikult, kuni maina välimised jalad puudutavad kõrguse re-
guleerimise seadekruvisid M24x2x120 (osa 3 joonisel 4.3 - 7
lk 250).
Veenduge, et masina keskmised jalad (osa 2 joonisel 4.3 - 4 lk 247) ärge veel maandust puu-
dutage. Vajadusel kruvige masina keskmisi jalgu veidi masina või vahetoe sisse tagasi.
4
HOIATUS
Masina raske osa
Masina jalad on väga rasked. Lahti keeratud kruvid võivad kukkuda ja kahjusta-
da teie jäsemeid.
Kui vahetate masina jalgu, tõstke masinat veidi ülespoole.
Veenduge, et keegi ei ole ohupiirkonnas. Masina tahtmatust liikumisest või langeta-
minesest tingitud muljumisoht.
HOIATUS
Ärge liigutage masinat.
Konveieri küljed võivad saada kahjustatud.
Veenduge, et masin ei liigu ja et konveieri küljed ei kahjustatud.
PCB-konveieri kõrgus Masina jala kaugus masina raami alumise serva all
900 mm 190 mm
930 mm 220 mm
950 mm 240 mm
JUHIS
Masina lõpliku reguleerimise kirjeldust vaadake jaotisest 4.3.8.1
lk 254.

4 Ülesseadmine ja käikuvõtmine Kasutusjuhend SIPLACE X-Seeria
4.3 Masina ülesseadmine Alates tarkvaraversioonist 706.1 SP1 Versioon 10/2014
252
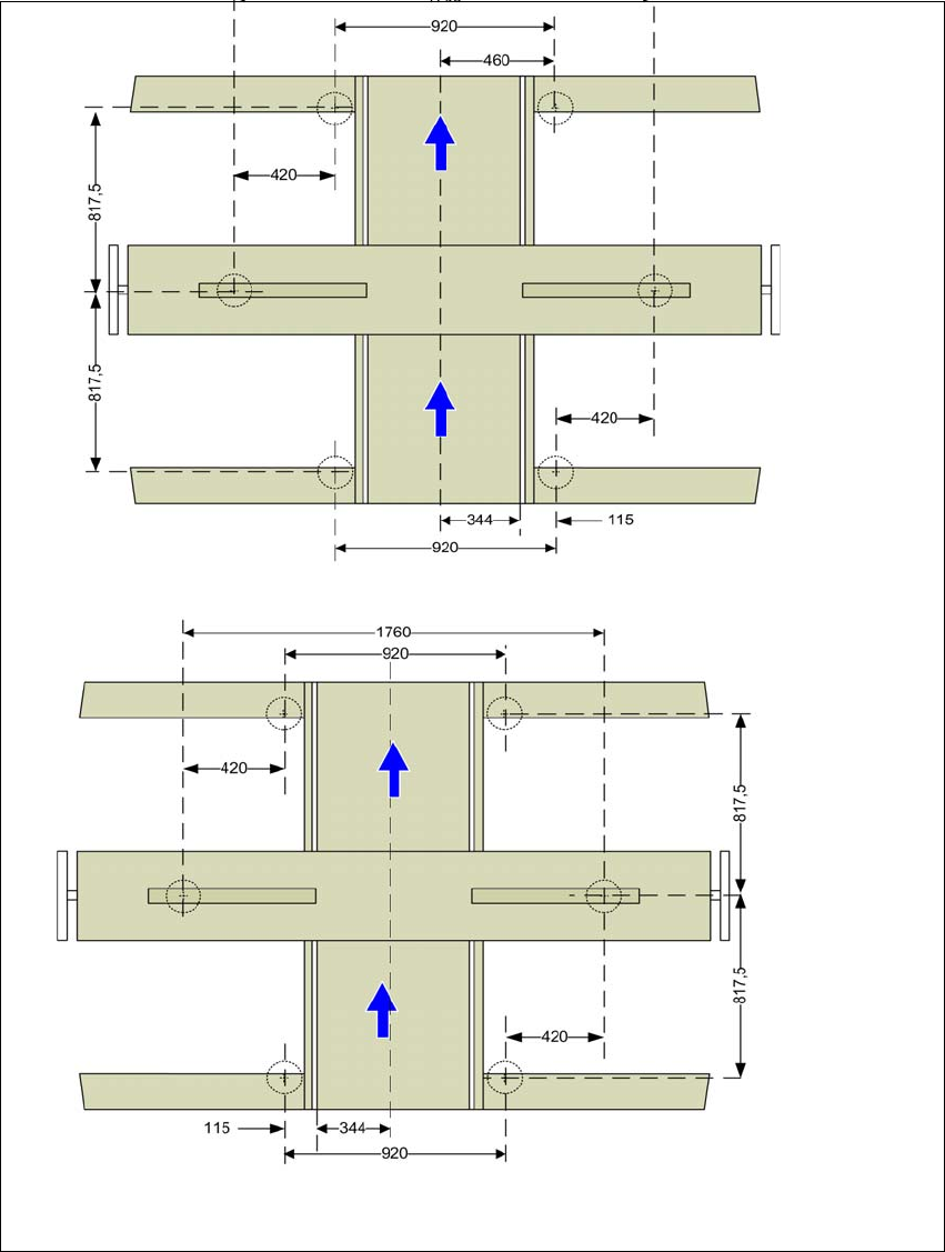
4.3.7 Masinajalgade ja trükkplaadikonveieri statsionaarsete servade vahekaugused
Masinajalgade vahekaugused trükkplaatide üksikkonveieri puhul
4
Jn 4.3 - 8 Masinajalgade vahekaugused trükkplaatide üksikkonveieri puhul millimeetrites
Liikumatu konveieri pool maksi-
maalses parempoolses asendis
a
.
a) Väärtus oleneb liikumatu poole asendist. Kõik mõõtmed millimeetrites.
Liikumatu konveieri pool maksi-
maalses vasakpoolses asendis
a
.