00197013-04_UM_X-Serie-S_ET - 第388页
6 Jaamapikendused Kasutusjuhend SIPLACE X-Seeria 6.8 SIPLACE X-Seeria masina ko mponendikäru dokkimisjaam Alates t arkvaraversioonist 706.1 SP1 Versioon 10/2014 388 6 6 6.8.3 Dokkimisjaama mõõtmed ko os dokitud komponend…

Kasutusjuhend SIPLACE X-Seeria 6 Jaamapikendused
Alates tarkvaraversioonist 706.1 SP1 Versioon 10/2014 6.8 SIPLACE X-Seeria masina komponendikäru dokkimisjaam
387
6
Jn 6.8 - 2 Dokkimisjaam - Kõik mõõtmed millimeetrites, ühenduspunktid
Legend joonisele 6.8 - 2 lk 387
(1) Suruõhuühendus
(2) CAN-siini ühendus
(3) Toiteühendus
6.8.2 Tehnilised andmed
6
Mõõtmed
Pikkus x laius 950 mm x 930 mm
Kõrgus 864 mm trükkplaatide transpordikõrgusel 900 mm
894 mm trükkplaatide transpordikõrgusel 930 mm
914 mm trükkplaatide transpordikõrgusel 950 mm
Kaal 120 kg
Suruõhu rõhuväärtused
p
min
p
max
0,5 MPa (5,0 bar)
1,0 MPa (10,0 bar)
Suruõhuühendus Ühenduspistik KS 2-M5-A

6 Jaamapikendused Kasutusjuhend SIPLACE X-Seeria
6.8 SIPLACE X-Seeria masina komponendikäru dokkimisjaam Alates tarkvaraversioonist 706.1 SP1 Versioon 10/2014
388
6
6
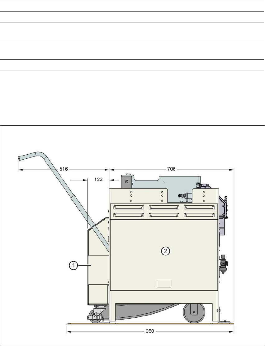
6.8.3 Dokkimisjaama mõõtmed koos dokitud komponendikäruga
6
Jn 6.8 - 3 Dokkimisjaama mõõtmed koos dokitud komponendikäruga - mõõtmed millimeetrites
(1) Komponendikäru
(2) Dokkimisjaam
Suruõhutarve 50 Nl/min
*a
Toitepinge 88 - 264 V~
Nominaalne tarbitav vool 3,5 A (230 V~)
7 A (115 V~)
Nominaalne tarbitav näivvõi-
musus
0,8 kW
Kaitse 2 x 8 A
*)a Normaalsetel atmosfääritingimustel 20 °C ja 1013 hPa juures

Kasutusjuhend SIPLACE X-Seeria 6 Jaamapikendused
Alates tarkvaraversioonist 706.1 SP1 Versioon 10/2014 6.8 SIPLACE X-Seeria masina komponendikäru dokkimisjaam
389
6.8.4 Juhtseadised ja näidikud
6
Jn 6.8 - 4 Dokkimisjaam - juhtseadised ja näidikud